Košice, ako druhé najväčšie mesto Slovenska, ponúkajú širokú škálu nehnuteľností, od historických centier až po moderné sídliská. Jednou z takýchto obľúbených lokalít je sídlisko Nad jazerom, ktoré je známe svojou bohatou zeleňou a blízkosťou k vodným plochám. V tomto kontexte sa často objavujú ponuky na predaj bytov, pričom trojizbové byty patria medzi najvyhľadávanejšie pre rodiny aj jednotlivcov hľadajúcich dostatok priestoru. Konkrétne, ponuka na predaj 3-izbového bytu na Važeckej ulici predstavuje zaujímavú možnosť pre potenciálnych kupujúcich v tejto dynamickej mestskej časti.

Charakteristika bytu na Važeckej ulici
Hoci sa v texte uvádza, že "ľutujeme, ale ponuka ktorú hľadáte, bola odstránená. Našou snahou je zverejňovať len aktuálne ponuky," informácie z rôznych inzerátov nám umožňujú zrekonštruovať typickú ponuku bytu na Važeckej ulici. Najčastejšie sa jedná o byty pražského typu, ktoré sú známe svojou priestrannosťou a možnosťami dispozičných úprav.
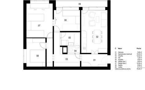
Byt s rozlohou okolo 71 m² plus loggia o veľkosti 6 m² bol často prezentovaný ako byt v osobnom vlastníctve, čo znamená jednoduchší proces prevodu vlastníctva a absenciu obmedzení spojených s družstevným bývaním. Situovaný na 3. poschodí zo 7 poschodí v bytovom dome, tento byt nie je krajný, čo často znamená lepšie tepelné vlastnosti a menšie riziko vlhkosti. Orientácia okien na Východ a Západ zaisťuje dostatok prirodzeného svetla počas celého dňa.
K bytu zvyčajne prislúcha pivnica a kumbál, ktoré poskytujú dodatočný úložný priestor, čo je v mestskom prostredí veľmi cenené. V jednej z prezentovaných ponúk sa uvádza, že byt prešiel kompletnou rekonštrukciou, ktorá zahŕňala plastové okná, novú kuchyňu s vstavanými spotrebičmi, vstavaný šatník na chodbe a samostatné WC. Tieto modernizácie zvyšujú komfort bývania a znižujú potrebu okamžitých investícií zo strany nového majiteľa.
V kontexte cien, jedna z konkrétnych ponúk uvádzala cenu 195.000,- € vrátane provízie, právneho servisu, katastrálnych a notárskych poplatkov. Táto cena zahŕňa aj asistenciu s hypotekárnym úverom, čo naznačuje, že predajcovia sú pripravení pomôcť kupujúcim s financovaním nehnuteľnosti.

Lokalita: Sídlisko Nad jazerom v Košiciach
Sídlisko Nad jazerom patrí medzi najväčšie a najobľúbenejšie sídliská v Košiciach. Jeho názov evokuje blízkosť k jazeru, ktoré je centrálnym bodom oddychu a relaxácie pre obyvateľov. Táto lokalita je charakteristická svojou rozsiahlymi plochami zelene, parkmi a chodníkmi, ktoré umožňujú aktívny oddych, športovanie či prechádzky.
Važecká ulica, kde sa spomínaný byt nachádza, je situovaná v rámci tohto sídliska. Blízkosť jazera poskytuje nielen estetické benefity, ale aj možnosti pre vodné športy, ako napríklad vodné lyžovanie, čo bolo spomenuté v jednej z ponúk ako súčasť rekreačnej oblasti. Okolie sídliska je tiež dobre vybavené občianskou vybavenosťou. V bezprostrednej blízkosti sa nachádzajú potraviny, banky, pošty, lekárne a zástavky mestskej hromadnej dopravy, vrátane električiek a autobusov. Tieto faktory zabezpečujú pohodlné bývanie s ľahkým prístupom k službám a dopravným spojeniam do ostatných častí mesta.
Košické sídliská
Porovnanie s inými ponukami v lokalite Nad jazerom
Analýza rôznych ponúk na predaj 3-izbových bytov v lokalite Nad jazerom ukazuje istú variabilitu v cenách a stavoch nehnuteľností, čo je bežné na realitnom trhu. Ceny sa pohybujú od približne 82.000,- € (za byt s rozlohou 72 m² + 6 m² loggia na Čingovskej ulici) až po 195.000,- € (za prerobený 3-izbový byt na Bukoveckej ulici). Tieto rozdiely sú ovplyvnené viacerými faktormi, ako sú:
- Lokalita a ulica: Aj v rámci jedného sídliska môžu mať rôzne ulice odlišnú atraktivitu a tým aj ceny nehnuteľností.
- Stav nehnuteľnosti: Byty po kompletnej rekonštrukcii s modernými prvkami sú prirodzene drahšie ako byty v pôvodnom stave, ktoré si vyžadujú investície do modernizácie. Ponuky ako "PREDANÉ: prerobený 3-i byt Košice, Bukovecká" za 195.000,- € alebo "PREDAJ, Pekný 3 izb. byt, Čingovská ulica - Nad Jazerom" za 142.900,- € poukazujú na túto skutočnosť.
- Dispozícia a veľkosť: Rozdielna výmera bytov (napr. 68 m² na Čingovskej vs. 71 m² na Amurskej) a prítomnosť loggie či balkóna tiež vplývajú na cenu.
- Typ bytu: Hoci väčšina ponúk sa týka bytov pražského typu, existujú aj pôvodné košické typy bytov, ktoré mohli prejsť zmenou dispozície.
Ponuka na Važeckej ulici, ktorá bola spomenutá ako prerobená a s rozlohou 71m² + 6m loggia, sa svojimi parametrami radí do strednej až vyššej cenovej hladiny v rámci daného sídliska, čo odráža jej moderný stav a atraktívnu polohu.

Možnosti hypotekárneho financovania a právny servis
V kontexte predaja nehnuteľností, najmä bytov, je možnosť hypotekárneho úveru kľúčovým faktorom pre mnohých kupujúcich. Predajcovia a realitné kancelárie často ponúkajú asistenciu s vybavením hypotéky, čo zahŕňa poradenstvo pri výbere najvhodnejšej banky a úverového produktu, ako aj pomoc s administratívou.
Okrem financovania je dôležitý aj kompletný právny servis. Ten zahŕňa vypracovanie kúpnych zmlúv advokátom, overenie podpisov predávajúceho a podanie návrhu na vklad vlastníckeho práva do katastra nehnuteľností. Všetky tieto úkony zaisťujú hladký a bezpečný priebeh transakcie. V jednej z ponúk sa explicitne uvádza: "Uvedená cena je vrátane provízie, právneho servisu, katastrálnych a notárskych poplatkov." Táto transparentnosť v cene je pre kupujúcich veľmi dôležitá a zjednodušuje rozhodovací proces.
Predaj nehnuteľnosti - Kedy kontaktovať realitnú kanceláriu?
Text obsahuje aj výzvu pre potenciálnych predajcov: "Rozmýšľate nad predajom nehnuteľnosti? Kontaktujte nás, pretože úspech je súčasťou našej práce." Táto fráza zdôrazňuje úlohu realitných kancelárií pri sprostredkovaní predaja nehnuteľností. Profesionálni realitní makléri poskytujú komplexné služby, ktoré zahŕňajú:
- Stanovenie trhovej ceny: Na základe svojich skúseností a znalosti trhu dokážu správne oceniť nehnuteľnosť.
- Marketing a propagácia: Zabezpečujú profesionálne fotografie, videoprehliadky a inzerciu na relevantných portáloch.
- Obhliadky s potenciálnymi záujemcami: Organizujú a realizujú obhliadky nehnuteľnosti.
- Právne a administratívne zabezpečenie: Poskytujú alebo zabezpečujú kompletný právny servis a administratívu spojenú s predajom.
- Vyjednávanie: Zastupujú predávajúceho pri rokovaniach s kupujúcim.
Úspech pri predaji nehnuteľnosti často závisí od správneho výberu realitnej kancelárie a jej odborného prístupu.
Typy bytov a ich charakteristiky na sídlisku Nad jazerom
Sídlisko Nad jazerom disponuje rôznymi typmi bytových domov a teda aj bytov. Okrem spomínaných bytov pražského typu, ktoré sú známe svojimi nepriechodnými izbami a možnosťou rekonštrukcie, sa tu nachádzajú aj iné typy.
Byty pražského typu: Tieto byty boli obvykle navrhnuté s dôrazom na súkromie a funkčnosť. Charakteristické sú priestranné izby, často oddelené chodbou, a možnosť dispozičných úprav, napríklad spájania izieb alebo presúvania priečok. V ponuke sa často objavujú ako "priestranný 3-izbový byt", čo naznačuje ich výhodu oproti menším bytom.
Pôvodné košické typy bytov: Tieto byty môžu mať odlišnú dispozíciu, často s prechodnými izbami, čo môže byť pre niektorých menej výhodné. Avšak, ako uvádza jedna z ponúk: "JEDNÁ SA O PÔVODNE KOŠICKÝ TYP BYTU, KTORÝ BOL CELKOVOU ZMENOU DISPOZÍCIE ÚPLNE PREROBENÝ." To znamená, že aj byty pôvodne menej atraktívneho typu môžu byť po komplexnej rekonštrukcii a zmene dispozície veľmi moderne a funkčne zariadené.
1,5-izbové a 2-izbové byty: Okrem 3-izbových bytov sa v lokalite Nad jazerom nachádzajú aj menšie byty, ako napríklad 1,5-izbové alebo 2-izbové. Tieto byty sú často vhodnejšie pre jednotlivcov, páry alebo ako investícia na prenájom. Ich cena je, samozrejme, nižšia. Ponuky ako "1,5 izbový slnečný byt na Ždiarskej ul." alebo "pekný a útulný 2 izbový bytík, Košice - Nad Jazerom, Bukovecká ulica" ukazujú rozmanitosť ponuky aj v tomto segmente.
Byty v pôvodnom stave vs. rekonštruované: Je nevyhnutné rozlišovať medzi bytmi v pôvodnom stave, ktoré vyžadujú rekonštrukciu, a bytmi po čiastočnej alebo kompletnej rekonštrukcii. Ponuka "Byt je BEZ LODŽIE a v úplne PÔVODNOM STAVE!!!" na ulici Čiernomorská sa radí do prvej kategórie, zatiaľ čo ponuka na Važeckej ulici s popisom "po kompletnej rekonštrukcii" patrí do druhej. Rozdiel v cene a v následných nákladoch na bývanie je potom značný.
Výhody bývania na sídlisku Nad jazerom
Bývanie na sídlisku Nad jazerom prináša viacero benefitov, ktoré ho robia atraktívnym pre široké spektrum obyvateľov:
- Príroda a rekreácia: Blízkosť jazera a rozsiahle zelené plochy poskytujú ideálne podmienky na oddych, šport a relaxáciu. Možnosti ako korčuľovanie, beh, cyklistika či prechádzky pri vode sú samozrejmosťou. Lokalita je známa aj ako rekreačná oblasť s konaním majstrovstiev vo vodnom lyžovaní.
- Občianska vybavenosť: Sídlisko je dobre vybavené obchodmi, službami, školami, škôlkami a zdravotníckymi zariadeniami. Všetko potrebné je na dosah ruky.
- Dopravná dostupnosť: Dobré spojenie mestskej hromadnej dopravy (električky aj autobusy) umožňuje rýchly presun do centra mesta a iných častí Košíc.
- Pokojné prostredie: Napriek tomu, že ide o sídlisko, Nad jazerom je často popisované ako pokojná a zelená lokalita s množstvom stromov a detských ihrísk, čo ocenia najmä rodiny s deťmi.
- Rôznorodosť bytov: Dostupnosť rôznych typov bytov, od 1-izbových po 4-izbové, a v rôznych stavoch rekonštrukcie, umožňuje výber podľa individuálnych potrieb a finančných možností.

Všetky tieto faktory spolu vytvárajú atraktívnu a vyhľadávanú lokalitu pre bývanie v Košiciach, pričom ponuka 3-izbového bytu na Važeckej ulici, aj napriek tomu, že bola označená ako odstránená, predstavuje typický príklad toho, čo môžu záujemcovia v tejto oblasti očakávať.