Hľadáte ideálne miesto na život, ktoré by kombinovalo pokoj vidieckej krajiny s výbornou dostupnosťou k mestu? Bungalov v obci Ďurďošík, v okrese Košice-okolie, predstavuje atraktívnu ponuku pre tých, ktorí túžia po modernom bývaní s dostatkom priestoru a komfortu, no zároveň si cenia súkromie a pokoj mimo mestského ruchu. Táto nehnuteľnosť, ponúkaná ako "holodom" s plánovaným dokončením na jeseň 2020, sa nachádza v obci Ďurďošík, ktorá je známa svojou pokojnou atmosférou a zároveň strategickou polohou len pár minút jazdy od Košíc.

Priestrannosť a funkčnosť v každom detaile
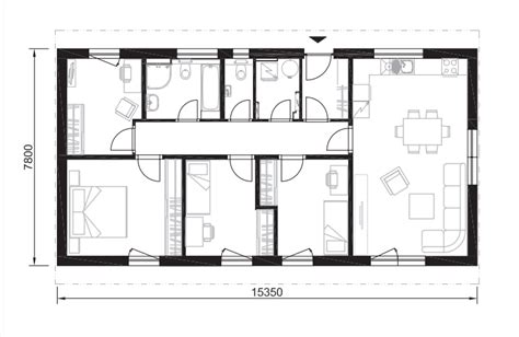
Tento moderný bungalov disponuje úžitkovou plochou 123 m², rozšírenou o priestrannú terasu s rozlohou 25 m². Dispozícia domu je navrhnutá s dôrazom na maximálne využitie priestoru a komfort pre celú rodinu. Po vstupe do domu vás privíta vstupná chodba - predsieň, ktorá plynule prechádza do srdca domova - otvoreného priestoru spájajúceho obývaciu izbu s jedálňou a plne vybavenú kuchyňu. Pre praktické uskladnenie potravín je k dispozícii samostatná špajza.
Nočná časť domu je oddelená pre zabezpečenie maximálneho pokoja a súkromia. Nájdete tu rodičovskú spálňu a dve ďalšie detské izby, ktoré poskytujú dostatok priestoru pre rastúcu rodinu. Hygienické zázemie je riešené dvoma samostatnými toaletami, pričom jedna z nich je súčasťou priestrannej kúpeľne vybavenej modernou vaňou, sprchovacím kútom a ďalšou toaletou.

Technické zázemie a potenciál podkrovia
Mimoriadne praktickým prvkom bungalovu je samostatná technická miestnosť, ktorá slúži ako kotolňa a zároveň práčovňa. Táto miestnosť je navrhnutá s mysľou na budúcnosť a funkčnosť. Z technickej miestnosti je zabezpečený výlez do podkrovia, ktoré predstavuje ďalší významný potenciál pre úložný priestor. Vďaka tomu môžete jednoducho uskladniť sezónne veci, športové vybavenie alebo čokoľvek iné, čo si vyžaduje miesto mimo hlavných obytných priestorov, čím sa udržiava celková organizácia a vzdušnosť domu.
Moderné technológie pre váš komfort a bezpečnosť
Bungalov je navrhnutý s ohľadom na moderné štandardy a energetickú efektívnosť. V celom dome je implementované funkčné podlahové vykurovanie s vodným médiom, ktoré zabezpečuje rovnomernú distribúciu tepla a vysoký komfort bývania. Zdrojom vykurovania je elektrokotol značky, ktorá je zárukou spoľahlivosti a efektivity.
Pre ešte vyšší komfort počas horúcich letných mesiacov je dom vybavený klimatizáciou. Bezpečnosť je rovnako prioritou, preto je súčasťou vybavenia aj moderný kamerový systém, ktorý poskytuje neustály dohľad nad vaším majetkom.
Elektrické podlahové kúrenie (pod plávajúcu podlahu)
Exteriér a napojenie na inžinierske siete
Exteriér domu je riešený s dôrazom na izoláciu a energetickú úspornosť. Obvodové múry sú zateplené fasádnym polystyrénom s adekvátnou hrúbkou, čo prispieva k minimalizácii tepelných strát a znižovaniu nákladov na vykurovanie.
Bungalov je plnohodnotne napojený na všetky základné inžinierske siete. K dispozícii bude pripojenie na elektrickú energiu, obecný vodovod a obecnú kanalizáciu. Pre milovníkov moderných technológií a rýchleho internetu je potešujúcou správou aj dostupnosť prípojky optického internetu, ktorá zabezpečí vysokorýchlostné pripojenie pre prácu aj zábavu.
Oplotený a priestranný pozemok okolo domu zabezpečuje maximálne súkromie a bezpečnosť pre vás a vašu rodinu. Južná orientácia terasy a obývacej izby sľubuje príjemné posedenia na slnečnej terase, kde si môžete vychutnať kávu, relaxovať alebo organizovať grilovačky s priateľmi a rodinou.

Lokalita: Ideálne spojenie vidieka a mesta
Obec Ďurďošík, kde sa tento moderný bungalov nachádza, ponúka ideálne spojenie pokojného vidieckeho prostredia s výbornou dostupnosťou do krajského mesta Košice. Je situovaná len pár minút jazdy autom od mesta, čo ju robí mimoriadne atraktívnou voľbou pre rodiny a jednotlivcov, ktorí hľadajú tiché a pokojné bývanie mimo každodenného zhonu, no zároveň chcú mať všetky dôležité služby, pracovné príležitosti a kultúrne vyžitie na dosah.
Táto poloha umožňuje obyvateľom užívať si výhody života v prírode, ako sú čerstvý vzduch, pokoj a priestor, bez toho, aby boli odrezaní od mestského života. Blízkosť Košíc znamená ľahký prístup k obchodom, školám, zdravotníckym zariadeniam, reštauráciám a kultúrnym podujatiam.
V kontexte ponuky nehnuteľností v okolí Košíc, kde sa často stretávame s ponukami ako rodinný dom v Bidovciach (okres Košice-okolie) s rýchlym napojením na diaľnicu D1, alebo rodinné domy v obci Herľany (Košice-okolie) v blízkosti prírodnej pamiatky Herliansky gejzír, sa bungalov v Ďurďošíku vyznačuje svojím moderným dizajnom, funkčnou dispozíciou a vynikajúcou rovnováhou medzi pokojným vidieckym životom a mestskou dostupnosťou.
Informácie o tejto nehnuteľnosti, vrátane dodatočných fotografií vrátane leteckých snímok, sú dostupné na portáli ADOMIS.SK. Cena nehnuteľnosti vo vyhotovení "holodom" je stanovená na 147 000,- €.

Ponuka ako "Dom za cenu bytu pri Košiciach - novostavba Ďurďošík" naznačuje atraktívnu cenovú reláciu vzhľadom na lokalitu a kvalitu novostavby. Taktiež sa v ponuke objavujú aj ďalšie novostavby v blízkom okolí, ako napríklad "Moderná novostavba 4. izb. rodinného domu na predaj" alebo "Predám novostavbu 4 izbový rodinný dom Košický Klečenov", čo potvrdzuje rastúci záujem o bývanie v tejto perspektívnej oblasti. Bungalov v Ďurďošíku však vyniká svojou konkrétnou ponukou, ktorá spĺňa požiadavky na moderné, priestranné a komfortné rodinné bývanie s výbornou dostupnosťou.