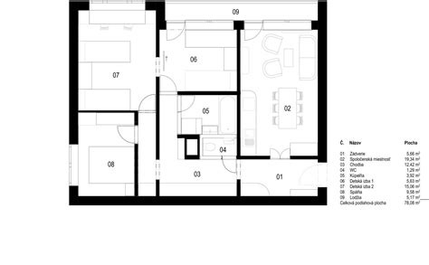
Dispozícia bytu s prechodnou obývačkou, najmä v pôvodnom stave, predstavuje častú výzvu pre mnohých majiteľov, ktorí túžia po efektívnejšom využití priestoru a jeho premene na plnohodnotné bývanie pre celú rodinu. S rozlohou 87 m² tento byt ponúka potenciál na zmenu, ktorá by mohla priniesť požadovaný štvrtý izbový priestor. Kľúčom k úspechu je premyslený návrh, ktorý zohľadní špecifické dispozície, potreby obyvateľov a zároveň minimalizuje zbytočné náklady a komplikácie pri prerábke.

Analýza súčasného stavu a potenciálnych úprav
Prirodzenou ambíciou je premeniť byt na plnohodnotný 4-izbový s cieľom získať viac súkromných zón, najmä pre rastúce deti alebo pri zmene životnej situácie. V tomto konkrétnom prípade sa ako hlavná výzva javí prechodná obývačka a celková dispozícia, ktorá nemusí optimálne zodpovedať moderným nárokom na funkčnosť a súkromie.
Jednou z kľúčových úvah je efektívne využitie priestrannej chodby, ktorá má potenciál slúžiť nielen ako komunikačný priestor, ale aj ako plnohodnotná jedálenská časť, schopná pojať aj šesť osôb. Tento prístup by uvoľnil priestor v iných miestnostiach a umožnil flexibilnejšie usporiadanie.
Ďalšou dôležitou otázkou je rozdelenie jednej z väčších izieb na dve samostatné. Vzhľadom na to, že byt má dve izby s loggiami, je žiaduce zachovať ich pôvodnú veľkosť, pokiaľ to nie je technicky a dispozične nemožné. Delenie izby s oknom, kde sa časť okna stane spoločnou pre obe nové miestnosti, je jedným z možných riešení, ktoré pripomína staršie typy bytových domov - tzv. „baugruppen“.
V kontexte prerábky je dôležité zvážiť aj umiestnenie kuchyne a obývačky. Spojenie obývačky s kuchyňou, čím vznikne jeden otvorený priestor, je moderným trendom, ktorý však prináša svoje špecifické nároky na dispozičné riešenie a umiestnenie vstupu do obývačky, ktorý by mohol viesť cez kuchynskú časť. Kontroverznou témou býva umiestnenie jedálenského stola do chodby, čo však v praxi nie je nevídané a môže byť funkčným riešením.
Strategické prístupy k vytvoreniu štvrtej izby
Transformácia 3-izbového bytu na 4-izbový si vyžaduje strategické rozhodnutia, ktoré zohľadnia existujúcu dispozíciu a technické možnosti. Existuje niekoľko hlavných prístupov, ktoré sa dajú aplikovať:
1. Delenie veľkých miestností priečkami
Najpriamejším spôsobom, ako získať ďalšiu izbu, je rozdelenie jednej z existujúcich, dostatočne veľkých miestností na dve menšie. V tomto prípade sa ponúka rozdelenie najväčšej izby. Ak má táto miestnosť iba jedno okno, je možné využiť sadrokartónovú priečku s vytvorením „falošného“ okna, ktoré umožní preniknutie denného svetla do oboch nových priestorov. Táto metóda je obzvlášť vhodná pre vytvorenie dvoch detských izieb, ktoré môžu byť funkčné až do dospelosti detí.

V kontexte daného bytu, kde sú dve izby s loggiami, je prioritou zachovať ich veľkosť. Preto sa pozornosť sústreďuje na najväčšiu izbu, ktorá nie je spojená s loggiou. Jej rozdelenie by mohlo priniesť dve plnohodnotné izby, ktoré môžu slúžiť ako detské izby alebo jedna ako spálňa a druhá ako pracovňa či hosťovská izba.
2. Kombinácia funkcií v jednej miestnosti a optimálne využitie priestoru
Ďalšou možnosťou je multifunkčné využitie priestoru. Napríklad, ak je v rodine len jedno dieťa, je možné detskú izbu zónovať tak, aby slúžila aj ako herňa alebo pracovňa. Podobne je možné vytvoriť „rodičovskú izbu“ v priestore obývacej izby, zatiaľ čo menšia izba by slúžila ako spálňa pre staršieho člena rodiny alebo ako pracovňa.
V tomto konkrétnom byte sa zdá byť najlogickejším riešením prepojenie obývačky s kuchyňou. Týmto spojením vznikne väčší obytný priestor, ktorý môže byť multifunkčný. Obývacia časť by mohla byť umiestnená oproti TV, s pohovkou do L, zatiaľ čo kuchynská časť by bola funkčne prepojená. Vstup do obývačky by bol potom ideálne cez kuchynskú časť, čím by sa vytvorila jasnejšia zóna.
3. Premiestnenie kuchyne a vytvorenie novej izby
Teoreticky je možné zvážiť aj premiestnenie kuchyne na úkor inej miestnosti, čím by sa získal ďalší priestor. Tento prístup je však spojený s komplikovanejšími stavebnými úpravami, najmä presunom odpadov a vodovodných rozvodov, čo zvyšuje náklady a technickú náročnosť projektu. V tomto prípade sa zdá, že presun kuchyne by bol zbytočne nákladný a nepriniesol by zásadné výhody oproti iným možnostiam.

4. Neštandardné riešenia: Jedáleň v chodbe a multifunkčné využitie
Vzhľadom na veľkosť chodby je vytvorenie jedálenského kúta pre šesť osôb realistickou a funkčnou možnosťou. Tento prístup, hoci môže pôsobiť nekonvenčne, je v praxi overený a efektívne rieši problém nedostatku priestoru pre stolovanie. Vytvorenie jedálenského priestoru v chodbe by zároveň uvoľnilo priestor v obývacej časti pre pohodlnejšie sedenie.
Využitie priestrannej chodby na jedálenský kút je v tomto prípade jedným z najpraktickejších riešení. Umožní to vytvoriť plnohodnotnú jedálenskú zónu bez zmenšovania ostatných miestností.
Konkrétne návrhy pre byt s 87 m²
Na základe poskytnutých informácií a diskusie o rôznych prístupoch k prerábke, je možné navrhnúť nasledujúce riešenie pre byt s rozlohou 87 m²:
1. Prepojenie obývačky a kuchyne:
- Zrušiť pôvodný vchod do obývačky a vytvoriť nový, ktorý bude viesť cez kuchynskú časť. Tým sa obývačka stane súkromnejšou a oddelenejšou od hlavného komunikačného priestoru.
- V kuchynskej časti, ktorá bude slúžiť aj ako vstup do obývačky, umiestniť jedálenský stôl.
- Kuchynskú linku je možné potiahnuť až pod okno, čím sa maximalizuje úložný priestor a pracovná plocha.
2. Vytvorenie štvrtej izby:
- Rozdeliť najväčšiu izbu (pravdepodobne tú pri vchode, ktorá nie je priamo spojená s loggiou) na dve menšie izby.
- Pri rozdelení s ohľadom na okno, zabezpečiť dostatočné presvetlenie oboch nových izieb. Konštrukcia priečky by mala byť premyslená tak, aby minimalizovala straty svetla.
- Tieto dve nové izby by mohli slúžiť ako detské izby, prípadne jedna ako spálňa a druhá ako pracovňa či hosťovská izba.
3. Využitie chodby:
- V priestrannej chodbe (ktorá má cez 17 m²) vytvoriť plnohodnotný jedálenský kút pre šesť osôb. Toto riešenie je ergonomické a praktické, najmä ak sa návštevy očakávajú častejšie.
- Zvyšný priestor v chodbe je možné využiť na vstavané skrine a úložné priestory.

4. Umiestnenie spálne:
- Spálňa by mala byť umiestnená v jednej z menších izieb, ktoré vzniknú rozdelením. Dôležitý je dostatok úložného priestoru, napríklad formou vstavaných skríň alebo rolldoru. Aj menšia izba (napr. 8 m²) môže byť dostatočná pre manželskú posteľ, komodu a TV na stene.
5. Zachovanie loggií:
- Dve izby s loggiami by mali zostať nedotknuté, aby sa zachovala ich pôvodná veľkosť a funkčnosť.
Dôležité úvahy pri prerábke:
- Statika a nosné steny: Pri akýchkoľvek dispozičných zmenách je nevyhnutné konzultovať statika budovy. Zvlášť dôležité je to v prípade, ak by sa uvažovalo o zásahoch do nosných stien. V tomto konkrétnom prípade sa zdá, že pôvodná stena medzi dvoma izbami je dôležitá pre statiku a podieľa sa na podpore loggií, preto jej odstránenie nie je možné.
- Rozvody a odpady: Premiestnenie kuchyne alebo kúpeľne si vyžaduje zložité a nákladné úpravy rozvodov vody a odpadu. V navrhovanom riešení sa minimalizujú takéto zásahy.
- Legislatíva a povolenia: Akékoľvek stavebné úpravy, ktoré menia dispozíciu bytu, si vyžadujú stavebné povolenie a koordináciu s príslušnými úradmi.
- Náklady: Premyslený návrh, ktorý minimalizuje zložité stavebné práce a presuny inštalácií, môže výrazne znížiť celkové náklady na prerábku.
Simple method for new beekeepers to split a hive Use a double screened dividing board
Príklady z praxe a ich aplikácia
Príklady z praxe, ako napríklad rekonštrukcia bytu v Berlíne typu „Plattenbau“, ukazujú, že aj v menej ideálnych dispozíciách je možné vytvoriť multifunkčné priestory a zefektívniť využitie metrov štvorcových. Koncept „domestikovaného námestia“, kde sa centrálna časť bytu stáva multifunkčným priestorom a okolité miestnosti slúžia na oddych a súkromie, je inšpiratívny.
Prípad Jany z Popradu, ktorá riešila podobný problém s nedostatkom izieb pre dospievajúcich synov, naznačuje, že aj menšie izby môžu byť funkčné, ak sú správne navrhnuté a vybavené. Dôležité je zamerať sa na praktické riešenia, ako sú vstavané skrine a multifunkčný nábytok.
Napriek tomu, že niektoré prerobené byty, ktoré sa objavia v ponuke na predaj, nemusia byť vždy ideálne (ako príklad bytu na Šustekovej ulici), poukazujú na snahu majiteľov získať viac obytnej plochy a transformovať pôvodné dispozície. Extrémne malá obývačka s jedálenským stolom pri vchodových dverách síce nie je ideálna, ale odráža snahu o vytvorenie ďalšej izby. V tomto prípade je dôležité poučiť sa z takýchto príkladov a vyhnúť sa podobným kompromisom, ak to nie je nevyhnutné.
Záver
Premena 3-izbového bytu s prechodnou obývačkou na funkčný 4-izbový priestor je realizovateľná s dôkladným plánovaním a strategickým prístupom. Kľúčom je využitie existujúcich dispozícií, ako je priestranná chodba, a premyslené rozdelenie najväčšej izby. Spojenie obývačky s kuchyňou a vytvorenie jedálenského kúta v chodbe sú praktické riešenia, ktoré môžu výrazne zlepšiť kvalitu bývania. Dôležité je tiež nezabúdať na technické a legislatívne aspekty prerábky, aby bol výsledok nielen estetický, ale aj bezpečný a legálny.