Diskusia okolo ikonického hotela Kyjev je na stole minimálne dve dekády. Za ten čas budova aj s priľahlým OD Prior chátra priamo na lukratívnom pozemku historického centra. Keď budovy kúpil nový developer, zdalo sa, že príde zmena k lepšiemu. Roky naťahovania ale neskončili, proces skomplikovalo ich vyhlásenie za pamiatku. Investor začal byť aktívny až teraz a to nečakanou prestavbou bývania v okolí. Zdá sa tak, že Hotel Kyjev čaká lepší osud než niekdajšia obnova hotela Park Inn, ktorá podľa odborníkov zničila tvár historického centra. Po tom, ako vlani prišlo vyhlásenie Hotela Kyjev a Obchodného domu Prior za národné kultúrne pamiatky, zostalo okolo ich osudu ticho. Majiteľ, firma Lordship, hovoril o zmarených plánoch a možnom odstúpení budúceho prevádzkovateľa hotela.

Cesta k Obnove: Od Chátrajúcej Ikony k Národnej Pamiatke
História Obchodného domu Prior a Hotela Kyjev sa začala písať v roku 1960, keď bola vyhodnotená celoštátna verejná architektonicko-urbanistická súťaž na obchodno-spoločenské centrum na Kamennom námestí v Bratislave. Zapojili sa do nej desiatky architektov z celej republiky. Samotná realizácia projektu bola následne rozdelená do troch etáp. Ako prvá bola zrealizovaná etapa zahŕňajúca trojuholníkový objekt OD Prior. Stalo sa tak v rokoch 1964 - 1968. K výstavbe samotného Hotela Kyjev následne prišlo v rozmedzí rokov 1968 - 1973. Odvtedy patria budovy bývalého Hotela Kyjev a Obchodného domu Prior medzi výrazné architektonické dominanty Bratislavy. Na začiatku svojho fungovania patril Hotel Kyjev medzi najvyhľadávanejšie ubytovacie zariadenia v Bratislave. Budova bývalého hotela disponuje 19 nadzemnými podlažiami a dosahuje výšku 65 metrov. O budúcnosti Hotela Kyjev sa aktívne hovorí už viac ako dve desaťročia. V roku 2004 sa majiteľom objektu stal developer Lordship. Spoločnosť odvtedy aktívne rozvíja predstavy o budúcej podobe a využití objektu. V roku 2007 však zvažovala aj úplnú asanáciu objektu, čo vyvolalo odpor medzi odbornou aj laickou verejnosťou. Plány developera pred časom nabúralo aj vyhlásenie Obchodného domu Prior a Hotela Kyjev za národné kultúrne pamiatky.
Pripravu rekonštrukcie budovy bývalého hotela Kyjev na viac ako dva roky prerušilo konanie o vyhlásení komplexu budov na Kamennom námestí za národnú kultúrnu pamiatku. Aktuálne pokračujeme v príprave projektu v súlade s novými podmienkami pamiatkovej ochrany. Obnovou hotela Kyjev chce developer Lordship priniesť kvalitný verejný priestor, zameraný na odklon áut do podzemia. Je však zjavné, že investor bude musieť budovy obnoviť tak, aby nestratili svoju podobu. Oznámenie hovorí o modernizácii 19-podlažného hotela, vrátane dvojposchodovej masívnej podnože, ktorá ho spája s OD Prior, ktorý vlastní reťazec Tesco. Funkcia hotela sa meniť nebude, pribudne však obchod a služby, istá je tiež reštaurácia. Vzniknú aj nové parkovacie miesta, teda priestor v blízkosti hotela môže získať lepšiu organizáciu aj tvár. Získaniu stavebného povolenia pre rekonštrukciu ikonického hotela predstavuje zásadný míľnik, ktorý po rokoch neistoty približuje obnovu jednej z najvýraznejších modernistických stavieb v Bratislave.

Nový Koncept: Mix Funkcií a Verejných Priestorov
Zóna je roky chaotická, vizuálne ju rozbíjajú reklamy, nesúrodé prevádzky, či zlý stav nielen budov, ale aj chodníkov a námestí. Napriek tomu, že okolie stavieb nepôsobí lákavo, postranná časť Prioru sa stala centrom výberovej kávy a socializácie - priestory využíva kaviareň a bar, ktorých nájomníci interiéry zrekonštruovali. Samotný hotel a obchodný dom zostali opotrebované. Finálny koncept vyšiel z viacerých debát s mestom aj aktivistami, pričom investor upustil od veľkých plánov a ukázal viac menej rekonštrukciu hotela ako aj úpravu námestí medzi ním a obchodným domom. Zmeny sa dotknú najmä interiéru a dispozície priestoru.
Prvé podlažie pod zemou slúžilo ako technické zázemie, po novom z neho bude parkovanie so skladmi. Prvé podlažie bude fungovať ako zázemie s obchodmi, prevádzkami, reštauráciou ale aj recepciou hotela. Avizované je už zachovanie hlavného vstupu, rovnako ako kazetový drevený strop nad kruhovým schodiskom. Na treťom poschodí zostane bar, len sa upraví jeho rozloženie.

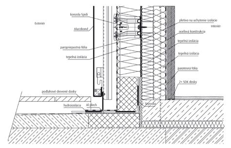
O poschodie vyššie už bude výhradne ubytovanie, namiesto technických miestností vznikne 16 izieb. Od piateho až po 18. podlažie veľa zmien neprebehne, počet izieb hotela sa však zvýši odstránením skladov, či toaliet. V pláne je tiež obnova fasády hotela Kyjev. Plášť nahradia novým s podobným vzhľadom, no zachovajú hnedé rastrovanie výplní okien. Hoci celú budovu preto nebude možné zatepliť, investor sa rozhodol pre náročný krok - druhé poschodie, ktoré je obložené travertínom, zateplí a následne opravený obklad vráti naspäť.
Ambíciou developera je spraviť z Kamenného námestia dôstojnú súčasť mesta, keďže teraz ním väčšina ľudí iba rýchlo prejde. „Pre tento zámer dlhodobo cítime aj podporu verejnosti.“ Narážal pritom na prieskum agentúry MNFORCE z pred troch rokov, ktorý prebehol na vzorke 500 Bratislavčanov.
Súčasťou projektu má byť nový parčík - Námestie umelcov, vyplnenie prázdnych plôch bývaním, ale aj premena bytových domov, ktoré chátrajú. S týmito prácami Lordship už začal na Cintorínskej ulici, kde je viacero bytoviek na pozemkoch, ktoré vlastní. „Prvú fázu chceme dokončiť do konca tohto roka, ďalšiu v priebehu budúceho.“ Návrh od Compass Architekti rešpektuje existujúcu urbanistickú štruktúru a nahrádza súčasné parkovisko peším verejným priestorom so zeleňou. Zachované zostanú tri stromy, pribudne jedenásť nových, ako aj dlažba z betónu a žulových kociek a nový mestský mobiliár. Úpravami prejde aj rampa do podzemia, vrátane nového povrchu, osvetlenia a čiastočného odstránenia. Domy na Cintorínskej, dlhodobo zanedbané, investor postupne obnoví, v prieluke zas vybuduje nový. Revitalizácia územia má byť dokončená do konca roka 2027. Výhľadovo sa očakáva výstavba aj na mieste parkoviska na Špitálskej ulici.
Lousy Auber nám priblížil dielo na Hoteli Kyjev v Bratislave
Pamiatková Ochrana a Jej Vplyv na Rekonštrukciu
Vlastníkom budovy je od roku 2004 spoločnosť Lordship. Napriek tomu, že Pamiatkový úrad SR ešte v roku 2013 rozhodol, že polyfunkčný objekt, ktorý tvorí hotel Kyjev s OD Prior, nebude vyhlásený za NKP, vydal v máji 2023 rozhodnutie o vyhlásení za NKP. Dôvodom mala byť ochrana historickej, spoločenskej, urbanistickej, architektonickej, výtvarnej, umelecko-remeselnej a technickej hodnoty. Developer sa následne v polovici júna 2023 voči rozhodnutiu pamiatkarov odvolal. Ministerstvo kultúry ako odvolací orgán vydalo rozhodnutie o potvrdení vyhlásenia za NKP koncom júna 2025, právoplatnosť nadobudlo v prvej polovici júla.
Spoločnosť SK Centre, blízka spoločnosti Lordship, by tak v krátkom čase mohla začať s prestavbou a modernizáciou objektu, spojenou s obnovením prevádzky krátkodobého ubytovania. To bude dominantnou funkciou, doplnené bude o retailové prevádzky a služby vrátane reštaurácie. Budova s 19 nadzemnými podlažiami sa v súčasnosti nachádza vo výrazne opotrebovanom stave. Potrebná je teda komplexná obnova z hľadiska prevádzky aj vzhľadu. Pripravované zásahy zahŕňajú dispozičné, technické aj technologické úpravy.
Na prvom podzemnom podlaží, ktoré pôvodne plnilo najmä technickú funkciu, sa realizujú rozsiahle búracie práce. Po obnove bude slúžiť na parkovanie, ako aj technické zázemie a skladové priestory. Na prvom nadzemnom podlaží dôjde k odstráneniu vybraných deliacich konštrukcií a vzniku nových obchodných jednotiek, reštaurácie a recepcie. Zachovaný zostane hlavný vstup, rovnako aj pôvodný drevený kazetový podhľad v priestore kruhového schodiska a recepcie. Na treťom nadzemnom podlaží zostane zachovaná funkcia baru, upraví sa však jeho dispozícia. Terasa na tomto podlaží bude po rekonštrukcii slúžiť ako verejne prístupná pobytová zóna.
Štvrté nadzemné podlažie, pôvodne technické, získa novú funkciu v podobe 16 ubytovacích jednotiek. Na typických podlažiach od piateho po osemnáste sa dispozícia výrazne nemení. Devätnáste nadzemné podlažie slúžilo pôvodne ako technické zázemie a wellness s malým ochladzovacím bazénom. V rámci obnovy budú odstránené chladiace veže a nahradené prístavbou, čím vznikne osem nových ubytovacích jednotiek. Obvodové výplne výškovej budovy nahradia nové, kvalitnejšie prvky s pôvodným rastrom a podobným materiálovým riešením, čo ale tamer naisto znamená odstránenie nepôvodnej umeleckej úpravy od Lousyho Aubera z roku 2018. Podhľady konzoly na prvom nadzemnom podlaží sa odstránia a po sanácii tepelných mostov nahradia novými, ktoré budú rešpektovať pôvodný vzhľad. Technické zariadenia budovy budú kompletne vymenené.
„Definitívny dosah rozhodnutia MK SR na projekt bude známy až po vydaní všetkých povolení. Tie následne určia aj rozsah prípadných zmien v architektonickom návrhu,“ skonštatoval Gelinger pripomínajúc, že rozhodnutie, ktoré prišlo po viac ako dvoch rokoch, má na projekt významný negatívny dosah. V oblasti povoľovacích procesov má spoločnosť k dispozícii záväzné stanovisko bratislavského magistrátu k rekonštrukcii objektu. Ostatné povoľovacie konania sa budú odvíjať od ďalšieho postupu dotknutých orgánov.

Budúcnosť Kamenného Námestia: Od Hanby k Živej Srdci Mesta
Hotel Kyjev patrí medzi významné modernistické dominanty Bratislavy. V priebehu rokov sa jeho budúcnosť stala predmetom diskusií, pričom sa objavili aj úvahy o úplnej asanácii objektu. Prípravy na jeho obnovu zároveň spomalilo vyhlásenie Hotela Kyjev a Obchodného domu Prior za národné kultúrne pamiatky. Dnes rekonštrukcii, o ktorej sa hovorí už roky, nič nebráni v ceste. Projekt rekonštrukcie polyfunkčného objektu Rajská 2 získal 12. 3. Podľa stavebného povolenia predstavuje rekonštrukcia polyfunkčného objektu na Rajskej 2, známeho ako bývalý Hotel Kyjev, komplexnú obnovu výrazne opotrebovanej budovy so zachovaním jej pôvodného architektonického výrazu. Objekt, ktorý je od roku 2025 národnou kultúrnou pamiatkou, si ponechá svoj charakter ubytovacieho zariadenia, no prejde zásadnými dispozičnými aj technickými úpravami.
Významné zmeny sa preto dotknú najmä vnútorného usporiadania budovy. Podzemné podlažie bude po odstránení existujúcich konštrukcií prestavané na parkovanie a technické zázemie, pričom v časti objektu vznikne aj nové medzipodlažie. Druhé nadzemné podlažie sa transformuje z nevyužívanej spoločenskej zóny na ubytovacie jednotky doplnené o coworking, čitáreň či priestor na jogu. Ďalšie podlažia prejdú kombináciou menších aj zásadnejších úprav. Na treťom podlaží zostane zachovaný bar s upravenou dispozíciou a terasa sa premení na pobytovú a čiastočne zelenú zónu s novými funkciami. Vyššie podlažia si do veľkej miery zachovajú pôvodné riešenie, no doplnia sa nové izby vrátane ubytovania pre personál. Vrchné časti objektu prinesú ďalšie rozšírenie kapacít a modernizáciu technológií. Na najvyššom podlaží vzniknú nové ubytovacie jednotky namiesto technológie a wellnessu, pričom dôjde aj k prístavbe. Strechy bývalého Hotela Kyjev budú kompletne obnovené a doplnené o nové technické zariadenia.
Rekonštrukcia sa do určitej miery dotkne aj fasády a vonkajšieho vzhľadu budovy. Všetky výplňové konštrukcie budú nahradené novými, kvalitnejšími prvkami pri zachovaní pôvodného členenia. Kamenné a travertínové obklady prejdú obnovou - poškodené časti sa repasujú alebo nahradia, pričom sa doplnia aj chýbajúce prvky. „Sme pripravení na citlivú obnovu nielen samotnej budovy, ale aj okolia Kamenného námestia, ktoré by sa mohlo stať opäť živým centrom mesta. Veríme, že ide aj o verejný záujem,“ uviedol Rostislav Novák, výkonný riaditeľ Lordshipu.
Hoci verejnosť sa pri dvojici brutalistických stavieb od Ivana Matušíka z prelomu 70. rokov rozdelila na dva názorové tábory, vo všeobecnosti prevažoval príklon k ich záchrane. Jednou z nich bolo aj ich úplne zbúranie, čím by ustúpili polyfunkčnej stavbe s bývaním. Vlna kritiky obyvateľstva však prišla takmer okamžite a investor musel hľadať menej agresívne riešenia. Spoločnosť Lordship, ktorá má dlhodobo v pláne obnovu hotela Kyjev i revitalizáciu okolia, pokračuje v príprave komplexnej rekonštrukcie budovy.

„Prípravu rekonštrukcie budovy bývalého hotela Kyjev na viac ako dva roky prerušilo konanie o vyhlásení komplexu budov na Kamennom námestí za národnú kultúrnu pamiatku. Aktuálne pokračujeme v príprave projektu v súlade s novými podmienkami pamiatkovej ochrany. Obnovou hotela Kyjev chce developer Lordship priniesť kvalitný verejný priestor, zameraný na odklon áut do podzemia. Je však zjavné, že investor bude musieť budovy obnoviť tak, aby nestratili svoju podobu. Oznámenie hovorí o modernizácii 19-podlažného hotela, vrátane dvojposchodovej masívnej podnože, ktorá ho spája s OD Prior, ktorý vlastní reťazec Tesco. Funkcia hotela sa meniť nebude, pribudne však obchod a služby, istá je tiež reštaurácia. Vzniknú aj nové parkovacie miesta, teda priestor v blízkosti hotela môže získať lepšiu organizáciu aj tvár.“
Developer sa následne v polovici júna 2023 voči rozhodnutiu pamiatkarov odvolal. Ministerstvo kultúry ako odvolací orgán vydalo rozhodnutie o potvrdení vyhlásenia za NKP koncom júna 2025, právoplatnosť nadobudlo v prvej polovici júla. Developer v minulosti viackrát deklaroval, že je pripravený na citlivú obnovu budovy, tvrdenia o búraní odmietol. V pláne je obnova hotela slúžiaceho na krátkodobé a strednodobé ubytovanie s prispôsobením interiéru a fasády súčasným bezpečnostným a technickým normám. Súhlasil tiež so zachovaním prvkov, ktoré dávajú podľa neho prevádzkový zmysel, nachádzajú sa v objekte a sú pamiatkovo hodnotné. Okrem samotnej budovy má v pláne aj revitalizáciu a „oživenie“ okolia Kamenného námestia v Bratislave. Jedinečná pamiatka Bratislavy môže ísť do rekonštrukcie. Budúcnosť hotela Kyjev a priľahlého priestoru patrí k najdlhšie diskutovaným bratislavským témam. Postupne chátrajúca dominanta centra mesta spolu s dezolátnymi verejnými priestormi v jej susedstve je nielen hanbou, ale aj definíciou nevyužitého potenciálu lokality. Dlhoočakávanej rekonštrukcii hotela Kyjev po rokoch čakania dnes už nič nebráni. Zverejnené totiž stavebné povolenie na obnovu polyfunkčného objektu Rajská 2, teda bývalého hotela.
Námestie umelcov zdroj Lordship Vizualizácia nového Námestia umelcov pri Hoteli Kyjev. Súčasťou projektu má byť nový parčík, vyplnenie prázdnych plôch bývaním, ale aj premena bytových domov, ktoré chátrajú. S týmito prácami Lordship už začal na Cintorínskej ulici, kde je viacero bytoviek na pozemkoch, ktoré vlastní. „Prvú fázu chceme dokončiť do konca tohto roka, ďalšiu v priebehu budúceho.“ Za návrhom parkového námestia stoja Compass Architekti, pričom cieľom bolo nahradiť parkovisko v zlom stave priestorom na oddych medzi stromami. Zachová už existujúce stromy, ku ktorým pribudne desiatka ďalších a zjednotí aktuálne rozbitý povrch. Úpravami prejde aj rampa do podzemia, vrátane nového povrchu, osvetlenia a čiastočného odstránenia. Domy na Cintorínskej, dlhodobo zanedbané, investor postupne obnoví, v prieluke zas vybuduje nový. Revitalizácia územia má byť dokončená do konca roka 2027. Výhľadovo sa očakáva výstavba aj na mieste parkoviska na Špitálskej ulici.
tags: #wbs #rekonstrukcia #hotel