Diplomová práca z Fakulty stavebnej STU v Bratislave predstavila ambiciózny projekt urbanistickej koncepcie nového obytného okrsku v historicky významnom bieloruskom meste Brest. Projekt, ktorý bol ocenený v národnom kole súťaže Isover Multi Comfort House a nominovaný na Cenu profesora Lacka, priniesol analytický prístup a dôsledné riešenie prevádzky a verejných priestorov. Hlavným cieľom bolo navrhnúť harmonické, kvalitne fungujúce a udržateľné obytné prostredie s dôrazom na začlenenie do existujúcej krajiny a integráciu obnoviteľných zdrojov energie.

Kontext a lokalita projektu
Obytná štvrť „Krasny Dvor“ sa nachádza v juhovýchodnej oblasti mesta Brest, na periférii, približne 7 km od centra mesta. Lokalita je charakteristická prítomnosťou vodného elementu v podobe jazier a rieky Muchavec, ako aj bohatou existujúcou zeleňou. Návrh urbanistickej koncepcie reflektoval historický vývoj sídelných štruktúr, prírodný potenciál územia a plánovanú novú rýchlostnú komunikáciu smerujúcu z Varšavy do Moskvy.
Pôvodný stav riešeného pozemku zahŕňal rastlú, neudržiavanú zeleň lesného charakteru a nevyužívané objekty bývalých vojenských jednotiek, ktoré boli v rámci novej výstavby zbúrané. Terén pozemku je rovinatý, bez výraznejších členitostí. V súčasnosti sa na pozemku ani v jeho blízkosti nenachádzajú podzemné ani nadzemné inžinierske siete, rovnako ako žiadne infraštruktúrne prvky, ktoré by svojim ochranným pásmom ovplyvňovali výstavbu. Avšak, nový územný plán počíta s výstavbou 4-prúdovej rýchlostnej komunikácie, ktorej ochranné pásmo bude siahať až po danú parcelu. Na parcele nebol vykonaný geologický ani hydrogeologický prieskum, čo si vyžiada dodatočné zisťovanie pred realizáciou.

Urbanistické riešenie a filozofia návrhu
Návrh urbanistických štruktúr bol ovplyvnený existujúcou zeleňou, kde pôvodne navrhované štruktúry boli rozčlenené medzi solitéry zelene. Tento princíp pokračoval aj pri samotných objektoch, ktoré sú navrhnuté ako monobloky s dôsledným rozpadom spodných nadzemných podlaží. Hmota je v oblasti parteru „odhmotnená“ o časti, kde sa nachádzajú vysoké dreviny, čím sa objekt akoby vznáša nad terénom a maximálne rešpektuje existujúcu zeleň. Podobný princíp odhmotnenia je aplikovaný aj na najvyššie podlažie, kde sa vplyv oblohy, vnímanej ako prírodný prvok, prejavuje v podobe strešného skleníka namiesto typického podlažia.
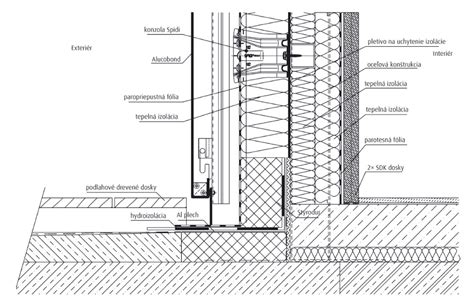
Parter aj strešný skleník sú navrhnuté z difúznych polykarbonátových dosiek, ktoré vizuálne rešpektujú fasádu a vďaka priebežnému napojeniu vytvárajú pocit celistvosti. Toto uzatvorenie dodáva objektu vzhľad kvádra napriek jeho odhmotneniu vplyvom zelene. Zníženie faktora tvaru budovy (pomer plochy teplovýmennej obálky k objemu) na f = 0,33 zlepšuje energetickú bilanciu celého objektu. Tektonika fasády je zjednotená symetrickým rastrom okien, čo prispieva k vnímaniu hmoty objektu ako celku, napriek dekonštruktívnemu prístupu k hmote vplyvom skleníkov a priestorov tretieho druhu.
Priestory tretieho druhu, navrhnuté primárne z funkčného hľadiska, svojou polohou aktivizujú fasádu objektu a tvoria dynamický prvok rozmiestnený na priečelí zdanlivo náhodne. Ich umiestnenie v horizontálnom a vertikálnom smere je však závislé od výhľadov do okolia. Navrhované bytové domy sú orientované v ortogonálnom smere s pôdorysnými proporciami ekvivalentnými proporciám vybranej parcely. Jedinou výnimkou je objekt, ktorý premosťuje novo-navrhovaný riečny kanál a prepája dva bytové domy.

V rámci riešeného územia bolo navrhnutých päť objektov, ktorých poloha je určená odstupovými vzdialenosťami a prirodzenou zložkou okolia. Objekty sú rovnobežné s rastrom parciel a symetricky vzdialené, čím sa medzi budovami vytvárajú dostatočné priechodné priestory s rešpektovaním svetlo-technických pomerov. Územie je charakteristické vodným elementom v podobe jazier s brezovým porastom, ktoré boli novou zástavbou nielen zachované, ale aj podporené. V rámci územia bol navrhnutý riečny tok prepájajúci existujúce jazerá, čím sa zabezpečuje odvodnenie územia smerom do rieky Muchavec.

Pozemok nie je oplotený a je prístupný širokej verejnosti. Na západnej strane sa nachádza detské ihrisko napojené na obslužnú komunikáciu s parkovacím státím. Na južnej strane je navrhnutá plocha na pestovanie plodín, ktorá je súčasťou hierarchie verejných priestorov. Východná a severná strana pokračuje bytovou zástavbou s priestormi medzi budovami, ktoré sú spevnené.
Koncept dispozície a funkčné priestory
Hlavnou myšlienkou konceptu dispozície bolo vytvoriť priestory pre obyvateľov, ktoré by zároveň priniesli novú kvalitu do bývania a ponúkli plochy s rôznorodým využitím. Jedným z kľúčových prvkov sú skleníky, ktoré umožňujú pestovanie vlastného ovocia a zeleniny. Toto bývanie je koncipované ako pokus o návrat ornej pôdy obyvateľom, ktorých pôdy boli znehodnotené v dôsledku černobyľskej katastrofy. Skleníky v parteri rešpektujú existujúcu zeleň a na streche udržiavajú vegetáciu v ploche ekvivalentnej zastavanej ploche budovy.
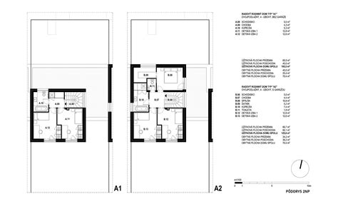
Objekt je navrhnutý ako 5-podlažný s prístavbou strešného skleníka. Na prvom nadzemnom podlaží je časť priestoru vyhradená pre polyfunkciu, zatiaľ čo ostatné plochy sú určené na bývanie a oddych. Suterén sa nenachádza z dôvodu vysokej hladiny podzemnej vody. V rámci územia sú navrhnuté garážové domy v blízkosti bytových domov.
Vstup do objektu je umiestnený na každej svetovej strane v nadväznosti na funkciu, do ktorej sa vstupuje. Bytová časť je navrhnutá vo vyššom štandarde s ohľadom na výbornú polohu v blízkosti jazera, infraštruktúry a občianskej vybavenosti.
Rodinný dům 5+1 na prodej, po rekonstrukci, garáž, zahrada, ovocný sad, obec Kašnice, Bravis Reality
Prvé nadzemné podlažie
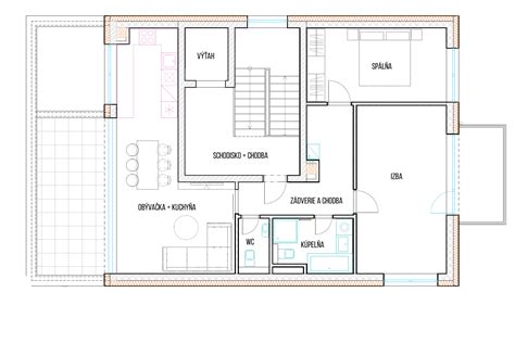
Príznačné pre toto podlažie je prechod cez objekt zabezpečený átriom, ktoré vzniklo rešpektovaním existujúcej vysokej zelene. V lete slúži átrium na prevetrávanie a v zime ako nárazníková zóna s využitím skleníka na vykurovanie pomocou tepelného čerpadla. Hlavný vchod do bytovej časti je orientovaný na západ a je priamo prístupný z obslužnej komunikácie. Vo vstupnom vestibule sa nachádza recepcia slúžiaca aj ako bezpečnostná služba. Z vestibulu je možný prístup cez hlavný vchod, miestnosť na bicykle a zádverie pre zamestnancov. Z vestibulu vedie komunikácia k schodisku a výťahu ústiacim do bytových jednotiek a na strechu. Pod schodiskom je miestnosť pre upratovačku s výlevkou.
Vstup do miestnosti na bicykle a do rozvodne je orientovaný na sever. V rozvodni sú umiestnené rozvádzač elektrickej energie, akumulátor elektrického prúdu a centrálne merania a regulácie. Cez rozvodňu sa vchádza do technického zázemia (THZ), kde sa nachádzajú tepelné čerpadlá, expanzná nádrž, zásobník teplej úžitkovej vody, akumulačný zásobník, rozdeľovač pre plošné vykurovanie a regulačný ventil. Pri miestnostiach THZ a rozvodni sa na východnej strane nachádza sklad s dielňou s vlastným vstupom v nadväznosti na skleníky a záhrady.
V južnej časti bytového domu sa nachádza polyfunkčná časť bez presnej špecifikácie, ktorá môže slúžiť ako predajňa, butik, supermarket, kníhkupectvo a pod. Polyfunkčná časť je rozdelená na dva priestory, ktoré môžu fungovať samostatne alebo ako jedna prevádzka, prepojené vnútorným priestorom átria. Vstup pre zamestnancov sa nachádza na západnej strane.

Dispozície bytov a priestory tretieho druhu
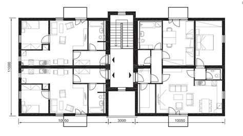
Plošné bilancie bytov sú vyššie vzhľadom na atraktívnu lokalitu. V dispozíciách bytových jednotiek bola snaha oddeliť súkromnú (nočnú) a spoločenskú (dennú) časť. Do druhého nadzemného podlažia preniká átrium v dvoch miestach, kde sú orientované niektoré miestnosti bytov. V tomto podlaží boli navrhnuté dva trojizbové byty s priamym prístupom zo schodiska cez chodbu do vlastného zádveria. Pre každý byt prislúcha pivničný priestor. V zádverí každého bytu sú vysoké skrine, pričom v jednej z nich je práčka. Spoločenská časť je orientovaná na západ, súkromná na východ a hygienické priestory na sever.
Rozdiel medzi južným a severným bytom spočíva v situovaní priestorov do átria. V severnom byte „B“ sú kontaktnými priestormi s átriom spálňa a zádverie, v južnom byte obývacia časť s jedálňou, chodba a spálňa. V oboch bytoch sa nachádza komora v kuchyni, no v južnom byte je kuchyňa navrhnutá s centrálnou manipulačnou plochou a v severnom byte v paralelnom prevedení. Priestor pre pohotovostné WC vznikol v rámci zádveria. Kúpeľňa je určená pre súkromnú časť. Spojovacím prvkom je chodba ústiaca do priestoru tretieho druhu (skleník). Medzi skleníkom a chodbou sa nachádza medzipriestor s rekuperačnou jednotkou a úložným priestorom na sadeničky a semená.

Do tretieho nadzemného podlažia zasahuje átrium v rovnakých miestach ako do druhého podlažia. Rozdiel v dispozícii spočíva v priestoroch tretieho druhu. V tomto podlaží je využitá plochá strecha skleníka zo druhého podlažia ako balkón s možnosťou výsadby zelene. V južnom byte je skleník súčasťou spálne a medzipriestor môže slúžiť ako šatník.

Na štvrtom podlaží boli navrhnuté tri 3-izbové byty, ktorých typológia je podobná bytom na nižších podlažiach, avšak átrium sa už nepreniká. V severnom byte „B“ je skleník integrovaný do obývacej miestnosti spojenej s kuchyňou. V súkromnej zóne chodba prepája izbu, spálňu, práčovňu a kúpeľňu. V južnom byte „A“ je dispozícia obdobná, bez skleníka. Vo východnom byte „C“ sa nachádza balkón nad skleníkom tretieho podlažia, navrhnutý v rámci spoločenskej zóny. Kuchyňa je v tvare „U“ s optickým kontaktom s jedálenským stolom a obývacou časťou.

Vzhľadom na najvyššie podlažie, piate podlažie je najlukratívnejšie s väčšími výmerami a benefitmi v podobe terasy. Severný byt „B“ má podobne riešené miestnosti ako byty pod ním, pričom balkón je integrovaný do obývacej miestnosti. Južný byt „A“ disponuje priestrannou terasou orientovanou na juh. Východný byt „C“ má taktiež priestranný balkón, ktorý je prístupný z obývacej časti.

Tento projekt predstavuje komplexný prístup k navrhovaniu moderného bývania, ktorý kombinuje udržateľnosť, funkčnosť a estetiku, pričom kladie dôraz na integráciu do prírodného prostredia a vytváranie kvalitných verejných priestorov pre komunitu.
tags: #prefabrikovany #pivnicny #segment