Bratislava, ako hlavné mesto Slovenskej republiky, neustále priťahuje nových obyvateľov a ponúka široké spektrum možností bývania. V tomto dynamickom prostredí sa často objavujú ponuky na predaj či prenájom nehnuteľností, ktoré reagujú na rozmanité potreby trhu. V súčasnosti sa na trhu s realitami objavuje ponuka predaja 4-izbového bytu, situovaného v strategickej lokalite na uliciach Odbojarov a Kalinciakova. Táto oblasť, známa svojou dostupnosťou a občianskou vybavenosťou, predstavuje atraktívnu voľbu pre rodiny, ktoré hľadajú priestranné a komfortné bývanie s dobrou infraštruktúrou.

Charakteristika a Dispozícia Nehnuteľnosti
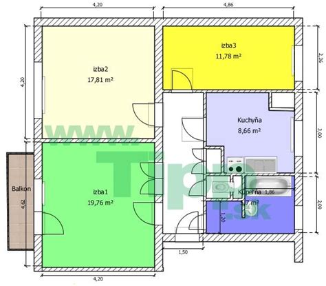
Ponúkaný 4-izbový byt na uliciach Odbojarov a Kalinciakova je v pôvodnom stave, avšak s vykonanými čiastočnými úpravami, ako sú plastové okná. Táto skutočnosť predstavuje pre potenciálnych kupujúcich príležitosť na realizáciu vlastných predstáv o bývaní a modernizáciu podľa individuálnych potrieb a vkusu. Celková plocha bytu je 83,35 m², pričom samotná podlahová plocha bytu dosahuje 77,62 m². K bytu prislúcha aj loggia o veľkosti 4,45 m² a balkón s rozlohou 1,28 m², ktoré poskytujú dodatočný priestor na relaxáciu či pestovanie rastlín.
Dispozícia bytu je navrhnutá s ohľadom na funkčnosť a komfort. Nachádza sa na prvom poschodí päťposchodového bytového domu, čo môže byť výhodou pre tých, ktorí preferujú bývanie bez nutnosti častého využívania výťahu. Vstupná chodba je priestranná a vybavená staršími skriňami, ktoré ponúkajú úložný priestor. Byt pozostáva z kuchyne, troch samostatných, nepriechodných izieb a obývacej izby s prístupom na loggiu. Samostatná kúpeľňa s vaňou a samostatné WC zabezpečujú praktické využitie priestoru. Orientácia bytu je na východ a západ. Obývacia izba s loggiou je orientovaná do dvora, kde je možnosť parkovania, zatiaľ čo ostatné izby a kuchyňa smerujú do ulice.

Lokalita a Jej Výhody
Lokalita na uliciach Odbojarov a Kalinciakova v Bratislave je dlhodobo vyhľadávaná pre svoju výbornú dopravnú dostupnosť a kompletnú občiansku vybavenosť. V bezprostrednej blízkosti sa nachádzajú zastávky mestskej hromadnej dopravy, ktoré umožňujú rýchle a pohodlné spojenie s inými časťami mesta. V okolí nájdeme tiež základné a materské školy, obchody, supermarkety, polikliniku, lekárne, reštaurácie a kaviarne, čo zabezpečuje komfortné bývanie pre všetky vekové kategórie. Blízkosť parkov a oddychových zón poskytuje možnosti na aktívny oddych a trávenie voľného času v prírode. Táto kombinácia faktorov robí z danej lokality ideálne miesto pre rodiny s deťmi, ale aj pre jednotlivcov a páry, ktoré ocenia mestský život s možnosťou úniku do zelene.
Potenciál Rekonštrukcie a Investičná Príležitosť
Byt v pôvodnom stave s plastovými oknami predstavuje vynikajúcu investičnú príležitosť pre tých, ktorí chcú nadobudnúť nehnuteľnosť s potenciálom na rekonštrukciu podľa vlastných predstáv. Možnosť úpravy dispozície, výberu moderných materiálov a zariaďovacích predmetov umožňuje vytvoriť bývanie presne podľa individuálnych potrieb a životného štýlu. Rekonštrukcia môže nielen zvýšiť komfort bývania, ale aj výrazne zhodnotiť samotnú nehnuteľnosť. Predaj bytu bez ťarchy navyše zjednodušuje celý proces kúpy a umožňuje rýchlejšie nadobudnutie vlastníctva.

Trh s Bytmi v Bratislave: Konkurencia a Dopyt
Trh s nehnuteľnosťami v Bratislave je charakterizovaný vysokým dopytom po bytoch, najmä v atraktívnych lokalitách s dobrou infraštruktúrou. Ponuka 4-izbových bytov je často obmedzená, čo zvyšuje ich hodnotu a atraktivitu pre kupujúcich hľadajúcich priestranné rodinné bývanie. Priemerné ceny bytov v Bratislave sa líšia v závislosti od lokality, veľkosti, stavu nehnuteľnosti a vybavenosti.
V ostatnom období bolo možné na trhu zaznamenať rôzne ponuky prenájmu bytov a kancelárskych priestorov s cenovkou okolo 600,- € mesačne. Tieto ponuky zahŕňajú široké spektrum nehnuteľností, od 1-izbových bytov cez 2-izbové byty, apartmán-kancelárie, až po výrobné a polyfunkčné komerčné priestory v rôznych lokalitách po celom Slovensku. Príklady zahŕňajú prenájom 2-izbového bytu v Žiline - Lietavskej Závadke (89m2 + 12m2 terasa), 1,5-izbový byt v Slovenskom Grobe (36m² + 9m² balkón), kancelársky priestor v Trnave (50 m²), apartmán-kanceláriu v Prešove (50m²), 2-izbový byt v Centre Bratislavy (27,7 m² + 1,8 m² balkón), kompletne zariadený 2-izbový byt v Spišskej Novej Vsi (69 m²), nový 2-izbový byt v Trnave - Cukrovar (57,22 m² + loggia), priestranný 2-izbový byt v Bratislave - Vrakuňa (51 m²), výrobný priestor v Nových Zámkoch (162 m²), novú kanceláriu v Sobranciach (60m²), obchodný priestor v Bratislave - Lamač (55 m²), obchodno-kancelársky priestor v Bratislave - Lamač (55 m²), kancelársky priestor v Bratislave Nové Mesto (63 m²), 1-izbový byt v Bratislave - Nové Mesto (34 m²), klimatizovaný priestor v Trebišove (100 m²), zariadený 1-izbový byt v Komárne (38 m²), moderné obchodné priestory v Galante (52 m²), 3-izbový byt v Banskej Belej (90 m²), 2-izbový byt v Martine (70 m²), 3-izbový byt v Púchove (64 m²), 3-izbový byt v Rimavskej Sobote (95 m²), 3-izbový byt v Nových Zámkoch (77 m²), a hľadanie bytov na prenájom v Pezinku. Taktiež bola zaznamenaná ponuka polyfunkčného komerčného priestoru v Komárne (250 m²) a 2-izbového bytu s balkónom v Dunajskej Strede.
Tieto ponuky prenájmu, hoci sa líšia v type a veľkosti nehnuteľnosti, poskytujú istý obraz o cenovej hladine na trhu s prenájmami. Predajná cena 4-izbového bytu na Odbojarov a Kalinciakova bude závisieť od viacerých faktorov, vrátane aktuálnej trhovej situácie, stavu nehnuteľnosti po rekonštrukcii a očakávaní predávajúceho. Je dôležité poznamenať, že ceny bytov na predaj sa zvyčajne pohybujú na inej úrovni ako ceny prenájmu.

Proces Kúpy a Predaja Nehnuteľnosti
Proces kúpy a predaja nehnuteľnosti na Slovensku je regulovaný právnymi predpismi a vyžaduje si dodržanie určitých krokov. Po nájdení vhodnej nehnuteľnosti je bežné podpísať rezervačnú zmluvu a následne vypracovať kúpnu zmluvu. Kúpna zmluva musí byť vypracovaná v súlade so zákonom a musí obsahovať všetky podstatné náležitosti, ako sú identifikačné údaje predávajúceho a kupujúceho, presný opis nehnuteľnosti, kúpna cena a spôsob jej úhrady. Po podpísaní kúpnej zmluvy nasleduje návrh na vklad vlastníckeho práva do katastra nehnuteľností.
Pri kúpe bytu je dôležité overiť si stav nehnuteľnosti, jej právny stav (či nie je zaťažená hypotékou, vecným bremenom a pod.) a predloženú dokumentáciu. V prípade bytu v bytovom dome je tiež vhodné informovať sa o stave spoločných častí domu a o činnosti správcu.
V prípade predaja bytu bez ťarchy, ako je tomu aj pri ponuke na Odbojarov a Kalinciakova, je proces zjednodušený. Predávajúci však musí zabezpečiť všetky potrebné dokumenty a súčinnosť pri prepise vlastníckeho práva.
Hľadanie Ideálneho Domova: Čo Zvážiť?
Pri hľadaní ideálneho domova je dôležité zvážiť viacero faktorov. Okrem samotnej dispozície a veľkosti bytu, či jeho stavu, je kľúčová aj lokalita. V prípade 4-izbového bytu na Odbojarov a Kalinciakova je jeho výhodou práve strategická poloha v Bratislave, ktorá ponúka vynikajúcu dostupnosť a kompletnú občiansku vybavenosť.
Pre rodiny s deťmi je dôležitá blízkosť škôl a ihrísk. Pre pracujúcich je zase kľúčová dopravná dostupnosť do zamestnania. Milovníci mesta ocenia blízkosť kultúrnych a spoločenských centier, zatiaľ čo tí, ktorí preferujú pokojnejšie prostredie, si nájdu svoje v blízkosti parkov a zelene.
Ponuka 4-izbového bytu na Odbojarov a Kalinciakova predstavuje možnosť pre tých, ktorí hľadajú priestranné bývanie v dynamickej mestskej časti s potenciálom na vytvorenie domova podľa vlastných predstáv. Je to investícia do budúcnosti, ktorá môže priniesť nielen komfortné bývanie, ale aj dlhodobé zhodnotenie.