Realitná kancelária Bosen Group úspešne sprostredkovala predaj dvojizbového bytu v modernom rezidenčnom projekte Slnečnice, konkrétne v zóne Mesto. Tento byt, nachádzajúci sa na ulici Zuzany Chalupovej, predstavuje atraktívnu ponuku pre tých, ktorí hľadajú komfortné bývanie v dynamicky sa rozvíjajúcej lokalite s výbornou občianskou vybavenosťou a dostupnosťou.

Tehlový bytový dom z roku 2018: Kvalita a bezpečnosť
Bytový dom, v ktorom sa byt nachádza, bol skolaudovaný v roku 2018 a je postavený z kvalitných tehlových materiálov. Tento typ konštrukcie zaručuje dobré tepelno-izolačné vlastnosti a zvukovú pohodu. Dom je zateplený, čo prispieva k energetickej efektívnosti a znižovaniu nákladov na bývanie. Pre obyvateľov je k dispozícii podzemné podlažie s garážami, ktoré rieši otázku parkovania. Bezpečnosť je zabezpečená moderným systémom - vstup do bytového domu, garáže aj spoločné chodby sú chránené čipovým a kamerovým zabezpečovacím systémom, čo poskytuje obyvateľom pokoj a istotu.
Dispozícia a vybavenie bytu: Funkčnosť a priestor
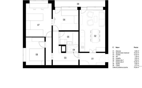
Predmetný byt je dvojizbový s celkovou výmerou 61,51 m², z čoho samotná obytná plocha predstavuje 56,43 m². K bytu prislúcha aj loggia s rozlohou 5,08 m², ktorá ponúka priestor na relaxáciu a vychutnanie si výhľadu. K bytu je tiež možné dokúpiť garážové parkovacie státie s výmerou 12,72 m², čo je v dnešnej dobe veľkou výhodou, najmä v rušných mestských lokalitách. Byt sa nachádza na 7. poschodí z celkových 12 poschodí, čo zaručuje pekný výhľad a zároveň dostatok súkromia. Orientácia bytu je severozápadná, čo znamená, že počas dňa je byt prirodzene osvetlený, pričom sa vyhýba priamemu poludňajšiemu slnku v najteplejších mesiacoch.
Dispozícia bytu je navrhnutá s dôrazom na funkčnosť a oddelenie dennej a nočnej časti. Vstup tvorí dlhá chodba, ktorá elegantne rozdeľuje priestor. Na chodbe je dostatok miesta na vstavaný šatník typu rolldor, ktorý je praktickým riešením na úložný priestor. Oproti vstupu sa nachádza praktická šatník, ktorá je momentálne využívaná ako pracovňa, čo ukazuje flexibilitu priestoru. Súčasťou vstupnej časti je aj samostatné WC, ktoré zvyšuje komfort bývania.
Nočná časť bytu je situovaná v zadnej časti. Nachádza sa tu kúpeľňa vybavená vaňou, práčkou a sušičkou. Spálňa je priestranná a disponuje vlastným rolldorom a francúzskym balkónom, ktorý dodáva miestnosti vzdušnosť a umožňuje prístup na čerstvý vzduch.
Predná časť bytu je venovaná dennej zóne. Tu sa rozprestiera priestranná kuchyňa, ktorá je prepojená s obývacou miestnosťou. Kuchyňa je navrhnutá tak, aby spĺňala nároky moderného bývania a zároveň poskytovala dostatok priestoru na stolovanie, či už pri jedálenskom stole alebo pri barovom pulte. Z kuchyne je tiež prístup na francúzsky balkón.

Lokalita Slnečnice - Zóna Mesto: Moderné mestské bývanie
Bytový dom je situovaný v pokojnej časti sídliska Petržalka, v obľúbenej a vyhľadávanej zóne Mesto projektu Slnečnice. Táto lokalita je známa svojou výbornou dostupnosťou do centra mesta, vzdialenosť je približne 15 minút autom alebo autobusom. Výhodou je aj rýchle napojenie na diaľničnú sieť D4, ktorá umožňuje ľahké spojenie s D2 a R7, a tým aj s okolitými regiónmi a krajinami.
Zóna Mesto Slnečnice je koncipovaná ako plnohodnotná mestská štvrť s kompletnou občianskou vybavenosťou v pešej dostupnosti. Obyvatelia tu nájdu všetko potrebné pre každodenný život: potraviny, útulné kaviarne, reštaurácie, detské parky s oploteným výbehom pre psov, drogériu, lekáreň, obchody s elektronikou a domácimi potrebami. Výborná je aj dostupnosť verejnej dopravy, s autobusovými zastávkami priamo v blízkosti, ktoré zabezpečujú priame linky do starého mesta aj do modernej časti mesta - downtownu. Pre aktívnych ľudí sú k dispozícii rozsiahle cyklotrasy, ktoré umožňujú ekologický a zdravý spôsob dopravy a trávenia voľného času.
Projekt Slnečnice je ideálnou voľbou pre moderných mestských ľudí, ktorí hľadajú kombináciu mestského životného štýlu, komfortu a zelene. Projekt sa neustále rozvíja a ponúka čoraz viac služieb a možností pre svojich obyvateľov.

Projekt Slnečnice: Vízia modernej mestskej štvrte
Projekt Slnečnice predstavuje ambiciózny urbanistický projekt, ktorý mení tvár južnej časti Bratislavy. Cieľom je vytvoriť modernú mestskú štvrť, ktorá bude spĺňať najvyššie nároky na bývanie, prácu a voľnočasové aktivity. Projekt je rozdelený do viacerých zón, pričom Zóna Mesto je jednou z najvýznamnejších, zameranou na vytvorenie plnohodnotného mestského prostredia s kompletnou infraštruktúrou.
Výstavba v Slnečniciach kládla dôraz na kvalitné materiály, moderné architektonické riešenia a udržateľnosť. Okrem bytových domov projekt zahŕňa aj administratívne budovy, obchodné priestory, školy, škôlky a rozsiahle zelené plochy. Blízkosť prírody, ako je lužný les a Dunaj, spolu s výborným dopravným napojením, robí zo Slnečníc atraktívnu lokalitu pre široké spektrum obyvateľov.
V rámci projektu sa objavili aj ďalšie zaujímavé ponuky nehnuteľností, ako napríklad garsónka na Holíčskej ulici s loggiou, 4-izbový byt na Wolkrovej ulici upravený na dve bytové jednotky, či 3-izbový byt s výhľadom na Gessayovej ulici. Tieto ponuky ilustrujú rozmanitosť trhu s nehnuteľnosťami v tejto časti Bratislavy a poukazujú na rôzne možnosti investície či bývania.
Dôležitosť realitných maklérov a ich etický kódex
Realitná kancelária Bosen Group, ako člen Realitnej únie SR, sa riadi jej Realitným kódexom. Tento kódex stanovuje etické zásady a štandardy pre realitných maklérov, čím zabezpečuje transparentnosť, profesionalitu a ochranu záujmov klientov. Dôvera medzi klientom a realitným maklérom je kľúčová pri tak významnom rozhodnutí, akým je kúpa alebo predaj nehnuteľnosti.
Ako by mal pri predaji nehnuteľnosti vyzerať inzerát, aby zaujal záujemcu a neostal bez povšimnutia
V súvislosti s predajom bytu na Zuzany Chalupovej je dôležité vyzdvihnúť prácu realitných maklérov, ktorí zabezpečujú hladký priebeh celého procesu - od prezentácie nehnuteľnosti, cez rokovania s potenciálnymi kupcami, až po asistenciu pri právnom zabezpečení transakcie. V ponukách sa často objavujú informácie o garážových staniach, pivniciach, či dokonca možnostiach dokúpenia ďalších priestorov, čo sú dôležité benefity, ktoré makléri dokážu vhodne komunikovať.
Ceny nehnuteľností v projekte Slnečnice a v širšom okolí Petržalky sa líšia v závislosti od veľkosti, dispozície, stavu a vybavenia bytu, ako aj od konkrétnej lokality a výhľadu. Ponuky ako 2-izbový byt na Vranovskej ulici (62 m²) za 219 000 €, alebo 1,5-izbový byt na Z. Chalupovej (34 m²) za 199 000 €, či kompletne zariadený 2-izbový byt s garážovým státím v Slnečniciach - Zóna Mesto (50,88 m²) za 258 000 €, ukazujú cenové rozpätie na trhu. Každá ponuka má svoje špecifické výhody, či už ide o lokalitu, stav nehnuteľnosti, alebo dodatočné vybavenie ako balkón, lodžia či pivnica.
Predaj bytu na Zuzany Chalupovej v projekte Slnečnice je ukážkou úspešného spojenia kvalitnej novostavby, strategickej lokality a profesionálnej realitnej služby, čo vytvára ideálne podmienky pre moderné mestské bývanie.
tags: #predaj #2izbovy #byt #zuzany #chalupovej