Vytvorenie funkčného a esteticky príjemného pôdorysu domu či kancelárie je proces, ktorý si vyžaduje precíznosť a pozornosť k detailom. Od základných stavebných prvkov, ako sú steny, až po drobné, no dôležité komponenty ako sú dvere a okná, každý prvok hrá kľúčovú rolu v celkovom dizajne a komforte bývania. Moderné technológie a softvérové aplikácie nám dnes umožňujú tento proces zjednodušiť a zefektívniť, čím sa tvorba pôdorysov stáva dostupnejšou aj pre laickú verejnosť.
Základné Stavebné Prvky: Steny ako Kostra Priestoru
Steny tvoria základnú štruktúru každého pôdorysu. Pri ich navrhovaní je dôležité myslieť na ich funkčnosť a umiestnenie s ohľadom na celkové rozloženie priestoru. V softvérových aplikáciách na tvorbu pôdorysov je proces vkladania stien často intuitívny. Po prilepení stien sa zvýraznia ich koncové body, čo uľahčuje ich presné umiestnenie a napojenie. Pevná mriežka môže byť užitočná v pôdorysoch a mapách, kde vždy chcete, aby mriežka zobrazovala rovnaké rozmery. Táto funkcia zabezpečuje, že všetky prvky sú umiestnené vo vzájomne konzistentných vzdialenostiach, čo je kľúčové pre presné kreslenie v mierke.

Softvérové nástroje často ponúkajú možnosť výberu z rôznych typov stien, ktoré môžu simulovať rôzne konštrukčné materiály a hrúbky. Tieto možnosti umožňujú používateľom vytvárať realistickejšie a detailnejšie pôdorysy. Okrem toho, aplikácie umožňujú merať a kresliť presné rozmery pre váš pôdorys, čo umožňuje presné kreslenie v mierke. Táto funkcia je nevyhnutná pre profesionálne vyzerajúce výkresy a pre následné stavebné plánovanie.
Dynamické Prvky: Dvere a Okná ako Funkčné a Estetické Komponenty
Dvere a okná sú neoddeliteľnou súčasťou každého pôdorysu, ktoré nielenže umožňujú prechod medzi miestnosťami a zabezpečujú prirodzené osvetlenie a vetranie, ale zároveň prispievajú k celkovej estetike interiéru aj exteriéru. V procese navrhovania pôdorysu je ich umiestnenie kritické.
Dvere a okná sa automaticky otočia, aby sa zarovnali a prilepili k stene. Táto funkcia výrazne zjednodušuje proces umiestňovania týchto prvkov, čím sa eliminuje potreba manuálneho otáčania a presného zarovnávania. Aplikácie na tvorbu pôdorysov zvyčajne disponujú knižnicou rôznych typov dverí a okien, vrátane ich rozmerov a otváracích mechanizmov, čo umožňuje používateľom vybrať si tie najvhodnejšie pre ich konkrétny projekt.

Najčastejším nedorozumením o vetraní dverí a okien je, že čím väčšie je krídlo okna, tým lepšie je vetranie. V skutočnosti je táto myšlienka nesprávna. Otváranie dovnútra a sklápanie dovnútra sú známe ako najlepší spôsob otvárania okien. Keď je okno otvorené dovnútra, môže zabezpečiť mikrovetranie miestnosti. Okná sú hlavným spôsobom šírenia vnútorného svetla. Vysokovýkonné dvere a okná rozhodujú o komforte bývania v interiéri. Spálňa je hlučná, v daždivých dňoch zatekajú okná, v lete je v dome vypnutá klimatizácia a v zime vždy fúka studený vietor. Tieto situácie vážne ovplyvňujú kvalitu nášho každodenného života. Systémové dvere a okná kombinujú profily, kovanie, sklo, gumené pásy a ďalšie podsystémy dverí a okien, aby vytvorili vysoko výkonné dvere a okná, ktoré integrujú tepelnú izoláciu, zvukovú izoláciu, vzduchotesnosť, vodotesnosť a ďalšie vlastnosti. Prvou voľbou skla je tvrdené sklo s národnou certifikáciou 3C, ktoré ľuďom len tak ľahko neublíži, aj keď sa náhodou rozbije. Kovanie krídlových okien je dôležitým článkom.
Ako nastaviť plastové okná a urobiť základný servis svojpomocne | ANEKO SK
Prostredníctvom inovatívneho dizajnu výkonu dverí a okien, osvetlenia, bezpečnosti a ďalších aspektov sme vytvorili dvere a okná, ktoré kombinujú vysoký výkon a praktickosť a poskytujú spotrebiteľom komplexné riešenie dverí a okien pre celý dom, vďaka čomu je domov krajší.
Integrácia Ďalších Prvkov: Od Elektroinštalácie po Nábytok
Okrem základných stavebných prvkov, pôdorysy zahŕňajú aj ďalšie komponenty, ktoré dodávajú priestoru funkčnosť a charakter. Zo vzorkovnice Steny, plášť a konštrukcia presuňte štrukturálne tvary. Zo vzorkovnice Elektrotechnika a telekomunikačné systémy presuňte nástenné vypínače, zásuvky a iné nástenné prípojky na tvary stien. Uvoľnite tlačidlo myši, keď sa zobrazí tučný štvorec, čo znamená, že symbol je prilepený k stene. Táto možnosť umožňuje používateľom presne umiestniť elektroinštalačné prvky a iné technické vybavenie priamo do návrhu pôdorysu, čím sa zabezpečí ich správne umiestnenie v rámci konečnej stavby.

Aplikácia Home Design and Draw Floor Plan je výkonná a intuitívna aplikácia na vytváranie podrobných pôdorysov v priebehu niekoľkých minút. Táto aplikácia prichádza so širokou škálou funkcií, ktoré vám umožňujú rýchlo a jednoducho navrhnúť svoj vysnívaný dom alebo kanceláriu. Pomocou jednoduchého rozhrania môžete vytvárať steny, pridávať dvere, okná a nábytok a prispôsobovať svoj dizajn farbami, textúrami a vzormi.
Aplikácia Draw Floor Plan a Home Design zjednodušuje návrh vášho dokonalého pôdorysu. Začína to jednoduchým systémom drag-and-drop, ktorý vám umožní rýchlo pridať steny, dvere, okná a nábytok do vášho dizajnu. Svoj pôdorys a návrhy domov si môžete prispôsobiť pridaním textúry, farieb a vzorov. Táto aplikácia tiež obsahuje širokú škálu nástrojov na meranie a kreslenie presných rozmerov pre váš pôdorys. To zaisťuje, že váš návrh je presný a v mierke.
Aplikácia Interior House Designer má tiež výkonné nástroje na meranie a kreslenie, ktoré vám umožňujú presne merať a kresliť presné rozmery pre váš dizajn. Aplikácia tiež umožňuje importovať existujúce CAD súbory alebo obrázky a použiť ich na navrhnutie pôdorysu. Môžete tiež exportovať svoje návrhy domov vo viacerých formátoch vrátane PDF a JPG.
S výkonnými a ľahko použiteľnými nástrojmi aplikácie House Designer a Floor Planner môžete vytvárať podrobné a profesionálne vyzerajúce pôdorysy rýchlejšie a jednoduchšie ako kedykoľvek predtým. S aplikáciou Draw Floor Plan si môžete presne a presne nakresliť svoj vysnívaný dom alebo kanceláriu.
Úprava a Prispôsobenie: Realizácia Vlastných Predstáv
Katalógy projektov rodinných domov často slúžia ako východiskový bod pre budúcich majiteľov domov. Zo skúseností vieme, že mnohí zákazníci si projekt väčšinou upravia podľa vlastných predstáv: úprava rozmerov okien, posun priečok ale i zväčšenie či zmenšenie vonkajších rozmerov. Aby zákazník vedel, koľko ho bude stáť realizácia domu po úpravách, dom naceníme po tzv. Keď budete spokojní s realizačnou cenou po nacenení, tak projekt kompletujeme pre stavebné povolenie. Nie vždy sa podarí vybrať vhodný projekt z katalógu na Váš pozemok, keďže rozmery pozemkov bývajú rôzne a niekedy i dosť špecifické. Najideálnejšie je v tomto prípade, keď už zákazník vie, čo a ako asi chce mať.
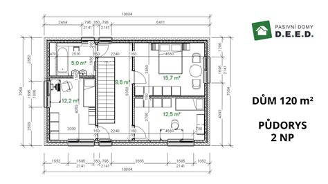
Na obrázku hore je zobrazený typický výkres pôdorysu rodinného domu. Ako vidíme v ľavej časti výkresu je podrobne rozkreslený pôdorys, vpravo hore nájdeme legendu materiálov, čo je v podstate zoznam použitých materiálov graficky rozlíšených podľa typu šrafy. Pod legendou materiálov je tabuľka miestností, ktorá obsahuje názov miestnosti, jej plochu, druh podlahy, povrchovú úpravu stien a stropu. V nasledujúcom texte sa zameriame na rôzne časti uvedeného pôdorysu, aby ste sa rýchlo zorientovali v tých najpodstatnejších veciach.

Aplikácia Draw Home Designer vám tiež umožňuje jednoducho zdieľať svoje plány s priateľmi, rodinou a kolegami. Vďaka tomu môžete ľahko získať spätnú väzbu od ostatných a vykonať zmeny vo svojom dizajne. Môžete si tiež uložiť svoje pôdorysy pre budúce použitie a tiež upraviť svoj domáci náčrt a návrh podlahy pomocou našej aplikácie Draw House Plan.
Príklady Úspešných Dizajnov: Inšpirácia pre Vaše Bývanie
Kategória poschodových domov ponúka širokú škálu možností pre tých, ktorí hľadajú efektívne využitie priestoru. Iste, delenie dennej - spodnej a nočnej-hornej časti má svoj význam a ak to takto máte radi, prezrite si tento domček. Spomínanú dennú - spodnú- časť navštívime prechodom zádverím, kde pre nerušenie bývania je umiestnené i schodisko a osobitné WC. Zasúvacie interiérové dvere nás presunú už priamo do dennej časti, kde sa môžeme rozhodnúť, či pôjdeme do kuchyne alebo do obývačky. Optické predelenie kuchyne s obývačkou sme dosiahli postavením deliacej priečky, ale už bez dverí. Toto riešenie je vcelku zaujímavé. Po celom dni je čas na oddych. Zanecháme deň a schodiskom vyjdeme do oddychovej zóny s tromi veľkými izbami.
Aplikácia Draw Floor Plan má širokú škálu funkcií, ktoré vám pomôžu navrhnúť dokonalý pôdorys. Zahŕňa knižnicu vopred vyrobených predmetov, ako sú steny, dvere a nábytok. To vám umožní rýchlo vytvárať podrobné pôdorysy bez toho, aby ste museli začínať od nuly. Aplikácia Draw Floor Plan tiež obsahuje širokú škálu možností prispôsobenia, ktoré vám umožňujú prispôsobiť si dizajn textúrami, farbami a vzormi. Pomocou našej aplikácie si ľahko a rýchlo vytvoríte ten najlepší dizajn pre váš domov a kanceláriu.
Vylúčenie zodpovednosti: Aplikácia Draw House Planner a Home Designer je úplne bezpečná. Všetky návrhy domov sú uložené vo vašom mobilnom úložisku.