Bungalovy si už dlhé roky držia pozíciu medzi najobľúbenejšími typmi rodinných domov. Ich kúzlo spočíva predovšetkým v pohodlí bývania na jednom podlaží, úplne bez schodov, s prakticky usporiadanými miestnosťami a bezproblémovým prepojením interiéru so záhradou. Tento typ domu je ideálny pre široké spektrum obyvateľov - od mladých rodín s deťmi, ktoré ocenia bezpečnosť a jednoduchý pohyb po dome, až po staršie páry, ktorých potomkovia už opustili rodné hniezdo a hľadajú pokojnejšie a bezbariérové bývanie. V tomto článku sa ponoríme do sveta pôdorysov bungalovov, preskúmame ich variabilitu a predstavíme konkrétne príklady, ktoré demonštrujú ich univerzálnosť a prispôsobivosť rôznym životným štýlom a pozemkom.

Bezbariérovosť a komfort na prvom mieste
Zásadnou a často rozhodujúcou výhodou bungalovu je práve jeho bezbariérový charakter. Absencia schodísk znamená nielen ľahší pohyb pre rodiny s malými deťmi alebo pre seniorov, ale celkovo prispieva k pocitu voľnosti a pohodlia v celom dome. Tento aspekt je dôležitý pri dlhodobom plánovaní bývania, kde komfort a praktickosť zohrávajú kľúčovú úlohu. Pri projektovaní bungalovov sa preto kladie veľký dôraz na správne rozloženie všetkých obytných priestorov na jednej úrovni, čím sa eliminuje akákoľvek fyzická bariéra.
Dispozícia a orientácia: Kľúč k spokojnosti
Pri výbere ideálneho pôdorysu bungalovu je nevyhnutné zohľadniť nielen počet izieb, ale aj orientáciu domu na svetové strany a veľkosť pozemku. Správna orientácia obytných miestností voči slnku má zásadný vplyv na presvetlenie interiéru, tepelnú pohodu počas roka a celkovú energetickú efektívnosť domu. Častým zadaním pri projektovaní je práve otázka: "Na ktoré svetové strany budú nasmerované jednotlivé miestnosti?", čo naznačuje dôležitosť tejto problematiky.
Podľa našich skúseností je bungalov svojou dispozíciou často vhodný na väčší pozemok. To síce môže ovplyvniť celkovú cenu nehnuteľnosti, ale zároveň poskytuje viac priestoru pre optimálne osadenie domu, vytvorenie príjemného exteriéru a záhrady, a tiež umožňuje realizáciu rôznych tvarov pôdorysov.
PREDANÉ - Tehlový bungalov 4+kk, pozemok 434m2, Svederník - Lipová alej
Medzi mimoriadne obľúbené patria pôdorysy v tvare písmen L a U. Tieto tvary majú svoje opodstatnenie - vytvárajú prirodzené súkromie od susedov či ulice, často formujú príjemné átrium alebo dvor a zároveň umožňujú jednoduché a logické prepojenie všetkých obytných miestností s exteriérom, či už ide o terasu, záhradu alebo iné vonkajšie priestory.
Prehľad vybraných pôdorysov bungalovov
Z rozsiahleho portfólia si pre vás pripravíme prehľad niekoľkých obľúbených a overených pôdorysov bungalovov, ktoré demonštrujú rôzne prístupy k dispozíciám a usporiadaniu priestoru. Každý z nich je navrhnutý s ohľadom na maximálny komfort a funkčnosť.
Bungalov 60: Vyvážená dispozícia pre rodiny
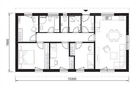
Bungalov 60 je 4-izbový jednopodlažný dom, ktorý sa vyznačuje prehľadne riešenou dispozíciou s jasným oddelením dennej a nočnej časti. Dennú zónu tvorí priestranná obývacia izba plynulo prepojená s jedálňou a kuchyňou, ktorá je navyše doplnená o praktickú komoru na uskladnenie potravín a iných potrieb. Nočná časť domu je navrhnutá s dôrazom na súkromie a pokoj - zahŕňa tri samostatné izby, ktoré môžu slúžiť ako spálne alebo detské izby, hlavnú kúpeľňu, samostatné WC a šatník integrovaný priamo pri spálni pre maximálne pohodlie.
- Parametre: Úžitková plocha domu je 109 m², obytná plocha dosahuje 73 m². Táto veľkosť poskytuje dostatok priestoru pre komfortné bývanie štvorčlennej rodiny, pričom efektívne využitie úžitkovej plochy zabezpečuje, že každý meter štvorcový má svoj účel.

Bungalov 35: Elegantné riešenie pre užšie pozemky
Bungalov 35 je ďalším 4-izbovým jednopodlažným domom, ktorý vyniká svojím pozdĺžnym riešením. Táto dispozícia je obzvlášť vhodná pre užšie pozemky, kde je potrebné maximalizovať využitie obmedzeného priestoru. Denná časť je navrhnutá ako otvorený priestor, kde sa priestranná obývacia izba spája s jedálňou a samostatnou kuchyňou. Toto usporiadanie podporuje rodinnú interakciu a vytvára vzdušný dojem. Nočná zóna pozostáva z troch izieb, kúpeľne a samostatného WC. Dispozícia je optimalizovaná s minimálnou plochou chodieb, čím sa opäť efektívne šetrí priestor a maximalizuje sa obytná plocha.
- Parametre: Úžitková plocha domu je 111 m², obytná plocha je 69 m². Aj napriek pozdĺžnemu tvaru, ktorý môže pôsobiť užšie, poskytuje tento bungalov dostatočný priestor pre bývanie a je praktickým riešením pre majiteľov užších parciel.
Bungalov 3: Kompaktný L-kový dizajn
Bungalov 3 predstavuje 4-izbový jednopodlažný rodinný dom v obľúbenom tvare L. Tento tvar umožňuje vytvorenie príjemného, čiastočne uzatvoreného priestoru na pozemku, ktorý môže slúžiť ako terasa alebo záhradná časť, a zároveň zabezpečuje dobré preslnenie a vetranie interiéru. Dispozícia je navrhnutá ako vyvážené riešenie s jasným oddelením dennej a nočnej časti. Dennú zónu tvorí priestranná obývacia izba prepojená s jedálňou a kuchyňou, s pridanou hodnotou v podobe komory. Nočná časť zahŕňa spálňu a dve ďalšie izby, kúpeľňu a samostatné WC.
- Parametre: Úžitková plocha domu je 127,5 m², obytná plocha je 86 m². Bungalov 3 ponúka nadštandardnú obytnú plochu a vďaka svojmu tvaru aj zaujímavé možnosti pre exteriérové úpravy.

Bungalov 7: Kompaktný a účelný domov
Bungalov 7 je 3-izbový jednopodlažný dom, ktorý je ideálnou voľbou pre menšie rodiny alebo páry, ktoré hľadajú kompaktné, ale funkčné bývanie. Jeho dispozičné riešenie je jednoduché a účelné. Dennú časť tvorí obývacia izba prepojená s jedálňou a kuchyňou, ktorá je strategicky orientovaná do centrálnej časti domu. Nočná zóna zahŕňa spálňu a jednu ďalšiu izbu, kúpeľňu a technickú miestnosť. Napriek menšej veľkosti je dispozícia navrhnutá tak, aby minimalizovala chodby a maximalizovala obytný priestor.
- Parametre: Úžitková plocha domu je 64 m², obytná plocha je 49 m². Bungalov 7 dokazuje, že aj na menšej ploche je možné vytvoriť pohodlné a funkčné bývanie.
Bungalov 57: Priestorovo efektívny pre úzke pozemky
Bungalov 57 je 4-izbový jednopodlažný dom s pozdĺžnou dispozíciou, podobne ako Bungalov 35, čo ho robí vhodným aj pre užšie pozemky. Denná časť je navrhnutá ako otvorený spoločný priestor kuchyne a obývacej izby, situovaný v centrálnej časti domu, čo podporuje moderný a otvorený štýl života. Nočná zóna pozostáva zo spálne a dvoch samostatných izieb, kúpeľne a technickej miestnosti. Tento bungalov efektívne využíva dostupný priestor a zároveň poskytuje dostatok súkromia pre jednotlivých členov domácnosti.
- Parametre: Úžitková plocha domu je 84 m², obytná plocha je 58 m². Tento projekt je skvelým príkladom toho, ako možno aj na menšom pôdoryse vytvoriť plnohodnotný štvorizbový dom.
Bungalow 200: Dom s takmer nulovou potrebou energie a krbom
Projekt 4-izbového domu Bungalow 200 je navrhnutý s dôrazom na moderné technológie a komfort. Medzi jeho hlavné prednosti patrí jednoduchý tvar, veľkorysá denná časť domu s obývačkou vybavenou krbom a praktická komora v kuchyni. Tento dom je určený pre 4-5 člennú rodinu a kladie dôraz na maximálne presvetlenie interiéru pomocou veľkých okien a presklených plôch. Bungalow 200 patrí medzi domy s takmer nulovou potrebou energie, čo znamená vysokú energetickú účinnosť a nízke prevádzkové náklady.
Dispozícia efektívne oddeľuje dennú a nočnú časť chodbou, čo minimalizuje šírenie hluku do spální a detských izieb. Dom je navrhnutý bezbariérovo. Po vstupe do domu sa ocitnete v priestrannej predsieni, ktorá je chránená pred prenikaním chladu dverami. Cez ďalšie dvere sa dostanete do chodby a následne do jednotlivých miestností.
Prepojená kuchyňa s obývačkou je preslnená množstvom denného svetla. Francúzske okná a posuvné dvere na terasu vytvárajú plynulé prepojenie s exteriérom a ponúkajú krásny výhľad do záhrady. Kuchyňa je navrhnutá s linkou v tvare U, pričom jej zakončenie môže tvoriť jedálenský stôl, ktorý môže slúžiť aj ako ďalšia pracovná plocha. Osvetlenie kuchynskej linky je zabezpečené oknom.
Obývačka so vstavaným krbom poskytuje ideálne prostredie na relaxáciu a trávenie spoločných chvíľ. Pohodlná sedacia súprava pre 4-5 osôb ocenia nielen členovia rodiny, ale aj návštevy. Spálňa je dostatočne priestranná na umiestnenie manželskej postele s nočnými stolíkmi a veľkého vstavaného šatníka. Je tu tiež priestor na doplnkový nábytok, ako je komoda alebo knižnica.
Dve detské izby sú situované vedľa seba a majú rozdielnu podlahovú plochu, čo umožňuje flexibilné zariedenie. Vo väčšej z nich je možné zariadiť izbu pre dve deti, napríklad s poschodovou posteľou alebo posteľou s výsuvným lôžkom. Kúpeľňa v Bungalowe 200 je navrhnutá na inštaláciu vane a sprchového kúta, umývadla a WC. Pre zvýšenie komfortu je na chodbe umiestnené druhé WC. Samostatná technická miestnosť je vyhradená pre kotol, ale môže slúžiť aj na umiestnenie práčky so sušičkou. Bungalow 200 je dom menšej veľkostnej kategórie bez garáže, ale s možnosťou jej navrhnutia v blízkosti domu. Tento projekt je ideálny pre úzke pozemky a mladé rodiny.

Bungalow 47: Rodinný dom s garážou pre úzke pozemky
Katalógový projekt domu Bungalow 47 je špeciálne navrhnutý pre úzke pozemky a naplní potreby na bývanie pre 5-6 osôb. Tento projekt myslí na nároky každého člena rodiny na spoločný čas aj súkromie. Vchodové dvere vedú do predsiene, ktorá je dostatočne priestranná na umiestnenie predsieňového nábytku so šatníkom a skrinkou na topánky. Pre úsporu energií sa z predsiene prechádza do dennej časti domu cez dvere. Dom má vlastnú garáž so samostatným vchodom.
Dennú časť tvorí obývačka prepojená s kuchyňou, ktorá je charakteristická množstvom denného svetla. Kuchynská linka v tvare U ponúka dostatok miesta na prípravu pokrmov a jej zakončenie môže tvoriť barový pult. Kuchyňa s komorou je praktickým riešením pre skladovanie zásob. Obývačka s krbom vytvára ideálne prostredie na trávenie spoločných chvíľ a môže byť zariadená sedačkou pre 5-6 osôb a obývacou stenou. Dominantou miestnosti je vstavaný krb. V dennej časti sa nachádza aj jedálenský kútik pre 6 ľudí.
Spálňa s vlastnou kúpeľňou poskytuje maximálne súkromie a je situovaná na konci spojovacej chodby, čím je oddelená od bežného ruchu domácnosti. Izba je presvetlená oknom a posuvnými dverami na terasu. V spálni je priestor na manželskú posteľ a šatník. Východ na terasu majú aj všetky detské izby, ktoré sú navrhnuté tak, aby umožnili komfortné zariadenie. V nočnej časti sa nachádzajú ešte šatník, technická miestnosť, ďalšia kúpeľňa a WC. Kúpeľňa je navrhnutá na inštaláciu vane, sprchového kúta a umývadla. Pre práčku je pripravené miesto v technickej miestnosti, ktorá môže slúžiť aj na skladovanie. Bungalow 47 je možné realizovať na rovinatom alebo mierne svahovitom teréne.

BUNGALOW 49: Kompaktný 3-izbový dom so stanovou strechou
BUNGALOW 49 je 3-izbový dom so stanovou strechou, patriaci do strednej veľkostnej kategórie. Je vhodný do nízkej okolitej zástavby a projekt je určený pre rovinaté alebo mierne svahovité pozemky. Táto možnosť predstavuje ďalší variant pre tých, ktorí hľadajú funkčné a esteticky príjemné bývanie na jednom podlaží.
Bungalov 1701: Praktický a flexibilný
Bungalov 1701 je mimoriadne praktický bungalov, ktorý ponúka veľa alternatívnych riešení pôdorysov a je ideálny pre štvorčlennú rodinu. Jeho architektúra je jednoduchá, ale vkusná. Dom disponuje presvetlenou a priestrannou dennou zónou s krbom a s výhľadom do záhrady, čo zabezpečuje dokonalé prepojenie interiéru s exteriérom. Zároveň však ponúka dostatočné súkromie. Súčasťou projektu je aj carpot pre dve autá zo strany vstupu, ktorý je vkusne a funkčne zakomponovaný do celkovej hmoty domu.
- Počet osôb: 4
- Orientácia vstupu: S, Z, V
- Kúpeľne: 2
- Max. výška strechy: 5.9 m
- Obytná plocha: 86.1 m²
- Zastavaná plocha: 141.4 m²
- Šírka pozemku: 20 m
- Dĺžka pozemku: 30 m
- Celková úžitková plocha: 109.3 m² (bez garáže)
Tento dom je príkladom moderného prístupu k bývaniu, kde sa spája funkčnosť, estetika a komfort s ohľadom na životné prostredie a potreby rodiny.
Dôležitosť výberu a odborného poradenstva
Pri výbere pôdorysu bungalovu je dôležité zohľadniť nielen spomínané parametre, ale aj celkovú funkčnosť dispozície a jej prispôsobenie individuálnym potrebám. Praktickým riešením je oddelenie dennej a nočnej zóny, ktoré zvyšuje komfort bývania a súkromie jednotlivých členov domácnosti. Dôležitým faktorom je tiež efektívne riešenie chodieb a úložných priestorov, aby sa minimalizovali nevyužité plochy. Pri porovnávaní pôdorysov sa odporúča sledovať rozdiel medzi obytnou a úžitkovou plochou, ktorá veľa napovie o funkčnosti dispozície.
Správne zvolený pôdorys bungalovu je základom spokojného bývania na dlhé roky. Vďaka dlhoročným skúsenostiam so stavbou montovaných domov je možné identifikovať, čo v praxi funguje a na čo si dať pozor už vo fáze návrhu. Ak hľadáte spoľahlivého partnera pre výstavbu montovaného bungalovu, ktorý má overené skúsenosti a stabilné zázemie, radi vám pomôžeme s výberom ideálneho pôdorysu aj realizáciou vášho vysnívaného domu. Bungalovy ako koncept bývania na jednom podlaží, s dôrazom na komfort, praktickosť a možnosť prepojenia s prírodou, predstavujú dlhodobo udržateľnú a atraktívnu voľbu pre široké spektrum budúcich majiteľov domov.
Ak vás niektorý z predstavených pôdorysov či vizualizácií bungalovov zaujal, neváhajte nás kontaktovať pre ďalšie informácie a konzultáciu. Radi vám pomôžeme nájsť ten pravý domov pre vás.