Ponuka bytov na predaj v Bratislave je mimoriadne rozsiahla a rozmanitá, pričom kľúčovým atribútom, ktorý mnohí kupujúci hľadajú, je otvorený koncept bývania. Tento moderný prístup k dispozícii bytu spája obvykle oddelené priestory, ako sú obývacia izba, kuchyňa a jedáleň, do jedného spoločného, vizuálne prepojeného celku. Výsledkom je pocit vzdušnosti, svetla a väčšej flexibility pri zariaďovaní. V Bratislave, dynamickej metropole s bohatou históriou a moderným pulzom, sa otvorený byt stáva symbolom mestského životného štýlu, ktorý oslovuje široké spektrum záujemcov - od mladých profesionálov až po rodiny hľadajúce komfort a praktickosť.

Charakteristiky otvorených bytov na predaj v Bratislave
Otvorený bytový koncept nie je len o odstránení vnútorných stien; ide o premyslené usporiadanie priestoru, ktoré podporuje interakciu a zároveň zachováva funkčnosť jednotlivých zón. V kontexte bratislavského trhu s nehnuteľnosťami sa tieto byty často vyznačujú nasledujúcimi prvkami:
- Spojený obývací priestor: Jadrom takéhoto bytu je často rozsiahla miestnosť, ktorá integruje predsieň, kuchyňu a obývaciu izbu. Toto prepojenie vytvára pocit priestrannosti a umožňuje plynulý prechod medzi aktivitami, či už ide o varenie, relaxáciu alebo spoločenské stretnutia. Príkladom je byt na Gajovej ulici, kde vchodové dvere vedú priamo do tohto multifunkčného priestoru.
- Kompaktné, no funkčné kuchyne: Kuchynské linky v otvorených bytoch sú často dizajnované s dôrazom na minimalizmus a efektivitu. Môžu byť riešené ako ostrovčekové kuchyne, ktoré slúžia aj ako barový pult, alebo ako líniové či rohové zostavy, ktoré sú nenápadne integrované do celkového dizajnu obývacej časti.
- Flexibilné zónovanie: Hoci je priestor otvorený, jednotlivé funkčné zóny sú často jasne definované pomocou nábytku, osvetlenia alebo podlahových krytín. Napríklad kuchynská časť môže mať inú podlahu ako obývacia časť, alebo môže byť oddelená dizajnovým ostrovčekom.
- Dostupnosť exteriérových prvkov: Mnoho otvorených bytov v Bratislave, najmä tých v novších projektoch alebo po rekonštrukcii, ponúka prístup na balkón alebo loggiu. Tento priestor slúži ako rozšírenie obytnej plochy, ideálne na relaxáciu pri rannej káve alebo večernom pohári vína, ako je to spomenuté pri byte na Gajovej ulici.

Lokalita a občianska vybavenosť: Kľúč k mestskému životu
Výber lokality je pri kúpe bytu v Bratislave zásadný a otvorený byt sa často spája s vyhľadávanými mestskými štvrťami, ktoré ponúkajú dynamický životný štýl a vynikajúcu dostupnosť. Lokalita ako tá na Gajovej ulici, neďaleko Modrého kostolíka, je príkladom miesta, ktoré spája výhody pokojného bývania s blízkosťou centra.
- Centrum mesta a historické pamiatky: Bývanie v blízkosti historického centra a pešej zóny znamená mať na dosah ruky kultúrne bohatstvo mesta. Divadlá, galérie, múzeá a historické pamiatky sa stávajú súčasťou každodenného života.
- Gastronómia a voľný čas: Bratislava ponúka širokú škálu reštaurácií, kaviarní a cukrární, ktoré sú často sústredené v centre a jeho okolí. Pre milovníkov mestského života je to neustály zdroj nových zážitkov.
- Občianska vybavenosť: Všetko potrebné pre každodenný život - potraviny, služby, banky, lekárne - je v centre mesta ľahko dostupné. Blízkosť Starej tržnice či nábrežia Dunaja pridáva na atraktivite lokality.
- Dopravná dostupnosť: Hoci sa mnohé z týchto bytov nachádzajú v pešej dostupnosti od centra, dôležitá je aj dobrá dopravná infraštruktúra. Mestská hromadná doprava, ako aj rýchle napojenie na hlavné cestné ťahy, sú kľúčové pre mobilitu obyvateľov.

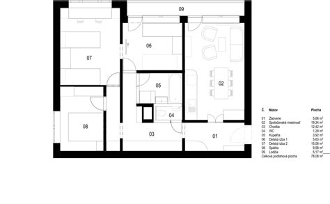
Dispozičné riešenia a úžitková plocha
Pri otvorených bytoch je dôležité venovať pozornosť nielen spoločným priestorom, ale aj súkromným zónam, ako sú spálne a kúpeľne.
- Počet izieb a ich usporiadanie: Ponuka otvorených bytov v Bratislave zahŕňa rôzne veľkosti, od praktických 1-izbových bytov až po priestranné 4-izbové jednotky. Príkladom je 4-izbový byt s výmerou 100 m² na Gajovej ulici, ktorý ponúka okrem otvoreného obývacieho priestoru aj samostatné izby pre členov rodiny.
- Kúpeľne a toalety: Väčšie byty často disponujú komfortnou kúpeľňou s dvoma umývadlami, vaňou a priestorom na práčku. Samostatné WC je ďalším praktickým doplnkom, ktorý zvyšuje komfort bývania, najmä v domácnostiach s viacerými členmi. Príkladom je spomínaný 4-izbový byt s dvoma kúpeľňami (jednou s vaňou a druhou so sprchovacím kútom v rodičovskej spálni).
- Orientácia bytu: Orientácia na dve strany (napr. S-V a J-Z) zabezpečuje dostatok prirodzeného svetla počas celého dňa a zároveň umožňuje využívať výhody rôznych svetových strán. Časť bytu orientovaná do ulice môže ponúkať živší pohľad na mestské dianie, zatiaľ čo spálňa orientovaná do tichého dvora poskytuje pokoj a súkromie.
- Úžitková plocha: Ponuka zahŕňa byty s rôznou úžitkovou plochou, od menších 1-izbových bytov s rozlohou okolo 40-46 m², cez 2-izbové byty okolo 69 m², až po väčšie 3-izbové (napr. 87 m²) a 4-izbové byty s plochou 100 m² a viac.
Dizajnová psychológia: 8 tipov pre útulný domov (schválené architektom)
Rekonštrukcie a modernizácia
Trh s nehnuteľnosťami v Bratislave ponúka nielen novostavby, ale aj staršie byty, ktoré prešli kompletnou alebo čiastočnou rekonštrukciou. Tieto rekonštruované byty často spájajú pôvab historických budov s moderným komfortom.
- Kompletné rekonštrukcie: Zahŕňajú modernizáciu elektroinštalácie, vodoinštalácie, výmenu okien, podláh, sanáciu stien a často aj úpravu dispozície smerom k otvorenému konceptu.
- Čiastočné rekonštrukcie: Môžu sa zamerať na renováciu kúpeľne, kuchyne alebo podláh, pričom zachovávajú pôvodný charakter bytu.
- Tehlové bytovky vs. panelové domy: Ponuka zahŕňa byty v rôznych typoch budov. Tehlové domy sú často spájané s lepšou akustikou a tepelnou izoláciou, zatiaľ čo v panelových domoch sa často nachádzajú byty po rozsiahlych rekonštrukciách.
- Lofty a netradičné priestory: V Bratislave sa objavujú aj zaujímavé loftové priestory, ktoré sú vhodné na bývanie aj podnikanie a často disponujú vlastným samostatným vchodom.
Financovanie a realitné služby
Kúpa bytu je významným finančným rozhodnutím a realitné kancelárie a finanční poradcovia ponúkajú podporu pri tomto procese.
- Možnosti úveru: Pri kúpe na úver je dôležité získať bezplatné informácie o dostupných možnostiach financovania. Individuálne nastavenie financovania podľa potrieb klienta je bežnou praxou.
- Komplexné realitné služby: Zabezpečenie kompletných služieb spojených s kúpou, predajom a prenájmom nehnuteľností, vrátane právneho servisu a pomoci pri procese prevodu vlastníctva.
- Exkluzívne ponuky: Niektoré realitné kancelárie ponúkajú výhradné zastúpenie pri predaji bytov, čo môže znamenať špecifické marketingové stratégie a prístup k širšej klientele.

Pre koho je otvorený byt v Bratislave ideálny?
Otvorený bytový koncept v Bratislave je atraktívnou voľbou pre:
- Milovníkov mestského života: Tých, ktorí ocenia ruch veľkomesta, blízkosť kultúrnych a spoločenských udalostí a možnosť neustále objavovať nové miesta.
- Mladé páry a jednotlivcov: Pre ktorých je otvorený priestor symbolom moderného a neformálneho životného štýlu.
- Rodiny s jedným dieťaťom: Kde otvorený priestor podporuje interakciu medzi rodičmi a dieťaťom.
- Kreatívnych jednotlivcov: Ktorí hľadajú flexibilný priestor na bývanie a prácu.
Zatiaľ čo fotografie k niektorým ponukám môžu byť ilustračné, skutočný potenciál otvorených bytov v Bratislave spočíva v ich schopnosti ponúknuť moderné, funkčné a štýlové bývanie v srdci metropoly.