Komárno, mesto s bohatou históriou a strategickou polohou, ponúka jedinečnú príležitosť pre tých, ktorí hľadajú bývanie bez kompromisov. Meštianske byty v centre mesta predstavujú ideálnu voľbu pre tých, ktorí ocenia kombináciu exkluzívneho bývania, nadčasovej architektúry a jedinečnej atmosféry. Ponuka 5-izbového meštianskeho bytu na ulici Pohraničná v Komárne je toho dôkazom. Tento priestranný byt s úžitkovou plochou 135 m², vlastnou terasou a záhradou, je pripravený pre nových majiteľov, ktorí túžia po bývaní s charakterom.

Meštiansky Byt: Viac Ako Len Bývanie
Meštianske byty, často označované aj ako "staré" alebo "historické" byty, sa vyznačujú špecifickými architektonickými prvkami, ktoré im dodávajú nezameniteľný charakter. Vysoké stropy, ktoré sú pre ne typické, nielenže opticky zväčšujú priestor, ale zároveň prispievajú k lepšej cirkulácii vzduchu a celkovo vytvárajú dojem vzdušnosti a monumentálnosti. Tieto byty často disponujú priestrannými izbami, impozantnými oknami, ktoré prepúšťajú dostatok prirodzeného svetla, a kvalitnými materiálmi, ktoré svedčia o remeselnej zručnosti ich pôvodných staviteľov.
Meštiansky charakter bytu zaručuje vysoké stropy, nadčasovú architektúru a jedinečnú atmosféru. Vlastná terasa a záhrada vytvárajú ideálny priestor na relax, rodinné stretnutia či pokojné rána pri káve. Lokalita ulice Pohraničná v centre Komárna toto všetko umocňuje. Ulica leží v samotnom centre mesta a má mestský, miestami meštiansky charakter, ktorý nadväzuje na historickú architektúru s priestrannými bytmi. Pre tých, čo ocenia tradičný štýl, je príťažlivé, že aj napriek centrálnej adrese ponúka pokoj smerom do dvora - čo ešte zvýrazňuje terasa so záhradou pri ponúkanom byte.

Detailná Ponuka: 5-izbový Meštiansky Byt na Pohraničnej
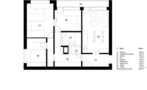
Henrieta Nemšovská z KN Reality ponúka na predaj veľkoplošný 5-izbový meštiansky byt so záhradou a terasou v centre mesta Komárno, na ulici Pohraničná. Celková rozloha bytu je 135 m². Byt sa nachádza na prvom poschodí bytového domu a je v pôvodnom stave, pripravený na rekonštrukciu podľa predstáv nového majiteľa. Výhľad z terasy je orientovaný na záhradu, čo zaručuje súkromie a pokoj.
Kľúčové informácie o byte:
- Lokalita: Ulica Pohraničná, centrum mesta Komárno
- Typ nehnuteľnosti: 5-izbový meštiansky byt
- Úžitková plocha: 135 m²
- Poschodie: 1. nadzemné podlažie z 1 (posledné poschodie v rámci bytu)
- Stav: Pôvodný, pripravený na rekonštrukciu
- Vlastníctvo: Osobné
- Vybavenie: Tehlová stavba, plastové okná, terasa, predzáhradka (záhrada)
- Vykurovanie: Spoločné
- Cena: 178 000 eur (v cene je zahrnutý kompletný právny a katastrálny servis)
Fotografie sú ilustračné, pôdorys je platný. Pre viac informácií je k dispozícii kontakt na Henrietu Nemšovskú: 0918 107 570.

Občianska Vybavenosť a Lokalita Ulica Pohraničná
Ulica Pohraničná v Komárne sa vyznačuje vynikajúcou občianskou vybavenosťou a zároveň ponúka spojenie pulzu centra s možnosťou súkromného oddychu. Všetky potrebné služby sú na dosah ruky, čo eliminuje potrebu presunov autom pre každodenné záležitosti.
- Gastronómia: Reštaurácia Hubert Varga (125 m), kaviareň kút café (129 m), bar Borozó (178 m), krčma Irish pub (159 m).
- Banka: Prima banka (235 m).
- Verejné inštitúcie: Úrad práce, sociálnych vecí a rodiny Komárno (144 m).
- Obchody: ROLODOKTOR (122 m).
Silnou stránkou tejto adresy je práve spojenie dynamiky centra s oázou pokoja. Záhrada a terasa bytu orientované do dvora poskytujú ideálne miesto na rannú kávu v tichu a večerné posedenie bez rušivých vplyvov mestského ruchu, pričom ste stále v bezprostrednej blízkosti všetkých mestských služieb.

Meštianske Bývanie v Kontexte Trhu s Nehnuteľnosťami v Komárne
Trh s nehnuteľnosťami v Komárne ponúka rôznorodé možnosti, od moderných novostavieb až po byty s historickým charakterom. Meštianske byty, ako ten na Pohraničnej, predstavujú špecifickú kategóriu, ktorá si nachádza svojich záujemcov predovšetkým medzi tými, ktorí uprednostňujú jedinečnosť a atmosféru pred moderným dizajnom.
V okrese Komárno pôsobí viacero realitných kancelárií, ktoré ponúkajú široké spektrum nehnuteľností. Okrem spomínaného 5-izbového meštianskeho bytu sa na trhu objavujú aj iné zaujímavé ponuky, napríklad:
- Priestornejšie meštianske byty s viacerými loggiami a pivnicami, ktoré sú v čiastočne prerobenom stave a ponúkajú vysoké stropy a potenciál pre modernú rekonštrukciu.
- Moderné zrekonštruované meštianske byty, ktoré kombinujú historické prvky s moderným komfortom, ako napríklad byty s novými inžinierskymi sieťami, modernými kuchynskými linkami a kvalitnými podlahami.
- Byty v novostavbách a moderných obytných kompletoch, ktoré sú zamerané na súčasný životný štýl a ponúkajú štandardné vybavenie a dispozície.
Ceny meštianskych bytov sa líšia v závislosti od ich stavu, veľkosti, lokalizácie a mieru rekonštrukcie. Ponuka na Pohraničnej s cenou 178 000 eur za 135 m² predstavuje v rámci tohto segmentu zaujímavú investičnú príležitosť, najmä s prihliadnutím na lokalitu a potenciál pre individuálnu rekonštrukciu.
Rekonštrukcia Meštianskeho Bytu: Výzva a Príležitosť
Byt na ulici Pohraničná je v pôvodnom stave, čo znamená, že si vyžaduje kompletnú rekonštrukciu. Pre niektorých môže byť táto skutočnosť výzvou, no pre iných predstavuje jedinečnú príležitosť vytvoriť si domov presne podľa svojich predstáv a vkusu. Pri rekonštrukcii meštianskeho bytu je dôležité rešpektovať jeho pôvodný charakter a zachovať cenné historické prvky.
Možnosti rekonštrukcie:
- Dispozícia: V závislosti od pôvodného pôdorysu a nosných stien je možné upraviť vnútorné rozloženie izieb, vytvoriť moderné otvorené priestory alebo naopak zachovať tradičné oddelené miestnosti.
- Materiály: Výber kvalitných podlahových krytín (drevené parkety, dlažba), obkladov, sanita a kuchynské vybavenie.
- Inžinierske siete: Kompletná výmena elektroinštalácie, vodovodných a odpadových potrubí, prípadne úprava vykurovacieho systému.
- Okná a dvere: Zrenovovanie pôvodných drevených okien a dverí alebo ich výmena za nové, ktoré imitujú pôvodný štýl.
- Vysoké stropy: Využitie vysokej výšky stropov na inštaláciu moderného osvetlenia, vzduchotechniky alebo na vytvorenie zaujímavých architektonických prvkov, ako sú vstavané skrine alebo galérie.
Dôležitým aspektom pri rekonštrukcii je aj zohľadnenie energetickej efektívnosti. Vhodná izolácia, moderné okná a efektívny vykurovací systém môžu výrazne znížiť prevádzkové náklady. Pri meštianskych bytoch je často možné zachovať a zrenovovať aj historické prvky, ako sú kachľové pece alebo drevené obloženia, ktoré dodávajú bytu nezameniteľnú atmosféru.

Výhody Bývania v Centre Komárna
Bývanie v centre mesta Komárno prináša so sebou množstvo výhod, ktoré ocenia najmä aktívni ľudia a rodiny s deťmi. Okrem vynikajúcej občianskej vybavenosti, ktorú sme už spomínali, je tu aj:
- Dostupnosť kultúrnych a spoločenských podujatí: Divadlá, kiná, galérie, múzeá a rôzne kultúrne centrá sú na dosah ruky.
- Možnosti trávenia voľného času: Blízkosť parkov, oddychových zón, športovísk a rekreačných oblastí.
- Výborná dopravná dostupnosť: Vlaková a autobusová stanica sú často v pešej dostupnosti, čo uľahčuje cestovanie do iných miest.
- Historické prostredie: Každodenné bývanie v prostredí s bohatou históriou a architektonickou hodnotou.
Meštiansky byt na ulici Pohraničná v Komárne tak predstavuje nielen investíciu do nehnuteľnosti, ale aj do životného štýlu, ktorý spája pohodlie moderného bývania s jedinečnou atmosférou historického mesta.
tags: #mestiansky #byt #na #predaj #komarno