Budova našej materskej školy slúži deťom už dlhé roky, a preto nastal čas pripraviť ju na ďalšie obdobie. Tento článok sa zameriava na proces obnovy a modernizácie materskej školy v obci Selce, pričom čerpá z informácií o architektonickej súťaži a plánovaných úpravách. Cieľom je poskytnúť komplexný prehľad o víziách, výzvach a konkrétnych krokoch smerujúcich k vytvoreniu moderného, bezpečného a komfortného prostredia pre najmenších obyvateľov obce.

Architektonická súťaž ako základný kameň modernizácie
Proces obnovy materskej školy v Selciach odštartoval v roku 2024 vypracovaním architektonickej štúdie. Kľúčovým krokom k realizácii modernizácie bolo vyhlásenie verejnej, anonymnej architektonickej súťaže s názvom "Materská škola Selce". Táto súťaž, ktorá sa konala 15. februára 2016, prilákala pozornosť 43 súťažných návrhov, čo porota vnímala ako prejav aktuálnosti témy, najmä pre mladých architektov, a ako dôkaz dobrej prípravy samotnej súťaže.
Porota, zložená zo závislých aj nezávislých členov vrátane predsedu prof. Ing. arch. Bohumila Kováča, PhD., sa stretla v plnom zložení, aby zhodnotila predložené návrhy. Po úvodnom vypočutí správ od overovateľov súťažných návrhov a potvrdení, že všetky návrhy spĺňajú požadované kritériá, porota pristúpila k postupnému vylučovaniu a hodnoteniu. Proces hodnotenia prebiehal v niekoľkých kolách, pričom každý člen poroty označoval návrhy odporúčané na postup.
V prvom kole boli označené návrhy na postup do druhého kola. V druhom kole postúpili návrhy s číslami 1, 4, 5, 7, 9, 12, 19, 22, 26, 28, 29, 34, 40, 41 a 43. Tretie kolo posudzovania, zamerané na udelenie cien, postúpili návrhy č. 7, 28, 29, 40 a 41. V tomto kole porota rozhodla o umiestnení návrhov v poradí 11-15 a 8-10, pričom návrhy č. 1, 34, 43 sa umiestnili "ex aequo" s rovnakým počtom bodov. Štvrté kolo prinieslo individuálne bodovanie porotcov na určenie poradia na prvých piatich miestach.
Výsledky súťaže boli nasledovné:
- 5. miesto: Návrh č. 29 s 136 bodmi
- 4. miesto: Návrh č. 41 s 142 bodmi
- 3. miesto: Návrh č. 7 s 162 bodmi
- 2. miesto: Návrh č. 28 s 169 bodmi
- 1. miesto: Návrh č. 40
Porota vyhodnotila súťažné návrhy ako štandardne solídne, bez mimoriadneho vyniknutia jedného návrhu. Napriek rôznorodým prístupom sa kvalitatívne návrhy vyrovnali, čo potvrdzuje aj tesnosť hodnotenia. Súťažné návrhy priniesli rôznorodosť pohľadov na využitie pozemku, vzťah k okolitým budovám a typologický prístup k riešeniu vlastného objektu. Porota bola presvedčená, že súťaž poskytla vyhlasovateľovi množstvo podnetov na riešenie problematiky materských škôl, pričom víťazný návrh (č. 40) vidí ako najvývojaschopnejší a najvýhodnejší z hľadiska realizovateľnosti. Porota tiež zdôraznila, že najvhodnejšími modelmi sa ukázali byť lineárny a diagonálny model.

Víťazný návrh a jeho koncepcia: Studio B52, s.r.o.
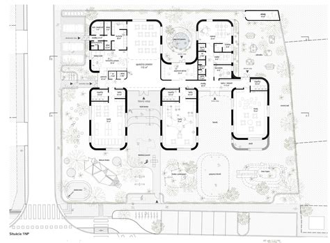
Víťazný návrh, označený číslom 40 a vytvorený spoločnosťou Studio B52, s.r.o. (Ing. arch. Michal Lang, Ing. arch. Boris Benedek, Ing. arch. …), predstavuje komplexné riešenie pre materskú školu v Selciach. Navrhovaná materská škola je situovaná v intraviláne obce Selce, v areáli základnej školy. Hmotovo objekt vychádza z jednoduchého tvaru jednopodlažnej dosky, vsadenej do svahu v jeho severozápadnej časti. Výškovo je objekt v jednej úrovni prepojený s existujúcim objektom jedálne, čím sa vytvára plynulé bezbariérové prepojenie.
Transformácia základného tvaru definuje v areáli dve hlavné zhromažďovacie exteriérové prostredia: na jednej strane chránené polozapustené átrium materskej školy v priamej nadväznosti na prírodný svah a jeho pokračovanie na strešnej rovine, prepojenej vo viacerých úrovniach. Do átria sú orientované všetky hlavné miestnosti škôlky, kde sa plynule prepája interiér s exteriérom. Statická schéma je doplnená vertikálnymi oceľovými a železobetónovými nosnými prvkami a priečnymi železobetónovými zavetrovacími stenami. Snahou bolo dosiahnuť čo najviac otvorený a variabilný priestor.
Základové konštrukcie reagujú na výškové pomery osadenia novostavby v teréne, čím je zaručená bezbariérovosť pohybu po objekte materskej školy s väzbou na jedáleň. Doplnením základových konštrukcií je prefabrikovaná pobytová plocha s integrovaným schodiskom a vodnou plochou. Výplne otvorov zasklených stien sú navrhnuté v drevenom prevedení, ako sceľujúci etnografický prvok. Odstránením sedlovej strešnej roviny jedálne a doplnením nového pochôdzneho stropu sa vytvorí multifunkčná športová plocha pre deti materskej školy s možnosťou využitia i deťmi základnej školy. Ochranným prvkom športovej plochy je oceľový skelet so sieťou.
Technologické riešenie novostavby materskej školy je nezávislé a postavené na samostatnej technologickej časti situovanej v polohe prekrytej svahom. Víťazný návrh je protagonistom prístupu, kde prevádzkové a hmotové usporiadanie situuje do spodnej časti pozemku po vrstevnici, čo umožnilo eliminovať potrebu prekonávania výšok rampami a schodiskami, čím sa dosiahla bezbariérová prevádzka objektu. Spojenie s jedálňou je artikulované multifunkčným preskleným priestorom s priehľadom na pozemok a skupinu stromov. Autori sa rozhodli pre jednoduchý lineárny tvar jednopodlažného objektu, ktorého dispozícia sa rozvíja do tvaru L, čo umožnilo vytvoriť intímny herný priestor s dobrou vizuálnou kontrolou. Zárez krídla do svahu umožnil sprístupniť zelenú strechu.
Kritika a výzvy: Čo sa dalo urobiť lepšie?
Napriek kvalitným návrhom porota poukázala aj na nedostatky niektorých súťažných prác. Prekvapilo množstvo návrhov, ktoré nerešpektovali základné hygienické nároky na orientáciu denných miestností jednotlivých oddelení. V prevádzkovo-dispozičných riešeniach mnohí súťažiaci podcenili bezpečný a bezbariérový pohyb ako samotných užívateľov, tak aj distribúciu jedla z jedálne.
Niektoré návrhy, napríklad návrh č. 6, síce zaujali architektonickým riešením, ale neboli vhodné pre konkrétne podmienky materskej školy v Selciach. Tento návrh bol síce pomerne vysoko hodnotený, ale porota konštatovala, že nie je vhodný pre danú lokalitu. Lineárny model objektu, posunutý do zadnej línie, bol zväčša zakopaný a triedy mali síce pekný výhľad, ale orientáciu na severozápad. Ostatné priestory mali len strešné svetlíky a ihrisko s "voliérovou" ochranou na streche bez kontaktu z triedy bolo sporné.
Návrh č. 5, ktorý prezentoval architektúru troch domov so šikmou strechou, bol síce nádejný, ale premenil sa na predimenzovaný súbor objektov postrádajúci mierku a vzťah k ostatným objektom školského areálu. Objekt bol bezbariérový len vďaka výťahu, pričom pohyb detí po schodišti by prinášal komplikácie a nebol v danej situácii nevyhnutný.
Návrh č. 4, ktorý sa snažil o prepojenie všetkých objektov v areáli, paradoxne "odrezal" centrálny priestor od záhrady. Akcent na verejný centrálny priestor porota vítala, avšak v prevádzke preferovala samostatný vstup do jedálne pred spoločným. Polyfunkčná miestnosť nebola prevádzkovo oddeliteľná.
Návrh č. 9, zastupujúci vertikálny model, riešil prevádzku materskej školy v súvislosti s klesaním záhrady. Toto zaujímavé riešenie na jednej strane otvára centrálny priestor školského areálu do záhrady, na druhej však "utopilo" objekt jedálne za škôlkou. Priestorovo autori volili "ozubenú" schému s vnútornými poloátriami. Zaujímavá "ponuka" prechodu bezpečného átria do otvorenej záhrady narážala na zložitú hmotu, pomerne rozsiahlu fasádu, horšie možnosti osvetlenia a stratu úplnej bezbariérovosti (rampy boli problematické v prípade distribúcie jedla na vozíku). Napriek zaujímavej vizuálnej prezentácii, porota musela opustiť tento návrh hlavne kvôli pavilónovej štruktúre, ktorá nedávala veľa možností pre ekonomickú realizáciu v svahovitom pozemku horského prostredia.

Plánovaná obnova: Moderné, bezpečné a komfortné prostredie
Aktuálne máme hotovú projektovú dokumentáciu, ktorú postupne prerokovávame so všetkými dotknutými inštitúciami. Po splnení potrebných podmienok bude možné požiadať o stavebné povolenie a následne sa uchádzať o vhodnú dotáciu. Plánovaná obnova prinesie moderné, bezpečné a komfortné prostredie pre deti aj personál.
Medzi kľúčové úpravy patria:
- Výmena nosných drevených prvkov: Zabezpečenie statickej integrity a dlhodobej udržateľnosti budovy.
- Úprava vnútorných priestorov: Optimalizácia funkčnosti a estetiky interiéru.
- Vybudovanie bezbariérového vstupu: Zabezpečenie prístupnosti pre všetky deti a zamestnancov.
- Podlahové vykurovanie: Zvýšenie komfortu a energetickej efektívnosti.
- Riadené vetranie s rekuperáciou: Zabezpečenie kvalitného vnútorného prostredia a úspora energie.
- Zlepšenie prirodzeného denného osvetlenia: Vytvorenie príjemnejšieho a zdravšieho prostredia pre deti.
Čiastočne sa zmení aj dispozičné riešenie budovy. Vstup bude orientovaný z dvora, aby mali deti pri pobyte vonku hygienické zázemie priamo poruke. Herňa a spálňa sa zväčšia o viac ako 27 %, čím sa výrazne zlepšia pobytové podmienky detí. Súčasťou obnovy bude aj izolačná miestnosť pre choré deti, kancelária a skladové priestory. Všetky úpravy sú navrhnuté pri zachovaní pôvodných pôdorysných rozmerov budovy. Samozrejmosťou je zateplenie objektu a zlepšenie jeho energetickej efektívnosti.
Trendy v návrhu materských škôl na Slovensku
Článok sa zaoberá aj aktuálnymi trendmi v návrhoch areálov materských škôl na Slovensku, pričom poukazuje na inovatívne prístupy a moderné riešenia, ktoré zohľadňujú potreby detí, učiteľov a komunity. Dôraz sa kladie na udržateľnosť, prepojenie s prírodou a multifunkčnosť priestorov.
Mnohé materské školy na Slovensku sa nachádzajú v zastaraných budovách s nevyhovujúcim technickým stavom, čo si vyžaduje rozsiahle rekonštrukcie alebo výstavbu nových objektov. Príkladom je materská škola na Myjavskej ulici v Starom Meste, ktorá je v katastrofálnom stave a čaká na rekonštrukciu.
Pozitívnym príkladom modernej architektúry materských škôl je ekologický projekt materskej školy kruhového charakteru na Kadnárovej ulici v Rači, postavený z dreva. Nová materská škola v Starom Meste na Myjavskej ulici má byť moderná, presvetlená a prepojená s prírodou, s dôrazom na exteriérové priestory, záhony, hmyzie domčeky a búdky pre vtáčiky.
V Trnave sa plánuje rozšírenie kapacít vo viacerých materských školách, napríklad v MŠ V jame 27, kde pribudnú tri nové triedy a modernizované exteriérové priestory. Revitalizácia areálu materskej školy na ulici Kornela Mahra v Trnave zahŕňa hernú zónu, mobiliár, cvičebné a herné prvky, lavičky, piknikové sety, edukačné tabule, pitnú fontánku a malú vodnú plochu. Značný dôraz sa kladie na vegetáciu a zachovanie vzrastlých stromov.
V Záhorskej Bystrici sa rieši nedostatok kapacít presunutím tried základnej školy do priestorov existujúcej materskej školy a vytvorením nového detského denného centra, ktoré by mohlo slúžiť ako agroškôlka. Nová budova s rustikálnou fasádou, detským ihriskom a oplotením môže byť ideálnym zázemím pre škôlkarov.
Medzi zaujímavé súťažné návrhy na revitalizáciu areálov materských škôl patria tie, ktoré vychádzajú z motívu zvlneného terénu, rozvrhnutia dispozície v tvare trojuholníka, pretiahnutého prízemného tvaru na vrstevnici, architektúry troch domov so šikmou strechou, jednoduchého kvádra jemne zasadeného do terénu, prízemného objektu reagujúceho na mierku areálu, budovy zapadajúcej do okolia s tvaroslovím archetypu stodoly, kompaktnej hmoty zarezanej do svahu, alebo návrhy tried v tvare domčekov so sedlovou strechou. Každý z týchto návrhov prináša odlišný prístup k integrácii materskej školy do prostredia a k naplneniu jej funkčných potrieb.

Obnova materskej školy v Selciach predstavuje dôležitý krok k zabezpečeniu kvalitného predškolského vzdelávania a rozvoja pre miestne deti. Proces, ktorý začal architektonickou súťažou a pokračuje prípravou projektovej dokumentácie, sľubuje vytvorenie moderného a podnetného prostredia, ktoré bude slúžiť budúcim generáciám.