Snívate o vlastnom dome so záhradkou, no obmedzený rozpočet vám nedovoľuje realizovať veľkolepé plány? V dnešnej dobe, keď ceny nehnuteľností, stavebných materiálov a prác neustále rastú, sa otázka cenovo dostupného bývania stáva pre mnohých kľúčovou. Koncept bungalovu, ktorý spája výhody rodinného domu a zároveň ponúka praktické riešenia pre nižšie náklady na výstavbu a prevádzku, sa ukazuje ako atraktívna možnosť. Tento článok sa zameria na možnosti výstavby bungalovu svojpomocne, pričom preskúma jeho pôvod, adaptáciu na slovenské podmienky, energetické aspekty, rôzne typy realizácie a faktory ovplyvňujúce jeho cenu.
Pôvod a adaptácia bungalovu na slovenské podmienky
Bungalov, ako typ obytnej stavby, má svoje korene v Indii, odkiaľ ho anglickí kolonisti preniesli na Britské ostrovy a postupne sa rozšíril do Európy a Ameriky. Pôvodné ľahké, vzdušné drevené stavby s nízkou strechou sa však v našich klimatických podmienkach a pri prísnych stavebných normách museli výrazne adaptovať. Dnes sú však bungalovy prevládajúcim typom novostavieb rodinných domov na Slovensku, a to aj napriek tomu, že ich efektívne vykúrenie môže byť technicky náročné.

Energetický paradox bungalovov a tvar domu
V súvislosti s prísnymi normami energetickej hospodárnosti budov, ktoré vyžadujú výstavbu domov v pasívnom štandarde (energetická trieda A0), môžu byť náklady na vykurovanie a prípravu teplej vody bungalovu paradoxne vyššie ako pri dvojpodlažnom dome s porovnateľnou výmerou. Kľúčovým faktorom v tomto ohľade je tzv. faktor tvaru, ktorý predstavuje pomer vonkajších plôch k vnútornému objemu stavby. Zjednodušene povedané, čím je tvar domu členitejší, tým je náročnejšie ho vykúriť a naopak, ideálny je čo najkompaktnejší tvar. Kompaktný tvar minimalizuje tepelné straty cez obvodové múry a strechu, čo je pri bungalovoch, ktoré majú prirodzene väčšiu plochu obálky stavby v pomere k vnútornému objemu, obzvlášť dôležité.
Pasívny dom vysvetlený za 90 sekúnd
Dom na kľúč: Čo to znamená v praxi?
Pojem „dom na kľúč“ nie je definovaný zákonom ani vyhláškou, čo znamená, že na stavebnom trhu existuje široké spektrum služieb pod týmto označením. Niektoré firmy vám postavia iba hrubú stavbu, iné holodom, a ďalšie zrealizujú stavbu podľa vášho projektu. Existujú však aj firmy, ktorých produkt „dom na kľúč“ zahŕňa celý proces od odbornej prípravy projektu, cez vybavenie stavebného povolenia, prípravu pozemku, samotnú realizáciu výstavby, čistenie staveniska až po kolaudáciu. Je preto nevyhnutné si presne definovať, aký rozsah služieb od stavebnej firmy očakávate, nakoľko sa od toho odvíja aj konečná cena diela.
Cena a hodnota bývania v súčasnosti
Ceny nehnuteľností na Slovensku už niekoľko rokov rastú, pričom medziročné cenové skoky sú často dvojciferné. Tento vývoj, pripomínajúci situáciu z roku 2007 pred prasknutím realitnej a hypotekárnej bubliny, je poháňaný aj relatívne lacnými hypotékami. Napriek historicky rekordným cenám nehnuteľností a stavebných materiálov, ktoré medziročne narástli aj o štvrtinu, môžeme v niektorých prípadoch stále hovoriť o cenovo dostupnom bývaní, najmä v porovnaní s cenami bytov. Štatistický úrad SR a Národná banka Slovenska priebežne sledujú a zverejňujú orientačné ceny nehnuteľností. V roku 2021 bola napríklad priemerná cena za meter štvorcový rodinného domu na Slovensku 1594 €.
Faktory ovplyvňujúce cenu bungalovu
Celková cena bungalovu na kľúč je ovplyvnená viacerými základnými faktormi:
- Výmera: Väčšia zastavaná a úžitková plocha prirodzene zvyšuje cenu.
- Tvar: Členitejší pôdorys zvyšuje náročnosť výstavby a tým aj cenu. Kompaktné tvary sú ekonomickejšie.
- Poloha a orientácia: Orientácia domu voči svetovým stranám ovplyvňuje energetickú náročnosť a cenu pozemku.
- Lokalita: Ceny stavebných pozemkov a prác sa líšia v závislosti od regiónu. Bungalov postavený v Bratislave a okolí bude vždy drahší ako v menej exponovanej lokalite. Ceny v Bratislave sa môžu pohybovať od 110 000 do 350 000 €.
- Výber spôsobu vykurovania, ohrevu vody, chladenia a vetrania: Moderné systémy ako tepelné čerpadlá, podlahové vykurovanie či rekuperácia zvyšujú počiatočné náklady, ale znižujú prevádzkové.
- Cena stavebných materiálov: Vývoj cien na trhu má priamy vplyv na celkovú cenu stavby.
- Cena zariadení a technológií technického zabezpečenia: Kvalitné a moderné technológie zvyšujú cenu domu.
- Cena interiérového vybavenia: Od štandardného až po luxusné vybavenie ovplyvňuje konečnú sumu.
- Cena stavebných prác: Náklady na prácu stavebných firiem tvoria významnú časť celkového rozpočtu.
Faktor času: Svojpomocne verzus na kľúč
Porovnanie časovej náročnosti výstavby domu svojpomocne s realizáciou na kľúč je vysoko individuálne. Vo všeobecnosti však platí, že svojpomocná výstavba trvá vždy dlhšie ako stavba realizovaná na kľúč. Kvalitne postavený murovaný bungalov od základov až po dokončenie môže byť firmou zrealizovaný za niekoľko mesiacov.
Výhody a nevýhody stavby bungalovu na kľúč
Stavba bungalovu na kľúč je jednoznačnou voľbou, pokiaľ chcete mať svoj dom postavený profesionálne, kvalitne, relatívne rýchlo a prakticky bez starostí. Medzi nevýhody patrí vyššia cena v porovnaní so svojpomocnou výstavbou a menšia flexibilita v procese rozhodovania.
Katalógové projekty: Ideálne pre úzke pozemky a mladé rodiny
Projekty rodinných domov typu bungalov patria medzi najpredávanejšie. Sú obzvlášť vhodné pre úzke pozemky, kde maximalizujú obmedzený priestor pri zachovaní funkčnosti domu. Projekty malých rodinných domov sú kategóriou lacnejších domov, ktoré sú nenáročné na veľkosť pozemku a môžu byť prízemné alebo poschodové. Tieto domy často vyhovujú mladým rodinám, zatiaľ čo starším ľuďom vyhovujú hlavne bezbariérové prízemné domy.
Príkladom cenovo dostupného riešenia je Bungalow 203, lacný murovaný dom určený pre úzke pozemky, vhodný pre 1-2 osoby. Tento katalógový projekt je navrhnutý s dôrazom na úsporu prevádzkových nákladov. Dispozícia zahŕňa vstupnú chodbu, dennú časť (spojená obývačka s kuchyňou v tvare L, ktorá poskytuje dostatočnú pracovnú plochu a priestor pre jedálenský stôl), spálňu so šatníkom (s možnosťou pracovného kútika) a kúpeľňu navrhnutú na montáž rohového sprchového kúta, umývadla a WC. Dom je bezbariérový, čo ho robí vhodným aj pre osoby so zníženou mobilitou.

Finančné možnosti: Hypotéky a alternatívy
Financovanie výstavby rodinného domu z vlastných prostriedkov je pre väčšinu Slovákov nemožné. Hlavnou možnosťou je hypotekárny úver, avšak banky v poslednom období sprísnili pravidlá pre jeho poskytovanie. Alternatívou k drahým bytom sú menšie a tým aj lacnejšie montované domy, ktoré ponúkajú súkromie a sú cenovo dostupné pre mladé rodiny aj starších manželov.
Kompaktné bungalovy: Efektívne bývanie do 80 m²
Kompaktné bungalovy s úžitkovou plochou do 80 m² predstavujú efektívne riešenie bývania. Napríklad dom s úžitkovou plochou 61,9 m² a obytnou plochou 38,6 m² ponúka priestrannú obývaciu izbu spojenú s kuchyňou a jedálenským kútom, dve samostatné izby (spálňa a detská izba/pracovňa) a samostatné WC s kúpeľňou.
Ďalším príkladom je bungalov s úžitkovou plochou 75 m² a obytnou plochou 44,5 m², ktorý je vhodný pre 3-4 člennú rodinu. Disponuje dennou časťou (obývacia izba s jedálňou a kuchyňou so skladom potravín) a nočnou časťou s dvoma priestrannými izbami. Samostatná kúpeľňa a WC, pričom v kúpeľni je aj malá práčovňa, sú ďalšími výhodami.
Pre veľmi úzke a dlhé pozemky je ideálnym riešením montovaný dom s tromi veľkými izbami (spálňa rodičov a dve detské izby), ktorý ponúka bývanie pre 4-5 člennú rodinu. Súčasťou je priestranná obývacia izba s kuchyňou, kúpeľňa, samostatná špajza a sklad. Z obývacej izby je priamy vstup na terasu.
Bonusovým tipom je montovaný dom vytvorený podľa individuálnych požiadaviek zákazníka, vhodný na úzke pozemky pre 3-člennú rodinu, so zastavanou plochou 99 m² a úžitkovou plochou 78 m². Tento dom má dennú a nočnú časť, pričom v dennej časti sa nachádza krbová vložka.
Všetky tieto príklady ukazujú, že aj s menším obnosom peňazí je možné postaviť kvalitný montovaný dom.
Bungalov ako kompromis medzi domom a bytom
Bungalovy si získavajú popularitu vďaka spojeniu výhod domu a bytu. Ponúkajú moderné bývanie v dome so záhradou a zároveň všetky miestnosti v jednej úrovni, čím eliminujú potrebu behať po schodoch. Typ a veľkosť domu závisí od počtu osôb, veľkosti a tvaru pozemku, ako aj od rodinného rozpočtu. Pri plánovaní je dôležité myslieť aj do budúcnosti.
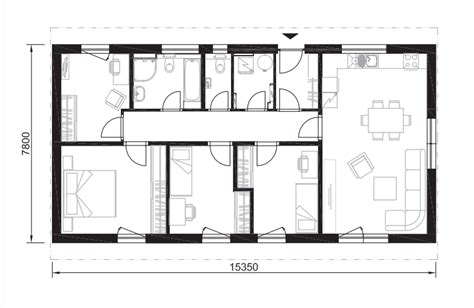
5-izbový bungalov poskytne dostatok priestoru pre viacčlennú rodinu, vrátane priestrannej obývačky (často spojenej s kuchyňou alebo jedálňou) a štyroch plnohodnotných izieb. Obvykle zahŕňa väčšiu spálňu rodičov s vlastnou kúpeľňou a šatníkom, detské izby, a prípadne pracovne alebo hosťovskú izbu.
Výstavba bungalovu si vyžaduje dostatočne veľký pozemok, ktorý umožní dodržanie predpisov a zároveň dostatok priestoru pre zeleň, terasu či parkovanie. Medzi nevýhody patrí väčšia plocha obálky stavby, čo znamená väčšie tepelné straty a náklady na vykurovanie. Taktiež väčší dom znamená vyššie náklady na stavbu a údržbu. Napriek tomu, že priestory v jednej úrovni zjednodušujú výstavbu, vyžadujú väčšiu plochu základov a strechy.
K výhodám bungalovu patrí aj rýchlosť výstavby, jednoduchosť konštrukcie (bez horného podlažia), nenápadný vzhľad v krajine a prirodzená bezbariérovosť, čo ich robí ideálnym riešením pre mladé rodiny aj starších ľudí. Pri návrhu 5-izbového bungalovu je dôležité zohľadniť aj tvar strechy, najmä pri členitejšom pôdoryse, a to s ohľadom na celkový vzhľad domu a náročnosť zhotovenia strešnej konštrukcie.
Stavba montovaného domu svojpomocne: Výhody a riziká
Stavba montovaného domu svojpomocne môže byť lacnejšia ako stavba na kľúč, avšak nesie so sebou riziko neodborne odvedenej práce, čo môže viesť k zníženiu životnosti, kvality a stability stavby. Spoliehať sa na pomoc priateľov a známych v dnešnej hektickej dobe je málo reálne.
Napriek tomu je možné zrealizovať si kvalitný montovaný dom aj svojpomocne. Výhodou je možnosť vytvoriť si vlastný časový harmonogram a prispôsobiť ho dostupným finančným prostriedkom. Mnohí zastávajú názor, že výhodou stavby svojpomocne je možnosť použiť ľubovoľný materiál podľa vlastných preferencií a finančných možností. Toto však nie je výhodou, ak nie ste odborníkom na drevostavby. Špecializované firmy presne vedia, aké materiály a s akými vlastnosťami spolu vytvoria kvalitný nízkoenergetický celok, čo zaručuje nielen nízke prevádzkové náklady, ale aj dlhú životnosť stavby.
Pre dlhodobú spokojnosť s novým montovaným domom sa odporúča kombinácia stavby svojpomocne a pomoci kvalifikovanej firmy. V tomto prípade si časť zložitých prác necháte zhotoviť odborníkmi a časť finálnych prác si môžete dokončiť sami.

Cenový strop do 20 000 eur: Realita alebo mýtus?
Vzhľadom na rastúce ceny stavebných materiálov, odborných prác a energií, ako aj na povinné požiadavky na úsporu energií (energetická trieda A0), je postaviť si dom na kľúč do 20 000 eur v súčasnosti prakticky nemožné. V zahraničí je populárny koncept tzv. mikrodomu, ktorý minimalizuje stavebné náklady a poskytuje minimálny, no funkčný životný priestor. Tieto domy sú však často stavané svojpomocne a za iných klimatických a legislatívnych podmienok.
V našich podmienkach môžu byť jednou z možností pri nízkom rozpočte modulové domy, ktoré umožňujú postupné pridávanie miestností podľa potrieb a finančných možností. Koncept tzv. rastúcich domov, ktoré umožňujú flexibilné rozšírenie dispozície v budúcnosti, tiež spĺňajú túto požiadavku.
Definícia domu na kľúč zahŕňa kompletnú dokončenú stavbu s hotovými podlahami, stierkami, obkladmi, dverami a osadenými sanitárnymi prvkami. V súčasnosti sa cena domu na kľúč pohybuje zhruba od 1600 eur za m² úžitkovej plochy. Platí, že čím je dom menší, tým vyššie sú náklady v prepočte na meter štvorcový. Projekt na mieru vás vyjde od 2000 eur a viac, zatiaľ čo katalógový projekt začína od 1000 eur. Pri svojpomocnej stavbe môžete rátať s úsporou približne 10-30 %, avšak za cenu značného množstva času, vybavovania a zháňania materiálov.
Stavba rodinného domu: Zložitý proces vyžadujúci plánovanie
Výstavba rodinného domu je veľkým, časovo a finančne náročným krokom, ktorý si vyžaduje starostlivé plánovanie a primerané finančné prostriedky. Náklady na stavbu domu závisia od mnohých faktorov, ako sú miesto výstavby, veľkosť a tvar domu, materiálové zloženie, parametre pozemku a ďalšie. Stáročiami overené murované domy sú stále v kurze, vydržia slúžiť celé generácie a patria u nás k najobľúbenejším.
Požiadavky na úsporu energie a zníženie záťaže životného prostredia taktiež ovplyvňujú celkovú cenu výstavby. Pri obmedzenom rozpočte je dôležité si vybrať rovinatý pozemok s ľahko dostupnými inžinierskymi sieťami v blízkosti, nakoľko svahovitý pozemok a zlý prístup k inžinierskym sieťam dokážu stavbu skomplikovať a predražiť. Pri obmedzenom rozpočte tiež nie je priestor na nadštandardné materiály či špeciálne požiadavky.
Pri rozhodovaní o tvare strechy treba brať do úvahy, že plochá strecha znamená asi o 25 % väčšiu využiteľnú plochu. V súčasnosti sa cena murovaného domu na kľúč pohybuje zhruba od 1500 eur za meter štvorcový úžitkovej plochy, pričom platí, že čím je plocha domu menšia, tým je cena za štvorec vyššia. Výber realizačnej firmy je kľúčový, ideálne je, ak vám niekto na základe skúsenosti odporučí spoľahlivú firmu s dlhoročnými skúsenosťami.
Katalógové projekty sú cenovo efektívnejšie, no niekedy je potrebné ich prispôsobiť individuálnym potrebám alebo vlastnostiam pozemku. Individuálny projekt je síce nákladnejší, ale poskytuje väčšiu flexibilitu. Murované domy majú v porovnaní s montovanými dlhšiu životnosť a sú odolnejšie.
Investícia do rodinného domu je dlhodobý záväzok, preto treba dôkladne premyslieť všetky aspekty stavby a poradiť sa s odborníkmi ešte v štádiu plánovania, aby ste sa vyhli nepríjemným prekvapeniam.
tags: #lacny #bungalov #na #vystavbu #svojpomocne