Výber nového rodinného domu je jedným z najdôležitejších rozhodnutí v živote. Predstavuje nielen investíciu do bývania, ale aj vytvorenie priestoru pre rast a rozvoj rodiny. V súčasnosti existuje široká škála projektov rodinných domov, ktoré sa líšia veľkosťou, dispozíciou, štýlom a cenou. Medzi najpopulárnejšie patria bungalovy a poschodové domy, pričom každý z nich má svoje špecifické výhody a nevýhody.
Bungalov ako Ideálna Voľba pre Moderné Bývanie
Projekt bungalovu predstavuje ideálne bývanie pre tých, ktorí uprednostňujú jednopodlažné rodinné domy. Tento typ domu je obzvlášť vhodný na rovinatý alebo mierne svahovitý terén, čo zjednodušuje a zlacňuje jeho výstavbu. Jednopodlažné riešenie eliminuje riziko pádu zo schodov, čo ho robí bezpečnejšou voľbou pre rodiny s malými deťmi alebo starších ľudí.
Veľký bungalov by sme už dnes mohli považovať za štandard. Väčšina ľudí totiž chce a hlavne potrebuje dostatok priestoru pre seba, svoju rodinu a koníčky. Ruka v ruke s veľkosťou však ide aj obstarávacia cena. Napriek tomu, Veľký bungalov plne pokryje požiadavky napríklad štvorčlennej rodiny. Zároveň vám zostane dostatok priestoru na oblečenie, domáce spotrebiče a veci. Vo väčšine prípadov teda nemusíte voliť žiadne kompromisy a naplno si užívate benefity domácnosti. K tomu treba započítať aj ďalšie klady vyplývajúce z faktu, že bývate v bungalove.

Niektoré projekty bungalovov sú navrhnuté s dôrazom na priestrannosť a funkčnosť. Napríklad, projekt s rozmermi 10 x 14,77 m ponúka vstup cez zádverie, ktoré umožňuje vstup do technickej miestnosti a ďalej do chodby. Chodba spája domácnosť so všetkými ostatnými časťami, vrátane dvoch samostatných izieb, pričom s jednou z nich susedí aj kúpeľňa. Z chodby sa ďalej dostanete do veľkej obývačky spojenej s kuchyňou, ku ktorej prináleží aj samostatná komora. Cena takéhoto bungalovu 50 začína na 43 260€ za hrubú stavbu.
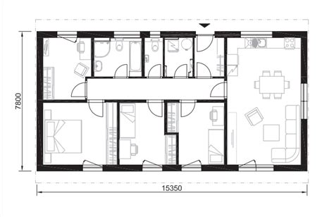
Iný, o niečo priestrannejší projekt, Bungalov 64, má rozmery 18,95 x 10 m. Do domu sa vstupuje cez zádverie, ktoré spája dom s ďalšími časťami, ako je kuchyňa so špajzou. Ďalej tu nájdeme obývaciu izbu prepojenú práve s kuchyňou a aj zádverím. Keď postúpime ďalej do domu, dostaneme sa do chodby.
Bungalov 3 je príkladom veľkého bungalovu v tvare písmena L s rozmermi 12,8 m x 13,8 m. Do domu sa vstupuje štandardne cez zádverie, cez ktoré sa dostanete do priestrannej technickej miestnosti, ale aj chodby. Tá potom spája všetky časti domu. Určite vás zaujme veľká obývačka s jedálňou a kuchyňou (so samostatnou komorou). Cena Bungalovu 3 začína na 43 120€.
Jeden z najväčších ponúkaných domov, s rozmermi 16,5 m x 11,7 m, je ideálny pre každého, kto má rád resp. vyžaduje priestrannú domácnosť. Zvyčajne hovoríme o rodine s jedným alebo viacerými deťmi, práve tí dokážu azda najviac oceniť benefity plynúce z veľkosti takého domu. Do domácnosti sa vstupuje cez zádverie, ktoré umožňuje vojsť do technickej miestnosti, samostatného WC a obývačky. Obývacia izba je spojená s kuchyňou (a vlastnou komorou) a chodbou.

Priaznivci moderného dizajnu ocenia projekt moderného 4 izbového murovaného rodinného domu s plochou strechou Bungalow 204. Tento dom, vhodný na realizáciu na rovinatom až mierne svahovitom pozemku v nízkej okolitej zástavbe, ponúka veľké izby, množstvo denného svetla a možnosť vychádzať do exteriéru z každej izby. Interiér domu je navrhnutý s ohľadom na potrebu súkromia aj spoločného stretávania. Po otvorení vstupných dverí sa ocitnete v predsieni, ktorá je od chodby vedúcej k jednotlivým miestnostiam oddelená posuvnými dverami. Rodinný dom s krbom Bungalow 204 spája obývačku a kuchyňu do jedného priestoru, čo priam pozýva na spoločné rozhovory. Návrh kuchyne myslí na potrebu miesta pri príprave rôznych pokrmov a nápojov; kuchynská linka v tvare U vám okrem toho poskytne miesto na odkladanie všetkých kuchynských potrieb. V časti určenej na jedáleň je možné situovať jedálenský stôl pre 6 osôb. Obývačke dominuje vstavaný krb, ktorý sa postará o jedinečnú atmosféru počas posedení s rodinou a priateľmi. Užívať si môžete tiež výhľad na okolitú zeleň. Podlahová plocha obývačky umožňuje umiestnenie sedacej súpravy pre 4 - 6 osôb. Tiché prostredie, v ktorom budete mať dostatok súkromia, nájdete v nočnej časti domu. Bungalow 204 má v nočnej časti domu tri izby. Jednu z nich môžete zariadiť ako spálňu s manželskou posteľou a vstavaným šatníkom. Priestranné detské izby sa dajú zariadiť pre jedno alebo dve deti, ich podlahová plocha vám umožní vytvoriť prostredie, v ktorom si každé z detí nájde svoje súkromie. Okrem postelí pre ne môžete vybrať písacie stolíky, šatníky, regály na hračky a iný nábytok. Kúpeľňa je situovaná vedľa izieb a jej návrh počíta s montážou vane a dvojumývadla. Nachádzať sa tu môže tiež práčka. Potreby na každodennú hygienu si odložíte do skriniek. Dostatok úložného priestoru vám poskytnú šatníky v izbách; vstavaný šatník je možné umiestniť tiež na chodbu. Tento rodinný dom s krbom sa radí medzi domy strednej veľkostnej kategórie.
Plochá strecha, ktorá sa po rokoch opäť teší veľkej obľube, dodáva rodinným domom aj iným stavbám na zaujímavosti. Domy s rovnou strechou majú sklon strechy maximálne 10°, pričom minimálny sklon strechy by mal byť 2°. Rovná strecha prispieva k naplneniu prísnych požiadaviek na šetrenie energiami na vykurovanie pre nízkoenergetické aj pasívne domy. Záležať bude najmä na vhodnej voľbe konštrukčného materiálu.
Poschodový Dom: Maximalizácia Úžitkovej Plochy na Menšom Pozemku
Projekt poschodového domu je ideálnou voľbou v prípade, ak sme obmedzení veľkosťou pozemku a zároveň chceme získať čo najväčšiu úžitkovú plochu. Prednosťou poschodového domu je fakt, že sa dá pohodlne a prakticky oddeliť denná časť od nočnej. To znamená, že obytné priestory, ako obývačka a kuchyňa, môžu byť umiestnené na prízemí, zatiaľ čo spálne a súkromné izby sa nachádzajú na poschodí.
Tento moderný murovaný dom so štyrmi izbami spĺňa požiadavky väčšej rodiny. Tento priestranný 4 izbový rodinný dom je ideálny pre väčšiu rodinu. Tento skromný 3 izbový dom je ideálny pre troj- až štvorčlennú rodinu. Tento útulný trojizbový dom je vhodný pre pohodlné bývanie menšej rodiny. Dispozícia 6-izbového domu vďaka svojim veľkorysým rozmerom vyhovuje všetkým členom rodiny, kde každý člen rodiny bude mať svoj vlastný priestor.

Veľkosť Domu a Jej Vplyv na Výber
Veľkosť domu je kľúčovým faktorom pri výbere projektu. Veľký dom umožňuje využitie domácnosti prakticky bez kompromisov a zároveň poskytuje dostatok priestoru pre rastúcu rodinu a jej potreby. Avšak, musíme zvážiť aj opačný pohľad - veľký dom sa vo väčšine prípadov spája s vyššou obstarávacou sumou. Na takýto dom potrebujete aj náležitý stavebný pozemok. Nájsť taký, na ktorý veľký dom "napasujete", nemusí byť vôbec ľahké a zároveň bude poriadne drahý.
Pri výbere projektu je dôležité zohľadniť nielen počet izieb, ale aj celkovú úžitkovú plochu a jej rozloženie. Napríklad, 3-izbový rodinný dom disponuje dvoma spálňami a útulnou obývacou izbou, čo je ideálne pre menšie rodiny. Priestrannejší 4-izbový rodinný dom je vhodný pre väčšiu rodinu a 6-izbový dom poskytuje dostatok priestoru pre každého člena rodiny s možnosťou vytvorenia vlastného súkromného priestoru.
Nízkoenergetické a Pasívne Domy
Naša spoločnosť sa špecializuje na výstavbu nízko energetických rodinných domov na Slovensku a v Čechách. Nízkoenergetické a pasívne domy predstavujú moderný trend v stavebníctve, ktorý sa zameriava na minimalizáciu spotreby energie na vykurovanie a celkovo na prevádzku domu. Projekty s plochou strechou, ako napríklad Bungalow 204, môžu prispieť k naplneniu prísnych požiadaviek na šetrenie energiami, najmä ak je zvolený vhodný konštrukčný materiál.
Cesta za vaším vysnívaným bývaním začína výberom vhodného projektu. Je dôležité zvážiť všetky vaše potreby a preferencie, ako aj možnosti vášho pozemku a rozpočtu. Či už sa rozhodnete pre bungalov alebo poschodový dom, kľúčom je nájsť projekt, ktorý bude spĺňať vaše očakávania a vytvorí vám priestor pre šťastný a pohodlný život.

V našom katalógu projektov nájdete takmer 70 rôznych návrhov domov, medzi ktorými si určite vyberiete ten pravý pre vás. Hľadáte projekt na veľký bungalov? Už ste (možno) našli.