Bungalov, ako forma jednopodlažného rodinného domu, sa teší čoraz väčšej popularite. Jeho výhody spočívajú predovšetkým v praktickosti, bezbariérovosti a jednoduchom prepojení interiéru s exteriérom. V tomto článku sa zameriame na špecifický typ bungalovu - bungalov so štyrmi izbami, ktorý predstavuje ideálne riešenie pre rastúce alebo početnejšie rodiny, no zároveň ponúka komfort a priestor aj pre menšie domácnosti hľadajúce nadštandardné bývanie.

Dispozičné riešenie a funkčnosť
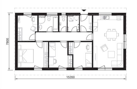
Charakteristickým znakom moderných bungalovov je dôraz na funkčné a logické usporiadanie priestoru. Bungalov so štyrmi izbami je navrhnutý tak, aby poskytoval dostatok súkromia pre každého člena rodiny, ale zároveň podporoval spoločné trávenie času. Typická dispozícia zahŕňa priestrannú dennú zónu, ktorá spája obývaciu izbu s jedálňou a kuchyňou. Tento otvorený koncept podporuje sociálnu interakciu a vytvára vzdušný, presvetlený priestor.
V rámci dennej zóny je často prítomný priamy výstup na terasu, ktorá slúži ako prirodzené rozšírenie obývacej izby a jedálne. Terasa, často pozdĺž domu alebo s prístupom z viacerých miestností, poskytuje ideálne miesto na relaxáciu, grilovanie a trávenie voľného času v exteriéri. Niektoré projekty dokonca ponúkajú vstavaný krb na terase, čím predlžujú jej využiteľnosť aj počas chladnejších večerov.
Nočná časť domu je strategicky oddelená od dennej zóny, čím zabezpečuje kľud a súkromie pre spálne. Bungalov so štyrmi izbami zvyčajne disponuje hlavnou spálňou rodičov, ktorá môže byť doplnená o vlastný šatník a súkromnú kúpeľňu. Týmto spôsobom sa vytvára akési "kráľovstvo rodičov" s maximálnym komfortom. Ďalšie izby môžu slúžiť ako detské izby, hosťovská izba alebo domáca pracovňa, čím sa napĺňajú rôznorodé potreby moderného bývania.
Okrem spální a obývacej izby sú súčasťou dispozície aj nevyhnutné technické a hygienické miestnosti. Bežne nájdeme samostatné WC pre väčšiu praktickosť a pohodlie, ako aj technickú miestnosť, ktorá slúži na umiestnenie kotla, práčky, sušičky a zároveň môže poskytnúť priestor na skladovanie. Niektoré projekty navyše ponúkajú aj komoru, ktorá je neoceniteľná pre uskladnenie potravín či domácich potrieb.

Konštrukčné a materiálové riešenia
Bungalovy sú často realizované ako montované domy, čo prináša radu výhod. Rýchla realizácia výstavby je jedným z kľúčových faktorov. Vďaka predpripraveným komponentom a presnému výrobnému procesu je možné postaviť dom v krátkom čase, čo šetrí čas aj náklady. Použitie keramických stien, ako je spomenuté v niektorých popisoch, zabezpečuje dobré tepelno-izolačné vlastnosti a zdravotnú nezaťažujúcu vnútornú klímu. Obvodové keramické steny môžu byť dodávané už so základným zateplením, čo je ďalším krokom k energetickej efektivite.
Výstavba keramických domov často zahŕňa predprípravu pre rozvody elektriny a vody priamo v stenách, čo zjednodušuje inštaláciu a minimalizuje dodatočné stavebné práce. Štandardným typom krovu je väzníkový drevený krov, najčastejšie so sedlovou strechou, ktorá je tradičná a osvedčená. V prípade záujmu je však možné si doobjednať iný typ strešnej konštrukcie.
Exteriér montovaného domu je zvyčajne dokončený na kľúč. To znamená, že dom je zvonka kompletne hotový, vrátane vchodových dverí, okien, strešnej krytiny, odkvapového systému a vonkajších omietok vo zvolenom farebnom odtieni. Štandardné zateplenie býva realizované minerálnou vlnou, ale typ a hrúbku zateplenia je možné upraviť podľa požiadaviek stavebníka.
Interiér domu je po dodaní taktiež zväčša dokončený a pripravený ku kolaudácii. Klient si pred nasťahovaním potrebuje dokúpiť už len konečné podlahové krytiny v obytných miestnostiach, kuchynskú linku, svietidlá a interiérové dvere. Kúpeľne sú obvykle dokončené so sanitou, obkladom aj dlažbou. Všetky ostatné remeselné práce sú ukončené na 100%, čo znamená minimálne dodatočné starosti pre budúceho majiteľa.

Energetická efektívnosť a ekonomické aspekty
Nízka spotreba energií počas bývania je jedným z hlavných benefitov moderných bungalovov. Vďaka kvalitnému zatepleniu, moderným oknám a premyslenému dizajnu sa minimalizujú tepelné straty, čo sa priamo premieta do nižších nákladov na vykurovanie a celkovú prevádzku domu. Tieto domy sú často označované ako nízkoenergetické, čo znamená, že ich energetická náročnosť je výrazne nižšia v porovnaní s klasickými stavbami.
Nízke výrobné náklady, najmä v prípade montovaných domov, spolu s rýchlou realizáciou výstavby, robia z bungalovov ekonomicky atraktívne riešenie. Hoci počiatočná investícia môže byť vyššia ako pri menších domoch, dlhodobé úspory na energiách a potenciálne nižšie náklady na údržbu kompenzujú počiatočné výdavky.
Cena domu sa samozrejme odvíja od konkrétneho projektu, použitých materiálov, stupňa dokončenia a lokalizácie. Je dôležité si uvedomiť, že uvádzaná cena je často konečná a nezvyšuje sa o províziu sprostredkovateľa. V cene býva zahrnuté aj právne poradenstvo, vyhotovenie kúpnych zmlúv, hypotekárne poradenstvo a úhrada správneho poplatku za návrh na vklad do katastra nehnuteľností.
Pred vypracovaním cenovej ponuky je nevyhnutné zadať lokalitu výstavby. Miestne podmienky, dostupnosť inžinierskych sietí a spôsob dopravy materiálu ovplyvňujú technický spôsob výstavby a celkové náklady. Presné určenie lokality umožňuje vypracovať najpresnejšiu cenovú ponuku.
Domácnosť spotrebuje menej energie, ako vyprodukuje
Prispôsobenie projektu a individuálne potreby
Hoci katalógové projekty ponúkajú premyslené a overené riešenia, možnosť úpravy projektu podľa individuálnych potrieb a charakteristík pozemku je často samozrejmosťou. Ak sa vám páči konkrétny projekt, ale potrebovali by ste drobné zmeny v dispozícii, alebo ak máte vlastný návrh, je možné ho konzultovať a prispôsobiť vašim predstavám.
Táto flexibilita umožňuje vytvoriť dom, ktorý dokonale zodpovedá životnému štýlu a požiadavkám konkrétnej rodiny. Napríklad, ak máte špecifické nároky na úložné priestory, je možné do projektu zakomponovať viac šatníkov alebo komôr. Rovnako tak je možné upraviť veľkosť a orientáciu terasy, či počet a veľkosť okien pre optimálne presvetlenie interiéru.
Niektorí stavebníci využívajú možnosť realizovať časť prác svojpomocne, napríklad základovú dosku. Táto možnosť im umožňuje prispôsobiť si začiatok výstavby podľa svojich časových a finančných možností, pričom si zachovávajú kontrolu nad dôležitými časťami procesu.

Bungalov ako trend v bývaní
Bungalovy, najmä tie s moderným dizajnom a dôrazom na energetickú efektívnosť, sa stali jedným z najžiadanejších typov rodinných domov. Ich popularita je podmienená kombináciou praktickosti, komfortu a možnosti vytvorenia harmonického bývania.
Kľúčové vlastnosti bungalovu so 4 izbami:
- Priestrannosť: 4 izby poskytujú dostatok priestoru pre celú rodinu.
- Funkčná dispozícia: Logické rozdelenie na dennú a nočnú časť.
- Prepojenie s exteriérom: Častý výstup na terasu z obývacej izby a spální.
- Komfort: Možnosť vlastnej kúpeľne a šatníka v hlavnej spálni.
- Energetická úspornosť: Nízke prevádzkové náklady.
- Rýchla výstavba: Výhoda montovaných domov.
- Flexibilita: Možnosť prispôsobenia projektu.
- Bezbariérovosť: Ideálne pre všetky vekové kategórie.
Bungalov so štyrmi izbami nie je len domom, ale priestorom, ktorý rastie s rodinou, poskytuje útočisko a podporuje spoločné chvíle. Je to investícia do kvality bývania a spokojného života. Či už hľadáte dom pre mladú rodinu, alebo si chcete dopriať viac priestoru a komfortu, tento typ bungalovu predstavuje vynikajúcu voľbu.