Ambroseho ulica v Bratislave, konkrétne v mestskej časti Petržalka, predstavuje lokalitu, ktorá si získava čoraz väčšiu pozornosť nielen vďaka svojej polohe, ale aj vďaka rastúcemu počtu nehnuteľností, ktoré ponúkajú komfortné a praktické bývanie. Medzi nimi vyniká ponuka priestranného 4-izbového bytu, ktorý spája výbornú dispozíciu, dostatok denného svetla a pokojnú atmosféru s vynikajúcou občianskou vybavenosťou a dostupnosťou do centra mesta. Tento byt, nachádzajúci sa na začiatku Petržalky, je ideálnym miestom pre rodiny s deťmi, ale aj pre páry hľadajúce priestor a kvalitu bývania.

Výhody a benefity bývania na Ambroseho ulici
Lokalita na začiatku Petržalky, kde sa nachádza aj Ambroseho ulica, je strategicky výhodná. Poskytuje totiž ideálnu kombináciu pokojného bývania s dostatkom zelene a zároveň vynikajúcu dostupnosť do centra Bratislavy. V blízkosti bytu sa nachádza kompletná občianska vybavenosť, ktorá zabezpečuje pohodlný život. Môžeme spomenúť obchody ako Kraj, Kaufland, Lidl a Tesco, ktoré pokrývajú všetky základné potreby. Pre rodiny s deťmi sú dôležité aj školy a škôlky, ktoré sú v pešej dostupnosti. Milovníci prírody ocenia blízkosť Petržalského lesíka a Draždiaku, ktoré ponúkajú možnosti na oddych, športové aktivity a prechádzky. Neďaleko sa nachádza aj Petržalská tržnica a nemocnica, čo zvyšuje komfort bývania.
Ďalším významným benefitom tejto lokality je jej pokojná atmosféra. Bytový dom, v ktorom sa byt nachádza, je súčasťou menšej zástavby, čo zaručuje minimálny ruch a dobré susedské vzťahy. Prítomnosť len ôsmich bytov v dome znamená viac súkromia a pokojnejšie prostredie. Ulica Ambroseho je navyše slepá ulica, čo znamená minimálnu dopravu a tým pádom aj bezpečnejšie prostredie, najmä pre deti. Regulované mestské rezidenčné parkovanie navyše zjednodušuje situáciu s parkovaním pre obyvateľov.

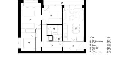
Dispozičné riešenie a priestor bytu
Priestorový komfort je jedným z hlavných predností tohto 4-izbového bytu. S celkovou podlahovou plochou 84 m2 (v niektorých ponukách uvádzaných ako 81,75 m2 alebo 86 m2) a prislúchajúcou loggiou o výmere 3,66 m2 (alebo 4 m2), byt ponúka dostatok miesta pre celú rodinu. Dôležitým aspektom je aj pivnica na prízemí s výmerou 1,8 m2 (alebo 2 m2), ktorá poskytuje dodatočný úložný priestor.
Dispozícia bytu je mimoriadne praktická a funkčná. Všetky štyri izby sú samostatné a prístupné z centrálnej haly, čo zabezpečuje súkromie pre každého člena domácnosti. Toto riešenie je ideálne pre rodiny, kde každý potrebuje svoj vlastný priestor na relaxáciu a prácu. Orientácia bytu na dve svetové strany, konkrétne na východ a západ, zaručuje celodenné prirodzené presvetlenie. Ranné slnko poteší na východnej strane, zatiaľ čo popoludňajšie slnko z tej západnej vytvára príjemnú svetelnú atmosféru počas celého dňa.

Rekonštrukcia a vybavenie bytu
Byt prešiel viacerými rekonštrukciami, ktoré zvyšujú jeho komfort a hodnotu. Medzi kľúčové vylepšenia patria:
- Nová kuchynská linka so spotrebičmi: Moderná kuchynská linka je vybavená všetkými potrebnými spotrebičmi, vrátane umývačky riadu, čo uľahčuje každodenné varenie a upratovanie.
- Prerobená kúpeľňa a WC: Vylepšené sociálne zariadenia zvyšujú komfort bývania. V niektorých prípadoch je spomenutá aj rohová vaňa v kúpeľni.
- Plastové okná: Vymenené plastové okná zabezpečujú lepšiu tepelnú a zvukovú izoláciu, čo prispieva k úspore energií a tichšiemu prostrediu.
- Nová rozvodová skriňa a elektroinštalácia: Modernizácia elektroinštalácie v kuchyni a kúpeľni zvyšuje bezpečnosť a spoľahlivosť elektrického systému.
- Bezpečnostné dvere: Vchodové bezpečnostné dvere poskytujú pocit istoty a ochrany.
- Plávajúce podlahy a dlažby: Kombinácia plávajúcich podláh v izbách a dlažby v ostatných priestoroch vytvára moderný a praktický interiér.
- 2x ROLLDOR skriňa: Vstavané skrine typu ROLLDOR ponúkajú dostatok úložného priestoru a efektívne využitie miesta.
V kontexte predaja je dôležité poznamenať, že v niektorých ponukách sa uvádza, že súčasťou ceny je kompletné zariadenie bytu okrem elektrických spotrebičov. To znamená, že nový majiteľ sa môže nasťahovať do takmer kompletne zariadeného bytu, čo šetrí čas a náklady na zariaďovanie.

Bytový dom a jeho stav
Bytový dom, v ktorom sa byt nachádza, je postavený v roku 1979 a prešiel rekonštrukciou a zateplením. Nachádza sa na 2. nadzemnom podlaží zo 6 poschodí (v niektorých ponukách je uvedené 2/4 poschodie, čo naznačuje, že ide o menší dom alebo konkrétny typ budovy). Pod bytom sa nachádzajú pivnice, čo zabezpečuje dodatočný priestor a zároveň izoláciu od spodných podlaží. Dom je vybavený výťahom, ktorý bol po rekonštrukcii, čo zvyšuje komfort bývania, najmä pre starších obyvateľov alebo rodiny s deťmi. Zateplenie bytového domu prispieva k zlepšeniu tepelnej izolácie a zníženiu nákladov na vykurovanie.

Finančné aspekty a náklady na bývanie
Cena bytu sa pohybuje v závislosti od konkrétnej ponuky a stavu rekonštrukcie, pričom sa pohybuje v rozmedzí od približne 235.500,- € do 359.000,- €, pričom niektoré luxusnejšie ponuky, ako napríklad mezonety, môžu dosahovať aj vyššie ceny. Mesačné náklady na bývanie sú v jednom z prípadov uvádzané na úrovni 230 EUR plus náklady na plyn a elektrinu, čo predstavuje pomerne prijateľnú sumu vzhľadom na veľkosť a lokalitu bytu.
4-izbový byt na Röntgenovej ulici v Petržalke - 0948744099
Pre koho je byt vhodný?
Tento 4-izbový byt na Ambroseho ulici je ideálnou voľbou pre široké spektrum kupujúcich. Jeho priestrannosť a praktická dispozícia ho robia vhodným pre:
- Rodiny s deťmi: Samostatné izby poskytujú deťom dostatok priestoru na hranie a učenie, zatiaľ čo rodičia si môžu užívať súkromie. Blízkosť škôl, škôlok a detských ihrísk je ďalším plusom.
- Páry: Pre páry, ktoré hľadajú priestor na vytvorenie domova, alebo plánujú rodinu, tento byt ponúka dostatok miesta na dlhé roky.
- Záujemcovia o bývanie s dobrou dostupnosťou do centra: Petržalka je vďaka dopravnej infraštruktúre vynikajúco prepojená s centrom mesta, čo umožňuje rýchle a pohodlné dochádzanie do práce alebo za zábavou.
- Klienti hľadajúci pokojné prostredie: Napriek blízkosti centra mesta, ulica Ambroseho a jej okolie ponúkajú pokojnú a zelenú atmosféru.
Porovnanie s inými ponukami v Petržalke
Pri pohľade na trh s nehnuteľnosťami v Petržalke je zrejmé, že 4-izbové byty v tejto lokalite sú žiadané. Ponuky sa líšia nielen cenou, ale aj rozlohou, stavom rekonštrukcie a umiestnením v rámci mestskej časti. Napríklad byty na uliciach ako Wolkrova, Budatínska, Haanova či Vyšehradská sa tiež často objavujú v ponukách. Ceny sa pohybujú v podobnom rozmedzí, pričom najvyššie ceny sú spojené s novostavbami, mezonetmi alebo bytmi s panoramatickými výhľadmi. Byt na Ambroseho ulici vyniká najmä svojou kombináciou dobrej dispozície, poctivého stavu po čiastočnej rekonštrukcii a pokojnej lokality s výbornou občianskou vybavenosťou. V niektorých ponukách sa objavujú aj byty, ktoré boli pôvodne 4-izbové, ale boli upravené na viacero bytových jednotiek, alebo 3-izbové byty s možnosťou prerobenia na 4-izbové. Ponuka na Ambroseho ulici si však zachováva pôvodnú a funkčnú 4-izbovú dispozíciu.
Právny servis a hypotekárne možnosti
Pri kúpe nehnuteľnosti je dôležité zabezpečiť kompletný právny servis. V prípade záujmu o byt na Ambroseho ulici, ako aj pri iných ponukách, je často zabezpečený interným právnikom realitnej kancelárie, ktorý vypracuje všetky potrebné zmluvy - od zmluvy o budúcej kúpnej zmluve, cez kúpnu zmluvu, návrh na vklad do katastra nehnuteľností, až po plnomocenstvá, dodatky a preberací protokol. Okrem toho, realitné kancelárie často ponúkajú bezplatný kompletný hypotekárny servis prostredníctvom svojich hypotekárnych špecialistov, ktorí pomôžu dojednať najvýhodnejšie podmienky na trhu.
Záver
4-izbový byt na Ambroseho ulici v Bratislave predstavuje výbornú investíciu do bývania, ktorá spĺňa vysoké nároky na komfort, praktickosť a lokalitu. Jeho priestrannosť, premyslená dispozícia, čiastočná rekonštrukcia a pokojné prostredie v kombinácii s vynikajúcou občianskou vybavenosťou a dostupnosťou do centra robia z tejto ponuky atraktívnu možnosť pre široké spektrum záujemcov. Je to miesto, kde sa snúbi mestský život s pokojom a kde nájde svoju spokojnosť každá rodina.