Lokalita Kramáre v Bratislave je dlhodobo považovaná za jednu z najžiadanejších a najpríjemnejších na bývanie v hlavnom meste. Kombinácia vynikajúcej občianskej vybavenosti, blízkosti prírody a zároveň skvelej dostupnosti do centra mesta vytvára ideálne prostredie pre rodinný život aj pre jednotlivcov hľadajúcich pokoj a zároveň mestský komfort. V tomto kontexte sa ponuka 4-izbového, kompletne zrekonštruovaného bytu na predaj stáva mimoriadne atraktívnou príležitosťou pre tých, ktorí nehľadajú len bývanie, ale skutočný domov. Tento článok sa zameria na detaily takého bytu, jeho potenciál a dôvody, prečo by mohol byť ideálnou voľbou.

Lokalita Kramáre: Srdce Bratislavy s Dušou
Kramáre nie sú len ďalšou mestskou časťou; sú synonymom pre kvalitné bývanie. Táto oblasť sa pýši pokojným prostredím, ktoré je v kontraste s rušným centrom, no zároveň umožňuje rýchly prístup k všetkému, čo moderný život vyžaduje. V blízkosti sa nachádzajú prestížne školy, škôlky, zdravotnícke zariadenia (vrátane Detskej fakultnej nemocnice a Národného onkologického ústavu), obchody, kaviarne a reštaurácie. Zelené plochy, parky a blízkosť lesoparkov (ako sú Železná studienka alebo Kamzík) poskytujú nespočetné možnosti na oddych, šport a rekreáciu v prírode. Výborné dopravné spojenie, vrátane zastávok MHD, zabezpečuje efektívnu mobilitu po celom meste, či už smerujete do práce, na univerzitu, alebo za zábavou. Táto kombinácia mestského pohodlia a prírodného prostredia robí z Kramárov ideálne miesto na život.
Špecifiká 4-izbového bytu: Priestor pre Každého
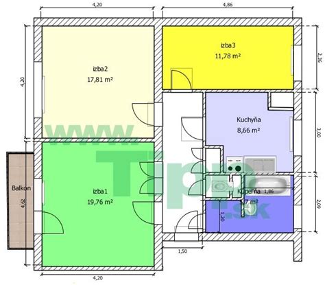
Štvorizbový byt s rozlohou 84 m² predstavuje ideálny kompromis medzi priestrannosťou a praktickosťou. Takáto dispozícia zvyčajne zahŕňa obývaciu izbu, tri samostatné spálne, kuchyňu, kúpeľňu a samostatné WC, prípadne ďalšie technické miestnosti. V kontexte moderného bývania je dôležité, aby bol priestor flexibilný a prispôsobiteľný potrebám jeho obyvateľov. Tri spálne môžu slúžiť ako detské izby, pracovňa, hosťovská izba alebo šatník, čím sa vytvára priestor pre individuálne potreby každého člena rodiny. Celková úžitková plocha 84 m² je dostatočná na zabezpečenie komfortného bývania pre rodinu s deťmi, ale aj pre pár, ktorý ocení extra priestor na prácu z domu alebo na realizáciu svojich koníčkov.
Rekonštrukcia: Moderné Bývanie bez Kompromisov
Označenie "zrekonštruovaný" je kľúčové. Znamená to, že byt prešiel modernizáciou, ktorá zahŕňa nielen estetické úpravy, ale aj technické vylepšenia. Kompletne zrekonštruovaný byt zvyčajne znamená novú elektroinštaláciu, vodoinštaláciu, nové okná, kvalitné podlahy, moderné sociálne zariadenia (kúpeľňa a WC) a novú kuchynskú linku. Taktiež môže zahŕňať úpravy dispozície pre lepšie využitie priestoru. Byt po kompletnej rekonštrukcii je pripravený na okamžité nasťahovanie bez nutnosti ďalších investícií do opráv či modernizácie. Nový majiteľ sa môže tešiť na bývanie v modernom, funkčnom a esteticky príjemnom priestore, kde niet priestoru pre kompromisy. Takéto byty sa často predávajú kompletne zariadené, čo umožňuje novému majiteľovi nasťahovať sa okamžite alebo byt bez ďalších nákladov prenajímať.

Potenciál a Hodnota Nehnuteľnosti
Predaj 4-izbového bytu v lokalite Kramáre, ktorý je navyše kompletne zrekonštruovaný, predstavuje nielen kúpu bývania, ale aj investíciu. Hodnota nehnuteľností v Bratislave, najmä v atraktívnych lokalitách ako sú Kramáre, má tendenciu rásť. Byt s takýmito parametrami je preto atraktívny nielen pre koncových užívateľov, ale aj pre investorov, ktorí ho môžu ďalej prenajímať. Dopyt po 4-izbových bytoch v tejto oblasti je stabilný, čo zaručuje potenciálnu návratnosť investície. Možnosť dohody pri rýchlom jednaní tiež zvyšuje atraktivitu ponuky.
Výhody a Nevýhody Lokalizácie a Typu Bytu
Výhody:
- Atraktívna lokalita: Kramáre ponúkajú kombináciu zelene, pokojného prostredia a vynikajúcej občianskej vybavenosti.
- Priestrannosť: 4 izby a 84 m² poskytujú dostatok priestoru pre rodiny aj jednotlivcov.
- Okamžité bývanie: Kompletne zrekonštruovaný byt nevyžaduje ďalšie investície a je pripravený na nasťahovanie.
- Potenciálna investícia: Rastúca hodnota nehnuteľností v Bratislave a stabilný dopyt po bytoch v tejto lokalite.
- Kvalita bývania: Moderné materiály a technológie použité pri rekonštrukcii zabezpečujú vysoký štandard bývania.
Nevýhody (potenciálne, závisia od konkrétnej ponuky):
- Cena: Byty v tejto lokalite a s týmito parametrami môžu mať vyššiu obstarávaciu cenu v porovnaní s inými časťami mesta.
- Dopravná situácia: Hoci je dostupnosť dobrá, v čase špičky môže byť doprava v okolí Bratislavy náročnejšia.
- Parkovanie: V niektorých častiach Kramárov môže byť parkovanie obmedzené, preto je dôležité zistiť, či byt disponuje vlastným parkovacím miestom alebo garážou. Niektoré ponuky spomínajú garážové státie alebo parkovacie miesto ako súčasť ponuky, čo je veľkým plusom.
Dôležité Aspekty pri Kúpe Zrekonštruovaného Bytu
Pri kúpe zrekonštruovaného bytu je dôležité venovať pozornosť detailom. Okrem samotnej dispozície a lokality je dobré sa informovať o rozsahu rekonštrukčných prác, použitých materiáloch a zárukách. V prípade, že sa byt predáva kompletne zariadený, je vhodné skontrolovať stav a kvalitu nábytku a spotrebičov. Dôležitá je aj informácia o bytovom dome - jeho vek, stav spoločných priestorov, správca a výška mesačných nákladov. Prípadná prítomnosť balkóna, loggie alebo terasy môže tiež výrazne zvýšiť komfort bývania.

Pre Koho je Takýto Byt Ideálny?
Tento typ bytu je ideálnou voľbou pre:
- Rodiny s deťmi: Dostatočný priestor, blízkosť škôl a škôlok, bezpečná a pokojná lokalita s možnosťami na hranie a šport.
- Páry alebo jednotlivcov: Ocenia priestor na prácu z domu, možnosť vytvoriť si viacero funkčných zón a komfortné bývanie.
- Investori: Možnosť dlhodobého prenájmu s potenciálom rastu hodnoty nehnuteľnosti.
- Záujemcovia o bývanie bez ďalších starostí: Kompletne zrekonštruovaný byt znamená minimálne počiatočné náklady na údržbu.
Ponuka 4-izbového, kompletne zrekonštruovaného bytu na predaj v lokalite Kramáre predstavuje výnimočnú príležitosť pre tých, ktorí hľadajú kombináciu kvality, komfortu a strategickej polohy. Tento byt je pripravený na okamžité bývanie a spĺňa vysoké nároky na moderný životný štýl.