Tento článok sa zameriava na špecifický typ bývania, ktorý sa v slovenskom realitnom trhu označuje ako "zvolenský typ bytu". Cieľom je poskytnúť komplexný prehľad o jeho charakteristikách, výhodách a nevýhodách, ako aj porovnať ho s inými typmi bytov, pričom budeme čerpať z poskytnutých informácií a zároveň rozšírime poznatky pre širšie pochopenie.
Charakteristika zvolenského typu bytu
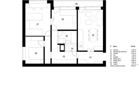
Zvolenský typ bytu, často označovaný aj ako "zvolenský typ" alebo v niektorých inzerátoch ako "3,5 izbový", predstavuje zaujímavú dispozíciu, ktorá sa odlišuje od štandardných panelákových bytov. Jeho definícia nie je vždy jednoznačná, no základné črty sa dajú identifikovať. V prvom rade ide o byty, ktoré majú pôvodne tri obytné miestnosti, ale s určitou modifikáciou, ktorá vytvára dojem polovičnej miestnosti alebo priestoru s multifunkčným využitím.
Jedna z kľúčových charakteristík je dispozičná zmena, ktorá sa často týka rozšírenia obývacieho priestoru alebo vytvorenia samostatného priestoru, ktorý nie je plnohodnotnou izbou, ale zároveň nie je len chodbou. V niektorých prípadoch to môže znamenať prepojenie kuchyne s obývacou izbou, čím vzniká otvorený priestor. V iných prípadoch to môže byť priestor medzi izbami, ktorý bol pôvodne súčasťou chodby a bol dispozične upravený na rozšírenie jednej z izieb alebo na vytvorenie malej pracovnej zóny, šatníka či komory. Príkladom je byt s výmerou 83,40 m2 na Tulská ulici, ktorý je označený ako 3,5 izbový, čo naznačuje túto špecifickú dispozíciu.
Ďalším aspektom, ktorý sa spája so zvolenským typom bytu, je jeho umiestnenie a konštrukcia. Hoci sa v poskytnutých informáciách objavujú aj byty v novostavbách, často sa tento typ spája so staršou zástavbou, najmä s panelovými domami, kde boli architektonické riešenia flexibilnejšie alebo sa neskôr menili. V bytovkách s výťahom, ako je spomínaný byt na Internátnej ulici v Banskej Bystrici, sa tento typ môže objaviť na rôznych poschodiach, pričom orientácia okien môže byť rôznorodá (V/Z, jedna miestnosť na sever), čo ovplyvňuje presvetlenie a celkovú atmosféru bytu.

Dispozícia a jej variácie
Dispozícia zvolenského typu bytu sa vyznačuje snahou o maximalizáciu obytnej plochy a funkčnosti priestoru. V praxi to znamená, že sa často stretávame s nasledovnými úpravami:
- Prepojenie kuchyne s obývacou izbou: Toto je jeden z najčastejších spôsobov, ako získať priestrannejší obývací priestor. Pôvodne samostatná kuchyňa sa spojí s obývacou izbou, čím vznikne moderný "open space". Tento priestor je často doplnený o jedálenskú časť.
- Vstavané skrine a komory: Využitie priestoru na chodbe na vytvorenie vstavanej skrine alebo komory je ďalším znakom snahy o efektívne usporiadanie. Tieto priestory slúžia na skladovanie, čím sa minimalizuje potreba ďalšieho nábytku v izbách.
- Dispozičné zmeny v kúpeľni a WC: V rámci rekonštrukcie sa často mení aj dispozícia sociálnych zariadení. Môže ísť o zväčšenie kúpeľne, presunutie vstupu do kúpeľne, alebo vytvorenie samostatného WC. Príkladom je rekonštruovaná murovaná kúpeľňa s vaňou a osobitné WC, kde bol dispozične menený vchod do kúpeľne.
- Neprechodné izby: Dôležitým aspektom býva aj to, že izby sú neprechodné. To znamená, že do každej izby sa vchádza z chodby, čo zvyšuje súkromie a funkčnosť jednotlivých miestností. Tento prvok je prítomný v byte na Internátnej ulici.
- Loggia alebo balkón: Mnohé byty tohto typu disponujú loggiou alebo balkónom, ktorý slúži ako rozšírenie obývacieho priestoru, najmä v letných mesiacoch. V jednom z popísaných bytov je slnečná lodžia z obývačky, v inom je spálňa s balkónom.

Rekonštrukcie a modernizácie
Byty zvolenského typu často prešli rôznymi stupňami rekonštrukcie, čo ovplyvňuje ich súčasný stav a cenu. Medzi bežné rekonštrukcie patria:
- Výmena okien: Nahradenie pôvodných okien za plastové je štandardom, ktorý zlepšuje tepelno-izolačné vlastnosti a znižuje hluk.
- Nové podlahy: Pokládka plávajúcich podláh alebo iných moderných podlahových krytín.
- Úprava stien: Hladké panely alebo stierky nahrádzajú pôvodné povrchy.
- Nová kuchynská linka: Modernizácia kuchynského priestoru s novou linkou a spotrebičmi, ako sú sklokeramická varná doska a elektrická rúra.
- Nové interiérové dvere: Výmena starých dverí za nové, často s modernejším dizajnom.
- Rekonštrukcia elektroinštalácie a vodovodných rozvodov: Menené rozvody v kúpeľni, WC a kuchyni sú kľúčové pre bezpečnosť a funkčnosť.
- Murovaná rekonštruovaná kúpeľňa: Prebudovanie kúpeľne do murovaného štandardu s novou sanitou a obkladmi.
Poskytnuté informácie uvádzajú príklad bytu, kde v rámci rekonštrukcie boli menené rozvody elektriky a vody v kúpeľni, WC a kuchyni, bola murovaná a rekonštruovaná kúpeľňa s vaňou, a dispozične bol menený vchod do kúpeľne. Taktiež boli zrekonštruované spoločné priestory bytového domu.
VIZUALIZÁCIA - PRIESTRANNÝ 2,5 IZBOVÝ BYT 62,5M2, ZLATÝ POTOK - ZVOLEN
Výhody a nevýhody bývania v byte zvolenského typu
Výhody:
- Priestorová efektívnosť: Vďaka dispozičným úpravám a multifunkčným priestorom pôsobia byty často vzdušnejšie a priestrannejšie, než ich oficiálna výmera naznačuje.
- Flexibilita: Možnosť ďalších úprav a prispôsobenia priestoru individuálnym potrebám.
- Kompletná občianska vybavenosť: Bytové domy, kde sa tieto byty nachádzajú, sú často situované v lokalitách s dobrou dostupnosťou k obchodom, službám, školám, ihriskám a športoviskám, ako aj k zastávkam MHD.
- Dobré parkovacie možnosti: V okolí bytového domu bývajú často dostatočné parkovacie kapacity.
- Príroda na dosah: V blízkosti sa nachádza zeleň a možnosť výletov do prírody.
- Pekný výhľad: Z bytu môže byť pekný výhľad na okolie.
- Nízke náklady na bývanie: V jednom z príkladov sú náklady na 4-člennú rodinu 170€ mesačne plus elektrina, čo je relatívne nízke. V inom prípade sú náklady na 5-člennú rodinu 180€/mesiac + elektrina a plyn.
- Zateplenie bytového domu: Plánované zateplenie bytového domu prispieva k zníženiu nákladov na energie a zlepšeniu celkového komfortu bývania.
- Slušní susedia: V spomínanom prípade sú susedia opísaní ako slušní ľudia, čo je dôležitý faktor pre pokojné bývanie.
Nevýhody:
- Pôvodná konštrukcia: Ak byt prešiel len minimálnymi rekonštrukciami, môže sa stretávať s nedostatkami staršej panelovej výstavby (napr. horšia zvuková izolácia).
- Závislosť od rekonštrukcie: Stav a hodnota bytu vo veľkej miere závisia od kvality a rozsahu vykonaných rekonštrukcií.
- Možné problémy s plynom: V prípade, že je plyn odstavený, jeho opätovné zapojenie môže byť spojené s dodatočnými nákladmi a administratívou.
- Označenie "3,5 izbový": Toto označenie môže byť pre niektorých kupujúcich mätúce a vyžaduje si dôkladné oboznámenie sa s pôdorysom.
Porovnanie s inými typmi bytov
Pri porovnávaní zvolenského typu bytu s inými typmi, ako sú jednoizbové (1+0, garzónka), dvojizbové, trojizbové, či apartmány, môžeme identifikovať kľúčové rozdiely:
- 1+0 (Garzónka): Je to najmenší typ bytu, ktorý zvyčajne zahŕňa jednu obytnú miestnosť spojenú s kuchynským kútom, sociálne zariadenie a chodbu. Zvolenský typ bytu ponúka výrazne viac priestoru a oddelených miestností.
- 2-izbový byt: Typicky pozostáva z dvoch obytných miestností, kuchyne, sociálneho zariadenia a chodby. Zvolenský typ bytu s označením "3,5 izbový" má viac priestoru a často lepšie členenie ako štandardný 2-izbový byt.
- 3-izbový byt: Ponúka tri obytné miestnosti, kuchyňu, sociálne zariadenie a chodbu. Zvolenský typ bytu sa často pohybuje na hranici medzi 3-izbovým a 4-izbovým bytom, pričom jeho výhodou môže byť práve flexibilita a lepšie využitie priestoru vďaka dispozičným úpravám.
- Apartmány: Apartmány, najmä v horských strediskách ako Donovaly, môžu mať rôznorodé dispozície. Často sú modernejšie, priestrannejšie a môžu obsahovať aj prvky ako veľké terasy či garážové státia. Cena apartmánov v rekreačných oblastiach býva zvyčajne vyššia. Zvolenský typ bytu sa častejšie vyskytuje v mestských bytových domoch.

Ceny bytov sa výrazne líšia v závislosti od lokality, stavu, veľkosti a vybavenosti. V Banskej Bystrici sa ceny trojizbových bytov pohybujú od približne 169.000 € (Sásová) až po 498.000 € (nadštandardný byt pri historickom centre). Zvolenský typ bytu s výmerou 83,40 m2 na Tulská ulici bol ponúkaný za 235.000 €, čo naznačuje jeho hodnotu na trhu, ktorá reflektuje jeho špecifickú dispozíciu a potenciál.
Záver
Zvolenský typ bytu predstavuje zaujímavú alternatívu na realitnom trhu, ktorá kombinuje výhody priestrannosti a funkčnosti. Jeho špecifická dispozícia, často výsledok cielených rekonštrukcií, ponúka moderné bývanie s potenciálom ďalších úprav. Pri výbere takéhoto bytu je kľúčové dôkladne preskúmať pôdorys, stav nehnuteľnosti a lokalitu, aby sa zabezpečilo, že spĺňa všetky požiadavky potenciálneho kupujúceho. S dobrou občianskou vybavenosťou v okolí a možnosťou výletov do prírody, byty tohto typu môžu poskytnúť kvalitné a komfortné bývanie.