Výrobné haly sú základnými kameňmi moderného priemyslu, slúžia ako centrá pre kľúčové činnosti od výroby a montáže až po skladovanie a logistiku. V minulosti boli vnímané predovšetkým ako utilitárne konštrukcie s dôrazom na funkčnosť a minimalizáciu architektonických prvkov. Avšak časy sa menia a s nimi aj pohľad investorov. Dnes už výrobné haly nie sú len o strohej funkčnosti; stávajú sa priestormi, ktoré môžu integrovať aj ďalšie funkcie, vrátane bývania, a zároveň odrážať estetiku a reprezentatívnosť firmy. Spoločnosť AVG GROUP, ako domácí výrobca, sa špecializuje na návrh, výrobu, dodávku a montáž výrobných hál pre rôzne odvetvia priemyslu a služieb, pričom rozumie špecifickým požiadavkám priemyslu a potrebám výroby.

Efektívne a cenovo dostupné riešenia pre výstavbu výrobných hál
Kľúčom k úspešnej a rentabilnej výstavbe výrobnej haly je dôkladné plánovanie, správny výber materiálov a spoľahliví dodávatelia. Jedným z efektívnych a cenovo výhodných riešení je výstavba plachtovej haly, ktorá predstavuje uzavretý priestor s väčšími rozmermi, ideálny najmä na výrobné činnosti. Výrobná hala je miestom, kde sa spracúvajú rôzne suroviny a montujú produkty. Vďaka variabilite týchto priestorov je možné halu prispôsobiť potrebám rôznych priemyselných odvetví.
Pre rýchlu a ekonomickú výstavbu sa staví na kovové a oceľové konštrukcie. Tieto riešenia sú cenovo výhodné a ich montáž je oveľa rýchlejšia ako pri klasických murovaných stavbách. Navyše, kovové haly sú flexibilné a umožňujú jednoduché prístavby v prípade potreby. Modulárne riešenia, kde sa haly jednoducho poskladajú priamo na mieste z jednotlivých modulov, sú tiež správnou voľbou pre rýchlu a cenovo dostupnú výstavbu. Optimalizácia projektu od začiatku, vrátane výberu lacnejších materiálov bez zníženia kvality a optimalizácie pracovných postupov, je zásadná pre finančnú návratnosť a nízku cenu. Spolupráca s odborníkmi a firmami s dobrými referenciami a dlhoročnými skúsenosťami v oblasti výstavby výrobných hál je kľúčová pre úspech celého projektu.
Výber vhodnej konštrukcie je pri výstavbe výrobnej haly čoraz častejšie smerovaný k ľahkým kovovým konštrukciám. Oceľové a hliníkové nosníky sú nielen cenovo dostupné, ale aj veľmi odolné a rýchlo sa montujú. Spoločnosť AVG GROUP vie odporučiť najlepšie a najoptimálnejšie riešenie statiky nosnej konštrukcie výrobnej haly a vie vypracovať kvalitnú projektovú dokumentáciu pre získanie stavebného povolenia v časti statiky oceľových konštrukcií a zakladania stavby.

Pri plánovaní sa zohľadňuje celkové výrobné kapacity, potreba voľného priestoru na manipuláciu s materiálom a dostatok skladovacích plôch. Výber vhodného miesta pre výrobnú alebo plachtovú halu je zásadný - je potrebné zohľadniť dostupnosť hlavných komunikácií, blízkosť diaľnic či železničných tratí a zabezpečiť jednoduchú prístupnosť pre nákladné autá a dodávky. Ak sa v budúcnosti plánuje rozšírenie výrobných kapacít, je vhodné si dopredu pripraviť základy. Modulárne prístavby umožňujú zväčšenie priestoru bez ďalších stavebných prác, čím sa dá zvýšiť výrobná kapacita už za niekoľko dní.
Moderná architektúra a reprezentatívnosť výrobných hál
Investícia do kvalitnej izolácie sa dlhodobo oplatí, pretože zabezpečí nižšie náklady na vykurovanie a chladenie, a tým výrazne zníži prevádzkové výdavky. Dnes už nie je výstavba výrobnej haly len o strohej konštrukcii. Zveriť návrh výrobnej haly do rúk architekta neznamená automaticky zbytočne vynaložené náklady, obzvlášť ak je súčasťou stavby aj administratívna časť. Administratíva by mala byť akcentom, najzaujímavejším bodom budovy, to, čo firmu reprezentuje.
Príkladom takéhoto prístupu je výrobná hala s administratívnym zázemím pre firmu Witte v Ostrove nad Ohří. Architektúra tu akcentuje hlavný vstup, kde je hneď oproti vstupu umiestnený showroom reprezentujúci zameranie firmy. Z foyer je priamym vstupom na horné poschodia, kde sídli administratíva a vedenie spoločnosti, presvetlený svetlíkom. Fasáda budovy odkazuje na logo firmy a výrobu komponentov pre automotive priemysel. Vertikálne lamely s primárnou tieniacou funkciou menia farebnosť z červenej na sivú pri pohľade z hlavnej cesty, čím vytvárajú dynamický efekt. Korporátne farby firmy boli použité aj na sklenených tabuliach na zábradlí interiérového schodiska. Pohľadový betón a prefabrikované betónové prvky, bežné v priemyselných priestoroch, sú tu využité ako moderné povrchové úpravy v administratíve.

Okrem architektonického a konštrukčného aspektu sa projektanti museli popasovať aj s funkčno-prevádzkovým usporiadaním. Jedáleň pre zamestnancov je logicky umiestnená na prízemí. Celou halovou časťou sa vo výške druhého nadzemného podlažia tiahne dlhá lávka, z ktorej sú prístupné všetky haly aj hygienické zázemie pre zamestnancov.
Integrácia bývania do výrobnej haly: Nové možnosti a legislatívne aspekty
V kontexte modernizácie a multifunkčnosti výrobných hál sa objavujú aj možnosti integrácie bývania priamo do týchto objektov. Príkladom je situácia, kedy spoločnosť k výrobnej hale postavila prístavbu, ktorá je s ňou prepojená. V tejto prístavbe sa na prízemí vytvorili šatne pre zamestnancov a sociálne zariadenie. Na poschodí sú dve kancelárie a zároveň by tam mala byť zriadená aj ubytovacia jednotka pre dvoch zamestnancov.
Z pohľadu zákona o dani z príjmov ide v prípade realizácie prístavby výrobnej haly o technické zhodnotenie. Budovy sa z hľadiska doby odpisovania zatrieďujú do odpisových skupín podľa prílohy č. 1 zákona č. 595/2003 Z. z. o dani z príjmov. V praxi je možné, aby súčasťou výrobnej haly boli aj kancelárie, sociálne zariadenia, šatne a dokonca aj ubytovacia jednotka. Pokiaľ ide o zaradenie do odpisovej skupiny, je potrebné posúdiť primárne využitie celej stavby. Ak prevažuje funkcia výrobnej haly, bude sa odpisovať podľa jej zaradenia. Ubytovacia jednotka je špecifická, avšak v rámci komplexného objektu určeného primárne na výrobu, kde slúži na zabezpečenie prevádzky (ubytovanie zamestnancov), môže byť súčasťou celkového odpisovania hlavnej stavby. Kedy je možné začať odpisovať prístavbu závisí od jej dokončenia a uvedenia do užívania.
Je však dôležité rozlišovať medzi pojmami ako "garsónka", "1-izbový byt" a "2-izbový byt", ktoré sa bežne objavujú v realitných inzerátoch. V slovenskej legislatíve pojem "garsónka" oficiálne neexistuje. Definície, s ktorými pracuje prax, vychádzajú predovšetkým z technickej normy STN 73 4301 - Bytové budovy. Skutočným rozlišovacím znakom nie je výmera, ale prítomnosť stavebnej steny. Ak je kuchyňa od obytnej časti oddelená pevnou stenou a dverami, ide o 1-izbový byt. Rovnaká logika platí pre 2-izbový byt: obe izby musia byť stavebne oddelené s vlastnými dverami.
Developeri niekedy zavádzajú klientov tým, že jednotky s malou výmerou a kuchynským kútom v obytnom priestore označujú za "1-izbové byty", hoci dispozícia je totožná s klasickou garsónkou. Odvážnejším krokom je prezentácia dvojgarsónky (2+kk) ako 2-izbového bytu. Klient si pri pojme "2-izbový byt" prirodzene predstaví dve stavebne oddelené izby a samostatnú kuchyňu. Ďalší trik spočíva v tom, čo všetko developer zahrnie do uvádzanej "celkovej výmery".
Osobitnou kategóriou je predaj apartmánov ako klasických bytov. Apartmán je v mnohých prípadoch vedený v katastri nehnuteľností ako nebytový priestor. To má dôsledky ako nemožnosť nahlásenia trvalého pobytu, problémy s financovaním cez hypotéku za štandardných podmienok a odlišný právny režim správy budovy.

Pre kupujúceho je kľúčové prepočítať cenu za meter štvorcový a porovnať ju s reálnymi bytmi v danej lokalite. Na slovenskom realitnom trhu nie je terminológia len otázkou vkusu, ale aj peňazí, právnych nárokov a kvality bývania. Kým slovenská legislatíva dostatočne nezakotví a nevymáha presné definície pre bežného spotrebiteľa, ostáva jedinou obranou informovanosť kupujúceho. Integrácia bývania do výrobných hál taktiež prináša otázky ohľadom stavebných predpisov a územného plánovania, ktoré je potrebné dôkladne preskúmať.
Technické aspekty oceľových konštrukcií výrobných hál
Spoločnosť AVG GROUP, ako výrobca výrobných hál, sa zameriava na detailné pochopenie požiadaviek priemyslu a potrieb výroby. Funkčnosť výrobnej haly je základnou požiadavkou pre vytvorenie budúcich potrieb investora. Pri návrhu výrobnej haly je potrebné zohľadniť účel využitia objektu, umiestnenie technológií alebo vybavenia.
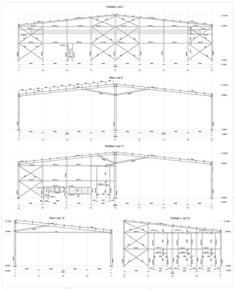
Nosný stĺp oceľového objektu je v prevažnej miere vyrábaný z valcovaných profilov typu IPE, HEA, HEB, alebo zo zvarovaných profilov. Typ a veľkosť profilu je závislá od typu oceľovej konštrukcie, jej rozponu, šírky, výšky, zaťaženia a pod. Súčasťou nosných stĺpov sú aj kotviace platne, platne slúžiace na uchytenie stenových pomocných prvkov, zavetrovacích prvkov a konzoly žeriavových dráh. Spoje nosných stĺpov, platní a konzol žeriavových dráh sú nerozoberateľné a sú prevádzané zváraním.
Kotevné prvky, čiže skrutky, sú vyrábané z oceľových závitových tyčí bez povrchovej úpravy alebo so povrchovou úpravou FeZn. Typ kotvenia, hĺbka kotvenia, priemer a počet kotevných skrutiek je daný statickým výpočtom.
Strešná priečla resp. priehradový väzník sú vyrábané z valcovaných profilov typu IPE, HEA, HEB, alebo zo zvarovaných profilov. Diagonály priehradových väzníkov sú zväčša tvorené z uzavretých profilov so štvorcovým prierezom. Dimenzie a typ profilov sú dané statickým výpočtom. Súčasťou strešných priečlí a väzníkov sú aj platne slúžiace na uchytenie strešných väzníc a strešných zavetrávacích prvkov. Spoje priečlí, väzníkov a platní sú nerozoberateľné a sú prevádzané zváraním.
Strešné väznice sú v prevažnej miere vyrábané z valcovaných profilov typu U, UPE, UE resp. sú tvorené systémom tenkostenných ohýbaných profilov s povrchovou úpravou FeZn. So strešnými priečlami a väzníkmi sú spojené skrutkami. Voľba typu a dimenzie je daná statickým výpočtom, požadovanou požiarnou odolnosťou atď.
Stenové pomocné prvky pre uchytenie opláštenia a výplní otvorov sú v prevažnej miere vyrábané z valcovaných profilov typu U, UPE, UE, uzatvoreného profilu so štvorhranným prierezom resp. sú tvorené systémom tenkostenných ohýbaných profilov s povrchovou úpravou FeZn. S nosnými stĺpami sú spojené skrutkami.
Strešné a stenové zavetrovacie prvky sú v prevažnej miere vyrábané z valcovaných profilov kruhového resp. štvorhranného prierezu a slúžia k stabilizovaniu oceľovej konštrukcie v horizontálnom smere. S nosnými časťami oceľových konštrukcií sú spojené skrutkami.
Prvky nadzemného podlažia sú vyrábané z valcovaných profilov typu IPE, HEA, HEB a pod. a slúžia k vytvoreniu nadzemného podlažia resp. obslužného priestoru. S nosnými časťami konštrukcie sú spojené skrutkami. Ako nášľapná vrstva sa využívajú oceľové podlahové rošty v prevedení FeZn resp. Prípadne je možné vytvoriť vstavané oceľové nadzemné plošiny, navrhnuté pre skladovanie materiálu alebo dielcov pre výrobu.
Spoločnosť AVG GROUP - HALY VYRÁBA a NAVRHUJE, a preto vie nájsť najlepšie riešenie pre potreby investora. Ponúka spoluprácu pri návrhoch a optimalizáciách nosných oceľových konštrukcií montovaných hál a rôznych objektov.