Vo svete stavebníctva, kde čas a efektivita zohrávajú kľúčovú úlohu, sa stavebné žeriavy stali nepostrádateľným nástrojom. Ich správny výber a dostupnosť môžu rozhodnúť o úspechu celého projektu. Ponúkame komplexné riešenia v oblasti predaja a prenájmu stavebných žeriavov, ktoré sú navrhnuté tak, aby spĺňali najvyššie nároky na bezpečnosť, spoľahlivosť a rýchlosť nasadenia. Našou prioritou je poskytnúť vám tie najlepšie nástroje pre vašu stavbu, či už ide o malé projekty alebo rozsiahle stavebné diela.

Široká ponuka stavebných žeriavov pre každú potrebu
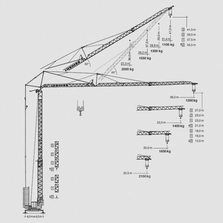
Naša ponuka zahŕňa široké spektrum stavebných žeriavov, od malých, ale výkonných modelov až po robustné vežové konštrukcie. Chápeme, že každá stavba má svoje špecifické požiadavky, a preto ponúkame žeriavy s možnosťou prenájmu alebo odkúpenia za výhodných podmienok. Eliminujte prestoje počas výstavby a pracujte efektívne s našimi spoľahlivými strojmi. V našej ponuke nájdete nielen nové žeriavy priamo z výroby, ale aj možnosť nákupu na lízing, čo vám umožní získať potrebnú techniku bez okamžitého zaťaženia vášho rozpočtu.
Samoskladacie žeriavy: Rýchlosť a flexibilita na prvom mieste
Špecializujeme sa na samoskladacie žeriavy od renomovaného výrobcu Cattaneo, ktorý je zárukou kvality a dlhoročnej spoľahlivosti. Tieto žeriavy sú navrhnuté so systémom rýchlej montáže, čo znamená, že sú pripravené na prácu na stavbe v priebehu niekoľkých hodín od dodania. Doba zloženia žeriava po privezení na stavbu sa pohybuje okolo 4 hodín, čo je extrémne efektívne v porovnaní s tradičnými metódami. Samostaviteľné vežové žeriavy sa stali základnou súčasťou na stavbách, kde sú čas a priestor zásadne dôležité. Rýchlostaviteľné žeriavy sú flexibilným riešením pre manipuláciu s materiálmi a ťažkými bremenami. Lepšie sa s nimi pohybuje aj v obmedzených priestoroch mestských stavieb. Samoskladacie žeriavy so systémom rýchlej montáže sú navrhnuté pre okamžité použitie.

Malé stavebné žeriavy z našej ponuky sa vyznačujú práve týmto systémom rýchlej montáže. Zložené sú do 30 minút a sú pripravené na prácu na stavbe do 4 hodín. Ponúkame na výber samoskladacie žeriavy od spoľahlivého a dôveryhodného výrobcu Cattaneo. Ak potrebujete pomoc s výberom vhodného modelu, neváhajte nás kontaktovať telefonicky: +421 (0) 907 343 878. Zariadime všetko za vás. Vy si len vyberte malý stavebný žeriav, ktorý práve potrebujete. My vám malý žeriav dovezieme priamo na stavbu v rámci SR a ČR.
Malé stavebné žeriavy: Kompaktné riešenia pre náročné podmienky
Pre projekty s obmedzeným priestorom alebo pre špecifické, jednorazové práce ponúkame malé stavebné žeriavy. Tieto stroje sú ideálne, ak nemáte vlastné samoskladacie žeriavy a špeciálne vybavenie na stavbu, ak nemáte dostatok kvalifikovanej obsluhy alebo ak rýchlo potrebujete žeriav na jednorazovú prácu. Najmenší stavebný žeriav Vicario OMV 380 má hmotnosť len 3,5 tony, čo ho robí extrémne mobilným a ľahko manipulovateľným. Bežne sú rýchlostaviteľné žeriavy dostupné ihneď a dovezieme ich do 24 hodín.
Malé žeriavy na stavbu ponúkame s možnosťou prenájmu alebo odkúpenia za výhodných podmienok. Našou prioritou je bezpečnosť a spoľahlivosť. Naše stavebné žeriavy sú vybavené zdvíhacími lanami, reťazami a kladkami pre plynulé a bezproblémové zdvíhanie, spúšťanie a prenášanie bremien na stavbách. Doba rozloženia žeriava je v minútach. Od privezenia na stavbu sú kompletne pripravené do pár hodín.
BENEFITY PRE VÁS: Prečo si vybrať naše žeriavy?
Naším cieľom je poskytnúť vám maximálnu podporu a výhody pri výbere a používaní stavebných žeriavov.
Okamžitá dostupnosť a výhodné podmienky
- Hneď dostupné na predaj alebo na prenájom: Všetky naše žeriavy sú pripravené na okamžité nasadenie, čím minimalizujeme čakanie na vašej stavbe.
- Nové žeriavy na stavbu priamo z výroby: Ponúkame výhradne nové stroje od renomovaných výrobcov, ktoré zaručujú najvyššiu kvalitu a spoľahlivosť.
- Nákup žeriavov aj na leasing: Pre vašu finančnú flexibilitu umožňujeme nákup žeriavov aj prostredníctvom lízingových zmlúv.
Odborné poradenstvo a podpora
- Odborne poradíme pri výbere: Náš tím skúsených odborníkov vám pomôže vybrať ten najvhodnejší žeriav pre špecifické potreby vášho projektu.
- Bezplatné obhliadky pred inštaláciou: Pred samotnou inštaláciou vykonáme bezplatnú obhliadku staveniska, aby sme zabezpečili optimálne podmienky pre nasadenie žeriava.
- Dovoz do 24 hodín: Garantujeme rýchly dovoz žeriavov na vašu stavbu, zvyčajne do 24 hodín od objednávky.

TOP CRANES PRÍSTUP: Bezpečnosť a spoľahlivosť na prvom mieste
Všetky naše stavebné žeriavy sú ovládané pešou obsluhou, čo zjednodušuje ich obsluhu a umožňuje presné manévrovanie. V spodnej časti žeriava sa nachádza protizávažie, ktoré zabezpečuje jeho stabilitu a bezpečnosť počas prevádzky. Naše rýchlostaviteľné žeriavy na stavbu sú vybavené modernými zdvíhacími lanami, reťazami a kladkami, ktoré zaručujú plynulé a bezproblémové zdvíhanie, spúšťanie a prenášanie bremien na stavbách.
Sme autorizovaný predajca žeriavov Cattaneo na Slovensku a ponúkame na výber samoskladacie žeriavy od spoľahlivých a dôveryhodných výrobcov s dlhoročnou históriou. Budujte na najvyššej úrovni s technológiou, na ktorú sa môžete spoľahnúť. Ak potrebujete pomoc s výberom vhodného modelu, kontaktujte nás telefonicky na čísle +421 (0) 907 343 878. Zabezpečíme všetko od dodania až po uvedenie do prevádzky, aby ste sa mohli sústrediť na to najdôležitejšie - úspešnú realizáciu vášho stavebného projektu.