Pri plánovaní výstavby alebo rekonštrukcie vášho domova, či už ide o vchodové alebo interiérové dvere, je správne dimenzovaný stavebný otvor absolútne kľúčovým prvkom. Tento, na prvý pohľad nenápadný detail, môže rozhodnúť o tom, či budú vaše nové dvere slúžiť bezchybne roky, alebo vám budú spôsobovať nepríjemnosti. Stavebný otvor predstavuje výrez v stene, do ktorého sa následne montuje zárubňa s dverami. Jeho rozmery nie sú totožné s rozmermi samotných dverí, ale musia brať do úvahy nielen dvere, ale aj celú zárubňu a priestor potrebný na montážnu penu.

Základné princípy určovania rozmerov stavebného otvoru
Pre dvere so štandardnou šírkou 80 cm nie je stavebný otvor rovnako široký. Je nevyhnutné pripočítať dodatočný priestor. Odporúčané rozmery pre šírku stavebného otvoru sú zvyčajne šírka dverí plus približne 10 až 15 cm. Pri výške sa odporúča pripočítať zhruba 6 až 7 cm k výške dverí. Tieto centimetre navyše slúžia na bezproblémové usadenie zárubne a na dostatočné vyplnenie priestoru montážnou penou, ktorá zabezpečí stabilitu a dobré izolačné vlastnosti celej konštrukcie.
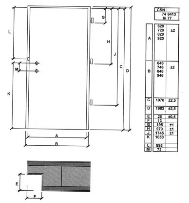
Pri určovaní rozmerov otvoru je dôležité myslieť aj na použitý typ zárubne. Obložkové zárubne, ktoré sa osádzajú priamo na múr po demontáži pôvodnej zárubne, si vyžadujú presne definované rozmery otvoru. Je potrebné zohľadniť aj hrúbku steny, pretože zárubne sa vyrábajú v rôznych hrúbkach (napríklad 75-95 mm, 100-120 mm, 125-145 mm a iné). Pred výberom zárubne je preto kľúčové presne zmerať hrúbku hotovej steny, vrátane omietky alebo obkladu.
Univerzálne pravidlo pri obložkových zárubniach hovorí, že sa pripočítava +10 cm na šírku stavebného otvoru od svetlej šírky prechodu zárubne, a +5 cm na výšku. Pre dvere 70 cm potrebujete šírku otvoru 80 cm, pre dvere 80 cm potrebujete šírku otvoru 90 cm a tak ďalej. Ideálna výška od dokončenej podlahy je 202 cm. Rozmerom dverí sa v skutočnosti myslí svetlá priechodzia šírka a výška zárubne.

Dôležitosť rovnosti a stability stavebného otvoru
Stavebný otvor nie je len o rozmeroch, ale aj o jeho kvalite. Steny otvoru by mali byť rovné a kolmé, bez akéhokoľvek vychýlenia alebo "brucha" v murive. Pevné a stabilné murivo je nevyhnutné, najmä pri montáži ťažších bezpečnostných dverí, kde je dôležitá nosnosť celej konštrukcie. Ak je stena v jednej časti širšia ako v druhej, montážna pena sa nedá rovnomerne naniesť, čo môže viesť k problémom s usadením dverí.
Pri rekonštrukciách sa často zabúda na nerovnosti podláh. Je dôležité zohľadniť aj tieto faktory, aby výsledná montáž bola precízna a dvere sa časom nedeformovali alebo nesadli. Ak ešte nemáte položenú finálnu podlahu, pripočítajte jej hrúbku k celkovej výške otvoru.
Ako zarámovať základný otvor pre dvere / DIY
Špecifiká vchodových a interiérových dverí
Pri vchodových dverách, ktoré sú často robustnejšie a náročnejšie na montáž, je okrem estetiky nevyhnutné riešiť aj bezpečnosť, izoláciu a stabilitu. Správna montáž je kľúčová - ak nie je urobená presne, aj tie najlepšie vchodové dvere strácajú svoj význam. Vchodové dvere by vás mali ochrániť pred zimou, hlukom a, samozrejme, pred zlodejmi.
Interiérové dvere, na druhej strane, si v prípade základnej zručnosti a potrebného náradia viete osadiť aj svojpomocne. Avšak aj pri nich platí, že nesprávne pripravený stavebný otvor môže celý proces montáže výrazne skomplikovať. Časté problémy zahŕňajú otvory, ktoré sú príliš úzke, nízke alebo nerovné.
Možné komplikácie a ich riešenia
- Príliš úzke otvory: Ak je otvor príliš úzky (napríklad svetlý rozmer +7-8 cm), nemusí sa doň zmestiť zárubňa. V takom prípade môže pomôcť drobné vysekanie do muriva v oblasti pántov, ktoré zmenší montážny otvor o približne 15 mm.
- Príliš široké otvory: Ak sú otvory príliš široké, PUR pena nemusí dobre držať zárubňu, alebo zárubňa nemusí dostatočne prekryť stavebný otvor, čo môže viesť k vzniku neestetických dier medzi zárubňou a murivom. Riešením môže byť objednanie dverí v inej norme (napr. poľská, nemecká), použitie zárubní so širšími obložkami, alebo výroba v atypických rozmeroch. Nespoliehajte sa plne na stavbárov, že vedia, aké stavebné otvory majú byť urobené, pretože sa v praxi často stretávame s tým, že ich urobili nesprávne.
Výnimky a špeciálne prípady
Existujú aj výnimky z pravidiel, ktoré je dobré poznať. Reverzné dvere majú menší svetlý priechod do rovnakého stavebného otvoru ako falcové alebo bezfalcové dvere. Ak by ste pri reverzných dverách chceli zachovať rovnaký svetlý priechod, musíte urobiť stavebný otvor väčší. Niektorí výrobcovia navyše vyrábajú dvere v iných normách alebo v špecifických rozmeroch (napr. každých 5 cm šírky otvoru), čo môže byť výhodné pri riešení nesprávnych otvorov, pretože sa tým môžete vyhnúť predraženiu dverí o atypické príplatky.
Ak plánujete kúpu špeciálnejších dverí, ako sú extra vysoké alebo skryté dvere, je vždy lepšie poradiť sa s odborníkmi vopred. Tí vám pomôžu nielen s výberom vhodných dverí, ale aj s presnou prípravou stavebného otvoru a následnou profesionálnou montážou. Ak nie ste si istí, ako má vyzerať ideálny otvor, obráťte sa na odborníkov.
Zárubne a ich špecifiká
Naše dvere sa dajú osadiť do kovových zárubní, ale musia byť falcované s 3 pántami. Ak máte pôvodnú zárubňu bezfalcovú s 2 pántami, do tejto zárubne naše dvere neosadíte. Naše obložkové zárubne sa osádzajú priamo na múr, to znamená, že pôvodnú zárubňu musíte demontovať. Táto zárubňa nie je určená na obkladanie pôvodných kovových zárubní. Pri zárubni, okrem iného, je nutné určiť hrúbku múru.
Pri štítkových kľučkách sa okrem typu výrezu (na izbový kľúč, na FAB zámok alebo na WC sadu) určuje aj rozteč zámku. Rozteč zámku je vzdialenosť medzi osou kľučky a osou kľúča.
Dôležitosť presného merania
Pri meraní otvoru si pripravte meter, vodováhu a ceruzku. Dbajte na to, aby maximálna odchýlka rozmerov otvorov bola +- 1,5 cm, vrátane odklonu zvislosti. Ak je odchýlka väčšia, je potrebné sa poradiť s odborníkmi, ako zvoliť vhodné riešenie.

Správna príprava stavebných otvorov pre obložkové zárubne s dverami vám môže ušetriť nielen peniaze, ale aj značné starosti. Nezabúdajte, že stavebný otvor pre dvere je niečo, čo sa robí raz - a potom to buď celé funguje bezchybne, alebo vám to roky znepríjemňuje život. Preto nepodceňujte prípravu otvoru a ak si nie ste istí, ako na to, obráťte sa na profesionálov. Radi vám poradia, pomôžu s výberom dverí, s prípravou stavebného otvoru a postarajú sa aj o profesionálnu montáž.