Vlastníctvo bytu či nebytového priestoru v bytovom dome so sebou prináša nielen práva a povinnosti spojené s užívaním samotného priestoru, ale aj spoluvlastnícky podiel k spoločným častiam domu, spoločným zariadeniam, príslušenstvu a pozemku. Tento článok sa zameriava na definíciu, význam a praktické dôsledky spoluvlastníckeho podielu, ako aj na práva a povinnosti, ktoré z neho vyplývajú pre všetkých vlastníkov.
Úvod do Spoluvlastníctva v Bytových Domoch
Forma spoluvlastníctva, ktorá je neoddeliteľnou súčasťou vlastníctva bytu alebo nebytového priestoru v bytovom dome, je primárne upravená zákonom č. 182/1993 Z. z. o vlastníctve bytov a nebytových priestorov (ďalej len "BytZ"). Spoluvlastnícky podiel nie je len formálnou záležitosťou, ale predstavuje kľúčový prvok, ktorý určuje mieru účasti každého vlastníka na správe a rozhodovaní o spoločných záležitostiach domu.

Definícia Spoluvlastníckeho Podielu
Spoluvlastnícky podiel nie je reálnou, fyzicky oddelenou časťou spoločnej veci. Predstava, že spoluvlastnícky podiel je konkrétnou časťou spoločnej veci, napríklad 2 m² z pozemku o celkovej rozlohe 10 m², je mylná. Ide o ideálny podiel, ktorý vyjadruje mieru, akou sa spoluvlastníci podieľajú na právach a povinnostiach vyplývajúcich zo spoluvlastníctva k spoločnej veci. Toto ideálne vyjadrenie je možné reálne vymedziť až po zrušení a vyporiadaní spoluvlastníctva.
Podľa ust. § 19 ods. 1 Zákona „Spoločné časti domu a spoločné zariadenia domu a príslušenstvo sú v spoluvlastníctve vlastníkov bytov a nebytových priestorov v dome, ak sa nedohodnú vlastníci inak.“ Uvedený spoluvlastnícky podiel je zároveň uvedený aj v katastri nehnuteľností.
Veľkosť spoluvlastníckych podielov na spoločných častiach, spoločných zariadeniach domu, na pozemku a na priľahlom pozemku prislúchajúcich k jednotlivým bytom sa určuje podielom výmery podlahovej plochy tohto konkrétneho bytu k úhrnu podlahových plôch všetkých bytov a nebytových priestorov v dome. Tento podiel je potom záväzný pre všetky účely, vrátane rozpočítavania nákladov.
Spoločné Časti a Zariadenia Domu
BytZ v § 2 ods. 4 definuje spoločné časti domu ako tie časti domu, ktoré sú nevyhnutné na užívanie stavby a ktoré sú spoločné všetkým vlastníkom bytov a nebytových priestorov. Príkladný výpočet zahŕňa:
- Základy domu
- Strecha
- Obvodové múry
- Strešné priečelia a štíty
- Vchody, schodiská a medzipodlažné chodby
- Zvislé nosné konštrukcie
- Vodorovné nosné a izolačné konštrukcie
- Kotolne
- Sušiarne
- Kočikárne
- Práčovne
- Hromozvody
- Vodovodné, kanalizačné, elektrické a plynové prípojky
- Spoločné televízne antény
Spoločné časti sa môžu vyskytovať ako časti spoločné všetkým vlastníkom (absolútne spoločné) a časti spoločné len niektorým vlastníkom (relatívne spoločné). Zákonná úprava pripúšťa, že vlastníci bytov sa môžu dohodnúť aj inak (§ 19 ods. 1 BytZ).

Príslušenstvo Domu a Priľahlý Pozemok
Príslušenstvom domu sú objekty, ktoré nie sú stavebnou súčasťou domu, ale sú určené na spoločné užívanie a nachádzajú sa na pozemku patriacom k domu. Medzi ne patria napríklad:
- Oplotené záhrady
- Stavby, najmä oplotenia
- Prístrešky
- Oplotené nádvoria
- Kanalizačné a vodovodné šachty
- Prístrešok regulátora plynu
Vlastníkovi bytu patrí tiež spoluvlastnícky podiel na pozemku, na ktorom je dom postavený, ako aj spoluvlastnícky podiel na pozemku patriacom k domu, tzv. priľahlý pozemok. Za priľahlý pozemok sa považuje pozemok patriaci k domu, na ktorom sú spoločné časti domu a príslušenstvo domu, ktoré sú určené na spoločné užívanie a slúžia výlučne tomuto domu a pritom nie sú stavebnou súčasťou domu.
Práva a Povinnosti Spoluvlastníkov
S vlastníctvom bytu je nerozlučne spojené spoluvlastníctvo spoločných častí bytového domu, spoločných zariadení, príslušenstva a pozemku. Tieto práva sú funkčne aj existenčne spojené s vlastníctvom bytu, čiže spolu s vlastníctvom bytu aj vznikajú, trvajú a zanikajú.
- Právo a povinnosť účasti na správe domu: Vlastník bytu alebo nebytového priestoru má právo, ale aj povinnosť zúčastňovať sa na správe domu. To zahŕňa účasť na schôdzach vlastníkov, kde sa hlasuje o rôznych záležitostiach, ako sú opravy, údržba, rekonštrukcie a iné dôležité rozhodnutia. Pri hlasovaní sa rozhoduje nadpolovičnou väčšinou hlasov všetkých vlastníkov bytov a nebytových priestorov v dome, ak BytZ neustanovuje inak.
- Rozhodovanie o hospodárení: O hospodárení so spoločnou vecou (spoločnými časťami a zariadeniami) rozhodujú spoluvlastníci väčšinou počítanou podľa veľkosti ich podielov. Ak sa spoluvlastníci s väčšinovým podielom dohodnú, ich rozhodnutie je záväzné aj pre menšinových spoluvlastníkov.
- Právo obrátiť sa na súd: V prípade, že je vlastník bytu prehlasovaný na schôdzi vlastníkov, má právo obrátiť sa na súd, aby vo veci rozhodol. Podľa ustanovenia § 14 ods. 4 BytZ, prehlasovaný vlastník má právo obrátiť sa do 15 dní od oznámenia o výsledku hlasovania na súd, inak jeho právo zaniká. Ak sa vlastník o výsledku hlasovania nemohol dozvedieť, má právo obrátiť sa na súd najneskôr do troch mesiacov od hlasovania.
- Povinnosť udržiavať byt a spoločné časti: Vlastník bytu je povinný na svoje náklady udržiavať byt a nebytový priestor v stave spôsobilom na riadne užívanie, najmä zabezpečovať údržbu a opravy. Je povinný konať tak, aby pri užívaní, udržiavaní, zmenách, prenajatí alebo inom nakladaní s bytom nerušil a neohrozoval ostatných vo výkone ich vlastníckych, spoluvlastníckych a spoluužívacích práv.
- Domový poriadok: Vlastníkmi bytov a nebytových priestorov v dome môže byť schválený domový poriadok, ktorý upravuje vzťahy medzi vlastníkmi a upravuje dodržiavanie dobrých mravov pri užívaní spoločných častí domu, spoločných zariadení domu, príslušenstva a priľahlého pozemku.
Spoluvlastnícky podiel na spoločných častiach a zariadeniach v kontexte nadstavieb a stavebných úprav
Právne otázky týkajúce sa bytových domov, vrátane nadstavieb, sú riešené v zákone č. 182/1993 Z.z. Nadstavba bytového domu sa uskutočňuje na základe zmluvy o nadstavbe uzavretej medzi stavebníkmi alebo medzi doterajšími vlastníkmi bytov a nebytových priestorov v dome a stavebníkmi. Ide o jeden zo spôsobov originálneho nadobudnutia vlastníckeho práva.
Zmluva o nadstavbe musí obsahovať predovšetkým úpravu práv a povinností stavebníka voči existujúcim vlastníkom v bytovom dome. Znížením rozsahu dovtedajších spoločných častí domu, ku ktorému na základe nadstavby spravidla dochádza, sa mení aj veľkosť spoluvlastníckych podielov. Napriek tomu, na výkone vlastníckych práv sa po uzavretí zmluvy o nadstavbe nič zásadné nemení, nakoľko spoluvlastníci budú aj naďalej užívať svoj predmet vlastníctva ako pred uzavretím predmetnej zmluvy. Menšinoví spoluvlastníci môžu mať z uskutočnenej výstavby či nadstavby majetkový prospech v podobe zdieľania menšieho rozsahu nákladov súvisiacich s údržbou a opravou spoločných častí a spoločných zariadení domu.
Zmluvu o nadstavbe nie je možné považovať za zmluvu o prevode vlastníckeho práva k spoločným častiam a zariadeniam, i keď sú jej ustanoveniami dotknuté. Spoločné časti a zariadenia domu nie sú totiž spôsobilé byť predmetom akéhokoľvek prevodu samostatne.
Výpočet Spoluvlastníckeho Podielu
Spoluvlastnícky podiel uvedený v katastri nehnuteľností je pre vlastníka záväzný. Jeho veľkosť sa vypočítava ako pomer podlahovej plochy bytu k celkovej podlahovej ploche všetkých bytov a nebytových priestorov v dome. Ak sú v dome aj nebytové priestory určené na iný účel ako bývanie (napr. polyfunkčný dom), ich podlahová plocha sa tiež započítava do celkovej plochy.
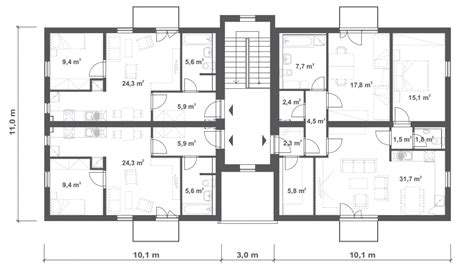
Praktický príklad výpočtu:
Pôdorys bytovky má 356 m² a má tri podlažia s 12 bytmi. Ak váš podiel je vyjadrený ako 762/10000, znamená to, že vlastníte 762 dielov z 10000. Jeden diel z celkovej plochy 356 m² predstavuje 356/10000 = 0,0356 m². Váš celkový podiel potom je 0,0356 m² * 762 = 27,1272 m². Toto však neznamená, že vám patrí konkrétna fyzická časť s touto výmerou.
Rozhodovanie o Úveroch, Vstavbách a Zmenách Správy
Podľa § 14 ods. 3 Zákona o vlastníctve bytov a nebytových priestorov, ak vlastníci bytov a nebytových priestorov v dome rozhodujú o úvere a o zabezpečení úveru, o zmluve o vstavbe alebo nadstavbe bytov alebo nebytových priestorov v dome a o zmene formy výkonu správy, rozhoduje sa hlasovaním na schôdzi vlastníkov dvojtretinovou väčšinou hlasov všetkých vlastníkov bytov a nebytových priestorov v dome. Ak sa rozhoduje písomným hlasovaním, podpis vlastníka musia potvrdiť najmenej dvaja overovatelia zvolení na schôdzi vlastníkov.
Pri zmluvách o vstavbe a nadstavbe je však potrebné brať do úvahy aj judikatúru a výklad ústavného súdu, ktorý poukázal na možný rozpor medzi uplatňovaním väčšinového princípu a právom jednotlivca nakladať so svojím majetkom. Zmluvou o vstavbe totiž dochádza k prevodu spoluvlastníckeho podielu na stavebníka, čo si vyžaduje individuálny prejav vôle každého vlastníka.
Prevod Vlastníctva Bytu
Pri prevode vlastníctva bytu musí prevodca na nadobúdateľa previesť aj svoje spoluvlastnícke podiely k spoločným častiam domu, spoločným zariadeniam domu, pozemku pod domom a priľahlému pozemku. Tieto podiely sú neoddeliteľnou súčasťou prevádzaného bytu.
Náležitosti Kúpnej Zmluvy Bytu
Pri prevode vlastníckeho práva k bytu alebo nebytovému priestoru musí kúpna zmluva obsahovať okrem náležitostí ustanovených katastrálnym zákonom aj špecifické náležitosti vyplývajúce zo zákona č. 182/1993 Z. z. Pre lepšiu prehľadnosť sa odporúča uviesť tieto náležitosti v samostatnom článku zmluvy, napríklad pod názvom "Popis bytu".
Štandardné náležitosti popisu bytu v zmluve:
- Prevodzovaný byt: Popis počtu obytných miestností a príslušenstva (napr. kuchyňa, predsieň, kúpeľňa, WC, pivničná kobka).
- Celková výmera podlahovej plochy bytu: Vrátane príslušenstva, s presným uvedením, či sa do tejto plochy započítava plocha loggie, pivnice, balkónov, terás či predzáhradky.
- Vnútorné vybavenie: Zoznam vnútorného vybavenia bytu, ktoré je súčasťou prevodu (napr. vnútorná inštalácia, kuchynská linka, vodovodné batérie, radiátory, sanity, podlahové krytiny, okná, dvere).
- Hranice vlastníctva: Jasné vymedzenie, kde končí vlastníctvo bytu a kde začínajú spoločné časti (napr. vstupnými dverami do bytu, hlavnými uzavieracími ventilmi).
- Spoluvlastníctvo: Konštatovanie, že so vlastníctvom bytu je spojené spoluvlastníctvo spoločných častí a spoločných zariadení domu. Uvedenie veľkosti spoluvlastníckeho podielu na spoločných častiach a zariadeniach, a ak je predmetom prevodu aj príslušenstvo domu a pozemok, tak aj na nich. Veľkosť podielu je daná podielom podlahovej plochy bytu k úhrnu podlahových plôch všetkých bytov a nebytových priestorov v dome.

Pochopenie spoluvlastníckeho podielu je kľúčové pre správne fungovanie života v bytovom dome, pre efektívnu správu spoločných priestorov a pre predchádzanie prípadným konfliktom medzi vlastníkmi. Ide o komplexný právny inštitút, ktorý si vyžaduje pozornosť a dodržiavanie platných zákonných ustanovení.
tags: #spoluvlastnicky #podiel #na #spolocnych #castiach #a