Hlavná budova Technickej univerzity vo Zvolene, architektonické dielo Ing. arch. Vladimíra Dedečka, prechádza zásadnou obnovou s cieľom zachovať jej pôvodný charakter a zároveň ju adaptovať na súčasné nároky vzdelávania a výskumu. Predmetom rozsiahlej zákazky je rekonštrukcia obvodového plášťa, ktorá sa zameriava predovšetkým na blok B, avšak celkový projekt zahŕňa aj bloky A a C. Tento ambiciózny projekt, stanovený v súlade s najnovšími projektovými dokumentáciami vypracovanými v decembri 2024, si kladie za cieľ nielen obnovu jestvujúcich konštrukcií, ale aj implementáciu moderných technológií a materiálov, ktoré zabezpečia energetickú efektívnosť a dlhodobú udržateľnosť budovy.

Zachovanie Pôvodného Dizajnu s Moderným Prístupom
Koncept rekonštrukcie je postavený na idei zachovania pôvodného dizajnu budovy, a to ako jej tvaru, tak aj materiálového prevedenia. Cieľom je vytvoriť "moderný šat" pre zrekonštruovaný objekt, ktorý bude využívať nové materiály, inovatívne okná, moderné omietky a kvalitné obklady. Tento prístup zaručuje, že budova si zachová svoju historickú hodnotu a architektonickú integritu, zatiaľ čo jej funkčnosť a estetika budú zodpovedať najvyšším súčasným štandardom. Dôraz na zachovanie pôvodného dizajnu vychádza z požiadaviek držiteľov autorských práv, Ing. arch. Kusého a Ing. arch. Paňáka, ktorí spolu s autorom projektovej dokumentácie budú dohliadať na všetky viditeľné konštrukcie a materiály.
Rozsah Rekonštrukcie Obvodového Plášťa Bloku B
Rekonštrukcia obvodového plášťa bloku B je komplexná a zahŕňa viacero kľúčových oblastí:
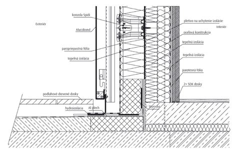
- Kamenné Obklady: Štítové steny, atiky a parapety ustúpených podlaží budú obložené kameňom s využitím princípu odvetranej fasády. Tento systém zabezpečuje optimálnu klímu v budove, chráni konštrukciu pred vlhkosťou a zlepšuje tepelnoizolačné vlastnosti fasády.
- Drevené Obklady Parapetov: Parapety budú z exteriéru obložené zvislým dreveným obkladom s integrovanou tepelnou izoláciou. Drevo dodáva budove prírodný a estetický vzhľad, zatiaľ čo tepelná izolácia prispieva k energetickej úspore.
- Úprava Betónových Konzôl: Betónové konzoly, ktoré vyčnievajú pred fasádu, budú obalené tepelnou izoláciou a následne oplechované. Tým sa zabezpečí ich ochrana pred poveternostnými vplyvmi, zvýši sa ich tepelný odpor a zlepší sa ich celkový vzhľad.
- Predpríprava pre Slnolamy: V rámci rekonštrukcie bude vykonaná predpríprava pre kotvenie kovových slnolamov. Samotná konštrukcia slnolamov však nie je predmetom tejto zákazky, čo umožňuje flexibilitu v budúcnosti. Táto predpríprava je kľúčová pre neskoršiu inštaláciu, ktorá môže pomôcť regulovať slnečné žiarenie a znížiť náklady na chladenie.
- Výplne Vonkajších Otvorov a Žalúzie: Všetky výplne vonkajších otvorov, vrátane okien a dverí, budú vymenené. Súčasťou dodávky budú aj žalúzie, ktoré umožnia dodatočnú reguláciu svetla a tepla v interiéri.
- Kamenné Obklady Podlaží: Kamenné obklady budú aplikované aj na podlažiach 1.NP (prvé nadzemné podlažie) a 1.PP (prvé podzemné podlažie), čím sa zlepší estetika a odolnosť týchto častí budovy.
- Zvislé Prvky Bleskozvodu: Budú inštalované zvislé prvky bleskozvodu, ktoré zabezpečia ochranu budovy pred účinkami atmosférickej elektriny.

Dvojfázová Realizácia Rekonštrukčných Prác
Celková rekonštrukcia bude prebiehať v dvoch jasne definovaných etapách, aby sa minimalizovalo narušenie prevádzky univerzity a zabezpečilo sa efektívne riadenie projektu:
- Prvá Etapa - Výmena Okenných Výplní a Žalúzií: Táto fáza je naplánovaná s ukončením stavebných prác do 31. marca 2026, pričom záväzný termín kolaudácie je stanovený na 30. apríla 2026. Zameriava sa na výmenu všetkých okenných výplní a inštaláciu žalúzií, čo je dôležitý krok k zlepšeniu energetickej efektívnosti a komfortu v budove.
- Druhá Etapa - Ostatné Konštrukcie: Táto rozsiahlejšia fáza zahŕňa všetky ostatné stavebné práce súvisiace s rekonštrukciou obvodového plášťa a iných konštrukcií. Ukončenie stavebných prác je naplánované do 30. novembra 2026.
Provětrávaná fasáda Diagonal 2H
Dodržiavanie Usmernení a Zásady Obnovy
Realizácia predmetnej zákazky musí byť v súlade s definovanými usmerneniami a záväznými požiadavkami. Zvláštny dôraz je kladený na zásadu "výrazne nenarušiť", v zmysle článku 5 ods. 2 Nariadenia Európskeho parlamentu a Rady EÚ 2021/241 o mechanizme pre investície spojené s výstavbou alebo obnovou budov v Pláne obnovy. Tieto požiadavky sú podrobne opísané v Metodickej príručke k výstavbe a obnove budov a tvoria neoddeliteľnú súčasť súťažných podkladov (Príloha G). Dodržiavanie týchto zásad je kľúčové pre zabezpečenie súladu projektu s európskymi predpismi a pre získanie finančnej podpory z Plánu obnovy.
Technická Univerzita vo Zvolene: História a Súčasnosť
Budova Technickej univerzity vo Zvolene, kde sa rekonštrukcia uskutočňuje, má bohatú históriu. Objekt bol postavený a uvedený do prevádzky v roku 1969. V minulosti boli na objekte realizované len čiastkové rekonštrukčné a udržiavacie práce, ktoré sa zameriavali na lokálne funkčné celky. Bez globálnej koncepčnej obnovy celého objektu však stavebno-technický a prevádzkový stav budovy postupne degradoval, čo viedlo k nevyhovujúcemu stavu ako z hľadiska stavebných konštrukcií, tak aj technického vybavenia.
Súčasný návrh rekonštrukcie vychádza z požiadaviek investora a reflektuje súčasné potreby a trendy v užívaní univerzitných priestorov. Cieľom je nielen obnoviť pôvodnú funkčnosť, ale aj adaptovať budovu na nové využitie a implementovať platné technické normy, vyhlášky a legislatívne požiadavky. V rámci projektu bola zohľadnená aj možnosť spojenia dvoch funkcií výučby do jedného objektu, čo si vyžiadalo asanáciu časti pôvodných dispozícií pre vytvorenie moderného riešenia dvoch prevádzok v novom koncepte. Tieto prevádzky, napríklad pekár/cukrár a mäsovýroba, majú svoje oddelené výrobné priestory so zázemím a skladmi. V rámci obnovy boli tiež vymenené rozvody kanalizácie, vody, ústredného kúrenia (ÚK) a elektroinštalácie, čím sa zabezpečila plná funkčnosť a bezpečnosť budovy.
Proces Verejného Obstarávania a Podmienky Účasti
Proces verejného obstarávania na rekonštrukciu obvodového plášťa budovy Technickej univerzity vo Zvolene je prísne regulovaný. Uchádzači budú vylúčení v zmysle § 40 ods. 6 a § 53 ods. 4 Zákona o verejnom obstarávaní. V prípade, že ponuku podáva skupina dodávateľov, verejný obstarávateľ vyžaduje, aby táto skupina pred podpisom zmluvy o dielo vytvorila právnu formu v súlade so zákonom č. 513/1991 Zb. Obchodného zákonníka alebo zákonom č. 40/1964 Zb. Občianskeho zákonníka, prípadne podľa relevantných právnych predpisov platných v krajine sídla členov skupiny. Tieto subjekty musia preukázať riadnu registráciu vytvoreného právneho subjektu.
Otváranie ponúk sa uskutoční elektronicky dňa 10. júna 2025 o 09:15 hod. v sídle verejného obstarávateľa, ktorým je Technická univerzita vo Zvolene, T. G. Masaryka č. 24. Tento dátum a čas otvárania ponúk predstavuje kľúčový míľnik v procese výberu dodávateľa pre tento významný rekonštrukčný projekt.

Celkovo rekonštrukcia obvodového plášťa bloku B Technickej univerzity vo Zvolene predstavuje komplexný projekt, ktorý kombinuje úctu k historickému dedičstvu s modernými architektonickými a technickými prístupmi. Cieľom je vytvoriť nielen esteticky príťažlivý, ale predovšetkým energeticky efektívny a funkčne moderný priestor, ktorý bude slúžiť potrebám univerzity po mnoho ďalších rokov.