Vlastníctvo pozemku, najmä ak je užší, môže predstavovať výzvu pri plánovaní ideálneho rodinného domu. Avšak, s inovatívnymi architektonickými riešeniami a starostlivo navrhnutými projektami, aj pozemok so šírkou 8 metrov sa môže stať základom pre funkčné, pohodlné a esteticky príťažlivé bývanie. Katalógové projekty domov typu bungalov, ktoré sú špeciálne navrhnuté pre úzke parcely, ponúkajú efektívne využitie každého štvorcového metra a zároveň zohľadňujú moderné požiadavky na bývanie. V tomto článku sa ponoríme do špecifík projektov bungalovov na úzke pozemky, preskúmame ich dispozičné možnosti, výhody a predstavíme konkrétne príklady, ktoré demonštrujú, ako je možné na obmedzenom priestore vytvoriť plnohodnotný rodinný dom.

Výzvy a Príležitosti Úzkych Pozemkov
V minulosti boli domy na úzkych pozemkoch často stavané z praktických dôvodov, ako je zachovanie prístupu na ulicu a zmenšenie vzdialeností medzi jednotlivými domami v obci. Dnešné požiadavky na bývanie sú však oveľa komplexnejšie. Moderné domy musia poskytovať dostatok denného svetla, ideálne priamy prístup do záhrady alebo na terasu, a zároveň optimálne využiť každý centimeter dostupného priestoru. Na prvý pohľad sa domy na úzkych pozemkoch nemusia zdať príliš priestranné, no práve tu prichádzajú na rad šikovné architektonické riešenia.
Navrhnúť dom, ktorý spĺňa tieto moderné požiadavky a zároveň dodržiava predpísané odstupové vzdialenosti od susedných pozemkov, je náročnejšie. Obzvlášť, ak je pozemok užší ako 11 metrov, nájsť vhodný katalógový projekt rodinného domu môže byť zložité, a často je riešením návrh domu na mieru. Avšak, mnohé katalógové projekty sú špecificky adaptované pre úzke parcely a ponúkajú inovatívne dispozície, ktoré maximalizujú obytnú plochu a zároveň zabezpečujú komfortné bývanie.
Domy na úzkych pozemkoch sú zvyčajne navrhnuté v pozdĺžnom tvare, čo umožňuje ich umiestnenie čo najbližšie k susednému pozemku pri zachovaní potrebných odstupových vzdialeností. Táto pozdĺžna dispozícia často znamená, že jedna strana domu má minimálne alebo žiadne okná, zatiaľ čo hlavné presvetlenie prichádza z čelnej a zadnej strany. Pre dosiahnutie požadovaného počtu izieb a funkčného rozdelenia priestoru sú prízemné domy na úzkom pozemku často obdĺžnikového tvaru, pričom štvorcové pôdorysy alebo domy v tvare L nie sú vždy ideálne.
BUNGALOW 213 - projekt prízemného 5-izbového domu, vhodný aj na úzky pozemok
Bungalov 8: Konkrétny Príklad Funkčného Bývania na Užšom Pozemku
Jedným z príkladov vhodného projektu pre užší pozemok, aj keď s mierne širšími rozmermi ako striktne 8 metrov, je trojizbový prízemný dom Bungalow 8. Tento katalógový projekt je navrhnutý tak, aby uspokojil požiadavky na bývanie pre 3 osoby a ponúka praktické riešenia pre každodenný život.
Vstup do domu s prestrešením chráni pred nepriaznivým počasím pri príchode, čo je praktické najmä v daždivých dňoch. Vstupná chodba je dostatočne priestranná na umiestnenie vstavaného šatníka alebo vešiakovej steny, čo zabezpečuje dostatok úložného priestoru pre oblečenie a obuv. Denná časť domu je navrhnutá s dôrazom na dostatok denného svetla. Obývačka je prepojená s kuchyňou, no v prípade potreby je možné tieto priestory oddeliť polpriečkou. Kuchynská linka v tvare L je funkčne navrhnutá a v jej blízkosti sa nachádza priestor na jedálenský stôl pre 4 osoby. Dominantou obývačky je vstavaný krb, ktorý prispieva k útulnej atmosfére počas chladnejších mesiacov.
Nočná časť domu obsahuje spálňu s priestorom na vstavaný šatník, čo je ideálne riešenie pre maximalizáciu úložného priestoru. Spálňa je dostatočne veľká aj na umiestnenie doplnkového nábytku a zároveň ponúka priestor pre tiché pracovné kútiky. Detská izba taktiež disponuje miestom na vstavaný šatník a je presvetlená dvoma oknami, čo vytvára príjemné prostredie pre dieťa. Kúpeľňa je navrhnutá na inštaláciu rohovej vane a sprchového kúta, umývadla a WC, čím poskytuje komfort pre celú rodinu.
Trojizbový prízemný dom Bungalow 8 je vhodný na realizáciu na rovinatom alebo mierne svahovitom pozemku. Jeho stredná veľkostná kategória a množstvo svetla v interiéri ho robia atraktívnou voľbou pre mnohé rodiny.
Široká Ponuka Projektov pre Úzke Pozemky
Okrem projektu Bungalow 8 existuje množstvo ďalších katalógových projektov navrhnutých špeciálne pre úzke pozemky, ktoré zodpovedajú rôznym potrebám a preferenciám. Tieto projekty sa líšia veľkosťou, počtom izieb, tvarom strechy a celkovým architektonickým štýlom.
BUNGALOW 10, 11, 12, 14, 15, 16, 17: Tieto projekty patria do kategórie menších až stredne veľkých domov a sú často navrhnuté pre 3-4 členné rodiny. Mnohé z nich sú murované a vhodné do nízkej okolitej zástavby, pričom sa líšia typom strechy (sedlová, valbová). Ich pôdorysy sú optimalizované pre úzke parcely, pričom niektoré sú vhodné na parcely s minimálnou šírkou napríklad 8 metrov (BUNGALOW 12, BUNGALOW 17).
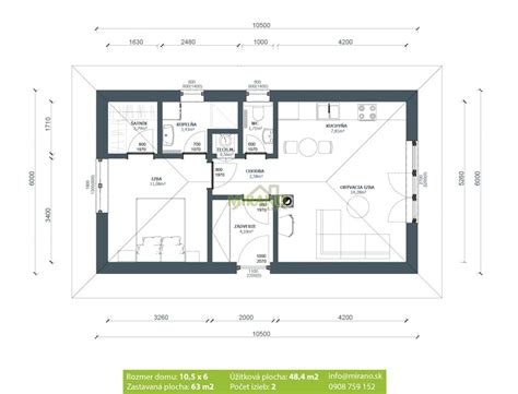
Kompaktné riešenia: Existujú aj veľmi kompaktné domy, ako napríklad tie s rozmermi 9,5 m x 6,5 m alebo 10,5 m x 6 m. Tieto domy majú zastavanú plochu okolo 60-63 m² a sú ideálne pre menšie rodiny alebo páry. Napriek svojej kompaktnej veľkosti ponúkajú funkčné rozdelenie na dennú a nočnú časť, často s priestrannou obývačkou spojenou s kuchyňou a vstupom na terasu.
Priestrannejšie možnosti: Pre tých, ktorí potrebujú viac priestoru, existujú aj projekty ako bungalov s rozmermi 11 m x 8,5 m a zastavanou plochou 93,5 m². Tieto domy ponúkajú viac izieb a lepšie rozdelenie priestoru, pričom stále zohľadňujú obmedzenú šírku pozemku.
Väčšie domy na úzke pozemky: Dokonca aj väčšie domy, ako napríklad bungalov 24 s dĺžkou 13,89 m a šírkou 9 m (zastavaná plocha 125,01 m²), alebo bungalov 64 s rozmermi 18,95 m x 10 m (zastavaná plocha 159,07 m²), sú navrhnuté s ohľadom na úzke pozemky. Tieto projekty často ponúkajú viacero spální, oddelenú dennú a nočnú časť, a dostatok úložného priestoru.
Špecifické projekty: Niektoré projekty sú špeciálne navrhnuté pre ultra úzke pozemky, napríklad s šírkou 7 metrov (Rodinný dom č.56) alebo dokonca menej. Tieto domy sú obvykle obdĺžnikového tvaru a ich dispozícia je maximálne optimalizovaná pre úzke parcely.

Flexibilita a Možnosti Úprav
Jednou z významných výhod katalógových projektov je možnosť ich individuálnej úpravy. Ak sa vám zapáči konkrétny projekt, ale niečo v ňom nevyhovuje vašim predstavám, je často možné vykonať úpravy pôdorysu, zmeniť materiály alebo prispôsobiť dispozíciu vašim potrebám. Zrkadlená verzia domu je zvyčajne zahrnutá v cene projektu, čo poskytuje dodatočnú flexibilitu pri umiestnení domu na pozemku.
Pre pozemky s extrémne obmedzenou šírkou, napríklad 8, 7 alebo dokonca 6 metrov, je možné si nechať vypracovať projekt domu na mieru. Moderné technológie výroby, ako napríklad pri keramických montovaných domoch, umožňujú vytvoriť šikovnú a praktickú dispozíciu, ktorá maximalizuje výhody vášho pozemku. Použitie výlučne prírodných materiálov zaručuje príjemné a zdravé bývanie s nízkymi prevádzkovými nákladmi.
Energetická Efektivita a Realizácia
Všetky moderné projekty rodinných domov, vrátane tých na úzke pozemky, spĺňajú prísne energetické normy a sú navrhnuté tak, aby dosiahli energetickú triedu A0. Požiadavka na projektové energetické hodnotenie budovy je nevyhnutná pre získanie stavebného povolenia a následnú kolaudáciu.
Dodávanie realizačného projektu znamená, že projekty sú vypracované nielen na získanie stavebného povolenia, ale aj na bezproblémovú realizáciu stavby. Obsahujú podrobné výkresy, detaily a výkaz materiálov a prác v elektronickej forme, čo uľahčuje proces výstavby. Niektoré spoločnosti ponúkajú možnosť postaviť dom na kľúč už za tri mesiace, čo je atraktívne pre investorov, ktorí chcú bývať čo najskôr.
Dvojdomy ako Alternatíva
V prípade, že je pozemok úzky, ale zároveň dostatočne dlhý, alternatívnym riešením môže byť projekt dvojdomu. Spojením dvoch vhodných projektov rodinných domov, pričom jeden je v zrkadlovom pohľade, môžete vytvoriť dvojdom. Tieto domy môžu byť prízemné alebo poschodové a spájajú sa stenami bez okien, čím sa šetria priestor a zároveň sa znižujú náklady na výstavbu. Táto možnosť je ideálna pre rodiny alebo priateľov, ktorí sa rozhodnú stavať dom v rovnakom období.
Záver
Projekty bungalovov na 8 metrov široký pozemok, a obecne na úzke pozemky, predstavujú inteligentné a funkčné riešenie pre mnohých budúcich majiteľov domov. Vďaka inovatívnym architektonickým prístupom a širokej ponuke katalógových projektov je možné aj na obmedzenom priestore vytvoriť komfortné, moderné a energeticky efektívne bývanie. Dôraz na maximálne využitie zastavanej plochy, optimálne rozdelenie interiéru na dennú a nočnú časť, a možnosť individuálnych úprav, robia z týchto projektov atraktívnu voľbu pre každého, kto sníva o vlastnom rodinnom dome na užšom pozemku.