Mnohí majitelia bytov čelia dileme, ako získať viac priestoru bez nutnosti sťahovať sa do väčšieho a drahšieho bývania. Jednou z možností je prerobenie existujúcej dispozície, kde sa z 3-izbového bytu stane plnohodnotný 4-izbový. Tento proces si však vyžaduje nielen dôkladné plánovanie a realizáciu, ale aj pochopenie legislatívnych požiadaviek a možností legalizácie takýchto zmien. Článok sa zameriava na kroky, ktoré je potrebné podniknúť, aby sa táto transformácia uskutočnila legálne a efektívne, a zároveň poukáže na dôležitosť profesionálneho prístupu.
Pochopenie Legislatívneho Rámca a Požiadaviek
Pred akýmkoľvek zásahom do dispozície bytu je kľúčové pochopiť, čo umožňuje a čo zakazuje platná legislatíva. V prvom rade je potrebné rozlišovať medzi zmenou dispozície a zmenou užívacieho účelu priestoru. Pridanie priečky na vytvorenie štvrtej izby, ak táto nová miestnosť spĺňa všetky normy pre obytnú miestnosť, je v zásade povolené, avšak vyžaduje si stavebné povolenie alebo ohlásenie stavby na príslušnom stavebnom úrade.

"Ak máš 3 izby a chceš 4, tak sa to musí na ten 4 najprv prerobiť. Jasné. Čiže ti treba stavebné povolenie alebo možno len ohlásovaciu povinnosť…atď. Len aby si na to nezabudla. Neprešiel túto povinnosť," upozorňuje jeden z hlasov v diskusii, čo zdôrazňuje dôležitosť dodržiavania administratívnych krokov. Stavebný úrad je prvým miestom, kde by mal majiteľ získať presné informácie o tom, aký typ povolenia je potrebný. "Klasicky na stavebný úrad, tam už ťa budú navigovať, čo treba," potvrdzuje ďalšia skúsenosť.
Dôležitým aspektom je, či nová izba bude spĺňať kritériá obytnej miestnosti. "A bude mať tá štvrtá izba okno?" pýta sa jedna z prispievateliek. Prirodzené osvetlenie a vetranie sú základnými požiadavkami. "Všetky izby musia spĺňať požiadavky legislatívy a noriem na obytné miestnosti. Minimálne prirodzené osvetlenie, vetranie," dodáva sa neskôr. V prípade, že nová miestnosť nespĺňa tieto kritériá, môže byť klasifikovaná ako nebytový priestor, čo môže mať vplyv na ďalšie užívanie a zápis v katastri.
"Kataster neeviduje, o koľko izbový byt sa jedná. Neviem, či to vôbec niekto niekde eviduje. Na čo by to vlastne bolo dobré?" poznamenáva niekto, no iný poukazuje na opačný názor: "Nie na to, že potrebuje ihlúň / stavebné povolenie na stavebnom úrade a že k nemu treba situačný výkres a prípadne vyjadrenie statika. To treba aj keď sa nemení počet izieb. Jej ide o to mať oficiálne na papieri, že byt bude 4 izbový." Táto poznámka naznačuje, že hoci kataster primárne eviduje výmeru, zmena dispozície s pridaním obytnej miestnosti môže viesť k zápisu o zmene počtu izieb, ak je správne zlegalizovaná.
Proces Získania Potrebných Povolení a Dokumentácie
Proces legalizácie prestavby na 4-izbový byt zvyčajne začína na stavebnom úrade. Tam je potrebné podať žiadosť o stavebné povolenie alebo ohlásenie drobnej stavby, v závislosti od rozsahu úprav. "My sme dávali pôdorys pred a po plánovanej rekonštrukcii a na naše počudovanie aj potvrdenie statika (aj keď sa nejednalo o nosnú stenu)," opisuje svoju skúsenosť jedna z diskutujúcich. To znamená, že aj pri pridaní nenosnej priečky môže byť vyjadrenie statika relevantné.
K žiadosti je spravidla potrebné priložiť nasledovné dokumenty:
- Situačný výkres: Preukazujúci umiestnenie bytového domu v rámci pozemku a navrhované úpravy.
- Projektová dokumentácia: Vypracovaná autorizovaným architektom alebo inžinierom, ktorá detailne popisuje navrhované stavebné úpravy, vrátane pôdorysov pred a po rekonštrukcii, technických riešení a materiálov.
- Vyjadrenia dotknutých orgánov: V niektorých prípadoch môžu byť potrebné vyjadrenia od iných inštitúcií (napr. hygiena, hasiči), ak to charakter stavby vyžaduje.
- Potvrdenie statika: Ak sa zasahuje do nosných konštrukcií alebo ak to vyžaduje stavebný úrad aj pri nenosných priečkach.
- Doklad o vlastníckom práve k nehnuteľnosti.
"Hlavné je asi stavebné povolenie, statik ak pôjde o búranie priečok," zdôrazňuje sa v príspevkoch. Je dôležité si uvedomiť, že proces môže byť "zbytočne zdĺhavý kolobeh papierovačiek," ako varuje jeden z komentárov, ale jeho absolvovanie je nevyhnutné pre legálnu zmenu.
Praktické Aspekty Dizajnu a Realizácie
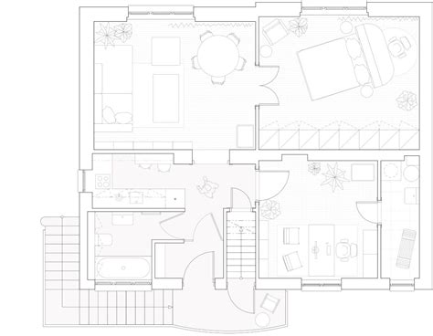
Okrem administratívnych krokov je rovnako dôležité aj samotné dispozičné riešenie a kvalita realizácie. Dizajnéri a architekti často ponúkajú riešenia, ako efektívne premeniť 3-izbový byt na 4-izbový. Príkladom je návrh Ing. arch. Lívií Krupovej, ktorá premiestnila kuchyňu do haly, zväčšila otvor do obývačky a z pôvodnej kuchyne vytvorila novú izbu. "Malou zmenou dispozície sa dá dokonca vyčarovať o izbu viac! A to nie je maličkosť, keď si uvedomíte, koľko by ste za väčší byt zaplatili," uvádza sa v článku o jej práci.

Pri premene je dôležité dbať na:
- Funkčnosť: Každá izba by mala byť plnohodnotne využiteľná.
- Prirodzené osvetlenie a vetranie: Zabezpečenie dostatku svetla a čerstvého vzduchu v každej miestnosti.
- Akustiku: Zváženie zvukovej izolácie medzi novými miestnosťami.
- Úložné priestory: Dizajnové riešenia, ktoré maximalizujú úložné možnosti.
"Prekvapivé je, že byt má viac úložných priestorov ako doteraz," uvádza sa v hodnotení jedného z návrhov, čo potvrdzuje, že premyslený dizajn môže priniesť aj iné benefity.
Výhody a Nevýhody Prestavby
Výhody:
- Získanie ďalšieho obytného priestoru: Umožňuje oddelenie izieb pre členov rodiny, vytvorenie pracovne alebo hosťovskej izby.
- Zvýšenie hodnoty nehnuteľnosti: Legálne zmenená dispozícia môže zvýšiť trhovú hodnotu bytu.
- Vyšší komfort bývania: Viac priestoru a súkromia pre každého člena domácnosti.
- Možnosť zostať v obľúbenej lokalite: Umožňuje získať viac priestoru bez nutnosti sťahovania sa.
Nevýhody:
- Administratívna náročnosť: Proces získavania povolení môže byť zdĺhavý a byrokratický.
- Finančné náklady: Okrem stavebných prác sú tu aj náklady na projektovú dokumentáciu, poplatky a prípadné úpravy inštalácií.
- Možné komplikácie počas realizácie: V starších budovách sa môžu objaviť neočakávané problémy, ktoré navýšia náklady a predĺžia čas realizácie.
- Potenciálne obmedzenia: Nie všetky dispozície umožňujú bezproblémové pridanie ďalšej plnohodnotnej izby bez kompromisov.
DIZAJNOVÝ 3-IZBOVÝ BYT, NOVOSTAVBA, BAŠTOVÁ
Zhrnutie a Odporúčania
Prerobenie 3-izbového bytu na 4-izbový je realizovateľné, avšak vyžaduje si zodpovedný prístup a dôkladné oboznámenie sa s legislatívnymi požiadavkami. Kľúčové kroky zahŕňajú:
- Konzultácia so stavebným úradom: Získanie informácií o potrebnom povolení a dokumentácii.
- Vypracovanie projektovej dokumentácie: S pomocou architekta alebo interiérového dizajnéra.
- Zabezpečenie potrebných vyjadrení a povolení: Vrátane prípadného vyjadrenia statika.
- Realizácia stavebných úprav: Podľa schválenej projektovej dokumentácie.
- Kolaudácia a zápis zmien: Na základe ktorej sa aktualizuje evidencia v katastri nehnuteľností.
"Hlavné je asi stavebné povolenie, statik ak pôjde o búranie priečok," pripomína sa. Hoci sa môže zdať proces zdĺhavý, jeho dôsledné absolvovanie je zárukou legálneho a bezproblémového užívania prerobeného priestoru. "Ak mas 3 izb a chces 4 tak sa to musi na ten 4 najprv prerobit," zdôrazňuje sa. V konečnom dôsledku, premyslená rekonštrukcia môže priniesť výrazné zlepšenie kvality bývania a zvýšenie hodnoty nehnuteľnosti. Je dôležité zvážiť všetky aspekty, od legislatívnych po dizajnové, a v prípade potreby sa obrátiť na odborníkov, ktorí vám pomôžu celý proces úspešne zrealizovať.