Budovy postavené do začiatku 20. storočia sa realizovali prevažne z prírodných materiálov, ako sú kameň, drevo, hlina, prípadne pálená tehla. Vďaka priaznivému vplyvu hliny, a teda aj stavieb postavených z hliny na zdravie človeka sa zachované objekty stávajú čoraz častejšie predmetom rekonštrukcií a sanácií. Nepálená tehla je často spájaná s nízkou kvalitou a nedokonalosťou, ale napriek tomu celá tretina ľudstva ešte stále býva v domoch z tejto tehly. V minulosti sa na Slovensku stavali domy z nepálenej tehly takmer vo všetkých regiónoch, a dodnes stoja po celom Slovensku tzv. vaľkové domy. Mnohé z nich však noví majitelia búrajú. Rekonštrukcia starých stavieb však ponúka možnosť zachovať si charakteristický vzhľad a využívať výhody, ktoré nepálená tehla ponúka. Hlinené steny dokážu dýchať a udržiavať príjemnú vlhkosť ovzdušia, majú vynikajúce zvukovoizolačné vlastnosti, filtrujú prach a absorbujú škodlivé látky. Avšak, na rekonštrukciu týchto starých domov je potrebný odborník, ktorý dokáže správne vybrať materiály a zabezpečiť, aby stará stavba zostala staticky bezpečná.
Tradičné materiály a ich výzvy pri rekonštrukcii
Budovy postavené do začiatku 20. storočia sa realizovali prevažne z prírodných materiálov, ako sú kameň, drevo, hlina, prípadne pálená tehla. Hlinené stavby predstavujú z pohľadu trvalej udržateľnosti a vytvárania prostredia neškodného pre zdravie ľudí vhodné riešenie. Preto v ostatnom období získavajú na význame a stávajú sa predmetom rekonštrukcií.

Pri výbere vhodnej sanačnej metódy hlinených stavieb a spôsobe jej realizácie zvyčajne prevláda snaha primárne využiť všetky rezervy existujúcej konštrukcie, napríklad jej predimenzovanie alebo možnosť znížiť jej vlastnú tiaž (odstránenie hrubej vrstvy násypov na strope, výmena ťažkej krytiny za ľahkú). Na sanáciu základových konštrukcií, stien a pilierov bol v minulosti vypracovaný celý rad sanačných techník. Nie všetky techniky sú však pre stavby z nepálenej hliny vhodné.
Sanácia základov hlinených stavieb
Základy hlinených stavieb sú takmer výhradne kamenné, murované na hlinenú maltu. Poruchy môžu byť spôsobené vymývaním hlinenej malty vplyvom prúdiacej podzemnej vody, zle realizovaným murovaním alebo ich preťažením. Postup opravy je podobný ako pri prehĺbení základovej škáry. Kamene z priestoru základu sa v krátkych úsekoch vyberajú a nanovo zabudovávajú. Ak nejde o historicky cennú stavbu, odporúča sa realizovať nové základy z betónu prekladaného kameňom. Do betónu možno vkladať očistené kamene z pôvodného základu. Každá úprava základu sa vo väčšine prípadov spája s vkladaním dodatočnej hydroizolácie proti zemnej vlhkosti. Hydroizolácia akéhokoľvek druhu sa musí umiestniť pod hlineným stavivom.
Sanácia základov môže obnášať jednoduché činnosti ako prehĺbenie základovej škáry, ale aj obnovu častí vykazujúcich poruchy, či rozšírením základov samotných.
Prehĺbenie základovej škáry a podbetónovanie
Prehĺbenie základovej škáry sa realizuje v prípade rozširovania existujúcich základov, pri ich nedostatočnej hĺbke, výmene alebo v prípade, že treba základovú konštrukciu doplniť. S podbetónovaním a podmurovaním sa súčasne realizuje dodatočné vloženie hydroizolácie proti zemnej vlhkosti. Podbetónovanie sa realizuje v úsekoch dlhých asi 1 m. Úseky susediace s podbetónovaným úsekom musia byť vždy v dvojnásobnej dĺžke, ako je dĺžka podbetonávky, a podopreté pôvodnou zeminou alebo už novou funkčnou základovou konštrukciou. Ide o manuálnu technológiu, ktorou sa pri dodržaní správneho postupu dosahuje vždy želaný výsledok. Na zhotovenie podmurovky sa odporúča použiť kameň, betónové tvárnice alebo prostý betón prekladaný kameňmi. Hlinené murivo treba vždy nad podbetónovaným úsekom zabezpečiť. Jeho ťahové pevnosti sú zanedbateľné, a preto by mohla vypadnúť časť muriva. V praxi sa osvedčilo napríklad použitie dvoch uholníkov, ktoré sa vkladajú oproti sebe do škáry hlineného muriva a upevňujú sa vzájomným zoskrutkovaním. Po vytvrdnutí základu sa uholníky odstránia a použijú na vyhotovenie ďalšieho úseku.

Dodatočné podoprenie základov možno realizovať aj pomocou mikropilót. Ich ukotvenie do plytkých kamenných základov murovaných na hlinenú maltu však nie je možné bez ďalšej úpravy, napríklad obojstranného železobetónového opláštenia existujúcich základov spojeného v pravidelných vzdialenostiach naprieč kamenným základom alebo jeho výmenou za nový z betónu.
Rozšírenie základov a injektáž podzákladia
Rozšírením základov sa zväčšuje veľkosť kontaktnej škáry medzi základom a podložím, čím sa znižuje veľkosť napätia pod základom a zvyšuje bezpečnosť. Táto metóda sa uplatňuje v prípade plánovaného zvýšenia záťaže základovej škáry nadstavbou alebo zmenenou prevádzkou, alebo pri jej nedostatočnej únosnosti.
Pri metóde prehĺbenia základu so zachovaním pôvodnej základovej konštrukcie sa znižuje napätie v základovej škáre. V prípade hlinených stavieb je dôležité, aby sa spodná hrana hlineného muriva nachádzala aspoň 0,5 m nad oceľovými profilmi, inak hrozí jeho porušenie sústredeným zaťažením. Na zabezpečenie správneho spolupôsobenia rozšírených základov treba bočné steny existujúceho základu očistiť od hliny a vyškrabať povrchové škáry. Vďaka tomu sa dosiahne zatečenie betónu do všetkých nerovností povrchu a požadované zvýšenie súdržnosti starej a novej časti.
Ďalším možným spôsobom prehĺbenia a rozšírenia základovej škáry je injektáž podzákladia. Táto metóda sa používa na sanáciu hlinených stavieb v minimálnom množstve. Ide o metódu vhodnú predovšetkým pre pamiatkovo chránené stavby, pri ktorých je zámer zachovať pôvodné nedostatočné riešenie. Vo väčšine prípadov sa uplatňuje pri veľkých stavbách.
Odľahčenie základovej konštrukcie
Na zníženie napätia v základovej škáre možno použiť veľmi účinný spôsob odľahčenia. Na odľahčenie základovej konštrukcie sa používa skôr druhá metóda. Odľahčenie sa dosiahne vložením podpier do exponovaných miest, ktorými sa prenáša časť zaťaženia do novobudovaných základov. Toto riešenie sa často uplatňuje aj v prípadoch, keď základová konštrukcia síce vyhovuje, ale v niektorých miestach nastáva kumulácia zaťaženia a následne jej preťaženie. Dodatočné podpery možno vkladať do konštrukcie steny, takže sa nenarúša vnútorný priestor. Zvyčajne sa používajú podpery z ocele alebo dreva.
Sanácia hlinených stien a pilierov
Hlinené konštrukcie murované a ubíjané vyžadujú rozličné druhy sanačných opatrení v závislosti od ich kvality, stupňa poruchy a od budúceho zaťaženia. Sanačné techniky, ktoré možno použiť, majú obmedzený rozsah. Opravy a zosilňovanie muriva sa realizujú vždy na základe statického prieskumu. Opravou murovaného prvku sa má zabezpečiť jeho ďalšia funkčnosť. Murivo sa dopĺňa v prípade narušenej alebo chýbajúcej časti muriva, pričom ostatná časť prvku je v relatívne dobrom stave. Najčastejšie sa takéto poruchy vyskytujú na obvodovom murive, ktoré nie je chránené proti lokálnemu prenikaniu vody (nevyhovujúce odkvapy, únik vody z chybného potrubia, mechanické poškodenie a podobne).

Rovnako sa táto metóda uplatňuje pri zamurovávaní, napríklad pri zmene okenných alebo dverných otvorov. Premurovať treba aj miesta lokálne poškodené napríklad v dôsledku rozpadu tehál v stene. Podmienkou zabezpečenia spoľahlivosti opravovaného prvku je použitie materiálu s pevnosťou vyššou, ako je jeho pevnosť, a riadne spojenie domurovky s existujúcou konštrukciou. Treba počítať s dotvarovaním nového vkladaného prvku v murive.
Hĺbkové škárovanie muriva
K metóde dopĺňania muriva patrí aj dopĺňanie malty v škárach tvoriacich lícovú vrstvu stien. Hĺbkovým škárovaním sa zvyšuje pevnosť a celistvosť muriva nahradením okrajových alebo vypadnutých vrstiev pôvodnej malty novou. Čiastočne sa tým obnoví únosnosť muriva, zabráni sa prenikaniu vody pochádzajúcej z dažďa, prípadne topiaceho sa snehu do jadra muriva a predĺži sa jeho životnosť. Pred začatím samotného škárovania treba mechanicky odstrániť zvyšky malty. Po rozmiešaní vo vode ich možno opätovne použiť. Pri hĺbkovom škárovaní sa vymení, prípadne doplní zvetraná malta v ložných a styčných škárach do hĺbky asi 40 mm. Hĺbkové škárovanie sa odporúča použiť na povrchovo narušené murivo.
Ochrana proti vonkajším vplyvom a stabilizácia konštrukcií
Ochrana proti vonkajším vplyvom zahŕňa realizáciu vnútorných aj vonkajších omietok, prípadne zateplenie a realizáciu obkladov. V prípade zateplenia treba zabezpečiť, aby sa tepelnoizolačným systémom neuzavrela prievzdušnosť hlineného muriva. To možno dosiahnuť použitím odvetranej fasády.
Konštrukčný prvok alebo celá nosná konštrukcia sa najčastejšie stabilizuje proti vychýleniu zopnutím, podoprením, prípadne iným typom kotvenia. Účelom zopnutia je zabezpečiť opravovanú časť konštrukcie v požadovanej polohe, a tým umožniť jej ďalšie využívanie.
Zvýšenie tuhosti stavby a stuženie
Hlinené stavby s drevenými trámovými stropmi patria medzi budovy s poddajnými stropnými konštrukciami, ktoré nie sú schopné prenášať vodorovné zaťaženie. Ani kvalitne realizovaným uložením trámov na murivo sa nezabezpečí pevný styk steny a stropu. Aby sa zabezpečila spoľahlivosť hlinených stavieb, treba realizovať ich stuženie, ktorým sa dosiahne prenos vodorovného zaťaženia do zvislých stien. Stuženie objektu možno zabezpečiť ich zopnutím a zvýšením tuhosti stropných konštrukcií.

Pred samotným zopnutím je nevyhnutné zabezpečiť zvýšenie tuhosti stropných konštrukcií. Vytvorenie tuhej stropnej dosky. Na záklop sa diagonálne uloží ďalšia vrstva drevených dosiek, čím sa vytvorí tuhá stropná doska. Dosky sa na záklop a na nosné trámy plošne priskrutkujú a po obvode prikotvia masívnym olištovaním do stien.
Pri vaľkových domoch často dochádzalo k javu, kedy jednotlivé steny neboli medzi sebou previazané a len sa o seba „opierali“.
Spôsoby stuženia a horizontálneho spínania
Výmena poškodeného dreveného stropu za nový, uložený na novovybudovaný železobetónový veniec. Železobetónový veniec je vhodným doplnkom hlinených stavieb. Spínanie sa realizuje v horizontálnej úrovni stropov. Možno použiť niekoľko spôsobov. Klasický spôsob pomocou guľatiny zakotvenej do oceľových dosiek je vhodný pre stavby s neporušenými stenami. Keďže možnosť zatlačenia oceľových dosiek do relatívne mäkkého hlineného muriva je obmedzená, odporúča sa na dosiahnutie roznosu zaťaženia na väčšiu plochu muriva umiestniť pod dosku odrezok fošne z dubového dreva. Pri stenách s väčším poškodením sa odporúča ich umiestnenie po obvode.
Príliš razantné riešenie predstavuje pre hlinené murivo použitie predpínacej techniky. Vhodnejšie je spevniť strop v jeho rovine celoplošným prikotvením fošien alebo dosiek na drevenú bázu (napríklad na dosku OSB) a k stropnej konštrukcii kotviť stenu po obvode sériou drobných kotiev. Množstvo vkladaných oceľových prvkov by sa malo vzhľadom na prírodný materiálový základ hlinených stavieb obmedziť na minimum. Zopnutím objektu sa zabezpečí pohyb stien len v horizontálnom smere. Zopnutie budov sa odporúča realizovať preventívne pri všetkých rekonštrukciách, pretože staré hlinené stavby nemajú zvyčajne nijaké horizontálne stuženie.

So zvýšením tuhosti objektu treba zároveň odstrániť akékoľvek horizontálne zaťaženie vnášané do budovy. Ako príklad možno uviesť vnášanie horizontálnych síl do konštrukcie zakotvením stĺpa hlavného elektrického vedenia vedúceho z údolia do štítovej steny hlinenej stavby nachádzajúcej sa na svahu vrchu Veľkého Lopeníka. Horizontálne sily postupne narušili celú štítovú stenu tak, že sa na prízemí oddelila od stropnej konštrukcie a vznikla škára s hrúbkou asi 150 mm, ktorú majiteľ celé roky zapĺňal maltou a drobnými úlomkami tehál. Najčastejšou príčinou vnášania horizontálnych síl do hlinených stavieb je však nevhodne navrhnutý a realizovaný krov. Klasické trhliny v stenách možno opraviť až po odstránení príčiny horizontálneho zaťaženia.
Previazanie rohov stien
Previazanie rohov stien možno dodatočne realizovať navŕtanými tŕňmi do muriva, ktoré sa osadia pod uhlom 15° a zainjektujú. Namiesto oceľových tŕňov možno použiť dubové tyče z vetvičiek s ošúpanou kôrou. Kolmé vnútorné steny sa previažu s obvodovými a zošijú sa rohy. Obvodové steny sa následne prikotvia k stropnej konštrukcii.
Preklady nad otvormi v hlinených stavbách
Preklady nad otvormi sa realizujú zvyčajne z dreva, menej často sa realizujú klenby z hlinených tehál. V minulosti sa používali dubové laty alebo fošne, výnimkou neboli ani trámiky zo smrekového dreva. Drevené prvky vkladané do stien sa zvyčajne preventívne proti hnilobe konzervovali, a to namáčaním do vápna, opaľovaním povrchu a podobne. Na hornú hranu muriva sa pod úrovňou stropu umiestňovala fošňa alebo trámik, ktorými sa roznášalo bodové zaťaženie zo stropných trámov na väčšiu plochu a zároveň slúžili ako drevený pomúrnicový veniec. Na hornú hranu podkrovnej nadmurovky sa ukladali pomúrnice, do ktorých sa kotvili prvky krovu. V prípade stien s väčšou voľnou výškou sa do muriva vkladali drevené trámy, a to v polovici výšky steny, nad úrovňou nadokenných a naddverných prekladov, ktorými sa mala stena stužiť.

Drevené preklady sú zvyčajne poškodené hnilobou, preto ich treba vymeniť za nové. Dôležitá je dostatočná úložná dĺžka, ktorá má byť v porovnaní s úložnou dĺžkou na murive z pálených tehál aspoň dvojnásobná.
Moderné preklady a ich aplikácia v hlinených stavbách
Preklady predstavujú organickú súčasť tehlového stavebného systému. Keramické preklady pre okná a dvere sú vyplnené tvarovky a sú súčasťou tehlového systému. Tak ako tehly aj tvarovky pre preklady sú vyrobené z prírodného materiálu - hliny. Celá produktová rada vzniká vypaľovaním v tehliarskej peci, kde sa teplota pohybuje okolo 900° C. Vďaka výpalu tehliarske výrobky získavajú svoj nezameniteľný charakter a mnohé výhody oproti ostatným murovacím materiálom, ktoré sa vyrábajú mokrou technológiou. Tehly a tvarovky pre preklady vychádzajú z pece v absolútne suchom stave bez akejkoľvek výrobnej vlhkosti. Počas výpalu prebehnú v materiáli nevratné fyzikálno-chemické zmeny a tehla, rovnako ako preklady, nadobúdajú tvarovú a rozmerovú stabilitu. Objemové zmeny pálených stavebných materiálov v dôsledku vysychania alebo navlhnutia sú prakticky nulové. U tehlového muriva a prekladov je riziko vzniku trhlín znížené na minimum, preto je veľmi dobrým podkladom pod omietky.
Keramické preklady nadobúdajú úplnú únosnosť až po osadení do cementovej malty. V obvodovom murive sa preklady kombinujú s tepelnou izoláciou, čím sa odstránia tepelné mosty. Preklad sa má správne osadiť na maltové lôžko. Pri osadení prekladov okien a dverí do obvodového muriva, je dôležité dodržať statický návrh, ktorý určí počet prekladov na stavbe. Kompletný preklad nad otvorom sa zhotoví vyskladaním z potrebného počtu prefabrikátov, v závislosti od hrúbky steny. Pri obvodovom murive bežne osádzame jeden nosný preklad z exteriérovej strany a zvyšné nosné preklady z interiéru. Zvyšok priestoru sa vyplní tepelnou izoláciou. Hrúbka ložnej škáry správne zabudovaného prekladu má byť rovnaká ako hrúbka muriva.
Kompletný tehlový stavebný systém to nie sú len tehly. Žiaden dom nemôže byť bez okien, dverí a stropu. Keramické preklady sú tzv. prefabrikátmi. Znamená to že výrobok, v tomto prípade preklad, je certifikovaný a pravidelne testovaný výrobok s garantovanými technickými parametrami od výrobcu. Pri správnej montáži poskytuje záruku, že konštrukcia s použitím prekladu bude plniť svoju funkciu.
Roletové a žalúziové preklady
Špecifickou skupinou sú tehlové preklady, ktoré umožňujú následnú montáž roliet a žalúzií. Hovorí sa im roletové, resp. roletovo-žalúziové preklady. Môže ísť o nenosné preklady, ale dostupné sú aj tehlové preklady, ktoré sú nosné a zároveň tvoria schránku na osadenie tieniach systémov. Ponúkajú možnosť postupne vyťahovať jednotlivé diely izolantu, čím stavebník postupne získa priestor na žalúziu, malú roletu alebo aj veľkú schránku na roletu. Stále pritom zostane zachovaný dostatok integrovanej izolácie, aby nevznikli tepelné mosty. Dostupné sú už aj tehlové preklady, ktorých tepelnoizolačné parametre sú vylepšené použitím grafitového polystyrénu. Roletovo-žalúziové preklady sú pri modernej výstavbe stále používanejšie, pretože výstavba pasívnych domov sa bez vonkajšieho tienenia nezaobíde. Niektoré preklady sa dajú v prípade použitia kontaktných zatepľovacích systémov predsadiť až o 150 mm pred líce muriva.
Pri murovaní radu tehál nad nenosnými tehlovými prekladmi je nutné premaltovať zvislé škáry, aj keď ide o tehly so systémom pera a drážky. Bez toho sa zaťaženie nerozloží správne a nevytvorí sa tzv. plošný prenos zaťaženia. Preklady sa často ukladajú nasucho alebo do tenkovrstvovej malty, čo však v konečnom dôsledku môže nepriaznivo ovplyvniť statické vlastnosti prekladu. Problémy vznikajú aj vtedy, ak sa preklad zabuduje v nesprávnej polohe. Napríklad tzv. vysoký preklad by mal byť zabudovaný tak, aby ležal na svojej užšej strane, čiže akoby stál, nízky naopak. Chyby v tomto smere mnohokrát vznikajú aj preto, že sa nerešpektujú označenia (napr. „Horná strana“ a „Spodná strana“).

Pri moderných tehlových tvárniciach je z tepelnotechnického hľadiska vhodnejšie využiť pomocné tehly, ktoré po uložení na vrch parapetu alebo v zvislom smere na ostenia okna vytvoria širšiu drážku. Do nej potom povkladáme lamely z extrudovaného polystyrénu, takže rám okna je dokonale tepelne odizolovaný od obvodového muriva. Pomocou systému s oceľovým stĺpikom možno vybudovať elegantné nárožné okno. Sú nezvyčajné, robia sa na drahších domoch, ale poskytujú pekný výhľad. Pomocou istých doplnkov ich možno urobiť aj z tehlových tvárnic. Okrem samotných okien, murovacieho materiálu a roletových prekladov potrebujeme oceľový stĺpik navrhnutý špeciálne na tento účel, ktorý bude prenášať zaťaženie z prekladov do muriva pod parapetom. Samotný parapet a ostenie sa vymurujú z tzv. koncových, tehál určených na tvorbu ostenia s kapsami otočenými k budúcemu okennému rámu. Po vybudovaní ostení a stien do potrebnej výšky je potrebné ešte pred osadením prekladov postaviť a zafixovať oceľový stĺpik, ktorý sa dodáva na objednávku. V okolí stĺpika treba tehly presne narezať, v nijakom prípade ich nesekáme. V ďalších krokoch môžeme k stĺpiku a osteniu primontovať okná a vonkajšie rolety či klasické rolety. Ostáva už len vhodným spôsobom obaliť oceľový stĺpik tepelnou izoláciou a celú stenu správne omietnuť. Tento spôsob montáže je čistý, rýchly a presný.
Chyby pri stavbe a osadzovaní prekladov
Pri murovaní tehlových prekladov dochádza k častým chybám, ktoré môžu znehodnotiť stavbu. Tehlové preklady môžeme rozdeliť z viacerých hľadísk. Zo statického hľadiska je tehlový preklad nosný alebo nenosný. Nosné preklady sú nosné samy osebe, nenosné sa stávajú nosnými až vymurovaním radu tehál nad nimi. V obvodovom murive by ste mali použiť nosný preklad alebo nosný roletovo-žalúziový tehlový preklad. Ak sa použije nenosný plochý preklad, musíte pokračovať vybudovaním spomenutého nosného prvku nad ním.
Nesprávne uloženie prekladov patrí medzi najčastejšie problémy pri ich osadzovaní. Dôležité je dodržať statický návrh a v ňom určený správny počet prekladov do otvorov na stavbe. Pri obvodovom murive sa bežne odporúčajú štyri kusy nosných prekladov. Tento počet môže byť aj vyšší alebo nižší. Ďalší problém súvisí s roletovo-žalúziovými prekladmi a môže (hoci nemusí) nastať až dodatočne, a to pri montáži tieniacej techniky. Vnútorný priestor roletových prekladov nebýva vždy dostatočne prispôsobený tieniach prvkom, často sa mení iba jeho dĺžka, a to podľa veľkosti stavebného otvoru. Súbory komponentov tieniacej techniky, ktoré sa montujú do prekladu, mávajú rôzne rozmery a tvary. Výrobcovia roletovo-žalúziových prekladov sa však v súčasnosti práve preto snažia o väčšiu univerzálnosť roletových tehlových prekladov.
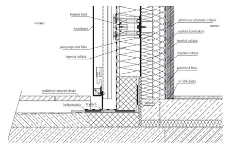
Zateplenie hlinených stavieb
Zateplenie sa realizuje klasickým spôsobom. Odporúča sa použitie kontaktného tepelnoizolačného systému alebo prevetrávanej fasády so vzduchovou medzerou. Je nevyhnutné, aby sa použila tepelná izolácia na báze prírodných materiálov alebo minerálnych vlákien. V prípade hlinených stavieb nie je vhodné použiť na zateplenie polystyrén, pretože je nepriedušný a zabraňuje prestupu vodnej pary smerom k vonkajšiemu povrchu konštrukcie.

Udržateľná výstavba a hlinené stavby
Súčasne sa čoraz častejšie skloňuje slovné spojenie udržateľná výstavba. Hlinené stavby predstavujú z pohľadu trvalej udržateľnosti a vytvárania prostredia neškodného pre zdravie ľudí vhodné riešenie. Preto v ostatnej dobe získavajú na význame a stávajú sa predmetom rekonštrukcií. V súčasnosti na Slovensku existujú celkom prístupné dotačné postupy.
V konečnom dôsledku je rozhodnutie, či sa pustiť do rekonštrukcie alebo búrania starého domu na majiteľovi. Je dôležité zvážiť nielen finančné náklady na celkovú rekonštrukciu, ale aj to, čo nám daný dom bude môcť poskytnúť v oblasti pohodlia, zdravia a životného prostredia.