V súčasnom stavebníctve sa kladie čoraz väčší dôraz na rýchlosť, efektivitu a udržateľnosť. V tomto kontexte sa prefabrikované skeletové konštrukčné systémy, či už na báze betónu alebo dreva, stávajú atraktívnou alternatívou k tradičným metódam výstavby. Tieto systémy využívajú vopred vyrobené komponenty, čo umožňuje presnejšiu kontrolu kvality, skrátenie stavebného procesu a optimalizáciu nákladov.
Prefabrikované betónové skelety: Pevnosť a trvanlivosť pre rozsiahle projekty
Betón je materiál, ktorý sa v stavebníctve teší obľube vďaka svojej mimoriadnej pevnosti a trvanlivosti. Jeho využitie je ideálne pre širokú škálu stavieb, od priemyselných a skladových hál, cez nákupné centrá a verejné budovy, až po bytovú výstavbu. V posledných rokoch sa betón presadzuje aj v individuálnej výstavbe.
Zatiaľ čo tradičné betónové konštrukcie sa často vyhotovujú priamo na stavenisku liatím betónu, alternatívou sú vopred pripravené betónové prvky. Tieto prefabrikáty nachádzajú svoje uplatnenie predovšetkým v prípadoch, keď je nevyhnutné objekt realizovať rýchlo a racionálne.

Prefabrikovaná betónová konštrukcia je založená na použití prvkov vopred vyrobených v továrni, v ktorých je už zabudovaná výstuž. Na trhu existuje široká škála rôznych druhov prefabrikátov. Stavba sa stáva nákladovo efektívnejšou, ak sa použije čo najviac identických prvkov. Tento aspekt musí architekt zohľadniť už pri kreslení plánov. V dôsledku toho konštrukcie postavené z prefabrikovaných betónových prvkov často nadobúdajú modulárny charakter, s pravidelnou vzdialenosťou medzi jednotlivými nosnými prvkami.
V rámci prefabrikovanej betónovej konštrukcie sa zvyčajne kombinujú rôzne druhy prvkov, ktoré spolu tvoria skeletovú štruktúru. Tento systém typicky pozostáva z nosných prvkov, ako sú stĺpy a nosníky, pričom medzi nosné prvky sa integrujú nenosné výplne. Samotnú nosnú konštrukciu tvoria primárne zvislé prvky - stĺpy, v ktorých je už nainštalovaná mäkká výstuž.
Pri výstavbe montovaných budov sa často využívajú aj prefabrikované betónové steny, taktiež vyrobené v továrni. Tieto steny sú tvorené betónovými doskami so zabudovanou výstužou. Počas výrobného procesu sa v stenách ponechávajú otvory pre následnú inštaláciu okien a dverí.
Po výrobe v továrni sú jednotlivé prefabrikované prvky dopravované na určené miesto pomocou nákladných automobilov. Stavebná jama a základy sú vopred pripravené, pričom aj tieto môžu byť v niektorých prípadoch prefabrikované. Montáž prefabrikovanej konštrukcie začína jej poskladaním na mieste a následným osadením na pripravené základy. Po dokončení realizácie prízemia sa vyhotoví stropná doska, a potom sa pokračuje vo výstavbe ďalších podlaží.
Betónový skelet, či už monolitický alebo montovaný, predstavuje ideálne riešenie pre širokú škálu stavieb. Medzi ne patria priemyselné a skladové haly, logistické centrá, nákupné centrá, administratívne budovy a bytová výstavba. Možnosť jeho využitia však nie je obmedzená len na tieto typy stavieb; s úspechom sa uplatňuje aj pri atypických a originálnych architektonických riešeniach. V porovnaní s inými konštrukčnými systémami ponúka betónový skelet celý rad výhod.
Vlastná montáž je jednou z kľúčových predností. Typické prvky betónového skeletu zahŕňajú základové kalichy, základové nosníky, stĺpy, prievlaky, väzníky, väznice a obvodové či vnútorné steny. Tieto prvky je možné prispôsobiť špecifickým projektovým požiadavkám.
Typy betónových skeletových konštrukcií
Betónové skeletové konštrukcie sa dajú rozdeliť na monolitické a montované.
Monolitické skelety predstavujú homogénnu, jednoliatu štruktúru. V rámci tejto kategórie rozlišujeme niekoľko základných typov:
- Rámový skelet: Tento typ sa ďalej delí na pozdĺžny, priečny a obojsmerný.
- Pozdĺžny rámový skelet je vhodný pre budovy do štyroch podlaží. Jeho výhodou je otvorená dispozícia a jednoduché vedenie inštalácií. Nevýhodou však môžu byť vyššie pozdĺžne obvodové prievlaky, ktoré môžu obmedzovať presvetlenie priestorov. Pozdĺžne rámy sú navzájom spojené stropnou doskou.
- Priečny rámový skelet sa často využíva pre vysoké budovy. Ponúka variabilitu obvodových plášťov a dobré presvetlenie vnútorných priestorov. Avšak, priečne rámy môžu predstavovať prekážku pri realizácii rozvodov.
- Hríbový skelet: V tomto systéme je nosným prvkom stĺp spojený so stropom prostredníctvom tzv. hlavice. Nevýhodou hríbového skeletu sú hlavice a prievlaky, ktoré môžu obmedzovať flexibilitu v rozmiestnení vnútorných stien. Stuženie môže byť realizované nepriamo, kedy sa zaťaženie stropu prenáša do hlavíc pomocou prútov zosilnenej výstuže nahrádzajúcich obojstranné prievlaky, na ktoré sa kladie krížom armovaná doska. Alternatívou je priame stuženie, kde dochádza k priamemu prenosu zaťaženia zo zaťažovacej plochy do hlavice a stĺpa.
- Doskový - bezprievlakový skelet: V tomto systéme sú prievlaky alebo hlavice skryté v hrúbke stropnej dosky. Sú nahradené zosilnenou výstužou v pásoch nad podperami alebo zabetónovanými hlavicami, ku ktorým je privarená výstuž stropu. Tento systém sa vyznačuje vyššou spotrebou ocele.
Montované skelety sú zložené z prefabrikovaných dielov nosných rámov, ktoré sa spájajú na stavenisku. Tieto systémy nachádzajú uplatnenie vo všetkých druhoch výstavby.
- Stĺpy: Stĺpy skeletových konštrukcií sú zvyčajne prizmatické prvky štvorcového alebo obdĺžnikového prierezu. S cieľom zjednodušenia stykovania majú často po celej výške budovy jednotný prierez, aj keď sú v horných podlažiach nadimenzované. Dĺžka stĺpa je primárne determinovaná konštrukčným usporiadaním styku s konštrukciou stĺpa a prievlaku. Stĺpy môžeme rozdeliť na tie, ktorých dĺžka zodpovedá svetlej výške podlažia, a na priebežné stĺpy s dĺžkou pokrývajúcou dve až tri podlažia. Prierez stĺpa by nemal byť menší ako 300/300 mm. Šírka stĺpa závisí od šírky prievlaku. Pri prievlakoch s prírubami je toto riešenie výhodné z hľadiska nadväznosti stropných panelov. Pri vyššom zaťažení sa navrhuje zväčšenie prierezu stĺpov kolmo na prievlaky. V prvom podlaží závisí dĺžka stĺpa od konštrukcie styku so základom. Existujú dve hlavné varianty:
- Styk stĺpa so základom je podobný styku stĺpa horného podlažia so stĺpom spodného podlažia nad prievlakom, realizovaný pomocou vyčnievajúcich tŕňov alebo zváranou oceľovou pätkou. Dĺžka stĺpa prvého podlažia sa v tomto prípade zhoduje s dĺžkou stĺpa v jednotlivých podlažiach.
- Stĺp je votknutý do kalicha v základovej konštrukcii, čím sa predlžuje jeho dĺžka o dĺžku votknutia.Ak nie sú všetky podlažia budovy rovnaké, vznikajú zo skladobného hľadiska stĺpy pre kombináciu rôznych výškových modulov. Sortiment viacpodlažných stĺpov narastá s požiadavkami na stykovanie s prievlakom a stužidlami podľa polohy stĺpa v dispozícii budovy.Pre upevnenie silikátových panelov obvodového plášťa sú na vonkajšom povrchu stĺpa (v jeho líci) vložené oceľové platničky alebo priebežná pásovina, na ktoré sa kotvia príchytky pre osadenie obvodového plášťa.

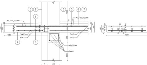
Prievlaky: Prievlaky skeletových konštrukcií môžu byť tyčové alebo plošné (panelové). Ich prierez závisí od konštrukčného riešenia styku so stĺpom a stropným panelom. Najjednoduchším prierezom prievlaku je obdĺžnikový prierez, na ktorý sa stropné panely kladú z hornej plochy. Nevýhodou tohto riešenia je, že prievlak celou svojou výškou zasahuje do svetlej výšky podlažia. Stropné a strešné panely je možné ukladať aj na ozub vytvorený vo vrchnej časti prievlaku. Pri rozsiahlych rozponoch a vysokých zaťaženiach môže nastať situácia, kedy celomontovaný prievlak prekročí nosnosť zdvíhacieho zariadenia. V takomto prípade je nevyhnutné prievlak rozdeliť na prefabrikovanú a monolitickú časť. Konštrukcia styku prievlaku v poli medzi stĺpmi je závislá od veľkosti posuvných síl, prípadne momentov, ktoré má spojenie prenášať. Zvyčajne sa styky prievlakov vytvárajú ako kĺbové. Poloha styku po dĺžke prievlakového poľa sa volí v miestach s najmenšími momentmi alebo v polohách zaručujúcich požadované rozdelenie momentov do poľa a do podpier. Ak má styk prievlaku prenášať aj momenty, spoje koncov prievlakov v hornej a dolnej časti sa realizujú pomocou oceľových príložiek privarených k prievlaku. Stropné prievlaky patria svojím tvarom, použiteľnosťou a ekonomickým dopadom k najdôležitejším dielom skeletových sústav.
Stropné panely: Stropné panely sa delia podľa konštrukcie na plné, dutinové, panely s ľahkými vložkami, rebrové a spriahnuté panely. Plné železobetónové panely s rozponom 3600 mm sa v priebehu vývoja montovaných skeletov transformovali na panely predpäté, rebrové alebo spriahnuté, ktoré dosahujú rozpon až 12 metrov pre viacpodlažné objekty. Rebrové panely predpäté dosahujú rozpon 18 až 24 metrov a používajú sa na zastrešenia. Relatívna spotreba betónu prepočítaná na plochu panelu poklesla. Tento vývoj umožnil rozvoj montovaných systémov a tiež vývoj výrobných zariadení pre stropné panely.
Základové konštrukcie: Sú tvorené pätkami. Pri uložení stĺpa na základové pásy platia rovnaké zásady stykovania ako pri uložení (kotvení) do pätky. Stĺp môže byť kotvený pomocou oceľových tŕňov. Schodiská môžu byť riešené s ramenami rovnobežnými s prievlakmi alebo kolmo na ne. Montované železobetónové schodiská musia priamo nadväzovať na konštrukčný systém objektu. Vkladajú sa do priestoru vynechaných stropných panelov a montujú sa súčasne so skeletom každého podlažia.
Zavetrovacie steny: Tieto steny preberajú svojou tuhosťou takmer všetky vodorovné sily a zabezpečujú zavetrenie celej skeletovej konštrukcie. Sú dôležité pri zvyšovaní počtu podlaží, kedy namáhanie vodorovnými silami by si vynútilo zväčšenie prierezov stĺpov a prievlakov. Rozmedzie, v ktorom môže byť konštrukcia skeletu bez výstužných stien, je variabilné a závisí od charakteru konštrukcie, smeru nosných rámov, tuhosti stykov, prierezu nosných prvkov, hĺbky a dĺžky objektu a pod. Preto sa musí pri každom skelete posúdiť potreba výstužnej steny. Obdobnú funkciu plnia aj obvodové stužidlá, ktoré sú vždy kolmé na nosné rámy skeletu a slúžia ako nosné prvky pre uloženie obvodového plášťa.
Obvodový plášť: Obvodový plášť sa navrhuje prevažne ako prefabrikovaný, výnimočne z murovacích materiálov. Materiály môžu byť z ľahkých betónov, keramiky. Realizovali sa aj plášte kovoplastické, zavesené panely a systémy nosných roštov, ktorých kotviace prvky umožňujú trojrozmerný posun.
Unifikované systémy betónových skeletov
Na trhu existujú aj unifikované systémy betónových skeletov, ktoré ponúkajú štandardizované riešenia pre rôzne typy stavieb. Medzi ne patria napríklad:
Montovaný skelet S 1.2: Ide o skelet II. kategórie, unifikovaný viacpodlažný železobetónový systém s osovou vzdialenosťou rámov od 2,4 do 12,0 m a konštrukčnými výškami od 2,7 do 6,0 m. Tento systém sa vhodne uplatňuje pre priemyselné, občianske a poľnohospodárske objekty s úžitkovým zaťažením od 2,8 do 20 kN/m². Nosný systém tvoria rámy montované z jednopodlažných stĺpov a priebežných prievlakov. Stropné panely sú uložené na prírubách prievlakov. Nosnú konštrukciu možno riešiť ako priečny alebo pozdĺžny systém. Vodorovná tuhosť vyšších objektov je zabezpečená výstužnými stenami. Založenie objektu je na pätkách a na ich kalichoch sú uložené základové trámy.
- Modulové varianty: Rozpracované varianty pre modul M1 (v smere kolmom na smer prievlakov): 2,4 / 3,0 / 3,6 / 4,8 / 6,0 / 7,2 / 8,4 / 9,0 / 9,6 / 10,8 / 12,0 m. Modul M2 (v smere prievlakov): krajný 3,0 / 4,8 / 6,0 / 7,2 m; krajný s konzolou 1,9 m; vnútorný 3,0 / 6,0 / 7,2 m. Konštrukčná výška podlaží (KV): 2,7 / 3,6 / 4,2 / 4,8 / 6,0 m.
- Stĺpy: Na výšku jedného podlažia, štvorcový / obdĺžnikový prierez 290/390 (medzistĺpy), 390/390 a 390/590 ako nosné. Päty stĺpov majú zabudovanú oceľovú pätku a obvodové stĺpy oceľové platničky alebo pásovinu pre uchytenie kotiev pre osadenie obvodového plášťa.
- Prievlaky: Tvar obráteného "T" (vnútorné) / "L" pre obvodové rámy.
- Stropné panely: Predpäté Spiroll 250 a 300 mm; dutinové železobetónové 250 mm; rebrové železobetónové prierez "TT" výšky 440, šírky 1500, 1800 a 2400 mm.
- Stužidlá: Obdĺžnikový prierez 390/440 mm obvodové a 290/440 mm vnútorné. Tieto majú zabudované oceľové platničky pre kotvenie obvodového plášťa.
- Výstužné steny: Hrúbka 200 mm pre všetky konštrukčné výšky od 3,0 do 4,2 m so skladobnými šírkami 1200, 1800, 1900, 2000 a 2400 mm.
- Základové trámy: Obdĺžnikový prierez 190/590 mm. Na nárožiach alebo v kútoch objektov, prípadne pri dilatáciách sa zmonolitňujú.
- Obvodový plášť: Keramický, pórobetónový alebo kovoplastický.
Montovaný skelet S 1.3: Tento skelet III. kategórie je unifikovaný železobetónový systém s osovou vzdialenosťou rámov od 2,4 do 12,0 m. Konštrukčná výška podlaží je od 3,6 do 7,2 m. Pre jednopodlažné objekty alebo posledné podlažia viacpodlažných objektov je možné osovú vzdialenosť rámov zväčšiť na 15,0 a 18,0 m. Skelet je vhodný pre občianske, priemyselné alebo poľnohospodárske objekty s úžitkovým zaťažením od 2,8 do 30,0 kN/m². Prípustné zaťaženie závisí od navrhnutých rozpätí rámov a stropných panelov. Nosný systém tvoria rámy montované zo stĺpov na výšku jedného podlažia a prievlakov, na ktoré sa ukladajú stropné panely Spiroll 300 alebo predpäté rebrové "TT" panely. Stropné panely sú uložené na prírubách prievlakov. Vodorovná tuhosť vyšších objektov sa zabezpečuje výstužnými stenami. Nosný systém sa zakladá na pätkách (rošte, doske). Po obvode sa ukladajú na kalichy pätiek základové trámy.
- Modulové varianty: M1 v smere kolmom na prievlaky (osová vzdialenosť rámov): 2,4 / 3,6 / 4,8 / 6,0 / 7,2 / 8,4 / 9,0 / 9,6 / 10,8 / 12,0 m a pre jednopodlažné objekty 15,0 a 18,0 m. M2 v smere prievlakov: 3,0 / 6,0 / 7,2 / 9,0 m. Pre M1=6,0 m a väčší je možné deliť medzistĺpmi a stužidlami na menšie moduly (hlavne po obvode objektu na M3): 3,0 / 3,6 / 4,2 / 4,8 / 6,0 m. Konštrukčná výška podlaží (KV): 3,6 / 4,2 / 4,8 / 5,4 / 6,0 / 7,2 m. V jednom objekte je možné použiť rôzne kombinácie rozmerov M1, M2 a po výške objektu meniť KV podlaží.
- Stĺpy: Na výšku jedného podlažia, 290/390 mm pre medzistĺpy a 390/590 a 390/890 mm pre nosné stĺpy. Päty stĺpov majú zabudovanú oceľovú pätku pre stykovanie rámových styčníkov.
- Prievlaky: Tvar obráteného "T" s výškou 590 mm, prípadne tvaru "L" s výškou 590 mm alebo kríža s výškou 890 mm.
- Stužidlá: Obdĺžnikový prierez 390/440 mm obvodové alebo 290/440 mm vnútorné.
- Stropné panely: Predpäté Spiroll 3000 mm, šírky 1200 mm alebo rebrové prierezu zdvojeného "TT" s výškou 590 mm, šírky 1500 mm, 1800 a 2400 mm.
- Výstužné steny: Hrúbka 200 mm.
- Obvodový plášť: Keramický, pórobetónový alebo kovoplastický.
Montovaný skelet revidovaný Priemstav - MS RP (MSRP): Konštrukčná sústava MSRP je určená pre stavby administratívno-prevádzkové, sociálne, pre priemyselnú výrobu, občiansku a bytovú výstavbu. Skeletová konštrukcia je zostavená z nosných prvkov ako sú stĺpy, rámové priečle a rámové vložky, obvodové stužidlá, stropné panely a stropné stužidlá, schodiskové a výstužné steny, schodiská, predpäté stropné panely Spiroll a doplnkové vložky. Nosnú konštrukciu možno vytvoriť z priečnych a pozdĺžnych rámov, ktoré tvoria stĺpy a prievlaky.
- Skladobné možnosti: 6+6+6 / 6+3+6 / 6+2,4+6 / 5,4+2,4+5,4 / 6+6 / 4,8+2,4+4,8 / 6+2,4 (s konzolou). Pri revidovanom skelete bola rozšírená skladba o moduly 7,2 a 9,0 m v priečnom aj pozdĺžnom smere.
- Konštrukčná výška podlažia: 3,3 / 3,6 / 4,2 m.
- Maximálna výška zástavby: 12 NP.
- Prvky montovaného skeletu MSP: Stĺpy - 400/400 a 500/500 mm; prievlak obráteného "T" - 500/500 mm s konzolou 1200 mm; stropné panely - železobetónové dutinové o hrúbke 240 mm a šírke 600, 1200 mm; stužidlá - železobetónové rozmery 250/500 a 500/500 mm; schodiskové podesty, medzipodlažia a ramená šírky 1500 mm; výstužné steny - hrúbky 100, 140, 240 mm.
- Prvky revidovaného montovaného skeletu MSRP: Prievlaky sú zosilnené v tvare pôvodného prievlaku s konzolou 1800 mm; stropné panely - doplnené o Spiroll šírky 1200 mm v dĺžkach 6900 a 8700 mm.
- Schodiská: Pre MSRP bolo vytvorených 7 typov schodísk v moduloch 4,8/6,0 m a konzola, 6,0/6,0 m, 6,0/7,2 m so šírkou ramena 1,2 / 1,5 a 2,4 m.
- Stuženie: Nosnú konštrukciu tvoria vodorovné výstupné prvky a montované výstužné steny.
- Obvodový plášť: Pórobetónový, keramický alebo kovoplastický. Obvodový plášť musí spĺňať záväzné rozmery, tvar, umiestnenie a spôsob montáže. Obvodový panel je uložený na oceľovú konzolu a kotvený k stĺpu v hornej časti.
Výroba betonové dlažby
Drevostavby: Ekologické a energeticky efektívne riešenia
Trend zdravého a ekologického bývania nie je novinkou. Drevo ako stavebný materiál má vďaka svojim mechanickým, tepelnotechnickým, estetickým, úžitkovým, technologickým vlastnostiam a minimálnemu dopadu na životné prostredie nezastupiteľné postavenie. V súvislosti s drevostavbami hovoríme o eko stavbách, ktoré vychádzajú z konceptu pasívneho domu s dôrazom na bioklimatický dizajn. Drevostavba poskytuje vynikajúci tepelný komfort a zodpovedajúce úspory energie.
Slovensko disponuje dostatkom kvalitnej drevnej hmoty. Napriek tomu drevostavby tvoria len približne 10 percent z celkového počtu novopostavených domov, čo je výrazne menej v porovnaní so štátmi ako Rakúsko, Nemecko či škandinávske krajiny. Dôvodom nie sú ani tak vyššie finančné možnosti v týchto krajinách, ale skôr uvedomenie si, že drevo ako prírodný stavebný materiál predstavuje ekonomickejšiu alternatívu výstavby domov.
Na Slovensku nie sú drevené stavebné konštrukcie žiadnou novinkou. Už naši predkovia dokázali oceniť a využiť výnimočné vlastnosti dreva. Drevenice im poskytovali útulné a voňavé bývanie s výbornými tepelnými vlastnosťami, aj keď vtedy neexistovali poznatky o stavebnej fyzike. Napriek tradícii a skúsenostiam s drevenou architektúrou, moderné drevené konštrukcie stále čelia nedôvere a neopodstatneným obavám či predsudkom, pretože sú často považované za provizórne alebo menej odolné. Pritom súčasné drevené konštrukcie v ničom nezaostávajú za murovanými verziami a majú minimálne porovnateľné, ak nie lepšie vlastnosti.
Konštrukčné systémy drevostavieb
Existuje viacero konštrukčných systémov pre drevostavby, ktoré sa líšia svojou technológiou a usporiadaním.
- Stĺpikový konštrukčný systém: Tento systém je jednoduchý a nevyžaduje rozsiahlu mechanizáciu. Montovanie domu sa kompletne realizuje na stavenisku. Zhotovené steny sa vztýčia a osadia na základ objektu. Základom tohto systému sú drevené stĺpiky s profilmi 50 - 60/100 - 140 mm. Ak statické požiadavky alebo požiadavky na tepelnú ochranu nevyhovujú, vytvárajú sa potrebné profily združovaním alebo vytvorením stĺpikov s členeným alebo zloženým prierezom (tvaru I, skriňové prierezy). Základné spojovacie prostriedky sú klince a plášť stien je z veľkoplošných materiálov.
- Príklad systému: Základom tohto systému sú KVH hranoly 40 x 140 mm ukotvené o základovú dosku. KVH hranoly sú opláštené OSB doskami, ktoré spevňujú drevenú konštrukciu a prispievajú k eliminácii tepelných mostov. Následne sú vyplnené tepelnými izoláciami. Realizácia tohto konštrukčného systému prebieha priamo na stavbe. Priestorový nosný systém tvoria zvislé a vodorovné drevené prvky. Výplň obvodových stien a priečok je nenosná.

Panelový konštrukčný systém: Dôvodom rozšíreného uplatnenia panelového konštrukčného systému pri výstavbe a montovaní drevodomov sú jeho konštrukčné, výrobné, montážne a finalizačné prednosti. Miera zvládnutia a zužitkovania týchto predností sa premieta do ceny výrobku, čo je dôležitý faktor pri rozhodovaní sa väčšiny stavebníkov. Hlavnou prednosťou panelového systému z dreva je možnosť maximálnej prípravy stavby vo výrobe a následná rýchla montáž a dokončenie stavby na stavenisku. Panelový konštrukčný systém je založený na výrobe jednotlivých druhov panelov (podlahové, obvodové, priečkové, stropné, štítové, strešné) vo výrobnej hale, ich doprave na miesto stavby a rýchlej montáži pomocou techniky. Tento systém umožňuje využívať pokrokové výrobné technologické linky s uzlami automatizácie a efektívne využiť kapacitu kamiónových ťahačov na jednorazovú dopravu vyrobeného objektu na miesto stavby. Základom konštrukcie panelov je drevený rám, ktorý je konštrukčne prispôsobený jeho funkcii v stavebnej konštrukcii. Rám podlahového panelu sa líši od rámu obvodového panelu, priečkového nosného panelu, priečkového nenosného panelu, či rámu pre stropný panel. Panely s rozdielnou funkciou majú prispôsobenú nielen konštrukciu a dimenzie rámu, ale využívajú aj iné veľkoplošné materiály. Priestor medzi rebrami je vyplnený tepelno-zvukovou izoláciou.
Zrubové konštrukcie: Moderné zrubové konštrukcie sú ovplyvnené vyššími požiadavkami na bývanie, prísnejšími normami, širokými technologickými možnosťami drevárskej výroby, výskumom konštrukcií, vývojom stavebných materiálov (tepelnoizolačných, oplášťovacích a pod.) a ich cenovou dostupnosťou. Základným konštrukčným prvkom novodobých zrubových konštrukcií z masívu je strojovo profilované drevo. Zrubové prvky môžu mať maximálnu vlhkosť čerstvo zoťatého stromu, alebo môžu byť čiastočne presušené (prirodzene, umelo), alebo úplne vysušené pre klimatickú oblasť použitia.
- Zrubové konštrukcie z lepeného dreva: Sú technicky najmodernejšie. Lepené prvky sú vyrobené zlepením viacerých častí a to na hrúbku, výšku a dĺžku prvku. Zrubové lepené prvky majú rôzne dimenzie a tvar priečneho profilu. Ich výhodou je zlepšenie tepelno-technických vlastností samotnej zrubovej steny (do tepelného odporu je zapojená celá hrúbka prvku bez trhlín). Pri montovaní domu je tesnenie vodorovných škár realizované princípmi podobnými ako pri zrubových konštrukciách z masívu.

Iné systémy a prvky drevostavieb
- Systém s použitím guľatiny alebo hranolov: Tento systém využíva na vytvorenie obvodových stien masívnu opracovanú guľatinu alebo hranoly, ktoré sú navzájom spojené tesárskymi spojmi.
- Stuženie: Na zabezpečenie priestorovej stability sa v konštrukcii umiestňujú stabilizačné prvky do stien a podľa potreby aj do stropov, ak tuhosť stropnej konštrukcie na báze veľkoplošných materiálov nie je dostatočná. Tým sa zabezpečí stabilita montovaného domu. Drevostavby využívajú špeciálne riešenie spojov i dodatočné výstuhy.
- Značka kvality drevostavieb: Sekcia drevostavieb Združenia výrobcov a spracovateľov dreva SR (ZSD SR) zaviedla značku kvality drevostavieb s cieľom skultivovať trh. Táto značka nenahrádza certifikáciu, ale nezávislá odborná komisia posudzuje komplexné riešenie drevostavby, vrátane prefabrikovaných výrobkov a stavebnej montáže.
Porovnanie a výhody
Obe technológie, prefabrikované betónové skelety a drevostavby, ponúkajú výhody v rýchlosti výstavby a efektívnosti.
- Betónové skelety vynikajú v pevnosti, trvanlivosti a požiarnej odolnosti, čo ich robí ideálnymi pre rozsiahle komerčné a priemyselné stavby.
- Drevostavby sa vyznačujú ekologickosťou, vynikajúcimi tepelno-izolačnými vlastnosťami a rýchlou montážou, čo ich predurčuje pre rodinné domy a objekty s dôrazom na energetickú efektivitu a zdravé bývanie.
V súvislosti so snahou o znižovanie energií potrebných na prevádzku budov sa do legislatívy mnohých krajín zavádza povinná certifikácia. Tepelno-technické vlastnosti sendvičových stien na báze dreva v kombinácii s vysoko účinnou tepelnou izoláciou sú v porovnaní s klasickými stenami výrazne lepšie. Sendvičová stena domu z dreva poskytuje nadštandardnú tepelnú ochranu bez nutnosti zväčšovania jej hrúbky. Povinná energetická certifikácia budov bude nielen sprísňovať kritériá na tepelnú ochranu, ale pravdepodobne povedie aj k zvýšeniu trhovej ceny nízkoenergetických stavieb.
Drevené konštrukcie rodinných domov dokážu veľmi dobre konkurovať klasickým murovaným stavbám. Vzhľadom na dlhú históriu drevených a montovaných stavieb nie je pochýb o ich dlhej fyzickej životnosti.
Skeletový konštrukčný systém, či už betónový alebo drevený, je priestorový nosný systém vytvorený zo zvislých (stĺpy) a vodorovných (prievlaky) nosných prvkov. Výplne obvodovej steny a vnútorné priečky sú nenosné. Na zabezpečenie priestorovej stability sa v konštrukcii umiestňujú stabilizačné prvky do stien a podľa potreby aj do stropov. Výhodou skeletu je veľká variabilita rozmiestnenia priečok, ich možná zmena počas užívania. Priečky sa zhotovujú ľahké (napr. rôzne systémy sadrokartónových priečok), čím nezaťažujú staticky nosné stĺpy a prievlaky. Pre životnosť stavby je významné zakotvenie stĺpov do základových pätiek či pásov tak, aby boli chránené pred vlhkosťou.
Užívateľský potenciál stavebných systémov založených na skeletovej konštrukcii spočíva v pôsobivej architektúre s otvorenou dispozíciou a dostatkom prirodzeného svetla v interiéroch, v duchu súčasného trendu "architektúry skla". Materiálová báza stavby skeletu sa často ukazuje ako najvhodnejšie riešenie z priemyselne vyrábaných viacvrstvových lepených trámov, s presným opracovaním na CNC strojoch.
tags: #prefabrikovany #skeletovy #konstrukcny #system