Sídlisko Ťahanovce v Košiciach je obľúbenou lokalitou pre rodiny, ktoré hľadajú dostatok priestoru a zároveň dobrú občiansku vybavenosť. V tejto dynamickej časti mesta sa nachádza ponuka, ktorá by mohla zaujať nejednu rodinu hľadajúcu priestranné a funkčné bývanie. Predstavujeme vám dvojgeneračný 4-izbový byt s úžitkovou plochou 90 m², ktorý sa nachádza na ôsmom poschodí zatepleného bytového domu s výťahom. Tento byt, orientovaný na západ, ponúka nielen priestor, ale aj potenciál na prispôsobenie podľa individuálnych potrieb budúcich majiteľov.

Dispozícia a priestor pre celú rodinu
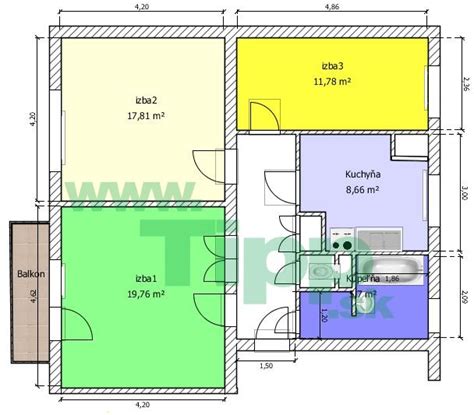
Byt pozostáva z predsiene, obývacej izby, samostatnej kuchyne, troch spální, kúpeľne a oddelenej toalety. Pôvodne bol byt koncipovaný ako dvojgeneračný, čo znamená, že v minulosti tu bola k dispozícii ešte jedna toaleta. Tento priestor je v súčasnosti využívaný ako komora, no jeho pôvodná funkcia naznačuje možnosť úpravy dispozície podľa potrieb súčasného bývania. Tri samostatné spálne poskytujú dostatok súkromia pre všetkých členov rodiny, zatiaľ čo priestranná obývacia izba slúži ako centrum spoločenského života. Samostatná kuchyňa umožňuje variť bez rušivých vplyvov z obývacej izby a zároveň zachováva poriadok počas rodinných stretnutí.
V byte boli realizované čiastočné rekonštrukčné práce. Plastové okná zabezpečujú dobré tepelné a zvukové izolačné vlastnosti. Jedna z dvoch loggií je zasklená, čo zväčšuje využiteľný priestor bytu a zároveň chráni pred poveternostnými vplyvmi. Vchodové dvere sú bezpečnostné, čo zvyšuje pocit bezpečia. Podlahy a dlažby v celom byte prešli renováciou a v niektorých častiach boli zrealizované aj nové omietky, čo dodáva bytu svieži vzhľad.

Bytový dom a jeho prednosti
Bytový dom prešiel komplexnou rekonštrukciou, ktorá zahŕňa zateplenie, výmenu strechy a renováciu interiéru. Tieto úpravy nielenže zlepšujú energetickú efektívnosť budovy a znižujú náklady na bývanie, ale tiež prispievajú k celkovej estetike a komfortu bývania. Prítomnosť výťahu je samozrejmosťou a uľahčuje prístup na ôsme poschodie, čo je oceniteľné najmä pre rodiny s deťmi alebo staršie osoby.
Lokalita a kompletná občianska vybavenosť
Sídlisko Ťahanovce je známe svojou výbornou občianskou vybavenosťou, ktorá je v tesnej blízkosti bytu. V okolí sa nachádzajú základné školy (ZŠ Bruselská 18, ZŠ Belehradská 21), čo je ideálne pre rodiny s deťmi. Pre každodenné nákupy sú k dispozícii potraviny ako Lidl, Billa, KLAS, ELLA diskont a tiež menšie predajne ako UNI pekáreň či Suchanič potraviny. Bankové služby poskytujú Slovenská sporiteľňa, Tatra banka a Poštová banka, pričom nechýba ani Slovenská pošta. Zdravotnú starostlivosť zabezpečuje Poliklinika Ťahanovce a lekárne BENU a AVE. Pre aktívny oddych a zábavu detí sú k dispozícii detské ihriská, ako aj basketbalové a futbalové ihrisko. V neposlednom rade je tu aj Chrám bl. Pavla Petra Gojdiča a Metoda Dominika Trčku.
Dopravné spojenie je zabezpečené autobusovými linkami č. 10, 25, 27 a 36, ktoré premávajú v blízkosti bytového domu a zabezpečujú rýchlu a pohodlnú dopravu do iných častí mesta.
Potenciál a investičná príležitosť
Tento dvojgeneračný byt s rozlohou 90 m² predstavuje nielen komfortné rodinné bývanie, ale aj zaujímavú investičnú príležitosť. Možnosť úpravy dispozície, dve loggie a zrekonštruovaný bytový dom robia z tejto nehnuteľnosti atraktívnu voľbu na trhu s realitami. Vzhľadom na rastúcu obľúbenosť sídliska Ťahanovce a jeho komplexnú infraštruktúru, investícia do tohto bytu môže priniesť v budúcnosti zhodnotenie.
Predajná cena tohto bytu nebola v poskytnutých informáciách špecifikovaná, avšak podobné 4-izbové byty v Košiciach sa pohybujú v cenovej relácii od 198.990 € do 235.000 €, v závislosti od lokality, stavu a vybavenosti. Pre presné informácie o cene a dohodnutie obhliadky je potrebné kontaktovať predávajúceho realitného makléra.
Tento byt je ideálny pre rodiny, ktoré hľadajú priestor, funkčnosť a zároveň chcú byť blízko všetkej potrebnej občianskej vybavenosti. Jeho potenciál na prispôsobenie interiéru podľa vlastných predstáv z neho robí jedinečnú ponuku na trhu.