Sídlo spoločnosti Ingsteel na Tomášikovej ulici v Bratislave, v mestskej časti Ružinov, predstavuje architektonicky a technicky ambiciózny polyfunkčný objekt. Jeho návrh a realizácia vychádzajú z komplexného zohľadnenia daností riešenej lokality, funkčnej náplne objektu a samotného dispozično-prevádzkového riešenia. Prioritne sa však projekt viazal na filozofiu a činnosť investora, čo sa odrazilo v jeho jedinečnom výraze. Objekt na jednej strane prezentuje svojím stvárnením a výrazom súčasný dizajn a najnovšie poznatky v oblasti riešenia fasád, na druhej strane sa však pokúša o jednoduchosť výrazu, poeticky ozvláštnenú plasticitou zakrivenia fasády. Táto dualita dodáva budove charakteristickú identitu.

Vzhľadom na spomenuté atribúty majú dve strany fasád objektu odlišnú charakteristiku, napriek tomu vo výslednom výraze pôsobí objekt celistvo a jednotne. Predovšetkým východná a južná fasáda sa cez celopresklenú dvojvrstvovú stenu otvára do Tomášikovej ulice a hlavovou časťou objektu akoby smeruje do centra Ružinova. Tieto fasády zároveň plnia utilitárnu funkciu ochrany pred slnečným žiarením. Naopak, zadná západná fasáda pôsobí otvorenejším dojmom s otvormi osadenými pohyblivými horizontálnymi žalúziami a v koncovej časti objektu s otvormi loggií bytovej časti.
Architektonické a Funkčné Riešenie
Polyfunkčný objekt Ingsteel bol navrhnutý s cieľom poskytnúť komplexnú ponuku administratívnych a bytových plôch, doplnených o priestory predajné a obslužné. Táto multifunkčnosť je základným pilierom jeho prevádzky a odzrkadľuje sa v celkovom koncepte. Technicko-ekonomická úroveň stavby zodpovedá najvyšším štandardom kladeným na tento typologický druh objektov. Pri návrhu sa muselo popri technicko-bezpečnostných požiadavkách zohľadniť aj architektonicko-výtvarné riešenie, ktoré je neodmysliteľne spojené s produkciou a identitou investora. Aj preto je stavebno-konštrukčné riešenie prezentované ako technicky nadštandardné architektonicko-výtvarné riešenie.
„Vzhľadom na tieto vlastnosti majú dve strany fasád objektu inú charakteristiku, ale vo výslednom výraze pôsobí objekt celistvo,“ hovorí architekt Ľubomír Závodný. „Najmä východná a južná fasáda sa cez celosklenenú dvojvrstvovú stenu otvárajú do Tomášikovej ulice a prednou časťou objektu akoby smerovali do centra Ružinova.“ Základné limity územia, v ktorom sa objekt nachádza, sa premietli aj do prevádzkového riešenia areálu a dispozičného riešenia samotného polyfunkčného objektu.
Dispozične objekt pozostáva z jedného podzemného, šiestich nadzemných a jedného malého ustúpeného podlažia. Vzhľadom na pretiahnutý tvar pozemku má objekt pozdĺžny pôdorysný tvar, ktorý kopíruje smerovanie Tomášikovej ulice a susediaceho parkoviska so zeleňou. Táto forma umožňuje optimálne využitie priestoru a zároveň harmonicky zapadá do mestského prostredia. Polyfunkčný objekt je z parteru architektonicky odľahčený zasunutím prvého nadzemného podlažia, čo vytvára dojem vzdušnosti a zároveň poskytuje chránený priestor pre vstupnú halu a prípadné prevádzky.

Inovatívne Fasádne Systémy: Dvojitá Transparentná Fasáda
Jedným z kľúčových prvkov, ktorý definuje vizuálnu a funkčnú identitu budovy Ingsteel, je jej fasádny systém, predovšetkým na východnej a južnej strane. Tu bola implementovaná dvojitá transparentná fasáda s prechodným chodbovým medzipriestorom. Tento systém, ktorý sa vyznačuje celoročne otvoreným okruhom, predstavuje moderné riešenie s dôrazom na energetickú efektivitu a komfort užívateľov.
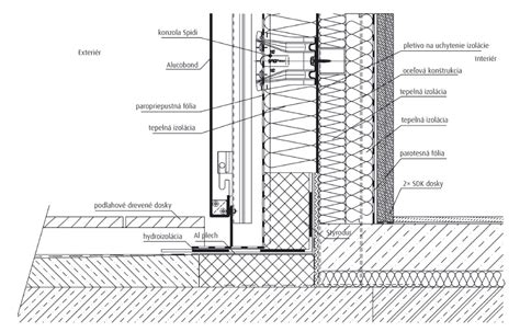
Obvodový plášť na prvom nadzemnom podlaží je murovaný so zatepľovacím systémom. Transparentné výplne stavebných otvorov na tomto podlaží pozostávajú z hliníkového fasádneho systému stĺpik-priečka. Na zasklenie bol použitý číry bezpečnostný dvojnásobný sklený systém s antikorovým dištančným rámikom. Výškový raster obkladu je presne definovaný na 300 mm. Stavebné otvory sú vyplnené hliníkovými pásovými oknami s dvojnásobným skleným systémom.
Na ochranu proti slnečnému žiareniu slúžia elektricky ovládané tieniace žalúzie s vedením v koľajničke. Tieto žalúzie umožňujú flexibilné regulovanie množstva dopadajúceho slnečného svetla a tepla, čím prispievajú k optimálnej vnútornej klíme a znižujú potrebu umelého osvetlenia a klimatizácie.
Vo výplniach stavebných otvorov v nadstavbe na siedmom nadzemnom podlaží bol rovnako použitý hliníkový fasádny systém. Na zasklenie sa použil dvojnásobný sklený systém, pričom dištančný profil v izolačnom dvojskle je antikorový. Ako protislnečná ochrana slúžia elektricky ovládané otáčacie hliníkové lamely. Ich rozstup je 300 mm, šírka 300 mm a sklon je nastaviteľný od zvislej - uzavretej polohy natočením postupne o 130 stupňov. Táto variabilita umožňuje presné prispôsobenie tienenia aktuálnym slnečným podmienkam a individuálnym potrebám užívateľov.
Konštrukcia a Montáž Dvojitej Fasády
Dvojitá transparentná fasáda na budove Ingsteel je sofistikovaný konštrukčný systém, ktorého návrh a realizácia si vyžadovali precízne plánovanie a využitie moderných technológií. Výška sekcie fasády je totožná s konštrukčnou výškou jedného podlažia. Konštrukčné usporiadanie, návrh komponentov fasády a aerodynamika jej medzipriestoru, závislé od prirodzeného pohybu vzduchu, boli predmetom detailných počítačových simulácií a analýz.
Proces montáže dvojitej transparentnej fasády bol zvolený ako postupný. V prvej fáze sa realizoval vnútorný plášť a osadzovacie kotvy pre vonkajší plášť v rozstupe 2 400, resp. 2 440 mm. Montáž prebiehala v jesennom období. Následne práce pokračovali na montáži vonkajšieho plášťa budovy. Na zrektifikované osadzovacie kotvy sa montovali vopred vyrobené oceľové dielce s komorami na usmernenie prúdenia vzduchu. Na týchto dielcoch bola príprava na osadenie podlahy, podhľadu, transparentných výplní a tieniaceho zariadenia. Povrchová úprava všetkých oceľových častí je na báze žiarového pozinkovania, čo zabezpečuje ich dlhodobú ochranu pred koróziou.
Osobitná pozornosť sa venovala riešeniu a aplikácii parozábrany v mieste styku fasádnej konštrukcie a stropnej konštrukcie. Toto detailné riešenie je kľúčové pre zabezpečenie tepelno-izolačných vlastností celej budovy a predchádzanie vzniku tepelných mostov.
Šírka medzipriestoru dvojitej fasády je 670 mm, pričom výška podlažia je 3 300 mm. Z toho osová vzdialenosť zasklievacích profilov je 2 810 mm a priestor pre ventilačnú mriežku je 490 mm. Šírkový modul fasády je 1 200 mm, resp. ďalšie špecifické moduly podľa potreby.
Vonkajší plášť dvojitej transparentnej fasády tvorí jednoduchý bezpečnostný sklený systém. Zasklievacie profily sú umiestnené v dolnej a hornej časti, pričom sklo je podopreté po dvoch stranách. Zvislé styky skla sú vytmelené neutrálnym tmelom na citlivé povrchy. Dĺžka vytmelenej škáry dosahuje 2 760 mm. Bezpečnostné sklo je lepené z dvoch tvrdených kalených tabúľ.
Jak správně realizovat zateplení fasády?
Pokročilé Materiály a Technológie
Použité materiály a technológie v fasádnom systéme budovy Ingsteel predstavujú špičku v oblasti stavebníctva. Vnútorné sklo má bežné vlastnosti, zatiaľ čo vonkajšie sklo disponuje samočistiacou funkciou. Tento inovatívny materiál je výsledkom pyrolyticky trvalo vrstveného číreho floatového skla, kde je reflexia smerom von mierne zvýšená. Takéto sklo je ideálne pre vonkajšie zasklenie okien, fasád a zimných záhrad.
Samočistiaci efekt tohto skla je založený na jedinečnej kombinácii dvoch vlastností:
- Hydrofilný efekt: Pokovovaná vrstva umožňuje vlhkosti splynúť do tenkého vodného filmu, čím sa znižuje povrchové napätie. To zvyšuje čistiaci účinok dažďovej vody a zabraňuje vzniku vápenatých škvŕn spôsobených stekajúcimi kvapkami.
- Fotokatalytický efekt: Rozklad látky spôsobený žiarením (v tomto prípade ultrafialovou zložkou denného svetla) umožňuje deštrukciu organických nečistôt. Tým sa znižuje sila priľnutia nečistoty na sklenú tabuľu.
Samočistiaci proces sa aktivuje približne týždeň po inštalácii a prvom umytí skla a kontinuálne pokračuje. Počas dažďa sa uvoľnené nečistoty zmyjú. V prípade dlhších období bez dažďa alebo pri silne priľnutých nečistotách je však potrebné sklo umyť bežnými čistiacimi prostriedkami.
Pri tmelení skla bolo dôležité zabezpečiť, aby nedošlo ku kontaminácii vonkajšieho povrchu skla tmelom. Vzhľadom na väčšiu hrúbku skla bolo možné zapustiť tmel k vnútornej tabuli skla, čím sa táto požiadavka úspešne splnila.
Podlaha v medzipriestore fasády je vytvorená z pozinkovaných oceľových podlahových roštov, zatiaľ čo podhľad je z hliníkových perforovaných podhľadových kaziet.

Využitie Počítačových Simulácií a Modelovania
Pri vývoji a optimalizácii konštrukčného riešenia dvojplášťovej prirodzene vetranej transparentnej fasády na budove Ingsteel bola aplikovaná moderná metóda matematického modelovania a počítačovej simulácie. Tieto pokročilé techniky umožnili detailne analyzovať teplotné, tlakové a rýchlostné polia na trojrozmernom modeli sekcie navrhovanej fasády.
Cieľom počítačovej simulácie bolo optimalizovať vzostup teploty vo fasáde prostredníctvom optimalizácie celkového súčiniteľa tlakovej straty fasády. Táto analýza je kľúčová pre pochopenie dynamiky prúdenia vzduchu v medzipriestore a jeho vplyvu na vnútornú klímu.
Kotvenie dvojplášťovej fasády do nosnej konštrukcie predstavovalo náročný detail aj z hľadiska prerušenia výrazného tepelného mosta. Konštrukčný detail kotvenia fasády bol analyzovaný pomocou metódy trojrozmerného stacionárneho vedenia tepla v stavebných konštrukciách. Cieľom bolo optimalizovať systém prerušenia tepelného mosta tak, aby sa splnili kritériá minimálnej povrchovej teploty stavebných konštrukcií pre zimnú okrajovú podmienku.
V nasledujúcom kroku optimalizácie potrieb tepla a chladu na zabezpečenie tepelnej pohody v kancelárskych priestoroch za fasádou bol simulovaný teplotný vplyv fasády na tieto priestory. Vietor má zásadný vplyv tak na prirodzené vetranie samotnej fasády, ako aj na vetranie v celej budove. Účinok vetra bol modelovaný v dynamickom modeli kancelárie a fasády na základe výsledkov aerodynamickej štúdie účinku vetra na fasádu budovy Ingsteel, a to vo forme tlakových koeficientov vetra.
Dynamická energetická simulácia bola použitá s cieľom overiť a optimalizovať potrebu tepla a chladu, preveriť úroveň zabezpečenia tepelnej pohody systémom chladených stropov a definovať možný prínos prirodzeného vetrania budovy cez dvojplášťovú fasádu na zníženie potreby chladu. V záverečnej fáze projektu sa overili lokálne podmienky zabezpečenia tepelnej pohody v typickej kancelárii systémom dvojplášťovej fasády a systémom chladených stropov s mechanickým vetraním vo výpočtovej letnej situácii.
Tieto pokročilé simulačné metódy umožnili nielen technicky dokonalé prevedenie projektu, ale aj dosiahnutie vysokej energetickej efektivity a komfortu pre užívateľov budovy.
Informácie o Projekte
- Autori architektonického riešenia: Ing. arch. Ľubomír Závodný, Ing. arch.
- Autori interiérov: Ing. arch. Juraj Braný, Ing. arch.
- Hlavný zhotoviteľ: INGSTEEL, spol. s r.o.
- Stavebník: INTERFINANCE PLUS, a.s.
- Náklady na stavbu: 250 mil.
Polyfunkčný objekt Ingsteel na Tomášikovej ulici v Bratislave je tak príkladom úspešnej symbiózy moderného dizajnu, pokročilých technológií a funkčného riešenia, ktoré reflektuje potreby súčasného urbanizmu a požiadavky investora. Jeho fasáda nie je len obalovou konštrukciou, ale aktívnym prvkom, ktorý prispieva k energetickej bilancii budovy a k celkovej kvalite vnútorného prostredia.
tags: #polyfunkcny #objekt #ingsteel #fasada