V oblasti rodinného bývania predstavuje rekonštrukcia existujúcich objektov často premyslené a ekonomicky efektívne riešenie. Tento článok sa zameriava na komplexnú prestavbu polovice dvojdomu, ktorá priniesla zásadné zmeny v dispozícii a funkčnosti, pričom sa snažila maximálne zachovať pôvodný architektonický výraz stavby. Cieľom bolo transformovať pôvodne neefektívne priestory na tri samostatné bytové jednotky určené na prenájom, čím sa optimalizovalo využitie priestoru a zvýšila jeho hodnota.

Premena Pôvodnej Dispozície na Tri Samostatné Bytové Jednotky
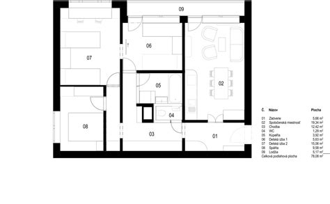
Pôvodný stav dvojdomu, ktorý bol pred rekonštrukciou jednou bytovou jednotkou, trpel podľa slov autorov projektu, Ing. arch. Andreja Olaha a Dipl. Ing. Petra Olaha, ArtD., zlými dispozíciami jednotlivých podlaží. Tento nedostatok viedol k rozhodnutiu o kompletnej prestavbe, tzv. totálnom retrofite. Výsledkom je vznik troch samostatných bytov, ktoré sú strategicky navrhnuté na prenájom. Táto zmena nielenže zvýšila úžitkovú hodnotu nehnuteľnosti, ale tiež umožnila lepšie využitie existujúcej zastavanej plochy.
Zachovanie Architektonického Výrazu Exteriéru
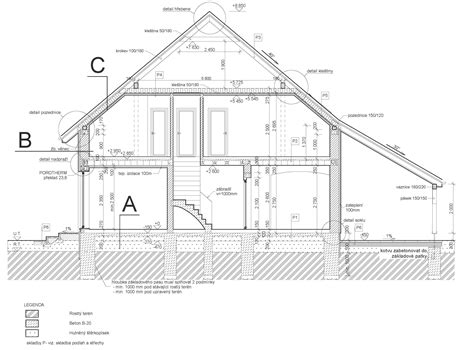
Napriek rozsiahlym interiérovým úpravám sa architekti snažili maximálne zachovať pôvodný architektonický výraz stavby. Zmeny v členení otvorov, teda okien a dverí, boli realizované len v nevyhnutnej miere, aby reflektovali zmeny vo funkcii a dispozícii jednotlivých priestorov. Tento prístup prispel k tomu, že zvonku nie sú radikálne zmeny na prvý pohľad zrejmé. Monochromatické farebné riešenie fasády, charakterizované bledou omietkou a kontrastnými tmavými výplňami otvorov, navyše zosilňuje čitateľnosť tektoniky fasády a dodáva stavbe moderný, no zároveň nadčasový vzhľad.

Funkčné Využitie Vonkajších Priestorov
Rekonštrukcia priniesla nielen nové vnútorné priestory, ale aj rozšírené možnosti využitia exteriéru. Okrem štandardných balkónov, ktoré sú súčasťou jednotlivých bytových jednotiek, získali obyvatelia prístup aj k ďalším vonkajším zónam. Terasa na garáži, sprístupnená exteriérovým schodiskom, ponúka ďalší priestor na oddych a relaxáciu s výhľadom na okolie. V pokojnejšej časti za domom bola vytvorená záhradná terasa so sedením, ktorá slúži ako ideálne miesto na trávenie voľného času v príjemnom prostredí.
Optimalizácia Priestoru na Najnižšom Podlaží
Najnižšie podlažie prešlo najvýraznejšou transformáciou z hľadiska dispozície. Odstránením pôvodnej spojovacej chodby a schodiska, ktoré viedlo do prízemného bytu, sa uvoľnil priestor pre ďalšie parkovacie miesto. Tento krok nielenže zvýšil praktickú využiteľnosť podlažia, ale zároveň umožnil efektívnejšie usporiadanie interiéru. Vstup do najnižšieho bytu bol po rekonštrukcii presunutý na úroveň upraveného terénu, priamo z priestoru medzi domami. V rámci bytu došlo k úprave, ktorá umožnila vytvorenie novej obývacej izby a jedálne, ktoré boli pôvodne stavebne oddelené.

Dispozičné Riešenie Bytov na Vyšších Podlažiach
Byt na prvom nadzemnom podlaží získal po rekonštrukcii vlastný vstup z úrovne upravenej záhradnej terasy v zadnej časti domu. Toto riešenie si vyžiadalo vytvorenie nového zádveria. Podobne ako na nižšom podlaží, aj tu došlo k odstráneniu priečky, čo umožnilo prepojenie obývacej izby s jedálňou a vytvorenie otvorenejšieho obytného priestoru.
Na najvyššie podlažie sa rovnako vstupuje samostatným vstupom cez existujúce schodisko, prístupné zo spomínanej záhradnej terasy. Skladba miestností na tomto podlaží je takmer identická s bytom na prvom nadzemnom podlaží, čo zabezpečuje konzistentnosť a predvídateľnosť dispozície naprieč bytovými jednotkami.

Interiérový Dizajn: Surová Materialita a Drevené Podlahy
V interiéri stavili architekti na takmer tradičnú, no zároveň pôsobivú kombináciu bielych stien a stropov s drevenými podlahami. Tento klasický prístup vytvára príjemnú a teplú atmosféru. Výrazným prvkom, ktorý upúta pozornosť, sú neomietnuté tehlové steny. Surová materialita tehál, zjednotená bielym náterom, odhaľuje a zároveň decentne zvýrazňuje modifikácie pôvodných konštrukcií. V pohľade sú priznané aj nové oceľové prievlaky, ktoré nielenže spevňujú konštrukciu, ale zároveň sa stávajú súčasťou industriálne ladeného dizajnu interiéru. Táto kombinácia surových materiálov a moderných prvkov dodáva priestorom jedinečný charakter.

Výber Pozemku a Projektu Rodinného Domu: Kľúčové Faktory
Proces výberu pozemku a projektu rodinného domu predstavuje náročnú, no zároveň kľúčovú cestu k vytvoreniu vysnívaného domova. Keďže väčšina ľudí plánuje v dome stráviť značnú časť svojho života, je nevyhnutné venovať výberu vhodného projektu patričnú pozornosť. Projekty domov dnes umožňujú výber nielen na základe ich estetického vzhľadu, ale aj podľa pôdorysu, počtu izieb či tvaru.
Na začiatku výberového procesu je dôležité zamerať sa na niekoľko základných otázok:
- Veľkosť domu: Koľko poschodí chcete, aby mal váš dom?
- Požadované súkromie: Koľko spální potrebujete? Potrebujete aj hosťovskú izbu či pracovňu?
- Funkčné usporiadanie: V ktorej miestnosti sa najviac zdržiavate? Tá by mala byť najväčšia.
- Štýl a preferencie: Chcete okná na celú stenu alebo klasické okná s parapetom? Plánujete aj krytú terasu? Vadia vám okná na bočných stranách smerom k susedom?
- Praktické aspekty: Sú izby dostatočne veľké na zariadenie podľa vašich predstáv? Bude mať dom dostatok úložného priestoru?
- Charakteristika pozemku: Je váš pozemok rovný alebo vo svahu?
- Orientácia: Na ktorú svetovú stranu by mali byť vaše izby orientované?
- Dlhodobá vízia: Viete si v ňom predstaviť bývať aj o 10 rokov?
Vybrať si katalógový projekt alebo individuálny od architekta?
Bungalov vs. Poschodový Dom: Výhody a Nevýhody
Pri rozhodovaní medzi bungalovom a poschodovým domom je dobré zvážiť ich špecifické výhody:
Výhody bungalovu:
- Bezbariérovosť: Umožňuje jednoduchšie vybudovanie bezbariérových prístupov.
- Rýchlosť výstavby: Výstavba rodinného bungalovu je zvyčajne o niekoľko mesiacov rýchlejšia v porovnaní s poschodovým domom.
- Flexibilita dispozície: Miestnosti sa dajú navrhnúť nezávisle od náväznosti s inými podlažiami.
- Široká ponuka: Ponuka projektov bungalovov je často väčšia ako pri iných typoch katalógových projektov.
Výhody poschodového domu:
- Rozdelenie funkcií: Jednoduchšie oddelenie dennej a nočnej časti domu.
- Výhľad: Z vyššieho podlažia sa získava lepší výhľad na okolie.
- Možnosti na svahovitom pozemku: Dve poschodia umožňujú vytvorenie polozapusteného podlažia do svahovitého terénu.
- Úspora plochy: Dve podlažia šetria plochu na pozemku.
Pri výbere moderných projektov rodinných domov je dôležitejšie zamerať sa na ich funkčnosť ako na vizuálnu stránku. Rozhodnutia by mali byť konzultované aj s ostatnými členmi domácnosti, aby sa zohľadnili ich potreby a požiadavky.
Komplexnosť Architektonických Projektov
Všetky vypracované projekty sú navrhnuté tak, aby umožnili nielen získanie stavebného povolenia, ale aj bezproblémovú realizáciu stavby. Typický projekt zahŕňa:
- Projekt stavebnej časti: Sprievodná a súhrnná technická správa, výkresy (základy, pôdorysy, rezy, krov, pohľady, detaily), výpisy podláh, okien, dverí, muriva, strešnej krytiny a výkaz výmer a materiálov.
- Projekt statiky: Technická správa, statický výpočet, výkresy skladby stropov, výkresy výstuže a tvaru stropných dosiek, vencov, prekladov a schodíšť a výkaz materiálu.
- Projekt vykurovania: Technická správa, výpočet spotreby energie na vykurovanie, výkresy rozvodov ústredného kúrenia, schéma zapojenia kotla, umiestnenie a dimenzie vykurovacích telies a výkaz materiálu. Projekt je možné vypracovať pre plynový alebo elektrický zdroj vykurovania.
- Projekt zdravotechniky: Technická správa, výkresy vnútorného vodovodu, domovej kanalizácie, domového plynovodu a výkaz materiálu.
- Projekt elektroinštalácií: Technická správa, rozvody zásuvkovej, svetelnej a motorickej elektroinštalácie, slaboprúdové rozvody, schéma rozvádzača, výkres bleskozvodu a výkaz materiálu.
- Projekt rekuperácie: Technická správa a výkres.
Dvojpodlažné Domy z Dreva: Estetika a Funkčnosť
Dvojpodlažné domy z dreva predstavujú vynikajúcu voľbu pre vidiecke bývanie alebo ako letná chata. Aj na menšom pozemku je možné vytvoriť priestor s dostatkom miesta pre rodinu a hostí. Drevené domy poskytujú ideálne prostredie na oddych a zároveň umožňujú vytvorenie priestoru pre aktívny odpočinok aj pre zabezpečenie súkromia.
Výstavba dvojpodlažného domu na malom pozemku je efektívna z hľadiska využitia priestoru. Hoci existuje presvedčenie, že dvojpodlažné budovy sú drahšie, nie je to vždy pravda. Náklady súvisiace s údržbou domu môžu byť vyššie, ale samotný materiál - drevo - je estetický a často nepotrebuje ďalší dekoratívny dizajn.

Usporiadanie Miestností a Použité Materiály v Drevených Domoch
Pri návrhu dreveného dvojpodlažného domu je dôležité zvážiť usporiadanie miestností v závislosti od plochy pozemku. Zvyčajne sa na prízemí nachádza obývacia izba, kuchyňa a hygienické zázemie. Pri dostatočnom priestore je možné pridať malý salónik alebo šatňu. Chodby sú navrhované s minimálnym priestorom a často sú spojené s obývacou izbou širokým otvorom v tvare oblúka. Na druhom poschodí sa nachádzajú spálne, prípadne štúdio, terasa alebo herňa.
Použité materiály majú vplyv na dobu výstavby a usadzovania domu. Pri štandardnom masívnom dreve je potrebné počítať s čakaním približne rok po dokončení hrubej stavby, kým sa dom úplne usadí. Použitie profilovanej tyče skracuje tento čas, keďže tento typ dreva má špeciálne spojenie (hrad), ktoré zjednodušuje a urýchľuje výstavbu. Lepené drevo je považované za najlepší materiál, ktorý umožňuje flexibilitu v dizajne, vrátane prístavieb ako garáž, veranda či krytá terasa.
Výstavba Dvojpodlažného Dreveného Domu: Od Základov po Strechu
Výstavba dreveného domu, najmä dvojpodlažného, si vyžaduje starostlivé plánovanie a realizáciu.
- Výber pozemku: Dôležité sú vlastnosti pôdy v danej lokalite.
- Základy: Najdlhšia a najzodpovednejšia operácia. Výber typu základov ovplyvňuje životnosť, pevnosť a spoľahlivosť celej budovy. Pre malé vidiecke domy (napr. 6x4 m) môže byť vhodný stĺpcový základ. Pre väčšie stavby (napr. 9x9 m, 10x10 m) sú vhodnejšie robustnejšie základy.
- Konštrukcia stien: Práca s drevom je pomerne rýchla vďaka jednoduchej inštalácii. Dôležitá je spoľahlivá hydroizolácia základov a spodnej vrstvy stien.
- Montáž strechy: Po dokončení stien nasleduje montáž strechy.
- Podlahy: Môžu byť betónové alebo drevené.
- Povrchové úpravy: Vnútorné a vonkajšie obloženie, ošetrenie dreva antiseptikami. V prípade potreby je možné steny zvonku natrieť špeciálnymi farbami (olejové, akrylátové, alkydakrylátové), ktoré chránia drevo a dodávajú mu estetický vzhľad.
Pri výbere stavebných materiálov je dôležité brať do úvahy ich náklady, životnosť, spoľahlivosť a jednoduchosť inštalácie. Prírodné a ekologické materiály sú čoraz populárnejšie, pričom drevo je ideálnou voľbou. Okrem toho, že drevo neprepúšťa škodlivé látky, má aj pozitívny vplyv na ľudské zdravie.
Dvojpodlažné Rámové Domy: Moderné Bývanie
Dvojpodlažné rámové domy získali široké uznanie ako alternatíva k tradičným murovaným stavbám. Sú obľúbené pre svoju rýchlu výstavbu, dobré tepelno-izolačné vlastnosti a možnosť vytvorenia moderného interiéru s priznanými nosnými konštrukciami.
Existujú dva hlavné typy rámových konštrukcií:
- Platformový rám: Zahŕňa fázovú konštrukciu objektu.
- Rám-rám (Pass-through): Vyžaduje viac úsilia pri implementácii, kde sú nosné prvky fixované v určitých intervaloch, aby sa zabránilo deformácii.
Rám je zvyčajne vyrobený z dreva a upevnený oceľovými kotvami alebo skrutkami. Steny sú opláštené špeciálnymi doskami (napr. DSP). Všetky drevené prvky sú ošetrené antiseptikami a základnými nátermi pre zvýšenie požiarnej odolnosti a ochrany pred hmyzom.

Výhody Rámových Dvojpodlažných Domov
Výstavba dvojpodlažného rámového domu ponúka oproti kamenným budovám viaceré výhody, vrátane:
- Rýchlosť výstavby: V porovnaní s tradičnými metódami je výstavba rámového domu výrazne rýchlejšia.
- Energetická efektívnosť: Dobre izolované rámové domy môžu dosahovať vysoké energetické úspory.
- Flexibilita dizajnu: Umožňujú takmer akúkoľvek architektonickú formu a dispozičné riešenie.
- Nižšia hmotnosť konštrukcie: Rámové domy sú ľahšie, čo umožňuje použitie menej náročných základov.
- Ekologickosť: Drevo ako primárny stavebný materiál je obnoviteľný zdroj.
Celková plocha rámových bytov sa pohybuje od 50 do 150 m². Strecha je najčastejšie pokrytá kovom, bridlicou alebo ondulínom. Rámový dom poskytuje dostatok priestoru a umožňuje aj rôzne prístavby ako terasa alebo veranda. V druhom poschodí sa často nachádzajú arkierové okná, ktoré dodávajú fasáde architektonickú zaujímavosť.
Etapy Výstavby Rámového Domu
Proces výstavby rámového domu je možné rozdeliť do niekoľkých kľúčových etáp:
- Prípravné a projektové práce: Vyčistenie pozemku, identifikácia svahov a terénu, značenie podľa schváleného plánu.
- Základy: Vzhľadom na nízku hmotnosť rámovej konštrukcie sú často postačujúce menej náročné základy, ako napríklad pilotová základňa (v oblastiach s nadmernou vlhkosťou) alebo železobetónové dosky, ktoré sú univerzálne, trvanlivé a cenovo dostupné. Dosky môžu slúžiť aj ako základ pre betónovú podlahu.
- Podlahy: Podlahy môžu byť betónové alebo drevené. Pri pásovom základe sa často používa ľahký expandovaný íl pre betónovú podlahu. Pri drevených podlahách sa vytvára rám z drevených nosníkov (napr. 10x15 cm alebo 15x15 cm), ktorých veľkosť závisí od hrúbky steny a vzdialenosti medzi pilotmi.
- Steny: Určenie výšky stien a výroba vertikálnych regálov. Vzdialenosť medzi regálmi je prispôsobená hrúbke izolačnej fólie. Regály sa montujú pomocou kovových rohov a skrutiek. Medzi stojanmi sú umiestnené prepojky, ktoré zabezpečujú stabilitu konštrukcie. Pri montáži je nevyhnutné používať olovnicu a vodováhu na zabezpečenie presnej vertikálnej polohy. Po inštalácii regálov sa vykonáva horné debnenie, ktoré dodáva konštrukcii tuhosť. Vonkajšie opláštenie doskami OSB tiež prispieva k celkovej stabilite rámu.
- Strešná krytina: Po správnej montáži rámu je inštalácia strechy relatívne jednoduchá. Voľba strešnej krytiny závisí od projektu a osobných preferencií.
Výber vhodného stavebného materiálu, precízne plánovanie a odborná realizácia sú kľúčové pre úspešnú rekonštrukciu či novostavbu dvojpodlažného rodinného domu, ktorý bude spĺňať všetky požiadavky na moderné a komfortné bývanie.
tags: #dvojpodlazny #rodinny #dom #rekonstrukcia #vykresy