Centrum hlavného mesta získalo ďalší kompaktný mestský blok, ktorý prispieva k dotvoreniu urbanistickej štruktúry. Polyfunkčný dom Sasinkova 21 predstavuje modernú novostavbu s prevládajúcou funkciou bývania, doplnenú o nebytové priestory a dvojpodlažnú podzemnú garáž. Jeho umiestnenie v prieluke na Sasinkovej ulici, v tesnej blízkosti obľúbenej Medickej záhrady a v kontexte historickej aj modernej zástavby Starého Mesta, robí z tohto projektu významný príspevok k revitalizácii danej lokality.

Konštrukčné a architektonické riešenie: Kontrapunkt k okoliu
Architektúra objektu z dielne oceňovanej kancelárie Kuklica Smerek Architekti (v inom zdroji spomínaná ako AVK Architects) úspešne zaceľuje stavebnú štruktúru bloku a zároveň vytvára zaujímavý kontrapunkt k mohutnému solitérnemu objektu susedného Okresného riaditeľstva Policajného zboru. V mieste nárožia stavba na úrovni parteru ustupuje, čím vytvára prekrytie vstupu vlastnou hmotou vyšších podlaží a zároveň opticky odľahčuje celkovú líniu budovy. Na najvyššom podlaží je nárožie kompozične ukončené "vežou", ktorá dodáva objektu dynamiku. Fasáda je riešená jednoducho a striedmo, pričom monochromatická grafika je ozvláštnená prítomnosťou sivých plôch na bielom pozadí, ktoré nepravidelne lemujú okenné otvory. Tento motív evokuje citáciu historického tvaroslovia (šambrán) okolitých budov na súčasnej stavbe.
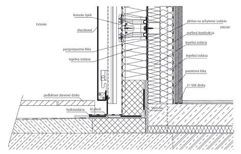
Rozmery bytového objektu sú približne 11,95 x 11,40 metra s výškou hrebeňa 17,70 metra od úrovne podlahy. Výstavba je realizovaná ako monolitická železobetónová konštrukcia založená na celoplošnú základovú dosku, podopretú sústavou pilót. Obvodový plášť je navrhnutý ako železobetónová zateplená konštrukcia, kombinujúca kontaktný zatepľovací systém s ľahkým prevetrávaným obvodovým plášťom. Vnútorné priečky sú murované. Objekt je prestrešený plochými strechami a vegetačnou strechou vo vnútrobloku.

Dispozičné riešenie a funkcie: Bývanie s pridanou hodnotou
Polyfunkčný dom Sasinkova 21 má prevládajúcu funkciu bývania, pričom v súlade s požiadavkami Územného plánu hlavného mesta sú v objekte umiestnené aj nebytové priestory. Na prízemí je navrhovaný hlavný spoločný vstup pre obyvateľov a priestory s obchodným charakterom, čím sa zvyšuje komfort budúcich obyvateľov a zároveň sa dopĺňa občianska vybavenosť lokality. Na druhom a treťom nadzemnom podlaží sa nachádzajú dva byty. Celkovo vzniklo v dome deväť bytov, z ktorých je šesť dvojizbových a tri štvorizbové. Súčasťou vybavenosti každého bytu je aj chladenie klimatizáciou. Na najvyššom podlaží sa nachádza strešný ateliér.
Z dôvodu stiesnených pomerov a konfigurácie okolitej zástavby je prízemie objektu zdvihnuté o pol podlažia. Nadzemná viacpodlažná časť budovy je navrhnutá na časti pôdorysu pozdĺž Sasinkovej ulice. Dispozičné riešenie dôsledne rešpektuje typologické zásady pre bytové a nebytové funkcie a zohľadňuje svetlotechnické obmedzenia. Vertikálny pohyb v objekte zabezpečuje schodisko, výťah, autovýťah a schodisková plošina.
Vjazd do dvojpodlažnej podzemnej garáže, ktorá poskytuje 18 parkovacích miest, je riešený cez autovýťah. Vzhľadom na malú plochu bytového domu ide o rozlohovo úspornejšie riešenie než klasické vjazdy cez rampu.
Kontext ulice Sasinkova a širšieho mestského prostredia
Sasinkova ulica v mestskej časti Bratislava - Staré Mesto sa z pohľadu zástavby formovala do 50-tych rokov 20. storočia. Jej pôvodnú štruktúru narušila neskoršia výstavba masívneho objektu Okresného riaditeľstva policajného zboru, ktorý do pôvodnej zástavby zasiahol pomerne výrazným spôsobom. V tomto kontexte vstúpil atraktívne pôsobiaci Dom na bývanie Sasinkova, ktorý dotvára prostredie tvorené budovami historického charakteru, ale aj modernejšími vstupmi.
Vypĺňanie mestských prieluk je v Bratislave aktuálnou témou, keďže ich počet je vysoký a ubúdajú len pomaly. Doplniť uličnú čiaru novou zástavbou, ktorá by "ladila" s už existujúcou, je výzva pre architektov. Ešte väčšou výzvou to však je z hľadiska noriem a legislatívy. Pokiaľ sa výstavba v prieluke zvládne, prispeje k tvorbe kompaktnejšieho mesta, ktoré je ekologickejšie aj ekonomickejšie. Prísne normy na preslnenie a parkovanie však sťažujú vstup do lokalít, ktoré vznikali v úplne iných podmienkach. Napriek tomu sa v Bratislave podarilo v poslednom období vyplniť niekoľko "dier", ako napríklad Bytový dom Varšavská, alebo rozsiahle projekty finančnej skupiny Proxenta na Jozefskej ulici (Weinhauer, Kesselbauer).
Príkladom úspešného vyplnenia prieluky je aj samotný Polyfunkčný dom Sasinkova 21, ktorý bol dokončený v roku 2019. Do lokality priniesol okrem bytov aj priestor pre občiansku vybavenosť a vhodne doplnil domoradie na Sasinkovej ulici. V minulosti sa na mieste nachádzala mobilná záhrada, čo poukazuje na možnosť dočasného využívania prieluk ako pobytových priestorov s prospechom pre miestnu komunitu.

Výzvy a prínosy výstavby v mestských prielukách
Výstavba v mestských prielukách prináša špecifické výzvy. Stiesnené priestory a konfigurácia okolitej zástavby obmedzujú architektonické, dispozičné a technické riešenia. Je potrebné zohľadniť susedstvo existujúcich objektov, ako aj existujúcu zeleň. Stavebné práce si vyžadujú špeciálne zakladanie a logistické plánovanie dodávok materiálu. Zároveň je potrebné prispôsobiť sa obmedzenému priestoru na samotnom stavenisku, čo môže znamenať aj dočasné zabratie časti chodníka.
Napriek týmto výzvam prináša vyplňovanie prieluk významné prínosy. Prispieva k tvorbe kompaktnejšieho mesta, efektívnejšiemu využívaniu priestoru v exponovaných lokalitách a zlepšeniu celkovej urbanistickej štruktúry. Nové, citlivo navrhnuté stavby môžu nahradiť zanedbané objekty a revitalizovať celé mestské bloky. Projekty ako Polyfunkčný dom Sasinkova 21 menia tvár centra Bratislavy a sú dôležitou súčasťou jeho rozvoja.

Prehľad kľúčových informácií o projekte Polyfunkčný dom Sasinkova 21
- Lokalita: Sasinkova ulica, Bratislava - Staré Mesto (v prieluke, v blízkosti Medickej záhrady)
- Investor: EKO-ADR Europe, s.r.o. (v inom zdroji spomínaný ako Reding Tower 2, A. E. Invest)
- Architektonické spracovanie: Kuklica Smerek Architekti (v inom zdroji AVK Architects)
- Rok dokončenia: 2019 (podľa jedného zo zdrojov)
- Funkcia: Polyfunkčný dom s prevládajúcou funkciou bývania, nebytové priestory (obchodné, ateliér), technická a domová vybavenosť.
- Počet bytov: 9 (6x dvojizbový, 3x štvorizbový)
- Počet parkovacích miest: 18 (v dvojpodlažnej podzemnej garáži)
- Konštrukcia: Monolitická železobetónová, založená na základovej doske a pilótach.
- Fasáda: Kombinácia kontaktného zatepľovacieho systému a prevetrávaného plášťa, lícové tehličky, omietka.
- Strecha: Plochá strecha s vegetačným substrátom, šikmá strecha s nadkrokvovým zateplením.
- Zastavaná plocha: 135,95 m² (podľa jedného zdroja) až 279,76 m² (podľa iného zdroja)
- Podlažná plocha nadzemných podlaží: 631,89 m² (podľa jedného zdroja) až 1 994,4 m² (podľa iného zdroja)
- Obostavaný objem: 4 770 m³ (podľa jedného zdroja)
- Investičný náklad: 2 mil. € (podľa jedného zdroja)
Tieto údaje, aj keď sa v niektorých zdrojoch mierne líšia, poskytujú komplexný pohľad na projekt a jeho parametre.
tags: #polyfunkcny #dom #sasinkova #byty