Polyfunkčné bytové domy predstavujú moderný trend v urbanistickom plánovaní, ktorý úspešne integruje bývanie s komerčnými a inými službami. Tieto objekty nie sú len miestom na bývanie, ale stávajú sa živými centrami, ktoré obohacujú mestské prostredie a ponúkajú obyvateľom komfort a dostupnosť. V tomto článku preskúmame kľúčové aspekty návrhu a realizácie polyfunkčných bytových domov, pričom sa zameriame na inovatívne prístupy k dizajnu, flexibilite a integrácii do existujúceho mestského tkaniva.

Matadorka: Pilotný projekt v brownfieldovej lokalite
Jedným z pozoruhodných príkladov polyfunkčného bytového domu je projekt Matadorka, ktorý bol prvým developerským projektom v petržalskom "brownfielde". Tento ambiciózny krok priniesol do rýchlo sa rozvíjajúcej lokality novú kvalitu urbanizmu, bývania a služieb. Matadorka sa stal petržalskou dominantou, charakteristickou čistou architektonickou líniou a moderným svetlým fasádnym riešením.
Svojou koncepciou, ktorá zahŕňa nižšiu podnož a vystupujúci výškový objekt, nadväzuje na už realizované stavby v okolí. Tento prístup zabezpečuje harmonickú integráciu do existujúcej zástavby a zároveň vytvára vizuálne zaujímavý architektonický celok. Matadorka ponúka kvalitné bývanie na 29 nadzemných podlažiach, pričom najvyššia výška objektu dosahuje až 85 metrov. Táto impozantná výška v kombinácii s výhodnou polohou poskytuje obyvateľom mimoriadne výhľady na hlavné mesto.
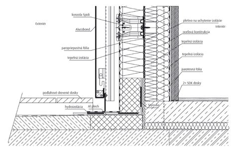
Novostavba bytového domu je situovaná do územia s hromadnou bytovou a občianskou výstavbou. Zámerom autorov bolo vstúpiť do tohto prostredia kvalitnou a zaujímavou architektúrou, ktorá by ohľaduplne dotvorila chýbajúce nárožie bloku. Výraz objektu tvoria najmä tradičné prvky rezidenčnej architektúry - striedanie plných plôch so solitérnymi okennými výplňami, doplnenými o balkóny a lodžie. Tieto prvky dodávajú fasáde dynamiku a zároveň zabezpečujú dostatok prirodzeného svetla v interiéroch.
Fasády podnože, kde sú umiestnené obchodné priestory, sú charakteristické celopresklenými plochami výkladov. Tieto presklené plochy nielenže zvyšujú atraktivitu obchodných prevádzok, ale zároveň prepúšťajú dostatok svetla do vnútorných priestorov a vizuálne prepojujú exteriér s interiérom. Na západnej a severnej strane objektu sú veľkoplošné obklady doplnené o popínavú zeleň, ktorá dodáva fasáde prírodný prvok a zároveň prispieva k zlepšeniu mikroklímy.
Na streche podnože je umiestnený jednopodlažný objekt bytov a ateliérov s obytnými predzáhradkami. Tieto predzáhradky s množstvom zelene poskytujú obyvateľom súkromný priestor na oddych a relaxáciu v blízkosti svojich domovov. Z podnože vyrastá dvojica 8- až 9-podlažných hmôt, v ktorých sa nachádza 4 až 6 bytov na každom podlaží. Tieto hmoty sú ukončené penthousmi s terasami, ktoré ponúkajú luxusné bývanie s panoramatickými výhľadmi.

Koncept flexibility: Zapojenie budúcich majiteľov do dizajnu
Jedným z najinovatívnejších aspektov projektu Matadorka je jeho flexibilný koncept. Budúci majitelia bytov boli aktívne zapojení do procesu dizajnovania. Táto spolupráca im umožnila meniť veľkosť a polohu okien na fasáde, ako aj veľkosť a polohu balkónov. Mnohí majitelia túto možnosť využili a prispôsobili dizajn bytu svojim individuálnym potrebám a preferenciám.
Dokonca aj samotní autori projektu, ktorí sa rozhodli pre kúpu konkrétneho bytu, využili túto možnosť. Celý proces prebiehal pod kuratelou architektov, ale neboli nutné žiadne vážne intervencie voči požiadavkám klientov. V záujme vyváženia kompozície došlo k nejakým korekciám na nepredaných bytoch, čo svedčí o snahách o dosiahnutie optimálneho výsledku pre všetkých.
Tomuto konceptu bol prispôsobený aj celý dizajn fasád. Zámerne neboli použité žiadne kompozičné osi, aby fasáda bola schopná "absorbovať" aj rôzne nekoncepčné zmeny, ktoré mohli iniciovať majitelia bytov. Táto otvorenosť voči individuálnym úpravám zabezpečila, že každý byt si zachoval svoju jedinečnosť a zároveň prispel k celkovej estetike budovy.
Ďalšia úroveň flexibility sa prejavuje v dispozíciách bytov. Pôdorysy boli navrhnuté tak, aby sa izby - spálne - dali pričleňovať k susedným bytom. Týmto spôsobom sa dala meniť izbovitosť bytov podľa aktuálnych potrieb rodiny alebo jednotlivca. Táto modularita umožňuje obyvateľom prispôsobiť si svoje bývanie počas celého života, či už ide o rast rodiny, potrebu domácej kancelárie alebo zmenu životného štýlu.
7 princípov pre budovanie lepších miest | Peter Calthorpe | TED
Polyfunkčný objekt NUEVO: Harmonická integrácia v stabilizovanej zóne
Ďalším príkladom úspešného polyfunkčného bytového domu je objekt NUEVO, ktorý sa nachádza v stabilizovanej zóne bytových domov v západnej časti Stupavy. Táto štvrť poskytuje kľudné, tiché prostredie a zároveň aj plnú občiansku vybavenosť v dostupnej vzdialenosti. Spolupráca s renomovanou architektonickou kanceláriou Nedatelier bola garantom nadčasového dizajnu a moderných prvkov riešenia stavby.
Bytový dom disponuje 21 bytovými jednotkami a 6 apartmánmi určenými na bývanie. Okrem toho ponúka 12 vonkajších parkovacích státi a 21 vnútorných parkovacích miest, čo zabezpečuje dostatočné parkovacie kapacity pre obyvateľov aj návštevníkov. Tento projekt demonštruje, ako je možné úspešne integrovať moderné bývanie do existujúcej, už etablované zástavby, pričom sa zachováva jej charakter a zároveň sa pridáva nová kvalita.
Dizajn polyfunkčného objektu NUEVO sa vyznačuje čistými líniami a funkčnosťou. Architekti kládli dôraz na vytvorenie príjemného a komfortného bývania s dôrazom na prirodzené svetlo a dobrú orientáciu bytov. Fasáda budovy je navrhnutá tak, aby esteticky zapadala do okolitej zástavby, pričom zároveň prináša moderný prvok.
Integrácia občianskej vybavenosti do polyfunkčných objektov je kľúčová pre ich úspech a udržateľnosť. V prípade NUEVO, jeho umiestnenie v stabilizovanej zóne s dostupnou vybavenosťou znamená, že obyvatelia majú na dosah ruky obchody, služby, školy a iné dôležité inštitúcie. Toto znižuje potrebu dlhého dochádzania a prispieva k vytvoreniu silnejšej komunity.
Spolupráca s architektonickou kanceláriou Nedatelier na projekte NUEVO zabezpečila, že objekt spĺňa najvyššie štandardy kvality a dizajnu. Nadčasový dizajn znamená, že budova bude pôsobiť moderne a atraktívne aj po mnohých rokoch. Moderné prvky riešenia stavby zahŕňajú energetickú efektívnosť, kvalitné materiály a technologické inovácie, ktoré prispievajú k pohodliu a udržateľnosti bývania.

Prístup k predaju a realitné služby
V kontexte predaja nehnuteľností v polyfunkčných objektoch je kľúčový profesionálny a ľudský prístup. Svedčia o tom aj pozitívne referencie od klientov, ktorí ocenili služby realitnej maklérky pani Kaliarikovej. Jej prístup od prvotnej obhliadky až po uzavretie celého procesu bol opísaný ako výnimočne ľudský a zároveň veľmi profesionálny.
Komunikácia hrá v procese predaja a kúpy nehnuteľnosti zásadnú úlohu. V tomto prípade bol klient informovaný v každom bode procesu, čo buduje dôveru a zabezpečuje hladký priebeh transakcie. Táto transparentnosť a otvorenosť sú nevyhnutné pre spokojnosť klienta.
Profesionálny a ľudský prístup bol pre pani Kaliarikovú samozrejmosťou. Ochotne radila, vysvetľovala a zodpovedala všetky otázky, čo je pre kupujúcich a predávajúcich mimoriadne dôležité, najmä pri komplexných transakciách s nehnuteľnosťami. Odporúčanie na jej služby vychádza z jej odbornej spôsobilosti, ochoty detailne vysvetliť každý krok a z celkovej bezproblémovej skúsenosti pri predaji a kúpe nehnuteľností.
Tieto skúsenosti poukazujú na dôležitosť výberu správneho realitného partnera, ktorý dokáže nielen efektívne zrealizovať obchod, ale aj poskytnúť podporu a poradenstvo počas celého procesu. V kontexte polyfunkčných bytových domov, kde sú často k dispozícii rôzne typy bytov a apartmánov, môže byť skúsený realitný maklér neoceniteľným pomocníkom pri orientácii na trhu a pri výbere tej správnej nehnuteľnosti.
tags: #polyfunkcny #bytovy #dom #nabrezna #presov #projektant