Základy sú jednou z najzásadnejších, ak nie najzásadnejšou, súčasťou každej stavby. Hoci sú často skryté pod zemou, ich úloha je nenahraditeľná. Predstavte si ich ako neviditeľnú chrbticu, ktorá nesie celú váhu budovy a zodpovedne ju prenáša do základovej pôdy. Bez pevného a spoľahlivého základu by akákoľvek stavba bola ohrozená nestabilitou a potenciálnym zrútením. Správny výber a realizácia základov sú kľúčové pre dlhú životnosť a bezpečnosť vašej nehnuteľnosti.

Funkcia a význam základov
Hlavnou úlohou základov je prijímať a prenášať zvislé zaťaženia, ktoré pôsobia na stavbu, predovšetkým z nosných konštrukcií, ako sú steny a stĺpy. Tieto zaťaženia potom rovnomerne roznášajú do základovej pôdy. Týmto spôsobom základy zabezpečujú celkovú stabilitu stavby a zabraňujú jej sadaniu alebo deformácii. Intenzita zaťaženia a kvalita základovej pôdy sú hlavnými faktormi, ktoré určujú, aký typ základov bude pre danú stavbu najvhodnejší.
V kontexte základových konštrukcií sa často stretávame s pojmom základová škára. Je to presne definované miesto, kde sa spodná plocha základu dotýka základovej zeminy. Inými slovami, je to presné miesto, kde bude položený spodok betónového základu. Správne určenie a príprava základovej škáry je nevyhnutná pre kvalitné založenie.
Typy základov: Od plošných po hlbinné
Principiálne môžeme základy rozdeliť do dvoch hlavných kategórií: plošné a hlbinné. Každý typ má svoje špecifické použitie a je určený pre odlišné podmienky.
Plošné základy
Plošné základy prenášajú zaťaženie celej stavby cez svoju plochu priamo do únosnej základovej pôdy. Základným predpokladom pre ich použitie je dostatočne únosná základová pôda, ktorá sa nachádza v malej hĺbke tesne pod povrchom terénu. Tieto pôdy musia mať dobré fyzikálne a mechanické vlastnosti, aby dokázali zniesť zaťaženie bez neprimeraných deformácií. Plošné základy sú v súčasnosti najrozšírenejším typom základovej konštrukcie, najmä pri výstavbe rodinných domov.
Medzi najbežnejšie typy plošných základov patria:
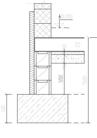
Základová doska: Tento typ zakladania sa používa najmä na málo únosných zeminách. Celé zaťaženie budovy je rovnomerne rozložené na celú plochu pôdorysu stavby. Základová doska je v súčasnosti veľmi populárnou voľbou pre rodinné domy. Okrem svojej nosnej funkcie predstavuje základová doska aj výborný základ pre energeticky efektívne budovy, pretože v kombinácii s tepelnou izoláciou a hydroizoláciou tvorí kompaktný celok, ktorý minimalizuje tepelné straty a prenikaniu vlhkosti. Náklady na vyhotovenie základovej dosky, vrátane podkladového betónu, zvárania hydroizolácie a pokládky 20 cm izolácie, sa pohybujú zhruba od 75 do 110 EUR za štvorcový meter.

Základové pásy: Ako už napovedá ich názov, základové pásy tvoria dlhé a úzke konštrukcie umiestnené pod hlavnými nosnými múrmi budovy. Ide o súvislú konštrukciu, ktorá je typická pre stavby, kde sú hlavnými nosnými prvkami steny, najčastejšie pri murovaných stavbách s menším počtom podlaží. Základové pásy sa tiež používajú pod miestami s vyšším zaťažením, ako sú širšie priečky, komíny alebo schodiská.

Základová pätka: Tento typ základov je navrhovaný predovšetkým pre založenie skeletových konštrukcií budov, kde nosnou konštrukciou nie sú súvislé steny, ale skôr stĺpy. Základová pätka sa potom umiestňuje samostatne pod každý stĺp. Ide o základy štvorcového, obdĺžnikového alebo kruhového pôdorysu, ktoré efektívne prenášajú zaťaženie od stĺpov do základovej škáry. Môžu byť jednostupňovité alebo viacstupňovité a na ich vyhotovenie sa používa buď prostý betón, alebo železobetón.
Hlbinné základy
Hlbinné základy sa používajú v prípadoch, keď únosná vrstva pôdy je v značnej hĺbke pod povrchom, alebo ak sa v úrovni základov vyskytuje spodná voda. V takýchto situáciách sa zaťaženie z objektu prenáša do väčšej hĺbky a u týchto základov prevláda hĺbkový rozmer. Medzi hlbinné základy patria rôzne konštrukcie, ako sú pilóty, mikropilóty, kesóny, studne či šachtové piliere. Pri bežnej výstavbe rodinných domov sa tieto typy základov spravidla nepoužívajú, pokiaľ sa nejedná o špecifické požiadavky projektu, napríklad pri výstavbe na svahoch alebo pri veľmi zaťažených objektoch.
Pilóty: Pilóty sú najbežnejším typom základových konštrukcií pri hlbinnom zakladaní. Delia sa na opreté a plávajúce, pričom ich hlavnou funkciou je prenesenie zaťaženia do hlbších a únosnejších vrstiev zeminy.
Základový rošt: Základový rošt sa používa pri zakladaní na málo alebo nerovnomerne únosných zeminách. Ide o sústavu vzájomne kolmých základových pásov, ktoré sú tuhé a spojené. Tento typ zakladania je často navrhovaný pre skeletové konštrukcie.
ZÁKLADOVÁ DESKA PRO RODINNÝ DŮM
Základy pre prístrešky a záhradné stavby
Pri stavbe rôznych prístreškov, terás či záhradných domčekov je príprava kvalitného podkladu rovnako dôležitá ako pri samotných obytných budovách.
Podklad pre prístrešky GARDEON
Pri montáži prístreškov od spoločnosti GARDEON je kľúčové pripraviť stabilný a vodorovný podklad, na ktorý sa ukotví oceľová nosná konštrukcia. Vhodným riešením je napríklad betónová platňa alebo betónové pätky umiestnené pod nosnými stĺpikmi. Do tohto podkladu sa následne ukotvia špeciálne pozinkované pätky. Ak sú stĺpy výškovo nastaviteľné, systém THP umožňuje elegantné skrytie kotviacich prvkov, napríklad pod zámkovou dlažbou. Spoločnosť GARDEON dodáva prístrešky bez podlahy a základov, ich prípravu si zabezpečuje zákazník sám.
Podklad pre terasu
Terasa predstavuje rozšírenie obytného priestoru do záhrady a jej kvalitný podklad je zárukou dlhej životnosti a funkčnosti. Pri budovaní terasy je potrebné zvážiť niekoľko kľúčových aspektov:
- Orientácia: Ideálna orientácia terasy je na juhovýchod, ale je dôležité myslieť na dostatočné tienenie. Orientácia podľa svetových strán by mala zohľadňovať primárne využitie terasy. Dôležité je tiež zohľadniť smer prevládajúcich vetrov.
- Veľkosť: Veľkosť terasy by mala zodpovedať veľkosti záhrady a plánovanému využitiu. Minimálna šírka by mala byť 2 až 3 metre.
- Spád a odvodnenie: Aby sa na terase netvorili kaluže, je nevyhnutné zabezpečiť dostatočný spád, optimálne dve percentá. Vodu je potrebné zbierať a odvádzať pomocou drenáží alebo trativodov.
- Podklad: Akýkoľvek povrch terasy musí byť položený na dobre spevnenú a upravenú plochu. Štandardne sa dlažba kladie do štrkového lôžka alebo na betónový podklad. Pre drevené terasy sa používa drevený rošt, ktorý zabezpečuje odvetrávanie. Alternatívou sú výškovo nastaviteľné terče.
- Povrchová úprava: Výber povrchovej úpravy závisí od financií, estetických preferencií a náročnosti údržby. Možnosti zahŕňajú prírodný kameň, betónové dlaždice, keramiku, drevo alebo kompozitné materiály.
Podklad pre záhradný domček
Pri výbere záhradného domčeka je nevyhnutné venovať pozornosť aj výberu vhodného podkladu, ktorý predĺži jeho životnosť. Medzi najčastejšie varianty patria:
Betónová doska: Ide o ideálne riešenie vďaka svojej životnosti a stabilite, avšak s vyššou cenou. Dôležité je zabezpečiť, aby doska bola zaliata v nezamŕzajúcej hĺbke a aby bol dostatočný presah dosky voči pôdorysu domčeka. Betón by mal byť pred použitím dostatočne vyzretý (ideálne 28 dní). Domček by mal byť tiež izolovaný od vlhkosti pomocou hydroizolácie.

- Tvrdnutie betónu: Rýchlosť tvrdnutia betónu ovplyvňuje viacero faktorov, ako sú vlhkosť vzduchu, vonkajšia teplota a zloženie betónovej zmesi. Oficiálna norma uvádza 28 dní na dostatočné vyzretie betónu pre stavebné účely.
- Presah betónovej dosky: Otázka presahu betónovej dosky je pomerne komplikovaná. Väčší presah zvyšuje riziko zatekania vody pod domček, zatiaľ čo menší presah zvyšuje riziko odštiepenia okraja pri kotvení. Kompromisným riešením môže byť presah dosky o 5 cm po každej strane pôdorysu domčeka.
- Izolácia domčeka: Betón prirodzene absorbuje vlhkosť, preto je dôležité domček izolovať. Ideálnym riešením je pokrytie celej dosky hydroizoláciou, napríklad asfaltovou lepenkou.
- Nezamŕzajúca hĺbka: Táto hĺbka závisí od zloženia podložia a nadmorskej výšky. Všeobecne sa pohybuje od 60 cm (kamenisté podložie) do 120 cm (íl). Dôležité je, aby celá základová konštrukcia bola pod touto hĺbkou.
- Upevnenie domčeka: Najlepšie je upevniť domček na kovovú pätku alebo kotvu osadenú do betónu už pri jeho zlievaní. Alternatívou je upevnenie do vyzretého betónu pomocou závitových tyčí alebo kovových uholníkov.
Betónové pätky: Jednoduchšie a lacnejšie riešenie oproito betónovej doske, ideálne na nerovnom teréne alebo svahoch. Ide o zabetónované jamy, prípadne jamy so zabetónovanými kovovými pätkami alebo kotvami. Aj pri betónových pätkách platí požiadavka na dodržanie nezamŕzajúcej hĺbky, aby sa zabránilo pohybu pätiek vplyvom zamŕzania a rozmŕzania pôdy. Počet pätiek musí stanoviť projektant alebo statik, pričom je možné ich počet redukovať pomocou preväzovacích hranolov.
Zemné skrutky: Toto riešenie je vhodné tam, kde je potrebné obísť stavebné obmedzenia. Ide o dobré riešenie za predpokladu zvolenia vhodného rozmiestnenia, počtu a parametrov skrutiek.
Výber správneho typu základov je komplexný proces, ktorý vyžaduje zohľadnenie mnohých faktorov. Investícia do kvalitného základu sa však vždy vyplatí v podobe dlhej životnosti, stability a bezpečnosti vašej stavby.