Bezpečnosť objektov je v dnešnej dobe kľúčovou prioritou pre jednotlivcov, firmy aj štátne inštitúcie. Efektívna ochrana majetku a osôb si vyžaduje detailný a premyslený prístup, ktorý začína pri dôkladnom pochopení a vizualizácii samotného objektu a jeho okolia. Podorys stráženého objektu predstavuje základný stavebný kameň každého bezpečnostného systému, poskytujúci neoceniteľné informácie pre návrh, implementáciu a údržbu ochranných opatrení. Tento článok sa ponorí do hĺbky problematiky podorysov strážených objektov, preskúma ich význam, zložky, typy a aplikácie v rôznych bezpečnostných kontextoch, s cieľom poskytnúť ucelený pohľad od základných princípov až po pokročilé strategické úvahy.

Význam podorysu v kontexte bezpečnosti
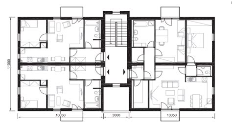
Podorys stráženého objektu nie je len obyčajnou technickou kresbou. Je to strategický nástroj, ktorý slúži ako vizuálna mapa pre bezpečnostný personál, technikov a manažment. Jeho primárnym účelom je poskytnúť jasný a zrozumiteľný obraz o fyzickej dispozícii objektu, vrátane jeho vnútorných priestorov, vonkajších obvodov, vstupných a výstupných bodov, ako aj potenciálnych rizikových zón. Bez presného podorysu by bolo navrhovanie efektívnych bezpečnostných opatrení, ako sú kamerové systémy, alarmy, kontrola prístupu či rozmiestnenie bezpečnostných hliadok, mimoriadne obtiažne, neefektívne a potenciálne nebezpečné.
Podorys umožňuje identifikovať slabé miesta v ochrannej perimetri, ako sú neosvetlené oblasti, slepé uhly, nedostatočne zabezpečené vstupy alebo potenciálne úkryty pre narušiteľov. Zároveň pomáha pri plánovaní optimálneho umiestnenia bezpečnostných technológií tak, aby pokrývali čo najväčšiu oblasť s minimálnym počtom zariadení a zároveň eliminovali mŕtve zóny. V prípade núdzovej situácie alebo narušenia bezpečnosti, podorys slúži ako rýchly referenčný bod pre rýchlu orientáciu a koordináciu zásahu. Umožňuje bezpečnostným zložkám rýchlo lokalizovať potenciálne hrozby, identifikovať únikové cesty a efektívne riadiť evakuáciu.
Kľúčové zložky podorysu stráženého objektu
Komplexný podorys stráženého objektu obsahuje niekoľko nevyhnutných prvkov, ktoré spolu tvoria ucelený obraz o zabezpečovanej lokalite. Tieto prvky zahŕňajú:
- Architektonické prvky: Presné zobrazenie obvodových stien, vnútorných priečok, dverí, okien, schodíšť, výťahov, ako aj ďalších stavebných konštrukcií. Dôležité je aj označenie materiálu stien a ich hrúbky, ak to má vplyv na priechodnosť signálov alebo odolnosť voči prieniku.
- Označenie vstupov a výstupov: Všetky vstupné a výstupné body, vrátane hlavných vchodov, servisných dverí, núdzových východov, ako aj brán a vjazdov na pozemok, musia byť jasne označené. Dôležité je rozlíšiť medzi bežnými vstupmi, núdzovými východmi a potenciálnymi slabými miestami.
- Rozmiestnenie bezpečnostných technológií: Podorys by mal detailne zobrazovať umiestnenie všetkých nainštalovaných bezpečnostných zariadení. To zahŕňa pozície bezpečnostných kamier (s vyznačením ich zorného poľa), pohybových senzorov, dymových detektorov, hlásičov otvorenia dverí a okien, ako aj kontrolných bodov prístupu (čítačky kariet, biometrické skenery).
- Zóny a sektory: Objekt býva často rozdelený na menšie zóny alebo sektory s rôznym stupňom bezpečnostnej citlivosti. Tieto zóny by mali byť na podoryse jasne vyznačené a označené, aby bolo zrejmé, ktoré oblasti vyžadujú zvýšenú ochranu alebo majú obmedzený prístup.
- Kritické miesta a citlivé oblasti: Podorys by mal zvýrazniť miesta, ktoré sú obzvlášť dôležité z hľadiska bezpečnosti. Môže ísť o serverovne, archívy, sklady cenností, miestnosti s technickým vybavením, ale aj o miesta, kde sa nachádzajú ľudia alebo dôležité procesy.
- Vonkajšie okolie: Okrem samotného objektu je dôležité zobraziť aj jeho bezprostredné okolie. To zahŕňa príjazdové cesty, chodníky, parkoviská, oplotenie, vonkajšie osvetlenie, ale aj potenciálne úkryty alebo miesta, odkiaľ by mohlo dôjsť k útoku (napr. susedné budovy, stromy, terénne nerovnosti).
- Orientácia a merítko: Podorys musí obsahovať severku pre správnu orientáciu a jasne definované merítko, ktoré umožňuje presné meranie vzdialeností a rozmerov.
- Legenda: Kľúč k symbolom a skratkám použitým na podoryse je nevyhnutný pre jeho správne pochopenie. Legenda vysvetľuje význam jednotlivých značiek, ako sú typy dverí, okien, senzorov, kamier a iných prvkov.

Typy podorysov a ich špecifiká
V závislosti od účelu a rozsahu bezpečnostného systému sa môžu používať rôzne typy podorysov:
- Celkový podorys objektu: Zobrazuje celú budovu a jej bezprostredné okolie v jednom pohľade. Je ideálny pre získanie celkového prehľadu o rozmiestnení bezpečnostných prvkov a identifikáciu hlavných vstupov a obvodov.
- Podorys poschodia: Detailne zobrazuje dispozíciu jednotlivých poschodí budovy. Tieto podorysy sú kľúčové pre plánovanie rozmiestnenia vnútorných senzorov, kamier a kontroly prístupu v rámci konkrétnych miestností a chodieb.
- Podorys obvodovej ochrany: Zameriava sa výlučne na vonkajší perimeter objektu, vrátane oplotenia, brán, vonkajších kamier, senzorov pohybu a osvetlenia. Tento typ podorysu je nevyhnutný pre návrh efektívnej perimetrickej ochrany.
- Podorys kontrolných bodov prístupu: Detailne zobrazuje umiestnenie všetkých bodov kontroly prístupu, ako sú vstupné dvere s čítačkami kariet, turnikety alebo biometrické skenery. Tento typ podorysu je dôležitý pre správu a monitorovanie prístupu osôb do rôznych častí objektu.
- Podorys kamerového systému: Špecifický podorys, ktorý zobrazuje iba umiestnenie bezpečnostných kamier, ich zorné polia a pokrytie. Tento typ podorysu je neoceniteľný pri návrhu a optimalizácii CCTV systémov.
EFEKTÍVNY SPRÁVCA 1.1 Všeobecný úvod do problematiky
Proces tvorby podorysu stráženého objektu
Tvorba podorysu pre účely bezpečnostného systému je proces, ktorý vyžaduje precíznosť a spoluprácu. Zvyčajne zahŕňa nasledujúce kroky:
- Získanie pôvodných architektonických plánov: Ak sú k dispozícii, pôvodné architektonické plány budovy predstavujú najlepší východiskový bod. Je však dôležité overiť ich aktuálnosť, pretože stavby sa mohli meniť.
- Geodetické zameranie (v prípade potreby): Ak pôvodné plány nie sú k dispozícii alebo nie sú dostatočne presné, je potrebné vykonať geodetické zameranie objektu a jeho okolia.
- Revízia na mieste: Bezpečnostný špecialista vykoná obhliadku objektu, aby overil presnosť plánov, identifikoval všetky vstupy a výstupy, potenciálne rizikové miesta a zhodnotil existujúce bezpečnostné opatrenia.
- Digitálne spracovanie: Podorys je následne spracovaný v počítačových programoch pre návrh a kreslenie (CAD softvér). V tejto fáze sa pridávajú špecifické bezpečnostné prvky, zóny a značky.
- Konzultácia a finalizácia: Podorys je predložený na schválenie zodpovedným osobám a po prípadných úpravách je finalizovaný.
Aplikácie podorysov v praxi
Podorysy strážených objektov nachádzajú uplatnenie v širokej škále oblastí:
- Komerčné a priemyselné objekty: V továrňach, skladových halách, kancelárskych budovách a obchodných centrách slúžia podorysy na plánovanie a rozmiestnenie kamerových systémov, alarmov, kontroly prístupu a úloh pre bezpečnostné služby.
- Štátne a verejné inštitúcie: Vládne budovy, ambasády, policajné stanice, väznice a vojenské základne vyžadujú mimoriadne detailné a presné podorysy pre zabezpečenie vysokej úrovne ochrany.
- Finančné inštitúcie: Banky, poisťovne a burzy používajú podorysy na ochranu svojich priestorov, trezorov a citlivých dát.
- Rezidenčné objekty: V prípade rozsiahlejších obytných komplexov alebo luxusných domov môžu byť podorysy využité na plánovanie systémov domácej bezpečnosti.
- Kritická infraštruktúra: Elektrárne, vodárne, letiská a telekomunikačné centrá sú strategické objekty, ktorých ochrana je zabezpečená pomocou detailných podorysov a komplexných bezpečnostných plánov.

Pokročilé aspekty a budúcnosť podorysov
S rozvojom technológií sa mení aj spôsob využívania podorysov. Integrácia s 3D modelmi a BIM (Building Information Modeling) umožňuje vytvárať realistickejšie vizualizácie a simulácie bezpečnostných scén. Využitie dát z podorysov v spojení s umelou inteligenciou umožňuje automatizovanú analýzu bezpečnostných rizík a prediktívne modelovanie potenciálnych hrozieb.
Budúcnosť podorysov strážených objektov spočíva v ich dynamickej povahe. Namiesto statických dokumentov sa stávajú živými, aktualizovateľnými platformami, ktoré sa integrujú s reálnymi dátami zo senzorov a bezpečnostných systémov. To umožní ešte lepšiu adaptabilitu a efektivitu bezpečnostných opatrení v neustále sa meniacom prostredí. Dôkladný a aktuálny podorys stráženého objektu zostáva základným pilierom efektívnej bezpečnosti, poskytujúc základ pre všetky ďalšie kroky pri ochrane majetku a osôb.
tags: #podorys #strazeneho #objektu