
Projekt rodinného domu LAURA predstavuje moderné nízkoenergetické bývanie, ktoré spája funkčnosť, estetiku a vysoký štandard komfortu. Tento 4-izbový bungalov obdĺžnikového tvaru s úžitkovou plochou 89,35 m2 je navrhnutý s ohľadom na potreby rodiny s 4-5 členmi, pričom jeho dispozícia zohľadňuje rozdelenie na dennú a nočnú zónu pre maximálne súkromie a pohodlie.
Architektonické a dispozičné riešenie
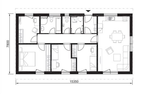
Bungalov LAURA sa vyznačuje moderným dizajnom, kde už prvý pohľad zaujme asymetrické rozloženie okien, ktoré dodáva fasáde dynamický a súčasný charakter. Dom má rozmery 13,25 m x 10,25 m (pričom iné údaje uvádzajú pôdorys s rozmermi 14,50 x 11,20 m, čo naznačuje možnosť úprav), zastavaná plocha dosahuje 136,21 m2 a obytná plocha je 69,67 m2. Typ strechy je plochá strecha, ktorá prispieva k celkovému modernému vzhľadu a zároveň umožňuje efektívne riešenie zateplenia a odvodnenia.
Vstup do domu je riešený cez kryté závetrie, ktoré zabezpečuje pohodlný a suchý vstup do interiéru bez ohľadu na počasie. Zádverie v tvare obdĺžnika ústi do chodby, ktorá zároveň poskytuje prístup do technickej miestnosti. V technickej miestnosti je možné umiestniť rekuperáciu, práčku, sušičku a ďalšie technické vybavenie nevyhnutné pre moderné bývanie.
Dispozícia interiéru je premyslene delená na dennú a nočnú časť. Denná zóna je srdcom domu a je tvorená priestrannou obývacou izbou, ktorá je plynulo prepojená s kuchyňou a jedálňou. Tento otvorený priestor podporuje rodinné interakcie a vytvára príjemnú atmosféru pre spoločné chvíle. V obývacej izbe je navrhnutý moderný zapustený krb, ktorý priestorovo neobmedzuje a zároveň dodáva interiéru útulnosť a dizajnový prvok. Kuchyňa je doplnená o praktickú pozdĺžnu špajzu.
Nočná časť domu je situovaná v pokojnejšej časti, kde sa nachádza rodičovská spálňa s vlastným šatníkom, dve detské izby a kúpeľňa spojená s toaletou. Izba pri vchode je flexibilne využiteľná ako pracovňa alebo hosťovská izba. Celkové usporiadanie interiéru je síce vnímané ako "zvláštne delené", avšak po čase si naň zákazníci zvyknú a ocenia jeho funkčnosť.

Komfort a energetická efektivita
Bungalov LAURA je zaradený do energetickej triedy A0, čo potvrdzuje jeho vysokú energetickú efektivitu. Ako zdroj vykurovania je zvolené tepelné čerpadlo, ktoré v spojení s podlahovým vykurovaním zabezpečuje nielen komfortné teplo, ale aj nízke prevádzkové náklady. V prípade záujmu je možné ovládanie podlahového vykurovania realizovať prostredne prostredníctvom mobilnej aplikácie, čo zvyšuje komfort užívania.
Dom je navrhnutý ako nízkoenergetický a bezúdržbový. Použitie technológie DifuTech zabezpečuje príjemnú klímu v interiéri po celý rok a vynikajúca tepelná izolácia stien znižuje potrebu energie na vykurovanie. Vzhľadom na rastúce ceny energií a potrebu sebestačnosti, firma ponúka možnosť inštalácie domovej fotovoltaickej elektrárne v spolupráci s partnerskou firmou.
Cena a možnosti prispôsobenia
Projektová dokumentácia je orientačne nacenená na 1,599 €. Cena realizácie dodávateľskou firmou je uvádzaná vo výške 134,000 €, zatiaľ čo cena stavebného materiálu je 62,500 € a cena svojpomocnej stavby predstavuje 98,300 €. Kompletný orientačný cenník katalógového projektu je k dispozícii na vyžiadanie.
Je dôležité zdôrazniť, že katalógové projekty je možné prispôsobiť individuálnym potrebám a predstavám zákazníka. Medzi bežné úpravy patria zmeny rozmerov okien, posun priečok, zväčšenie či zmenšenie vonkajších rozmerov domu. Firma ponúka individuálne úpravy bez poplatku a po nacenení realizácie je projekt kompletovaný pre stavebné povolenie.
Firma tiež ponúka možnosť realizácie základovej dosky svojpomocne, rovnako ako aj dokončenie stavby v štádiu "na kľúč" svojpomocne. Vzorové domy sú k dispozícii na návštevu, aby si potenciálni zákazníci mohli na vlastnej koži zažiť kvalitu montovaných nízkoenergetických rodinných domov.
Domácnosť spotrebuje menej energie, ako vyprodukuje
Výhody montovaných domov
Montované nízkoenergetické rodinné domy, ako je aj bungalov LAURA, prinášajú množstvo výhod. Medzi hlavné patrí rýchlosť výstavby, presnosť realizácie, vynikajúce tepelnoizolačné vlastnosti a environmentálna šetrnosť. Skladby stien sú navrhnuté tak, aby vytvorili ideálne podmienky pre užívanie s nízkymi prevádzkovými nákladmi.
Domy sa štandardne stavajú v troch stupňoch dokončenosti: Start, Plus a All inclusive, čo umožňuje zákazníkovi vybrať si úroveň dokončenia podľa svojich potrieb a rozpočtu.
Možnosti úprav a individuálny prístup
Firma ATRIUM SK kladie dôraz na individuálny prístup k zákazníkovi. Regionálni poradcovia sú k dispozícii na konzultácie a pomoc pri výbere a úprave projektu. V prípade, že katalógový projekt nie je úplne vhodný pre daný pozemok, je možné vypracovať cenovú ponuku na základe vlastného návrhu zákazníka.
V cene projektu nie je štandardne započítaný drevený obklad na fasáde ani exteriérové žalúzie, čo sú možnosti, ktoré si zákazník môže doobjednať.
Bungalov LAURA je teda komplexným riešením pre moderné bývanie, ktoré spĺňa vysoké nároky na komfort, energetickú úspornosť a estetiku, s možnosťou individuálnych úprav podľa prianí každého klienta.