Petržalka, najrozľahlejšia mestská časť Bratislavy, ponúka široké spektrum bývania, od pôvodných panelových domov až po moderné novostavby. V tomto kontexte sa pozrieme na konkrétnu lokalitu na Šintavskej ulici, ktorá v sebe spája typické prvky petržalského sídliska s potenciálom pre moderné bývanie. Analyzujeme ponuky predaja aj prenájmu bytov v tejto oblasti, pričom sa zameriame na ich dispozície, stav, vybavenosť a okolie. Cieľom je poskytnúť komplexný pohľad na bývanie na Šintavskej ulici, ktorý bude užitočný pre potenciálnych kupujúcich aj nájomníkov.

Predajné ponuky: Pôvodný stav s potenciálom rekonštrukcie
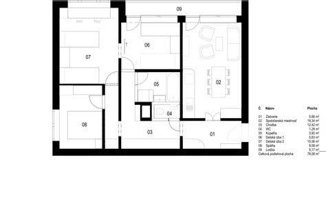
V oblasti Šintavskej ulice sa objavujú aj ponuky predaja bytov, ktoré vyžadujú rekonštrukciu, no zároveň ponúkajú jedinečnú príležitosť na prispôsobenie bývania vlastným predstavám. Jedna z takýchto ponúk opisuje 4-izbový byt s výmerou 84 m² plus 2 loggie (6 m²) na 1. nadzemnom podlaží z celkových 8 poschodí v zateplenom panelovom dome s výťahom. Kľúčovou vlastnosťou tohto bytu je, že všetky izby sú nepriechodné, čo zabezpečuje súkromie a funkčné rozdelenie priestoru. Pôvodný stav kúpeľne a WC, ktoré sú umakartové, naznačuje potrebu kompletnej modernizácie. Dispozícia bytu zahŕňa predsieň, štyri samostatné izby, kuchyňu s výstupom na loggiu, kúpeľňu a samostatné WC.
Pri kúpe takéhoto bytu je dôležité zohľadniť náklady na rekonštrukciu, ktoré môžu byť značné, ale zároveň sa investícia môže vrátiť vo forme bývania na mieru. Kúpna cena bytu je spravidla navýšená o províziu realitnej kancelárie, ktorá pokrýva poplatky spojené s prevodom vlastníckych práv na katastri, kompletný právny servis, služby spojené s odovzdaním bytu a prepisom energií u dodávateľov. Realitné kancelárie často ponúkajú aj súčinnosť s financujúcou bankou klienta alebo možnosť zabezpečiť najvýhodnejšie financovanie nehnuteľnosti prostredníctvom špecializovanej hypotekárnej spoločnosti, a to bezplatne. Okrem toho môžu poskytnúť aj najvýhodnejšie a najbezpečnejšie podmienky ochrany financií pri kúpe nehnuteľnosti prostredníctvom vlastných zdrojov.

Prenájom: Zariadené byty s dôrazom na komfort
Na rozdiel od predajných ponúk, prenájom na Šintavskej ulici a v jej blízkom okolí často predstavuje bývanie, ktoré je už kompletne zariadené a pripravené na okamžité nasťahovanie. Príkladom je 4-izbový byt s rozlohou 86 m², ktorý sa nachádza na 4. poschodí v 8-poschodovom zateplenom bytovom dome. Tento byt je prenajímaný kompletne zariadený a disponuje dvoma loggiami. Jeho výborná dispozícia zahŕňa 4 nepriechodné izby, oddelené WC od kúpeľne, samostatnú kuchyňu s presklenou loggiou a druhú loggiu umiestnenú v jednej z izieb. Každá izba je vybavená skriňou, knižnicou a posteľou. V celom byte sa nachádza plávajúca podlaha, zatiaľ čo chodba, kúpeľňa a WC majú keramickú dlažbu. V byte sú osadené plastové okná so sieťkami a žalúziami. Tento typ ponuky je ideálny pre tých, ktorí hľadajú bezstarostné bývanie bez nutnosti investovať do nábytku a vybavenia. Byt je často vhodný pre 3 až 4 osoby alebo rodinu, s bezproblémovým parkovaním pred domom.

Lokalita a občianska vybavenosť
Šintavská ulica a jej okolie v Petržalke profitujú z výbornej občianskej vybavenosti, ktorá je pre sídliskové bývanie typická. V tesnej blízkosti sa nachádzajú obchody, školy, škôlky, zdravotné stredisko a nemocnice. Dostupnosť mestskej hromadnej dopravy je vynikajúca, čo umožňuje rýchly a pohodlný prístup do centra mesta. Okrem toho sa v blízkom okolí nachádza jazero Draždiak, ktoré poskytuje možnosť relaxácie, športových aktivít a prechádzok v prírode. Táto kombinácia mestskej infraštruktúry a možností na oddych robí z lokality atraktívne miesto na život.
Často sa v ponukách prenájmu stretávame s popisom bytov, ktoré sú súčasťou zrekonštruovaných bytových domov. Tieto domy prešli zateplením obvodového plášťa a strechy, majú vlastnú plynovú kotolňu, zrekonštruovaný vstup do domu s plastovými oknami na schodiskách a v spoločných priestoroch, dlažbu a nové osvetlenie. Hlavný vchod je zabezpečený magnetickými kľúčmi a výťah je zrekonštruovaný. Energetický štítok budovy býva často označený ako "B", čo svedčí o dobrej energetickej úspornosti. Takéto modernizácie zvyšujú komfort bývania a zároveň znižujú prevádzkové náklady.

Rôznorodosť 4-izbových bytov v Petržalke
Analýza ponúk na Šintavskej ulici a v širšej oblasti Petržalky ukazuje, že 4-izbové byty sa líšia nielen výmerou, ale aj stavom, vybavením a cenou. Okrem spomínaného bytu na Šintavskej ulici sa objavujú aj ďalšie ponuky, napríklad na Lietavskej ulici, kde sa prenajíma 4-izbový zariadený byt s loggiou v tichej lokalite. Byt sa nachádza na 12. poschodí bytového domu. Na Krásnohorskej ulici v miestnej časti Lúky sa ponúka kompletne novo zrekonštruovaný a zariadený štvorizbový byt s novým nábytkom, často s požiadavkou na nefajčiarov.
Ďalšie ponuky zahŕňajú zrekonštruovaný 4-izbový byt s loggiou na Hrobákovej ulici, ktorý má výmeru 92 m² a po rekonštrukcii pozostáva z veľkej vstupnej haly, obývacej izby a spálne. V blízkosti jazera Draždiak sa prenajímal moderný a priestranný 4-izbový byt. V oblasti Lúky, na Röntgenovej ulici, sa tiež objavujú 4-izbové byty s lodžiou, pivnicou a internetom.
Ceny prenájmu 4-izbových bytov v Petržalke sa pohybujú v širokom rozmedzí, zvyčajne od približne 870 € do 1 200 € mesačne, v závislosti od stavu bytu, jeho vybavenia, lokality a veľkosti. Niektoré ponuky, ako napríklad tie v novostavbách, môžu byť aj drahšie. Dôležité je si uvedomiť, že niektoré ponuky, ktoré sa objavia online, môžu byť už prenajaté alebo predané, čo naznačuje dynamickosť realitného trhu.
Priestranný 4-izbový byt na Haanovej ulici v Petržalke
Dispozície a vybavenie bytov - Dôležité aspekty rozhodovania
Pri výbere bytu na Šintavskej ulici alebo v jej okolí je kľúčové zamerať sa na dispozíciu a vybavenie. Nepriechodné izby sú často preferované pre zabezpečenie súkromia a funkčného využitia priestoru, čo je typické pre moderné bývanie. Oddelená kúpeľňa a WC zvyšujú komfort najmä vo väčších bytoch alebo pri bývaní viacerých osôb.
Kuchyne sa líšia od malých samostatných miestností až po priestranné kuchyne spojené s jedálňou alebo obývacou izbou. Vybavenie kuchynskou linkou na mieru so zabudovanými elektrospotrebičmi, ako sú chladnička s mrazničkou, plynový či elektrický sporák, rúra, umývačka riadu, mikrovlnná rúra a digestor, je dnes štandardom pri prenajímaných bytoch.
Podlahové krytiny hrajú dôležitú úlohu v estetike a funkčnosti bytu. Kombinácia plávajúcich podláh v obytných častiach a keramickej dlažby v kúpeľni, WC a kuchyni je bežná. Plastové okná s roletami a sieťkami proti hmyzu prispievajú k tepelnej izolácii a komfortu. Vstavané skrine na mieru v predsieni či spálňach poskytujú dostatok úložného priestoru a optimalizujú využitie miestností.
Loggie a balkóny sú vítaným doplnkom, ktorý rozširuje obytný priestor a umožňuje relaxáciu na čerstvom vzduchu. Zasklené loggie navyše zvyšujú tepelnoizolačné vlastnosti bytu a môžu byť využívané celoročne.
Spoločnosť Etora a realitné služby
V kontexte ponúk na Šintavskej ulici sa spomína aj spoločnosť Etora, ktorá sa zaoberá nielen predajom a prenájmom nehnuteľností, ale aj projektovaním, výstavbou a rekonštrukciami nehnuteľností, ako aj ich financovaním a vyhľadávaním investičných príležitostí. Takéto komplexné služby môžu byť pre kupujúcich či prenajímateľov výhodné, pretože pokrývajú celý proces od výberu nehnuteľnosti až po jej financovanie a prípadnú rekonštrukciu.
Okrem toho sa v ponukách často objavujú aj informácie o realitných kanceláriách ako ROYALS, ViaReality s.r.o., Metropolitan, PrimeReality, REB.SK, AMEXA REAL, Domovia, ktoré poskytujú svoje služby pri kúpe, predaji a prenájme nehnuteľností. Tieto služby môžu zahŕňať aj sprostredkovanie kontaktov na notárov, advokátske kancelárie či hypotekárnych poradcov, čím sa celý proces kúpy alebo prenájmu stáva pre klienta jednoduchším a transparentnejším.

Bývanie v Petržalke: Výhody a špecifiká
Petržalka ako mestská časť ponúka špecifický typ bývania, ktorý je charakteristický rozsiahlymi panelovými sídliskami, ale aj postupnou modernizáciou a výstavbou nových projektov. Bývanie na Šintavskej ulici v tomto kontexte predstavuje možnosť získať byt v lokalite s dobrou dostupnosťou služieb a dopravnou infraštruktúrou, často v zateplených bytových domoch s obnovenými spoločnými priestormi.
Výhodou petržalského bývania je aj blízkosť prírody, najmä jazera Draždiak, ktoré poskytuje priestor na relax a šport. Zároveň je Petržalka dobre prepojená s centrom mesta, čo je dôležité pre ľudí pracujúcich v Bratislave.
Nevýhodou môže byť vnímanie Petržalky ako "sídliška" s nižšou atraktivitou v porovnaní s historickým centrom. Avšak, modernizácia bytových domov, budovanie novej infraštruktúry (ako napríklad električková trať) a rozvoj nových obytných zón (napríklad Slnečnice) menia túto percepciu.
Pri výbere bytu na Šintavskej ulici je dôležité zvážiť individuálne potreby a preferencie. Ponuka predaja umožňuje vytvoriť si bývanie podľa vlastných predstáv, zatiaľ čo prenájom poskytuje flexibilitu a možnosť bývať v zariadenom byte bez nutnosti počiatočných investícií do vybavenia. Bez ohľadu na to, či ide o kúpu alebo prenájom, lokalita Šintavskej ulice v Petržalke ponúka zaujímavé možnosti bývania s dobrou občianskou vybavenosťou a dopravnou dostupnosťou.