Pri výbere nového domova či pri plánovaní rekonštrukcie sa často stretávame s pojmom "pôdorys". Je to základný stavebný dokument, ktorý nám poskytuje vizuálnu predstavu o usporiadaní priestoru, rozmeroch miestností a ich vzájomnej polohe. Dvojizbový byt, ako jedna z najčastejších foriem bývania, si vyžaduje dôkladné pochopenie jeho pôdorysu, aby sme mohli efektívne využiť každý štvorcový meter a vytvoriť funkčné a príjemné prostredie. Tento článok sa zameria na rôzne aspekty pôdorysu dvojizbového bytu, od konkrétnych rozmerov a dispozícií až po širšieimplikácie výberu a dizajnu.

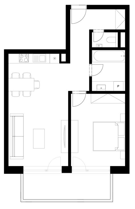
Konkrétne príklady dispozícií a rozmerov
Analýza dostupných informácií nám umožňuje nahliadnuť do konkrétnych prípadov dvojizbových bytov, ktoré boli ponúkané na predaj. Tieto príklady nám slúžia ako ilustrácia rôznych možností a ukazujú, ako sa líšia rozlohy a dispozičné riešenia.
- Byt č. 2-izbový byt 54,53 m2 + balkón: Táto ponuka naznačuje byt s pomerne štandardnou rozlohou pre dvojizbový byt. Prítomnosť balkóna je vítaným bonusom, ktorý rozširuje obytný priestor, najmä v teplejších mesiacoch.
- Byt č. 2-izbový byt 54,25 m2 + balkón: S takmer identickou rozlohou ako predchádzajúci byt, aj tento ponúka balkón. Rozdiel v desatinách metra štvorcového môže naznačovať mierne odlišné usporiadanie miestností alebo ich tvar.
- Byt č. 2-izbový byt 59,31 m2 + balkón: Toto je príklad väčšieho dvojizbového bytu. Väčšia rozloha môže znamenať priestrannejšie miestnosti, prípadne lepšie oddelené denné a nočné zóny, alebo dokonca možnosť umiestnenia pracovného kútika.
- Byt č. 2-izbový byt 50,43 m2 + balkón: Tento byt predstavuje menšiu variantu dvojizbového bývania. Aj v menšej rozlohe je však možné dosiahnuť funkčné riešenie, ktoré je často atraktívne z cenového hľadiska.
Dôležité je poznamenať, že všetky tieto byty boli označené ako "REZERVOVANÉ". To svedčí o ich atraktivite na trhu s nehnuteľnosťami a o dopyte po tomto type bývania. Možnosť stiahnuť si "Pôdorys poschodia 1 - 4 np." naznačuje, že tieto byty sa nachádzajú v bytových domoch s viacerými nadzemnými podlažiami, kde sa dispozícia môže mierne líšiť v závislosti od konkrétneho podlažia.

Projektové riešenie 1-izbového bytu ako príklad efektívneho využitia priestoru
Hoci sa zameriavame na dvojizbové byty, príklad projektového riešenia 1-izbového bytu v Žiline na sídlisku Solinky nám poskytuje cenné poznatky o tom, ako je možné efektívne pracovať s obmedzeným priestorom. Tento projekt je zameraný na vytvorenie modernej, funkčnej a útulnej obytnej zóny pre mladý pár alebo jednotlivca.
Byt má rozlohu 35 m2 a nachádza sa na 4. poschodí panelového domu. Vstup do bytu je cez predsieň, ktorá je vybavená vstavanou skriňou a zrkadlom. Kuchyňa je zariadená v bielo-čiernej farebnej kombinácii a disponuje všetkými potrebnými spotrebičmi, ako sú chladnička, sporák, rúra, mikrovlnka a umývačka riadu. Obývacia izba je zároveň spálňou a pracovňou. V nej sa nachádza rozkladacia pohovka, konferenčný stolík, televízor, knižnica a pracovný stôl s počítačom. Byt je zariadený v modernom štýle s použitím dreva, kovu a skla. Farebnosť bytu je zladená s podlahou z laminátu v imitácii duba. Z obývacej izby sa dá vyjsť na balkón, ktorý ponúka pekný výhľad na okolie. Kúpeľňa a toaleta sú oddelené a nachádzajú sa vedľa kuchyne. Kúpeľňa je vybavená vaňou, umývadlom, skrinkou a práčkou. Celkové náklady na projektové riešenie bytu boli 15 000 eur, vrátane nákupu nábytku a spotrebičov.
Tento príklad ukazuje, že aj v malej ploche je možné vytvoriť plnohodnotný a komfortný domov. Kľúčom je multifunkčný nábytok (rozkladacia pohovka, ktorá slúži ako posteľ aj ako sedacia súprava), premyslené úložné priestory (vstavaná skriňa v predsieni) a inteligentné rozdelenie priestoru (obývacia izba slúžiaca aj ako spálňa a pracovňa). Taktiež farebná schéma a použitie materiálov prispievajú k celkovému dojmu.
IKEA | Jak útulně zařídit malý byt
Dôležitosť pôdorysu pri výbere nehnuteľnosti
Pôdorys je jedným z prvých a najdôležitejších dokumentov, ktoré si pri výbere nehnuteľnosti prezrieme. Poskytuje nám základnú informáciu o tom, ako je byt usporiadaný a či zodpovedá našim potrebám a životnému štýlu.
- Funkčnosť: Pôdorys nám ukáže, ako sú miestnosti rozmiestnené. Je kuchyňa prepojená s obývacou izbou, alebo je oddelená? Sú spálne orientované na tichšiu stranu domu? Je dostatok priestoru na úložné skrinky? V prípade dvojizbového bytu je dôležité zvážiť, či bude jedna izba slúžiť ako spálňa a druhá ako obývacia izba/pracovňa, alebo či obe izby budú mať multifunkčné využitie.
- Veľkosť a proporcie: Rozmery miestností uvedené v pôdoryse nám pomôžu predstaviť si, či sa do nich zmestí náš existujúci nábytok, alebo či budeme potrebovať nový. Dôležité sú nielen celkové rozmery, ale aj tvar miestností. Dlhé a úzke miestnosti môžu byť zložitejšie na zariadenie ako miestnosti štvorcového tvaru.
- Prirodzené svetlo a orientácia: Hoci pôdorys priamo neukazuje orientáciu voči svetovým stranám, môžeme z neho často usudzovať, kde sa nachádzajú okná. Ideálne je, ak obytné miestnosti (spálňa, obývacia izba) smerujú na juh alebo západ pre dostatok denného svetla, zatiaľ čo menej využívané priestory (kuchyňa, kúpeľňa, komora) môžu byť orientované na sever.
- Potenciál na zmeny: Pôdorys nám môže naznačiť, či je v byte priestor na prípadné budúce úpravy. Sú steny nosné, alebo je možné ich odstrániť a vytvoriť tak otvorený priestor? Je možné zväčšiť kúpeľňu alebo kuchyňu?

Širšie súvislosti výberu bývania
Okrem samotného pôdorysu bytu je dôležité zvážiť aj širšie súvislosti, ktoré ovplyvňujú kvalitu bývania. Tieto informácie sa často spájajú s ponukami nehnuteľností a poskytujú kontext.
- Lokalita: V ponukách sa často stretávame s označeniami lokalít ako "sídlisko Solinky", "Brezová pod Bradlom", "Žaborič (HR)", "Lazy pod Makytou", "centrum mesta Levice", "Banská Bystrica", "SPA RESORT Piešťany". Každá lokalita má svoje špecifické výhody a nevýhody. Sídliská často ponúkajú kompletnú občiansku vybavenosť, zatiaľ čo pokojnejšie prostredie v prírode môže byť atraktívne pre tých, ktorí hľadajú relax a súkromie.
- Typ nehnuteľnosti: Okrem bytov sa stretávame aj s inými typmi nehnuteľností, ako sú rodinné domy ("5 IZB.ROD.DOM, POZEMOK 1.895M2, BREZOVÁ pod BRADLOM"), meštianske domy ("meštiansky dom na komerčné účely"), drevenice ("DREVENICA V HORSKOM PROSTREDÍ JAVORNÍKOV") alebo penzióny ("PREDAJ PENZIÓNU"). Každý typ nehnuteľnosti má iné nároky na údržbu a ponúka iný životný štýl.
- Novostavby vs. staršie budovy: Niektoré ponuky spomínajú "novostavbu", "moderné byty v novostavbe" alebo "novovybudoávaný obytný park". Novostavby často ponúkajú moderné technické riešenia, energetickú efektívnosť a možnosť výberu štandardu. Staršie budovy môžu mať svoje čaro a potenciál na rekonštrukciu, ale môžu si vyžadovať aj vyššie náklady na údržbu.
- Investičný potenciál: Niektoré ponuky explicitne uvádzajú "Investičná príležitosť" alebo "vhodné ako investícia". Pri výbere nehnuteľnosti je dôležité zvážiť nielen vlastné bývanie, ale aj jej potenciálnu hodnotu v budúcnosti. Lokalita, stav nehnuteľnosti a dopyt na trhu sú kľúčové faktory.

Trendy v bývaní a dizajne
Informácie o konkrétnych bytoch, ako aj o projektovom riešení 1-izbového bytu, nám naznačujú určité trendy v modernom bývaní.
- Minimalizmus a funkčnosť: Všetky uvedené príklady smerujú k efektívnemu využitiu priestoru. Dôraz sa kladie na multifunkčný nábytok, premyslené úložné priestory a čisté línie.
- Moderný štýl: Použitie materiálov ako drevo, kov a sklo, ako aj zladená farebná schéma (napr. bielo-čierna kombinácia v kuchyni alebo imitácia duba na podlahe), sú typické pre moderný interiér.
- Prepojenie interiéru s exteriérom: Balkóny a loggie sú často spomínané ako súčasť bytov, čo naznačuje túžbu po prepojení vnútorného obytného priestoru s vonkajším prostredím.
- Energetická efektívnosť a ekológia: Hoci to nie je priamo spomenuté v poskytnutých textoch, pri moderných novostavbách je to čoraz dôležitejší faktor. Dvojité okná, kvalitná izolácia a efektívne vykurovacie systémy prispievajú k zníženiu nákladov na energie a k šetrnejšiemu prístupu k životnému prostrediu.
- Technologické inovácie: Vybavenie moderných kuchýň všetkými potrebnými spotrebičmi, vrátane umývačky riadu, je dnes štandardom. V budúcnosti môžeme očakávať aj väčšie prepojenie s inteligentnými domácimi systémami.
Pochopenie pôdorysu dvojizbového bytu je kľúčové nielen pre jeho praktické využitie, ale aj pre celkové uspokojenie z bývania. Poskytuje nám základný rámec, s ktorým môžeme ďalej pracovať pri zariaďovaní, rekonštrukcii alebo pri výbere nového domova, ktorý bude zodpovedať našim individuálnym potrebám a životnému štýlu.