Každý, kto už má zrealizovaný svoj vysnívaný dom či chatu, často stojí pred praktickým problémom: kam zaparkovať auto, uskladniť náradie, prípadne ako oplotiť pozemok alebo postaviť altánok, kde si oddýchne s rodinou či posedí s kamarátmi. Na tieto účely slúžia drobné stavby, ktoré majú doplnkovú funkciu k hlavnej stavbe a nemôžu podstatne ovplyvniť životné prostredie. Je dôležité si uvedomiť, že drobná stavba je len doplnkovou stavbou k hlavnej stavbe a jej realizácia si vyžaduje určité povolenie.

Čo definuje drobnú stavbu a aké sú jej limity?
Podľa stavebného zákona je drobná stavba definovaná ako samostatne stojaci objekt, konštrukčne oddelený od hlavnej stavby. Jej funkcia je doplnková k hlavnej stavbe, či už ide o stavbu na bývanie, občianske vybavenie, výrobu, skladovanie alebo individuálnu rekreáciu. Stavebný zákon presne určuje veľkostné a funkčné limity, ktoré musia byť dodržané, aby bola stavba považovaná za drobnú.
Medzi typické drobné stavby patria napríklad:
- Prístrešky: Konštrukcie slúžiace na ochranu pred nepriaznivým počasím.
- Práčovne a úschovne bicyklov: Menšie objekty s úložnou funkciou.
- Garáže: Ak spĺňajú stanovené rozmery a funkciu, môžu byť klasifikované ako drobné stavby.
- Altánky a pergoly: Miesta na oddych a relaxáciu.
- Bazény: S určitým obmedzením rozlohy.
Konkrétne, prízemia stavby s maximálnou zastavanou plochou do 25 m² a výškou do 5 metrov sú obvykle považované za drobné stavby. Pre bazény platí, že na tie s rozlohou do 25 m² postačuje ohlásenie drobnej stavby. Ak je rozloha bazéna nad 25 m², už je potrebné stavebné povolenie.
Povolenie drobnej stavby: Oznámenie alebo stavebné povolenie?
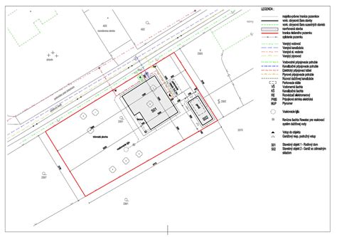
Vybavenie ohlásenia drobnej stavby je vcelku jednoduchá záležitosť, ktorú by mal zvládnuť každý stavebník. Základom je podklad, ktorého súčasťou je zakreslenie polohy objektu do katastrálnej mapy. Na tomto situačnom výkrese musia byť vyznačené odstupové vzdialenosti od susedných nehnuteľností s kótami, ako aj existujúce inžinierske siete na pozemku. Je dôležité, aby bolo jasné, že konštrukcia drobnej stavby (najmä základy) nepresahuje na susedný pozemok.
Obec vydá povolenie na základe ohlásenia drobnej stavby. Všetky potrebné tlačivá sa dajú stiahnuť na webových stránkach obecných úradov. Úplne na začiatku je však dobré si celý zámer drobnej stavby vopred prekonzultovať na obecnom úrade. Odporúča sa aj konzultácia s architektom, prípadne statikom, najmä ak ide o technicky náročnejšiu konštrukciu.
Nový stavebný zákon od apríla zavádza veľké zmeny. Na tieto stavby už nepotrebujete povolenie
Ak ste pracovne či inak časovo zaneprázdnený, je možné poveriť vybavením ohlásenia inú osobu. V takom prípade je potrebná plná moc, ktorá musí obsahovať údaje o stavebníkovi aj o subjekte (fyzická alebo právnická osoba), ktorý bude činnosť vykonávať. Ak by realizáciu drobnej stavby zabezpečovala stavebná firma, bude potrebné k žiadosti o vydanie ohlásenia priložiť jej výpis z obchodného registra.
V prípade, že budete drobnú stavbu realizovať svojpomocne, musíte zabezpečiť stavebný dozor s príslušným oprávnením. Stavebný dozor musí vypracovať vyhlásenie, že stavbu bude dozorovať.
Odstupové vzdialenosti a súhlas suseda
Vzdialenosť drobnej stavby od hranice susedného pozemku musí byť podľa stavebného zákona minimálne 2 metre. Tento odstup je dôležitý z viacerých dôvodov: zabezpečenie dostatočného priestoru medzi stavbami, ochrana súkromia a zaistenie bezpečnosti. Vlastníkovi susednej nehnuteľnosti je vhodné predložiť situačný výkres s vyznačenými odstupovými vzdialenosťami. Vhodné je susedovi ukázať aj nákres drobnej stavby, kde sú znázornené pohľady na stavbu a jej materiálové riešenie.
V praxi sa často stretávame s negatívnym javom, že stavebníci podceňujú význam podania žiadosti o ohlásenie drobnej stavby. Argumentujú tým, že ide o malú, rozmerovo a dispozične „nepodstatnú stavbu“ uskutočnenú na vlastnom pozemku. No s takýmito úvahami sa môžete neskôr dostať do problémov.
Dôsledky "čiernych stavieb"
Situácia sa vám skomplikuje, ak by ste chceli nehnuteľnosť, napríklad rodinný dom, predať a zistil by sa rozpor medzi skutočným stavom na pozemku a stavom zapísaným na katastri, kde by vaša „čierna stavba“ neexistovala. Tento istý problém by mohol nastať aj pri dedičskom konaní, pri vypracovávaní znaleckého posudku na vašu nehnuteľnosť. Isté je, že stavba (hoci aj drobná) postavená bez povolenia má aj nižšiu hodnotu a znalec musí túto skutočnosť v určovaní jej ceny zohľadniť.

Čo je však najpodstatnejšie, od 1. apríla 2024 vstúpila do platnosti novela stavebného zákona, podľa ktorej „čierne“ drobné stavby nebude možné vôbec legalizovať. Bude nutné ich odstránenie.
Geometrický plán a súpisné číslo
Ak ide o nadzemnú stavbu, je potrebné dať geodetovi vyhotoviť geometrický plán, ktorý dá overiť na príslušnom katastri. Následne s overeným geometrickým plánom požiadajte obec o vydanie súpisného čísla. Obec rozhodne, či bude nutné na drobnú stavbu súpisné číslo vydať, alebo či môže byť vaša stavba bez neho.
Konzultácia s odborníkmi a projektantom
Najefektívnejším variantom je, ak stavebník má vopred premyslenú polohu, tvar a rozmery všetkých doplnkových stavieb ešte pred začatím projekčnej prípravy svojho zámeru (napríklad pri stavbe rodinného domu). Projektant tieto objekty projekčne pripraví ešte v čase, keď sa rieši projekt na stavebné povolenie. Ich schválenie bude v takomto prípade predmetom jedného schvaľovacieho procesu pre všetky doplnkové stavby a objekty v rámci stavebného povolenia.
Stavebné povolenie od vydania právoplatnosti platí dva roky. Ak však v rámci tejto lehoty stavebník stavbu len zaháji, povolenie nestráca platnosť ani po uplynutí dvoch rokov.
Záverom by sme pripomenuli, že procesy týkajúce sa ohlásenia drobnej stavby sa môžu meniť v závislosti od požiadaviek stavebného úradu, mesta alebo obce. Preto je vždy najlepšie informovať sa priamo na príslušnom úrade.