Pri výbere pozemku a projektu rodinného domu začína náročná cesta za vysnívaným domovom. Väčšina z nás v ňom plánuje stráviť značnú časť svojho života, preto výber vhodného projektu nepodceňujte. Projekty domov si u nás viete vybrať nielen na základe ich vzhľadu, ale aj podľa pôdorysu, počtu izieb či tvaru do L. Na začiatku sa zamerajte na veľkosť domu, požadované súkromie, ako ho chcete zariadiť a na veľkosť a tvar stavebnej parcely. Skúste si odpovedať na tieto základné otázky, pomôžu vám sa ľahšie rozhodnúť: Koľko poschodí chcete, aby mal váš dom? Koľko spální potrebujete? Potrebujete aj hosťovskú izbu či pracovňu? V ktorej miestnosti sa najviac zdržiavate? (mala by byť najväčšia) Chcete okná na celú stenu alebo klasické okná s parapetom? Plánujete aj krytú terasu? Vadia vám okná na bočných stranách ku susedom? Sú izby dostatočne veľké, aby ste ich zariadili podľa svojich predstáv? Bude mať dostatok ukladacieho priestoru? Je váš pozemok rovný alebo vo svahu? Na ktorú svetovú stranu by mali byť vaše izby orientované? Viete si v ňom predstaviť bývať aj o 10 rokov?
Už máte jasnejšie? Možno sa stále neviete rozhodnúť, či si vybrať bungalov alebo poschodový dom. Vypísali sme preto ich výhody.
Výhody bungalovu
Bungalov je typ domu, ktorý dnes uprednostňuje veľa ľudí, pretože ponúka celý rad výhod. My sme sa pozreli na projekty s plochou strechou, ktoré okrem praktickej stránky ponúkajú aj zaujímavý moderný vzhľad. Hlavným plusom bungalovov je práve jednopodlažná plocha, vďaka čomu ide o bezbariérové domy, ktoré môžu mať priamy kontakt so záhradou. Mnohé z nich sa projektujú tak, aby ponúkali vstup na terasu z dennej časti, ale aj zo spální. Umožňujú tiež intenzívnejší kontakt medzi jednotlivými členmi rodiny.

- Bezbariérovosť: Vybudujete v ňom ľahšie bezbariérové prístupy. Bungalovy sú bezbariérové, čo je ideálne pre osoby s obmedzenou mobilitou, starších ľudí alebo rodiny s malými deťmi.
- Rýchlosť výstavby: Výstavba rodinného bungalovu je oproti poschodovému domu obvykle o pár mesiacov rýchlejšia.
- Dispozičná flexibilita: Miestnosti sa dajú navrhnúť bez ohľadu na náväznosť s ďalším podlažím.
- Široká ponuka: Ponuka projektov bungalovov je väčšia ako pri ostatných typoch katalógových projektov domov. Je to preto, že sú stále veľmi populárne a architekti sa radi venujú ich inovatívnym dizajnom.
Výhody poschodového domu
Napriek rastúcej popularite bungalovov si poschodové domy stále držia svoje miesto na trhu. Ich výhody sú citeľné najmä pri obmedzenom priestore na pozemku alebo pri špecifických požiadavkách na bývanie.
- Oddelenie zón: Jednoduchšie oddelíte dennú a nočnú časť domu. To znamená, že obytné priestory, kde sa odohráva denný život, môžu byť jasne oddelené od spální a súkromných zón.
- Výhľad: Z vrchného podlažia získate lepší výhľad na okolie. V závislosti od lokality to môže byť významný benefit.
- Využitie svahovitého terénu: Dve poschodia poskytujú možnosť vytvorenia polozapusteného podlažia do svahovitého pozemku, čo môže byť praktické a architektonicky zaujímavé riešenie.
- Úspora plochy: Ušetríte plochu na pozemku, čo je dôležité najmä pri menších parcelách.
Katalógové projekty vs. Individuálne projekty
Pri rozhodovaní, ktoré moderné projekty rodinných domov sú pre vás najvhodnejšie, sa skôr zamerajte na ich funkčnosť ako na pekné vizualizácie. Svoje rozhodnutia preberte aj s členmi domácnosti, ktorí tam budú tiež bývať. Vďaka tomu zistíte, aké potreby a požiadavky majú vaše ratolesti či partner.
Katalógové projekty rodinných domov
Katalógové projekty rodinných domov sú ideálnou voľbou pre rovinaté pozemky. Rovnaké uplatnenie nájdu na vidieku i v mestách. Katalógové projekty ponúkajú stovky elegantných aj architektonicky odvážnejších riešení. V katalógu sú tak prakticky zastúpené klasické rodinné domy, vily, dvojpodlažné domy a samozrejme bungalovy, ktoré sú ešte stále snom mnohých slovenských domácností.
Kvalitné katalógové projekty domov sú samozrejme komplexné a podrobné. Obsahujú výkresy pôdorysov, rezov a pohľadov i presné výkazy výrobkov na objednávanie. Projekty katalógových domov obsahujú aj podrobné výkresy zábradlí, komínov a iných detailov. Ich súčasťou sú projekty profesií, ako sú statika, vykurovanie, zdravotechnika, elektroinštalácie, či požiarna ochrana. Dôležitou súčasťou projektu je projektové hodnotenie energetickej hospodárnosti budovy, či výkaz výmer a položkový rozpočet.
Výhodou katalógového projektu rodinného domu je tiež výhodná cena a rýchle dodanie.
Katalógové projekty so zmenou
Projekt so zmenou je šťastným riešením, ak sa vám páči konkrétny katalógový projekt, ale napriek tomu by ste v ňom chceli urobiť drobné úpravy na vonkajšej architektúre rodinného domu alebo v jeho dispozičnom riešení. Vďaka katalógovému projektu so zmenou sa vyhnete individuálnemu projektu domu, ušetríte a budete ho mať k dispozícii oveľa rýchlejšie, ako by tomu bolo pri individuálnom projekte.
Individuálne projekty
Individuálne projekty rodinných domov sú ideálne pre náročných investorov a oplatí sa po nich siahnuť aj pri nadštandardnom alebo svahovitom pozemku. Pri tvorbe individuálneho projektu architekt identifikuje a zohľadní nielen vaše požiadavky, ale zhodnotí aj všetky silné a slabé miesta pozemku. Výsledkom bude projekt rodinného domu, ktorý majiteľom ponúkne patričný komfort a v prípade svahovitého pozemku neraz aj nádherný, ba až závideniahodný výhľad.
4-iz. rodinný dom na pozemku 8 árov - SNP, Svidník - SK0891
Obdĺžnikový bungalov: Štýl a funkčnosť
Rodinné domy Bungalov sú prízemné rodinné domy rozmanitých tvarov pôdorysov. Môžu mať všetky druhy prestrešenia, od najjednoduchšej sedlovej strechy, valbovej až po plochú. Môžu mať tiež rozličný tvar a sú vhodné do všetkých druhov zástavby. Rodinné domy Bungalov sú v súčasnosti najobľúbenejším typom domov. Tieto prízemné rodinné domy majú jednotlivé miestnosti navzájom prepojené chodbou. Ich rozloženie podporuje rodinný život a spoločné trávenie času v dennej časti domu, v nočnej časti nájdete súkromie na odpočinok.
V porovnaní s poschodovými domami sú rodinné domy Bungalov jednoduchšie na výstavbu. Neznamená to vždy tiež úsporu nákladov, tá sa bude odvíjať od zvolených materiálov. S vyššími nákladmi, vzhľadom na väčšie rozmery, je nutné počítať na základy a strechu.
Špecifiká obdĺžnikového bungalovu
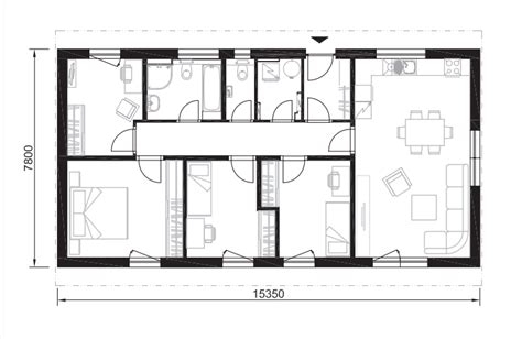
Štvorizbový bungalov v elegantnom obdĺžnikovom tvare ponúka priestrannú obývaciu izbu, ideálnu na relax a spoločenské chvíle, a otvorený priestor pre jedálenský stôl. Moderná kuchyňa s praktickým ostrovčekom je navrhnutá pre maximálne pohodlie a funkčnosť. Tento dom disponuje tromi komfortnými spálňami, samostatným WC a menšou komorou pre úložné priestory.

Prízemný dom s podlhovastým pôdorysom vyrieši aj problém s úzkou parcelou. Tento dom má vstup orientovaný zboku, zatiaľ čo okná všetkých obytných miestností architektka orientovala na rovnakú svetovú stranu. Keďže kvôli podlhastej dispozícii vznikol pomerne dlhý komunikačný priestor, autorka ho elegantne vyriešila úložnými priestormi, ktoré situovala po celej dĺžke fasády. Rodičovskú spálňu oddelila od zvyšku izieb (venovaných napríklad deťom či hosťom) na opačné konce domu, čím zabezpečila isté súkromie obidvom generáciám.
Bývanie v prízemnom rodinnom dome vám umožní bývať bližšie k prírode. Mnohé projekty bungalovov sú navrhnuté tak, aby sa dalo vychádzať na terasu nielen z obývačky alebo kuchyne. Vybrať si môžete aj rodinné domy Bungalov s východom do záhrady aj zo spálne alebo tiež detských izieb.
Chceli by ste minimalizovať bariéru medzi interiérom a exteriérom? Rodinné domy Bungalov môžu mať rôzne typy striech. Ak chcete, aby mal váš rodinný dom viac tradičný vzhľad, zvoľte pultovú, valbovú alebo sedlovú strechu. Milovníkov modernej architektúry osloví tiež plochá strecha. Na ten istý pôdorys sme pri návrhu niektorých projektov použili rôzne typy striech Bungalov 166 a Bungalov 166/PS.
Pri výbere projektu na rodinný dom Bungalov nezabudnite vziať do úvahy veľkosť a tvar vášho pozemku. Bungalovy zaberajú, spravidla, väčšiu plochu ako poschodové domy. S ohľadom na veľkosť a tvar pozemku sme pre vás navrhli rôzne projekty bungalovov. Myslieť je potrebné aj na orientáciu domu voči svetovým stranám. Správna orientácia domu vám umožní využívať maximum denného svetla. Slnečné lúče vám prinesú tiež úsporu na nákladoch na vykurovanie.

Technická špecifikácia a realizácia
Všetky projekty vypracovávame tak, aby ste dostali nielen stavebné povolenie, ale dokázali dom aj bez problémov postaviť. Preto obsahujú:
- Projekt stavebnej časti: sprievodná správa, súhrnná technická správa, výkresy v mierke 1:50 - základy, všetky pôdorysy, rez, krov, všetky pohľady, detaily, výpisy podláh, okien, dverí, muriva, strešnej krytiny a výkaz výmer a materiálov.
- Projekt statiky: technická správa, statický výpočet, výkresy skladby stropov, výkresy výstuže a tvaru stropných dosiek, vencov, prekladov a schodíšť a výkaz materiálu.
- Projekt vykurovania: technická správa, výpočet spotreby energie na vykurovanie, výkresy rozvodov ústredného kúrenia, schéma zapojenia kotla, umiestnenie, dimenzie vykurovacích telies a výkaz materiálu. Projekt vykurovania je vypracovaný pre plynový alebo elektrický zdroj vykurovania (klient si môže zvoliť alternatívu v rámci ceny projektu).
- Projekt zdravotechniky: technická správa, výkresy vnútorného vodovodu, domovej kanalizácie, domového plynovodu a výkaz materiálu.
- Projekt elektroinštalácií: technická správa, rozvody zásuvkovej, svetelnej a motorickej elektroinštalácie, slaboprúdové rozvody, schéma rozvádzača, výkres bleskozvodu a výkaz materiálu.
- Projekt rekuperácie: technická správa, výkres.
Stupeň realizácie
Ide o stavbu obvodovej konštrukcie domu s priečkami a presterešením podľa špecifikácie stavebníka. Obvodové keramické steny Vám prinesieme už so základným zateplením. V stenách máte predprípravu pre rozvody elektra a vody (trubky, krabice, …). Všetky ukončovacie práce si dorobí stavebník vo vlastnej réžii. Štandardný typ krovu je väzníkový drevený krov - sedlová strecha. V prípade záujmu je možné si doobjednať iný typ a konštrukciu strechy.
Exteriér montovaného keramického domu je dokončený na kľúč. Rodinný dom je zvonka komplet hotový vrátane vchodových dverí, okien, strešnej krytiny a zvodového systému, vonkajších omietok a vo vami zvolenom farebnom odtieni. Štandardný typ zateplenia je minerálna vlna, v prípade požiadavky je možné typ a hrúbku zateplenia upraviť. Montovaný keramický dom je dokončený zvnútra aj zvonka a je pripravený ku kolaudácii. Pred nasťahovaním si klient potrebuje dokúpiť už iba konečné podlahové vrstvy v obytných miestnostiach (kúpelne sú ukončené so sanitou, obkladom aj dlažbou), kuchynskú linku, svietidlá a interiérové dvere. Všetky ostatné remeselné práce sú ukončené na 100%.
Cenová ponuka a financovanie
Cenová ponuka na zdravý keramický dom až do štádia kolaudácie je na vyžiadanie.
EKONOMICKÉ VÝHODY:
- Rýchla realizácia výstavby.
- Nízke výrobné náklady.
- Nízka spotreba energií počas bývania.
Pre vypracovanie čo najpresnejšej cenovej ponuky potrebujeme poznať lokalitu výstavby. Upresnenie lokality výstavby nám pomôže zistiť miestne podmienky, určiť najlepší spôsob dopravy a stanoviť technický spôsob výstavby.
tags: #obdlznikovy #bungalov #obrazok