V dnešnej uponáhľanej dobe sa čoraz viac ľudí rozhoduje pre alternatívne formy bývania, ktoré spĺňajú nároky na moderný životný štýl a zároveň zohľadňujú ekonomickú efektivitu. Montované domy v nízkoenergetickom štandarde si pomaly, ale isto získavajú dominantné postavenie na stavebnom trhu, čím predbiehajú tradičné murované stavby. Ich hlavnou devízou je predovšetkým rýchlosť výstavby, ktorá v dnešnej uponáhľanej dobe predstavuje neoceniteľnú výhodu. Okrem toho ponúkajú celý rad ďalších benefitov, ktoré ich robia atraktívnou voľbou pre jednotlivcov, páry aj rodiny hľadajúce cenovo dostupné a zároveň kvalitné bývanie.
Výhody nízkoenergetických montovaných domov
Montované domy v nízkoenergetickom štandarde predstavujú moderné a efektívne riešenie bývania. Ich obľúbenosť rastie vďaka kombinácii rýchlej realizácie, nízkych prevádzkových nákladov a vysokej kvality práce. Spoločnosti, ktoré sa na ich výstavbu zameriavajú, často zdôrazňujú individuálny prístup ku každému zákazníkovi, čo znamená, že projekt je prispôsobený priamo jeho potrebám a želaniam.

Jednou z kľúčových výhod je rýchla výstavba. V porovnaní s klasickými murovanými domami, kde proces výstavby môže trvať mesiace až roky, je montovaný dom postavený v oveľa kratšom čase. Tento časový faktor je pre mnohých stavebníkov rozhodujúci. Okrem toho, že dom je postavený rýchlo, je často dodávaný v štandarde „na kľúč“, čo znamená, že po dokončení je pripravený na okamžité nasťahovanie.
Nízkoenergetický štandard je ďalším významným benefitom. Tieto domy sú navrhnuté tak, aby minimalizovali spotrebu energie na vykurovanie a chladenie. Vďaka kvalitnej izolácii a efektívnej konštrukcii dosahujú vynikajúce tepelno-izolačné vlastnosti, čo sa priamo premieta do nízkych prevádzkových nákladov. V praxi to znamená výrazne nižšie účty za energie, čo je dlhodobo udržateľné a ekonomicky výhodné.
Spoločnosti ako MIPAV s.r.o. kladú dôraz na seriózny individuálny prístup a kvalitnú prácu. Od prvého kontaktu, cez fázu projektovania až po samotnú realizáciu, komunikujú so zákazníkom a snažia sa splniť jeho sen o bývaní. Tento prístup zabezpečuje, že výsledný dom zodpovedá predstavám klienta a je postavený s dôrazom na detail a kvalitu.
Realizácia priamo na mieste stavby je ďalšou výhodou montovaných domov. Všetky konštrukcie sú pripravené v závode a na pozemok sú privezené pripravené na montáž. Tento proces je rýchly a minimalizuje rušenie okolia. Flexibilita pri plánovaní a realizácii umožňuje stavebníkom prispôsobiť projekt ich individuálnym potrebám, a to aj počas výstavby. Možnosť postupného financovania podľa etáp výstavby je tiež vítanou možnosťou, ktorá uľahčuje správu financií počas celého procesu.
Unikátnym prvkom, ktorý niektorí výrobcovia ponúkajú, je jedinečná striekaná izolácia, ktorá zabezpečuje dokonalé utesnenie a minimalizuje tepelné mosty. To prispieva k celkovej energetickej efektívnosti domu. V neposlednom rade, montované domy často ponúkajú väčšiu úžitkovú plochu pri rovnakej zastavanej ploche v porovnaní s murovanými domami, čo je výsledkom tenších, ale rovnako kvalitných obvodových stien.
Cenové hladiny a typové domy
Pri hľadaní najlacnejšieho 4-izbového montovaného domu je dôležité zorientovať sa v ponuke a cenových kategóriách. Katalógy montovaných domov často delia ponuku do cenových hladín, kde sa dajú nájsť cenovo najvýhodnejšie riešenia. V cenovej hladine 30 000 až 40 000 eur sa nachádza najviac projektov, ktoré sú navrhnuté s cieľom ponúknuť čo najlepší pomer cena/výkon.

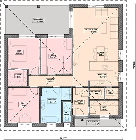
V tejto kategórii možno nájsť úsporné štvorizbové bungalovy. Tieto domy sú často navrhnuté tak, aby maximalizovali úžitkovú plochu a zároveň minimalizovali stavebné náklady. Príkladom je úsporný trojspálňový bungalov v tvare štvorca s oddelenou dennou a nočnou časťou. Takáto dispozícia zabezpečuje súkromie a zároveň efektívne využitie priestoru. Až tri spálne na relatívne malej zastavanej ploche (napríklad 105 m²) výrazne znižujú obstarávaciu cenu aj prevádzkové náklady.
Niektoré spoločnosti ponúkajú priamo modulové domy, ktoré sú pripravené ako hotové riešenia na kľúč. Tieto domy nie je možné upraviť na mieru, ale ich výhodou je predovšetkým vysoká rýchlosť výstavby a výhodné finančné podmienky. Takéto riešenia sú ideálne pre tých, ktorí hľadajú rýchle a cenovo dostupné bývanie.
V ponuke sa nachádzajú aj trojspálňové bungalovy s oddelenou hlavnou spálňou od ostatných dvoch izieb, kde hlavná spálňa môže mať dokonca vlastnú kúpeľňu. Obývacia izba je často spojená s kuchyňou, čo vytvára moderný a otvorený priestor.
Pre úzke pozemky sú k dispozícii špeciálne navrhnuté projekty, ktoré efektívne využívajú obmedzený priestor. Tieto domy môžu byť aj v tvare L, čo umožňuje lepšie začlenenie do pozemku a vytvorenie príjemného vonkajšieho priestoru. Niektoré projekty sú navrhnuté tak, aby menšiu časť domu bolo možné plnohodnotne využívať ako samostatnú bytovú jednotku pre hostí.
Dôležité je aj rozlišovať medzi štandardnou ponukou a domami na mieru. Zatiaľ čo štandardné domy sú cenovo dostupnejšie a rýchlejšie realizovateľné, domy na mieru umožňujú plnú individualizáciu projektu podľa predstáv klienta. Väčšina spoločností ponúka možnosť úpravy typových projektov, aby čo najlepšie vyhovovali individuálnym potrebám a možnostiam pozemku.
Technické riešenia a štandardy výstavby
Pri výbere montovaného domu je dôležité zamerať sa na technické riešenia a štandardy, ktoré sú pri výstavbe použité. Najlacnejšie 4-izbové montované domy síce kladú dôraz na cenu, ale nemali by zanedbávať kvalitu a energetickú efektívnosť.

Mnohé moderné montované domy využívajú SIP Grey panely na obvodové a nosné steny. Tieto panely s hrúbkou 170 mm a výškou 2800 mm zabezpečujú dobré tepelno-izolačné vlastnosti. V stenách sú často predprípravy pre rozvody elektriny a vody, čo zjednodušuje následné inštalácie.
Fasádny zatepľovací systém je kľúčový pre energetickú efektivitu. Bežným štandardom je zateplenie EPS 100 mm s kvalitnou povrchovou úpravou, ako je silikónová omietka. V prípade potreby je možné upraviť typ a hrúbku zateplenia podľa požiadaviek klienta.
Strešná konštrukcia býva najčastejšie väzníkového typu so sedlovou strechou. Používajú sa kvalitné strešné krytiny, ako napríklad škridloplech, a kompletný odkvapový systém. Pre domy s rovnou strechou sa používajú špecifické technológie s fóliovou izoláciou.
Okná a dvere sú dôležitým prvkom pre tepelné straty. V nízkoenergetických domoch sa štandardne používajú plastové okná s kvalitným profilom (napr. Salamander) a izolačným trojsklom, ktoré dosahujú nízky koeficient prestupu tepla Uw. Vchodové dvere sú zvyčajne plastové, s dostatočnou tepelnou izoláciou.
Vykurovanie v nízkoenergetických domoch je často riešené elektrickými digitálnymi konvektormi s automatickou reguláciou teploty. Alternatívou môže byť aj tepelné čerpadlo pre ohrev vody, ktoré je ekologické a efektívne. Systém rekuperácie vzduchu zabezpečuje neustálu výmenu vzduchu pri minimalizácii tepelných strát.
Vnútorné rozvody vody a kanalizácie sú samozrejmosťou. Predpríprava pre práčku a umývačku riadu je štandardom. Podlahy sú zvyčajne realizované s tepelnou izoláciou a poterom, s následnou pokládkou podlahových krytín podľa výberu klienta.
Interiérové úpravy zahŕňajú sadrokartónové systémy na stenách a stropoch, s kvalitnou izoláciou. Obklady sú realizované v kúpeľniach a WC do požadovanej výšky. Interiérové dvere sú dodávané s oblôžkovými zárubňami a kovaním.
Pri stavbe domu „na kľúč“ je dôležité presne definovať, čo je zahrnuté v cene. Zvyčajne to zahŕňa kompletné vnútorné elektroinštalácie, montáž sanity, interiérových dverí a v prípade väčších domov aj kuchynskú linku a vstavané skrine.
Financovanie a proces výstavby
Proces získania 4-izbového montovaného domu, najmä ak hľadáme cenovo dostupné riešenie, vyžaduje si dobré plánovanie financií. Spoločnosti ponúkajú rôzne možnosti financovania, vrátane postupného financovania podľa etáp výstavby, čo môže uľahčiť správu financií.

Pri komunikácii s predajcom je dôležité presne sa informovať o tom, čo je zahrnuté v cene domu „na kľúč“. Niektoré položky, ako napríklad kuchynská linka alebo vstavané skrine, môžu byť zahrnuté len pri domoch s určitou úžitkovou plochou. V prípade menších domov môžu byť tieto prvky za príplatok, ale často je možné si vybrať ich farbu, štýl a vnútorné dispozície.
Stupeň realizácie je dôležitý pojem, ktorý opisuje, v akej fáze je dom dokončený. Existujú rôzne stupne, od hrubej stavby až po úplné dokončenie na kľúč. Pri najlacnejších riešeniach je často možné si niektoré dokončovacie práce (napr. maľovanie, pokládka podlahových krytín) zrealizovať aj svojpomocne, čím sa ďalej znižujú náklady.
Lokalita výstavby je kľúčová pre vypracovanie presnej cenovej ponuky. Miesto stavby ovplyvňuje logistiku dopravy materiálu a technický spôsob výstavby. Preto je dôležité uviesť presnú lokalitu pri dopyte.
Niektoré spoločnosti ponúkajú bezplatnú službu pri sprostredkovaní hypotekárneho či iného úveru, čo môže byť pre stavebníkov vítanou podporou.
Proces výstavby montovaného domu je zvyčajne rýchly a efektívny. Po dohode na projekte a financovaní nasleduje príprava základovej dosky, montáž stien a strechy, a následne vnútorné a vonkajšie dokončovacie práce. Celý proces od podpisu zmluvy po odovzdanie domu môže trvať len niekoľko mesiacov.
Úsporný bungalov s 4 izbami: Konkrétny príklad
V kontexte najlacnejšieho 4-izbového montovaného domu sa často stretávame s projektmi úsporných bungalovov. Tieto domy sú navrhnuté s dôrazom na efektívne využitie priestoru a minimalizáciu nákladov.

Predstavme si úsporný trojspálňový bungalov v tvare L. Tento typ domu ponúka oddelenú dennú a nočnú časť, čo zabezpečuje dostatočné súkromie pre členov rodiny. Kuchyňa je spojená s obývacím priestorom, čím sa vytvára otvorený a vzdušný priestor. Takáto dispozícia je ideálna pre rodiny, ktoré trávia veľa času spoločne.
Počet izieb je štyri, čo zahŕňa tri spálne a obývaciu izbu. K tomu sa pridáva samostatné WC a kúpeľňa, prípadne technická miestnosť. Celková zastavaná plocha sa pohybuje okolo 105 m², čo je relatívne úsporné. Toto riešenie je vhodné aj na užšie pozemky, kde je potrebné efektívne využiť každý meter štvorcový.
Výhody takejto dispozície:
- Oddelená nočná a denná časť: Zabezpečuje súkromie a pokoj pre spálne.
- Otvorený obývací priestor: Podporuje rodinnú pohodu a spoločné aktivity.
- Úsporná zastavaná plocha: Znižuje náklady na výstavbu a pozemok.
- Flexibilita umiestnenia na pozemku: Tvar L umožňuje lepšie prispôsobenie rôznym orientáciám a tvarom pozemkov.
Pri takýchto projektoch je dôležité si overiť, čo presne je zahrnuté v cene. Ako je spomenuté, niektoré dokončovacie práce môžu byť riešené svojpomocne alebo za príplatok. Napríklad, štandardne býva dom zvonka komplet hotový, vrátane okien, strešnej krytiny a omietok. Zvnútra sú však niektoré práce (napr. finálne podlahové krytiny, kuchynská linka, interiérové dvere) dodatočné, pokiaľ nie je dom dodávaný priamo na kľúč.
Pri hľadaní najlacnejšieho 4-izbového montovaného domu je kľúčové porovnať ponuky od viacerých dodávateľov, dôkladne preskúmať technické špecifikácie a zistiť, čo presne je zahrnuté v cene. Nízka cena by nemala byť na úkor kvality, energetickej efektívnosti a trvanlivosti domu. Investícia do kvalitného montovaného domu sa dlhodobo oplatí vďaka nízkym prevádzkovým nákladom a komfortu bývania.
tags: #najlacnejsi #4 #izbovy #montovany #dom