Hľadáte bývanie, ktoré kombinuje pokoj vidieckého života s výhodami blízkosti hlavného mesta? Ponúkame exkluzívnu príležitosť vlastniť útulný a slnečný trojizbový byt s terasou, záhradkou a parkovacím státim v obci Zálesie. Táto vyhľadávaná lokalita, situovaná len približne 10 km od Bratislavy, ponúka ideálne prostredie pre rodiny s deťmi, páry aj jednotlivcov túžiacich po kvalitnom a pokojnom bývaní.

Priestor a dispozícia pre moderné bývanie
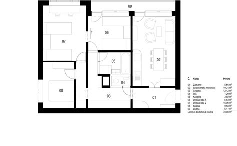
Celková plocha tohto bytu predstavuje 61,19 m², pričom rozloha priestrannej terasy dosahuje približne 11 m² a záhrada poskytuje až 92 m² súkromného exteriérového priestoru. Byt sa nachádza na prízemí rodinného domu, ktorý je rozdelený na tri bytové jednotky, pričom táto konkrétna jednotka disponuje samostatným vchodom, čo zabezpečuje maximálne súkromie.
Dispozícia bytu je navrhnutá s dôrazom na funkčnosť a komfort. Srdcom domova je obývacia izba s veľkoplošným oknom a priamym východom na terasu, ktorá je plynule prepojená s jedálenskou časťou. Samostatná a štedro dimenzovaná kuchyňa ponúka dostatok priestoru na varenie a stolovanie. Súčasťou bytu sú dve samostatné izby, pričom jedna z nich tiež ponúka priamy vstup na terasu. Komfort dopĺňa samostatná kúpeľňa, samostatné WC a praktická vstupná hala. Tento premyslený dizajn zabezpečuje dokonalé využitie celého priestoru a vytvára príjemnú atmosféru domova.

Kvalita a komfort v každom detaile
Rodinný dom, v ktorom sa byt nachádza, bol skolaudovaný v roku 2006. Jeho konštrukcia je postavená z kvalitných keramických tvárnic a je zateplená polystyrénom, čo prispieva k energetickej efektívnosti. Okná sú plastové s izolačným dvojsklom, doplnené sieťkami proti hmyzu a interiérovými hliníkovými žalúziami, ktoré zabezpečujú kontrolu nad svetlom a súkromím.
Podlahy v byte sú kombináciou kvalitných laminátových parkiet a modernej dlažby, čo dodáva interiéru eleganciu a zároveň praktickosť. Vnútorné dvere sú laminátové v obložkových zárubniach. Vykurovanie je zabezpečené teplovodným radiátorovým systémom s vlastným plynovým kotlom umiestneným v chodbe, čo umožňuje individuálnu reguláciu teploty a efektívne vykurovanie.
Kuchyňa je plne vybavená a prispôsobená potrebám každého kuchára. Ponúka dostatok úložného priestoru, veľkorysú pracovnú plochu a samozrejmosťou sú kvalitné zabudované spotrebiče vrátane plynovej varnej dosky s digestorom a elektrickej rúry. Pre maximálne využitie priestoru sú v spálni a na chodbe osadené praktické vstavané šatníkové skrine. Na chodbe je navyše nainštalovaná kvalitná klimatizácia, ktorá zabezpečí príjemnú klímu počas horúcich letných mesiacov.
Výhody rekonštrukcie interiéru nášho bývania
Exteriérové benefity pre váš voľný čas
Nesporným benefitom tohto bytu je priestranná, čiastočne zastrešená terasa, ktorá poskytuje ideálny priestor na relax a oddych po náročnom dni. Zároveň je možné ju využiť na príjemné grilovanie či posedenie s priateľmi. Orientácia terasy na južnú stranu zaručuje dostatok slnečného svitu počas celého dňa.
Udržiavaná záhrada s plochou 92 m² je pokrytá trávnikom a sú v nej vysadené okrasné dreviny, ktoré dotvárajú príjemnú atmosféru. Vďaka vyvýšeným záhonom je vytvorený tiež priestor na záhradničenie pre tých, ktorí si radi dopestujú vlastnú zeleninu či bylinky. Praktickým doplnkom je drevený záhradný domček na náradie. Celý pozemok je starostlivo oplotený, čo zaručuje maximálne súkromie a nerušené bývanie.
Nízke mesačné náklady a vynikajúca občianska vybavenosť
Mesačné náklady na bývanie sú veľmi priaznivé, predstavujú len 130 € pre 4 osoby, čo z tohto bytu robí ekonomicky výhodnú voľbu.
Obec Zálesie sa nachádza na Podunajskej nížine, obklopená malebnými poľami a riekou Malý Dunaj. Napriek svojej pokojnej atmosfére je obec v tesnej blízkosti Bratislavy, čo zabezpečuje vynikajúcu dostupnosť do hlavného mesta. Táto kombinácia "vidieckej atmosféry" s lesmi, poľami a možnosťami pre aktívny oddych, ako je cyklistika, robí zo Zálesia atraktívnu lokalitu pre ľudí, ktorí hľadajú rovnováhu medzi pracovným a súkromným životom.
Obec Zálesie sa teší obľube najmä u rodín s deťmi vďaka svojej kompletnej občianskej vybavenosti. Nájdete tu materskú školu, lekáreň, potraviny, trhovisko, reštaurácie a kaviarne, ako aj moderné detské ihriská. Pre športovo založených obyvateľov sú k dispozícii cyklistické chodníky, futbalové ihrisko a workoutové ihrisko. Výhodou je rýchly prístup do centra Bratislavy aj do Senca, či už autom alebo prostredníctvom pravidelnej prímestskej autobusovej dopravy.

Kľúčové výhody nehnuteľnosti:
- Atraktívny dizajn a využitie priestoru: Byt je navrhnutý s dôrazom na vytvorenie rodinnej atmosféry a maximálne efektívne využitie každého metra štvorcového.
- Nádherná terasa a záhrada: Priestor na relaxáciu, oddych a trávenie voľného času v súkromí vlastnej záhrady.
- Okamžite obývateľný: Byt nevyžaduje žiadne ďalšie investície, stačí si priniesť osobné veci.
- Výborná orientácia: Južná a západná orientácia bytu zabezpečuje dostatok prirodzeného svetla počas celého dňa.
- Prostredie priateľské k rodinám: Vynikajúca občianska vybavenosť a bezpečná lokalita sú ideálne pre rodiny s deťmi.
- Bezproblémové parkovanie: K bytu prislúcha parkovacie miesto, čo eliminuje starosti s hľadaním miesta na zaparkovanie.
Táto nehnuteľnosť predstavuje jedinečnú príležitosť na získanie kvalitného bývania v atraktívnej lokalite s vynikajúcim pomerom ceny a výkonu. Je ideálnou voľbou pre tých, ktorí hľadajú harmóniu medzi mestským životom a pokojom vidieka.
Je dôležité poznamenať, že inzerovaná nehnuteľnosť nie je záväznou ponukou na uzavretie zmluvy. Majiteľ nehnuteľnosti si vyhradzuje právo voľby kupujúceho podľa vlastného uváženia a dohodnutých podmienok. Uvedená cena je orientačná a môže sa meniť v závislosti od dohody s kupujúcim a podmienok majiteľa. Rozmery a plochy sú tiež orientačné a môžu sa mierne líšiť od skutočného stavu. Všetky platby sú poukazované výhradne bezhotovostne na účet v Tatra banke, čo zaručuje bezpečnosť transakcie. Fotografie, videá, 3D prezentácie, pôdorysy a popis nehnuteľnosti sú autorským právom realitnej kancelárie.
tags: #mezonetovy #byt #zalesie