Lokalita Martin-Priekopa sa stáva synonymom pre moderné a komfortné bývanie, kde sa snúbi pokoj vidieka s výhodami mestskej infraštruktúry. V tejto dynamicky sa rozvíjajúcej časti mesta vyrastá projekt rodinných domov, ktorý prináša nový pohľad na bývanie pre jednotlivcov aj celé rodiny. Ponúka poslednú novostavbu montovaného rodinného domu typu A, ktorý je navrhnutý s dôrazom na maximálne prepojenie interiéru s exteriérom a bezpečné, pokojné prostredie.

Architektonické a dispozičné riešenie
Projekt tvorí celkovo päť dvojpodlažných radových rodinných domov, ktoré sú koncipované v kompaktnom urbanistickom celku s jednotným architektonickým štýlom. Každý dom je starostlivo navrhnutý tak, aby spĺňal kritériá na pokojné a bezpečné bývanie. Všetky obytné miestnosti sú orientované výlučne do západných záhrad, ktoré priamo susedia s ďalšími záhradami s vzrastlou zeleňou, čím sa zabezpečuje súkromie a pokoj.
Dispozícia domov kládla dôraz na maximálne prepojenie interiéru s vonkajším prostredím. Na južnej a západnej fasáde v rámci prvého nadzemného podlažia sú navrhnuté veľkorysé francúzske zasklené steny s nulovým parapetom a výškou až 2,4 metra. Na druhom nadzemnom podlaží sa nachádzajú okná so zníženým parapetom. Toto riešenie zabezpečuje hlboké presvetlenie obytných miestností a lepší kontakt s exteriérom. Každý dom disponuje terasou na teréne, ako aj terasou na streche prvého nadzemného podlažia, prístupnou z obytnej miestnosti, čo rozširuje možnosti využívania vonkajších priestorov.
Celková výmera domu typu A je 189,46 m2, s pridanou plochou terasy 28,55 m2. Dom pozostáva z priestrannej kuchyne prepojenej s obývačkou, štyroch samostatných obytných miestností, dvoch kúpeľní, dvoch toaliet, technickej miestnosti a garáže. Z obývacej izby je priamy výstup na slnečnú, južne orientovanú terasu.

Štandard a kvalita výstavby
Stavba na kľúč zahŕňa kompletné základy domu, obvodové a vnútorné priečky, krov, strešnú krytinu a podlahové kúrenie kombinované s radiátormi. Interiéry sú vybavené plávajúcimi podlahami, v kúpeľniach je kompletná sanita, dlažba a obklady. Kuchyňa bude vybavená kuchynskou linkou. Súčasťou štandardu sú interiérové dvere, drevené zárubne, okná, vymaľovaný interiér, kvalitné zateplenie a fasádna omietka s možnosťou výberu farby.
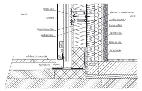
Obvodové nosné murivo je z keramických tvaroviek s hrúbkou 240 mm, vnútorné nosné murivo rovnako z keramických tvaroviek s hrúbkou 115 mm. Vnútorné deliace priečky sú murované z keramických tvaroviek s hrúbkou 115 mm. Stropná konštrukcia je monolitická, bezprievlaková, železobetónová nad prvým a druhým nadzemným podlažím s hrúbkou 200 mm.
Budovy sú zateplené kontaktným zatepľovacím systémom s fasádnym polystyrénom EPS s hrúbkou 150 mm. Plochá strecha nad prvým a druhým nadzemným podlažím má hrúbku 240 mm. Na streche prvého nadzemného podlažia je ako vrchná vrstva použitý štrkový násyp. Všetky spevnené plochy pred rodinnými domami sú z betónovej dlažby. Oplotenie v zadnej časti RD je umiestnené na hranici pozemku.
Domy sú vybavené hliníkovými profilmi s trojbodovým uzamykaním a nepriehľadnou dverovou výplňou, s farebným vyhotovením antracit z exteriéru aj interiéru. Sekcionálna zateplená garážová brána s horizontálnymi lamelami je diaľkovo ovládaná.

Technické vybavenie a energetická efektivita
V rámci prípravy inžinierskych sietí sú v základoch zavedené prípojky s dostatočnou dĺžkou. Každý dom je vybavený hlavným silnoprúdovým rozvádzačom s inštalovanou prepäťovou ochranou. V interiéri sú štandardné zásuvky a vypínače, v kuchyni je špeciálna zásuvka 400 V/16A. Predpríprava pre klimatizáciu je zabezpečená vo všetkých obytných miestnostiach a v kuchyni. K dispozícii je aj inštalačná škatuľa pri vstupe do RD pre videovrátnika a príprava pre zabezpečovací systém. Pred každým oknom sú predprípravy pre exteriérové žalúzie.
Hlavným zdrojom tepla je priamovýhrevný elektrokotol, pričom je možná aj inštalácia krbovej vložky ako doplnkového zdroja tepla (nie je súčasťou štandardného vybavenia). Rozvody studenej a teplej vody, ako aj kanalizačné potrubie sú štandardne inštalované. Ohrev teplej vody zabezpečuje zásobníkový ohrievač s objemom 120 litrov.
Energetická trieda bytového domu je A0, čo potvrdzuje vysokú energetickú hospodárnosť projektu PINIA. Projekt spĺňa kritériá a požiadavky vyhlášky 364/2012 Z.z. pre novostavby.
Domácnosť spotrebuje menej energie, ako vyprodukuje
Projekt PINIA: Dva stavebné objekty a komplexný prístup
Projekt PINIA pozostáva z dvoch stavebných objektov, ktoré sú budované súbežne v rámci jednej výstavby. Blok A a blok B sú od seba vzdialené 39,5 metra. Rezidenčné zázemie je určené pre všetkých vlastníkov z oboch blokov.
Výstavba projektu bola naplánovaná na 26 mesiacov. Začala sa v septembri 2021, stavba bola zapísaná do katastra nehnuteľností ako rozostavaná v 2. kvartáli 2022 a ukončenie sa predpokladalo v 4. kvartáli 2023. Po ukončení stavebných prác nasledovali úradné procesy spojené s kolaudáciami a zápisom do katastra nehnuteľností.
Užívatelia budú mať možnosť absolvovať dve obhliadky s protokolárnym zápisom pred odovzdaním nehnuteľnosti. Prvá obhliadka prebehne pred úplným ukončením stavebných prác a druhá po ich ukončení. Tieto obhliadky slúžia nielen na kontrolu, ale aj na zameranie priestoru pre nový nábytok.
Spoločnosť BEPRIM s.r.o., ako investor a prvovlastník BD PINIA, predbežne určila ako ustanovujúceho správcu subjekt MATRA n.o. Predbežný predpis mesačných nákladov na každý byt bude odkonzultovaný s klientmi. Tieto náklady sú orientačné, keďže projekt bude uvedený do užívania v roku 2024.

Finančné a zmluvné podmienky
Cena uvedená v zmluvách je záväzná a nemenná, bez inflačných doložiek alebo iných klauzúl navyšovania cien. Navýšenie ceny môže nastať len v prípade klientskych zmien, ktoré sú vždy vopred odkomunikované a schválené všetkými zmluvnými stranami, vrátane spracovania príslušnej dokumentácie a cenového dopadu. Klientska zmena je požiadavka klienta na zmenu východiskovej projektovej dokumentácie, týkajúca sa architektúry, osvetlenia, zásuvkových obvodov či zdravotechniky. Návrhy klientskych zmien musia byť posúdené projektantom a profesistami z hľadiska realizovateľnosti a cenového dopadu.
Na zazmluvnenie nehnuteľnosti stačí uhradiť 20% z budúcej kúpnej sumy. Zvyšok sa doplatí až po právoplatnej kolaudácii. Pri financovaní cez hypotekárny úver banky zvyčajne poskytujú úver vo výške 80% z hodnoty nehnuteľnosti, čo znamená potrebu vlastných zdrojov vo výške 20%.
Medzi štandardné poplatky, ktoré hradí klient, patria správne poplatky súvisiace s konaním pred Okresným úradom Martin, katastrálnym odborom, náklady na zriadenie záložného práva, jeho zápis do katastra nehnuteľností a prípadný poplatok za pripojenie elektrickej energie.
Hypotekárny servis je poskytovaný bezplatne ako štandardná služba v rámci projektu PINIA. V prípade záujmu je možné dohodnúť stretnutie s hypotekárnym poradcom a pripraviť alternatívy nového bývania, vrátane prepisov meračov na SSE.
Záručné podmienky a doplnkové služby
Zmluvné strany sa dohodli, že na stavebnú časť predmetu kúpy sa vzťahuje záručná doba v zmysle príslušných právnych predpisov, najmenej však 36 mesiacov. Na ostatné časti nehnuteľností je záručná doba v rozsahu, v akom ju poskytli výrobcovia, najmenej však 24 mesiacov. Záručná doba začína plynúť dňom odovzdania a prevzatia predmetu kúpy.
V spoločných priestoroch nie je vyhradený priestor na skladovanie kočíkov či bicyklov. Na tento účel slúžia sklady k bytom situované priamo na podlaží alebo samostatné garáže s metrážou do 30 m2. Prevádzka garážovej brány nie je sprevádzaná žiadnym zvukovým signálom a je navrhnutá v súlade s platnými normami týkajúcimi sa hluku a vibrácií.
V každom byte je pripravená štruktúrovaná dátová kabeláž s dátovými zásuvkami. Optické vlákno bude dovedené na jedno miesto v byte, kde bude umiestnený centrálny prípojný bod pre sieťové zariadenia. Výber softvérov a koncových zariadení je na individuálnom výbere klienta.
Kamerový systém bude nainštalovaný v exteriéri na monitorovanie vonkajších parkovacích plôch v zmysle požiadaviek ODI Martin.
V poslednej fáze predaja, alebo počas dopredaja projektu, budú do ponuky zaradené aj čiastočne zariadené byty v zmysle vizualizácií od nami.design. Táto služba zahŕňa kompletné vyhotovenie bytu na kľúč, od vizualizácie interiéru až po samotné prevedenie, a je ideálna pre klientov, ktorí chcú ušetriť čas s výberom interiérových prvkov, najmä pre investičných kupujúcich.
Projektová dokumentácia k bytom je poskytovaná na prvom konzultačnom stretnutí v klientskom showroome, a to v tlačenej forme alebo v digitálnom formáte .dwg. Hrúbka laminátovej podlahy nemá výrazný vplyv na intenzitu podlahového vykurovania. Zmena štandardu bytu je možná pri výbere štandardov, pričom partner pripraví prehľad zmien a stanoví cenový dopad. Všetky byty budú dokončené v materiálovom vyhotovení, aby sa predišlo poškodeniu finálnych povrchov v spoločných priestoroch.

Odborníci za projektom
Inžiniersku činnosť a autorský dozor zabezpečuje spoločnosť MPJ group, s.r.o. Supervízorom platformy je martinská developerská spoločnosť Šimon PLUS, s.r.o. Autormi projektu sú skúsení architekti a manželia Martin Šimon a Ľubica Šimonová, ktorí majú bohaté skúsenosti s realizáciou stavieb rôznej typológie a mierky. Ich expertíza zaručuje vysokú kvalitu a funkčnosť navrhnutých rodinných domov.
tags: #martin #priekopy #novostavba