Pri výbere projektu rodinného domu stoja mnohí pred dilemou, ako efektívne využiť obmedzený priestor a zároveň zabezpečiť komfortné bývanie pre celú rodinu. V tomto kontexte sa čoraz populárnejším riešením stávajú projekty poschodových domov, ktoré ponúkajú optimálnu kombináciu úžitkovej plochy a funkčnosti, najmä na užších alebo menších parcelách. Tento článok sa zameria na konkrétny príklad takéhoto domu, ktorý spája výhody bungalovu s priestorom poschodového domu, a poskytne podrobný pohľad na jeho dispozíciu, výhody a možnosti.

Koncept Domu: Spojenie Dvoch Svetov
Predstavený projekt je navrhnutý ako 5-izbový poschodový dom s dvoma kúpeľňami, ideálny pre päťčlennú rodinu. Jeho kľúčovou výhodou je schopnosť poskytnúť kompletné bývanie pre dve osoby už na prízemí. Vďaka samostatnej nočnej izbe s kúpeľňou na dolnom podlaží, tento dom efektívne spája výhody bezbariérového bývania, podobného bungalovu, s priestorovou úspornosťou a oddelenou denno-nočnou časťou, charakteristickou pre poschodové domy. Takéto riešenie je mimoriadne praktické pre viacgeneračné bývanie alebo pre rodiny, kde jeden z členov preferuje alebo potrebuje bývať na prízemí.
Dispozícia a Funkčnosť: Logika na Prvom Mieste
Pôdorys tohto domu sa vyznačuje veľmi príjemnou a logickou dispozíciou. Každá funkcia má svoje presne definované miesto a všetky priestory sú vzájomne logicky prepojené, čo vytvára harmonické a príjemné prostredie na bývanie.
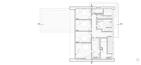
Prízemie:Dennú časť domu tvorí priestranná obývacia izba s krbom, ktorá je prepojená s jedálňou. Tieto spoločenské priestory sú orientované do záhrady, čo umožňuje priamy vstup na terasu. Toto usporiadanie je ideálne pre rodinné stretnutia, relaxáciu a trávenie spoločného času s priamym kontaktom s exteriérom. Okrem obývacej časti a jedálne sa na prízemí nachádza aj jedna nočná izba, ktorá môže slúžiť ako spálňa rodičov, hosťovská izba alebo izba pre starších členov rodiny, spolu s plnohodnotnou kúpeľňou. Praktickým prvkom je aj komora pod schodiskom, ktorá poskytuje dodatočný úložný priestor.

Poschodie:Nočná časť domu je dominantne umiestnená na poschodí. Nachádzajú sa tu ďalšie izby, ktoré sú určené pre deti alebo iných členov rodiny. Komfort bývania na poschodí zvyšujú balkóny, ktoré poskytujú možnosť vychutnať si čerstvý vzduch a výhľad do okolia. Priestranná kúpeľňa na poschodí dopĺňa funkčnosť tohto podlažia. Hoci v poskytnutých informáciách nie sú presne špecifikované všetky miestnosti na poschodí, typicky by sa tu okrem izieb a kúpeľne nachádzala aj technická miestnosť alebo šatník, čo zvyšuje celkovú úžitkovú hodnotu domu.

Architektonické Riešenie: Jednoduchosť a Praktickosť
Dom sa vyznačuje jednoduchou, no zároveň esteticky príťažlivou architektúrou. Dominantným prvkom exteriéru je sedlová strecha, ktorá je asymetricky osadená. Tento architektonický detail dodáva domu moderný a dynamický vzhľad, odlišujúc ho od tradičných symetrických konštrukcií. Jednoduchosť architektúry často znamená aj nižšie stavebné náklady a jednoduchšiu realizáciu, čo je pre mnohých stavebníkov kľúčovým faktorom.
Technické Parametre a Rozmery
- Počet osôb: 5
- Počet izieb: 5
- Počet kúpeľní: 2
- Obytná plocha: 116 m²
- Zastavaná plocha: 99,5 m²
- Celková úžitková plocha: 157,8 m²
- Šírka pozemku: 14 m
- Dĺžka pozemku: 22 m
- Max. výška strechy: 7,1 m
Tieto rozmery naznačujú, že dom je vhodný aj na užšie pozemky, čo potvrdzuje aj požiadavka na minimálnu šírku pozemku 14 metrov. Celková úžitková plocha 157,8 m² poskytuje dostatok priestoru pre pohodlné bývanie piatich osôb.
Prečo si Vybrať Poschodový Dom?
Projekty poschodových domov patria medzi najobľúbenejšie voľby na trhu s rodinnými domami. Ich popularita je daná niekoľkými kľúčovými výhodami:
- Maximálna Úžitková Plocha na Minimálnej Zastavanej Pôdorysnej Ploche: Toto je hlavná výhoda poschodových domov. Vďaka vertikálnemu členeniu obytného priestoru umožňujú získať veľkú úžitkovú plochu aj na menších stavebných parcelách, ktoré by pre bungalov boli nevhodné alebo by z nich zabrali príliš veľkú časť. V prípade obmedzenia veľkosťou pozemku je projekt poschodového domu ideálnou voľbou, ak chceme získať čo najväčšiu úžitkovú plochu.
- Oddelenie Denných a Nočných Zón: Typické členenie poschodového domu na prízemie (denná zóna) a poschodie (nočná zóna) prináša lepšie súkromie a minimalizuje rušenie medzi jednotlivými členmi domácnosti. Toto oddelenie umožňuje pokojnejší spánok a nerušenú prácu či oddych.
- Estetické a Architektonické Možnosti: Poschodové domy ponúkajú širšie možnosti pre architektonické stvárnenie. Môžu mať rôzne tvary strechy, od tradičných sedlových a valbových až po moderné pultové alebo ploché strechy. Asymetrické prvky, ako je spomenutá osadená strecha, dodávajú domu jedinečný charakter.
Výhody nízkoenergetických domov
Porovnanie s inými typmi domov
Na trhu existuje široká škála projektov rodinných domov, ktoré sa líšia veľkosťou, tvarom a typom strechy.
- Bungalovy: Tieto prízemné domy sú obľúbené pre svoju bezbariérovosť a jednoduchosť. Sú vhodné na rovinatý alebo mierne svahovitý terén. Často sú menšie, ideálne pre troj- až štvorčlenné rodiny, no existujú aj priestrannejšie varianty. Projekt bungalovu je ideálnou voľbou aj pre väčšiu - päťčlennú alebo štvorčlennú rodinu s hosťovskou izbou. Malé rodinné domy, ktorých zastavaná plocha je menej ako 50 m², sú tiež často v kategórii bungalovov a sú obľúbené medzi mladými rodinami alebo staršími pármi hľadajúcimi finančne menej náročné bývanie.
- Dvojgeneračné domy: Tieto domy sú špeciálne navrhnuté pre bývanie dvoch samostatných rodín, najčastejšie rodičov a detí. Zvyčajne ide o poschodové domy, kde spodný byt je bezbariérový a slúži staršej generácii, zatiaľ čo horný byt je väčší a určený pre viacčlennú rodinu. Rodinný dom ARKADA 13 alebo CUBER 15 sú príkladmi takýchto projektov, ktoré sú často vhodné aj na užšie pozemky.
- Domy na úzke pozemky: Vlastníctvo úzkeho pozemku si vyžaduje špecifický prístup k výberu projektu. Existujú domy navrhnuté priamo do radovej zástavby alebo ako dvojdomy, ktoré sa dajú spojiť stenami. Rodinný dom BUNGALOW 47 je príkladom obľúbeného prízemného domu s garážou na úzky pozemok.
- Moderné domy: Tieto domy sa často vyznačujú plochou alebo pultovou strechou a rôznymi geometrickými tvarmi. Sú veľmi žiadané a ich moderný vzhľad môže byť prítomný aj pri klasických domoch či bungalovoch. Hoci šikmé strechy stále dominujú, ploché strechy získavajú na popularite kvôli nižším nákladom na výstavbu, kreatívnejším dizajnovým možnostiam (svetlíky, strešné záhrady) a ľahšej údržbe. Avšak, ploché strechy sú náchylnejšie na zatekanie a majú kratšiu životnosť, čo si vyžaduje dôkladné utesnenie a pravidelnú údržbu.
- Klasické rodinné domy: Sem patria poschodové rodinné domy s rôznym typom tvaru strechy, ktoré pokrývajú všetky veľkostné kategórie a tvary. Prízemie je zvyčajne denná zóna a poschodie nočná časť.
Výhody Asymetricky Osadenej Sedlovej Strechy
Asymetricky osadená sedlová strecha nie je len dizajnovým prvkom, ale môže prinášať aj praktické výhody. V závislosti od orientácie a sklonu môže lepšie zachytávať slnečné svetlo pre solárne panely, alebo naopak, poskytovať tiene v lete. Taktiež môže ovplyvniť vnútorné priestory na poschodí, vytvárajúc zaujímavé výškové členenie miestností alebo priestory pre úložné priestory. Tento typ strechy často zjednodušuje aj odvod zrážkovej vody a snehu.
Výber Pozemku a Orientácia
Pri takomto projekte je dôležité zvážiť orientáciu domu na pozemku. Ideálna orientácia obývacej časti s priamym vstupom na terasu do záhrady by bola na južnú alebo západnú stranu, aby sa maximalizovalo využitie denného svetla a slnečného žiarenia počas dňa. Šírka pozemku 14 metrov je dostatočná na umiestnenie domu a zároveň ponechanie priestoru po stranách pre prístup, technické zázemie alebo zeleň. Dĺžka pozemku 22 metrov poskytuje dostatočný priestor pre záhradu a súkromie.
Záver
Predstavený jednoduchý pôdorys poschodového domu predstavuje vynikajúce riešenie pre moderné rodiny, ktoré hľadajú funkčné, priestranné a zároveň ekonomicky efektívne bývanie. Spojením výhod bungalovu a poschodového domu, logickou dispozíciou a esteticky príjemnou architektúrou, tento projekt spĺňa vysoké nároky na komfort a praktickosť. Je ideálnou voľbou pre tých, ktorí chcú maximalizovať úžitkovú plochu na obmedzenom pozemku a zároveň si dopriať kvalitné bývanie pre celú rodinu.
tags: #jednoduchy #podorys #poschodoveho #domu