V dynamicky sa rozvíjajúcej mestskej časti Košice - Západ, známej ako Terasa, vyrástol moderný developerský projekt Ipeľská, ktorý prináša novú dimenziu mestského bývania. Tento projekt kládol dôraz na vytvorenie komfortného, funkčného a technologicky vyspelého prostredia pre svojich obyvateľov. Jeho strategická poloha v blízkosti Univerzitnej nemocnice L. Pasteura z neho robí atraktívnu voľbu pre široké spektrum záujemcov, od mladých profesionálov až po rodiny hľadajúce kvalitné a dobre dostupné bývanie.

Lokalita a jej výhody
Bytový komplex Ipeľská je situovaný v obľúbenej lokalite sídliska Terasa v Košiciach, čo znamená, že jeho obyvatelia majú na dosah ruky kompletnú občiansku vybavenosť. V bezprostrednej blízkosti sa nachádza Univerzitná nemocnica L. Pasteura, čo je významnou výhodou pre zdravotnícky personál alebo pre tých, ktorí potrebujú mať rýchly prístup k zdravotnej starostlivosti. Okrem toho, sídlisko Terasa ponúka širokú škálu obchodov, služieb, škôl, materských škôl a rekreačných možností, ako sú parky a športoviská. Výborná dopravná dostupnosť, či už mestskou hromadnou dopravou alebo autom, zjednodušuje každodenné dochádzanie do práce či za zábavou.
Sídlisko Nová Terasa - Košice 22. 5. 2018
Ponuka bytov v projekte Ipeľská
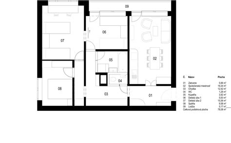
Projekt Ipeľská ponúka rozmanitú škálu bytových jednotiek, ktoré uspokoja rôzne potreby a preferencie budúcich majiteľov. Od kompaktných 1-izbových bytov, ideálnych pre jednotlivcov alebo páry, až po priestranné 4-izbové byty s veľkorysými obytnými plochami, každý si v tomto projekte nájde to svoje.
1-izbové byty: Tieto byty, s úžitkovou plochou okolo 31,90 m², sú navrhnuté s maximálnou efektivitou priestoru. Často disponujú aj balkónom (napr. s výmerou 3 m²), ktorý poskytuje príjemný exteriérový priestor na relaxáciu. PROMO Reality ponúka na predaj takýto 1-izbový byt v modernom developerskom projekte Ipeľská.
2-izbové byty: Projekt ponúka viacero variantov 2-izbových bytov, ktoré sa vyznačujú priestrannosťou a funkčným dispozičným riešením. Ich výmery sa pohybujú od približne 69,6 m² až po 70,40 m². Príkladom sú byty označené ako A4B3, A2B3, C2B4, A5B3, A6B3, A6B2 a A3B3, ktoré sú ponúkané ako holobyty, čo umožňuje budúcim majiteľom realizovať si vlastné predstavy o interiérovom dizajne.
3-izbové byty: Pre rodiny alebo tých, ktorí potrebujú viac priestoru, sú k dispozícii 3-izbové byty s výmerami okolo 87 m² a 91,8 m². Ako príklady možno uviesť byty B3B4 a B2B3, ktoré sú taktiež ponúkané v štandarde holobytu.
4-izbové byty: Najväčšie byty v ponuke, s výmerou až 111,90 m², sú ideálne pre rozsiahlejšie rodiny alebo pre tých, ktorí túžia po maximálnom komforte a priestore. Byt A3B4 je jedným z príkladov 4-izbových holobytov v tomto komplexe.

Štandard a možnosti financovania
Byty v projekte Ipeľská sú často ponúkané v štandarde holobytu. To znamená, že sú dokončené v stave, ktorý zahŕňa základné konštrukcie, vnútorné omietky, poter, elektroinštaláciu, rozvody vody a odpadu, ale bez finálnych povrchových úprav ako sú podlahy, obklady, sanita či interiérové dvere. Tento prístup dáva budúcim majiteľom slobodu vytvoriť si interiér presne podľa svojich predstáv a vkusu.
Pre tých, ktorí hľadajú už hotové riešenie, sa v ponuke objavujú aj zrekonštruované byty. Príkladom je vkusne zrekonštruovaný 1-izbový byt na Ipeľskej ulici pri Novej nemocnici, ktorý je plne zariadený a pripravený na okamžité nasťahovanie. Tento byt disponuje vstavanou skriňou na chodbe, kumbálom pred bytom a kompletne vybavenou kuchynskou linkou na mieru vrátane spotrebičov ako varná doska, elektrická rúra, digestor, mikrovlnná rúra a chladnička. K dispozícii je aj internetové pripojenie.
Projekt Ipeľská myslí aj na flexibilitu financovania. Výhodou je možnosť postupného financovania formou tranží, čo môže uľahčiť proces nadobudnutia nehnuteľnosti.
Parkovanie a doplnkové služby
Súčasťou moderného bývania je aj dostatok parkovacích miest. K bytom v projekte Ipeľská je možné dokúpiť vnútorné parkovacie miesto, ktoré predstavuje komfortné a bezpečné riešenie pre vaše vozidlo. Cena za takéto parkovacie miesto je stanovená na 26 000 €. V rámci projektu sa nachádzajú aj garáže, ktoré sú suché, prevetrávané a chránené kamerovým systémom, čo ich robí vhodnými aj na dlhodobejšie parkovanie. Spomína sa napríklad garážové parkovacie miesto v BD Popradská, Terasa.
Okrem bytových jednotiek sú v projekte Ipeľská ponúkané aj nebytové priestory. Príkladom je nebytový priestor B1P4, ktorý môže slúžiť na rôzne podnikateľské alebo komerčné účely, čím prispieva k celkovej živej atmosfére lokality.

Dostupnosť bytov a ich stav
Štruktúra ponuky bytov naznačuje, že projekt je vo fáze predaja, pričom niektoré byty sú už pripravené, iné sú vo fáze prípravy a ďalšie sú dostupné na základe konkrétnych vchodov a podlaží. Detailné informácie o voľných bytoch sú uvádzané podľa vchodov (A2, B2, C2 atď.) a podlaží (napr. B12, B22, B32). Niektoré byty sú označované ako "pripravujeme", čo znamená, že sú v procese výstavby alebo dokončovania. V rámci projektu sa nachádzajú aj byty, ktoré sú už voľné, alebo naopak, tie kde je už 0 voľných bytov.
Napriek tomu, že mnohé byty sú ponúkané ako holobyty, existuje aj možnosť nájsť už kompletne zrekonštruované a zariadené bývanie, ktoré spĺňa vysoké nároky na moderné bývanie. Tieto byty, ako napríklad spomínaný 1-izbový byt na Ipeľskej ulici, sú často orientované mimo rušnej cesty, čo prispieva k celkovému komfortu bývania. Parkovanie v niektorých z týchto zón nie je spoplatnené, čo je ďalšie plus pre obyvateľov.
Celkovo projekt Ipeľská predstavuje atraktívnu príležitosť pre tých, ktorí hľadajú moderné, kvalitné a strategicky umiestnené bývanie v Košiciach. Kombinácia výbornej lokality, rozmanitej ponuky bytov a možností financovania robí z tohto projektu významného hráča na trhu s nehnuteľnosťami.