Každý majiteľ automobilu, ktorý ho parkuje vonku, pozná ten ranný pocit neistoty. Je moje auto v poriadku? Bude tam ešte vôbec stáť? Vozidlo zaparkované na ulici nie je len vystavené nepriaznivým poveternostným vplyvom, riziku poškodenia, ale v konečnom dôsledku aj nebezpečenstvu krádeže. Tieto riziká do značnej miery eliminuje garáž. V mestskom prostredí je situácia zložitejšia, no majitelia rodinných domov majú pri rozhodovaní o garáži často jednoduchšie možnosti. V súčasnosti sa pri nových rodinných domoch stretávame s trendom výstavby dvojgaráží alebo kombináciou garáže a garážového státia.
Legislatívne a technické aspekty výstavby garáže
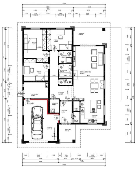
Garáž v zmysle stavebného zákona nie je drobnou stavbou, preto jej realizácia vyžaduje stavebné povolenie. Po dokončení stavby musí byť garáž skolaudovaná a následne využívaná v súlade s kolaudačným rozhodnutím. Pre správne dimenzovanie garáže je kľúčové vedieť, koľko a aké veľké automobily v nej budú parkovať. Táto informácia je pre projektanta zásadná.
Na výstavbu garáže sa vzťahujú príslušné normy a právne predpisy. Napríklad pre vozidlo dlhé do 4,25 m je stanovená minimálna voľná vzdialenosť v garáži: 0,60 m na strane vodiča, 0,25 m na opačnej strane a 0,50 m pred prednou a zadnou časťou vozidla. K týmto minimálnym voľným priestorom pripočítame rozmery vozidla a získame tak minimálnu požadovanú veľkosť garáže.

Optimálna šírka garáže pre malé osobné automobily je 2,7 m, pre stredné a veľké osobné automobily a malé karavany 3,0 m, a pre veľké karavany až 3,5 m. Dĺžka garáže by mala byť pre malé vozidlá minimálne 5,3 m, pre stredné a veľké osobné automobily a malé karavany 6,2 m, a pre veľké karavany až 8,6 m. Svetlá výška garáže musí byť najmenej 2,1 m, pričom musí byť o 0,2 m vyššia ako výška najvyššieho vozidla alebo karavanu, ktoré bude v garáži parkovať. Norma nestanovuje špecifické požiadavky pre garážovanie jednostopových vozidiel, predpokladá sa ich umiestnenie do garáže určenej pre automobily.
Kategórie garáží podľa účelu a polohy
Garáže môžeme rozdeliť do štyroch základných kategórií podľa spôsobu ich využívania a umiestnenia:
- Samostatné garáže: Slúžia výhradne na odstavenie automobilu. Na ne sa vzťahujú už spomínané minimálne rozmery.
- Samostatné garáže s úložným priestorom: Okrem parkovania vozidla umožňujú aj ukladanie náradia alebo vykonávanie drobných údržbárskych prác.
- Garáž s dielňou: Táto kategória predstavuje garáž s oddelenou dielňou určenou na realizáciu rozsiahlejších opravárenských a montážnych prác na automobile.
- Garáž v suteréne rodinného domu: Toto riešenie, hoci sa môže zdať na prvý pohľad najjednoduchšie z hľadiska projektovania a realizácie, prináša špecifické výzvy, najmä v súvislosti so strmým príjazdom a jeho odvodnením.
Garáž v suteréne rodinného domu: Výhody a nevýhody
Garáž integrovaná do suterénu rodinného domu môže byť z hľadiska stavebného riešenia najmenej komplikovaná, najmä ak je príjazdová komunikácia čo najkratšia a výšková úroveň podlahy garáže sa približuje úrovni komunikácie. Toto riešenie býva často najlacnejšie, aj keď sú výškové úrovne podlahy a komunikácie výrazne odlišné. Avšak, náklady na prívody vody, elektriny alebo prípadného kúrenia môžu byť v tomto prípade vyššie.

Výhodou je možnosť priameho prepojenia garáže s domom, pričom je nevyhnutné zabezpečiť oddelenie protipožiarnymi dverami. Prívody inžinierskych sietí sú v tomto prípade zvyčajne jednoduchšie ako pri samostatne stojacej garáži. V prípade nevykurovaného variantu bude v garáži teplejšie ako v rovnako riešenej samostatne stojacej garáži, pretože je obklopená obytnými priestormi. Strechu garáže je možné využiť aj ako terasu domu.
Na druhej strane, umiestnenie garáže do suterénu prináša aj potenciálne problémy. Strmý príjazd môže byť náročný na realizáciu a údržbu, najmä v zimných mesiacoch. Odvodnenie príjazdovej cesty a samotnej garáže je kľúčové, aby sa zabránilo vnikaniu vody a posypovej soli do interiéru, čo by mohlo poškodiť stavebné prvky. Náklady na realizáciu prístupovej rampy a jej odvodnenie môžu byť značné.
Ďalším aspektom je možný vplyv na vnútornú klímu domu. Ak nie je garáž dostatočne izolovaná a odvetraná, môže dochádzať k prenosu vlhkosti, zápachov výfukových plynov a chladu do obytných priestorov. Preto je nevyhnutné dbať na kvalitné technické riešenie, vrátane protipožiarneho oddelenia, účinného vetrania a správnej izolácie.
V prípade, že sa rozhodneme pre garáž ako súčasť domu a chceme ju integrovať do pôdorysu, je to najjednoduchšie pri novostavbe, kde je možné garáž navrhnúť už v spoločnej plánovej dokumentácii. Pri dodatočnej realizácii v už existujúcej stavbe, najmä ak ide o relatívne novší dom, sa často odporúča takéto riešenie zvažovať opatrne. Vybúranie otvoru na garážovú bránu si vyžaduje dostatočne nosný preklad a precízne stavebné práce.
Bezpečnosť a skladovanie v garáži
Garáž je primárne miestom na bezpečné parkovanie vozidla, avšak je dôležité pamätať na jej využitie a skladovanie materiálov. V priestore určenom na státie auta by nemali byť umiestnené žiadne zariadenia na ošetrovanie, údržbu alebo opravu vozidla, ako sú pracovné jamy, pracovné stoly či umývacie rampy. Pohonné a horľavé čistiace látky je možné skladovať výhradne v plechových uzatvorených nádobách.

Príjazdová cesta ku garáži
Príjazd ku garáži musí spĺňať požiadavky noriem, najmä pri radových garážach. Dobre navrhnutý príjazd by mal mať vhodne zvolenú trasu a spevnenú vozovku. Trasa by mala byť čo najkratšia a s ohľadom na finančné náklady a zimnú údržbu by nemala byť zbytočne široká. Na priamych úsekoch postačí vozovka z dvoch rovnobežných pruhov. Sklon vyrovnávacej rampy, ktorá prekonáva výškový rozdiel medzi vjazdom do garáže a komunikáciou, by nemal presiahnuť 17 %.
Hľadám únik chladiacej na TDI S4 ktorý tam nieje (?) Nespokojný majiteľ V8 lebo nemal pravdu …
Materiálové riešenia a konštrukcia garáže
Po vyriešení otázok týkajúcich sa príjazdovej cesty a umiestnenia garáže sa môžeme venovať samotnej výstavbe a materiálovému riešeniu. Tieto aspekty sú súčasťou projektovej dokumentácie, ktorú musí spracovať oprávnená osoba.
- Murovaná garáž: Má nosné steny s minimálnou hrúbkou 300 mm, ktoré môžu byť vymurované z plných tehál, dierovaných tvaroviek alebo tvaroviek z ľahčeného betónu. Murované alebo betónové garáže poskytujú suchý a celoročne využiteľný priestor.
- Prefabrikovaná garáž: Charakterizuje ju krátky čas výstavby a nižšia náročnosť na prácu, avšak býva drahšia. Ponúka sa v podobe hotovej konštrukcie škatuľového systému, ktorá sa osádza na vopred vybetónované základové pásy. Niektoré prefabrikované garáže z pozinkovanej ocele sú bezúdržbové a môžu byť aj zateplené.
Podlaha a prah garáže
Podlahy v garáži môžu byť realizované bez spádu a podlahových vpustov. Dôležité je, aby podlaha mala prah, ktorý by zabránil zatekaniu dažďovej vody do garáže, no zároveň prah nesmie brániť vjazdu a výjazdu vozidla. Betónovú podlahu je možné ošetriť špeciálnymi nátermi.
Garážová brána: Funkčnosť a bezpečnosť
Minimálna výška garážovej brány je 2 metre a mala by byť o 0,2 m vyššia, než je najvyššia výška vozidla, s ktorým projekt počíta. Podobné pravidlo platí aj pre šírku. Pre vozidlá do 5 m dĺžky by mala byť brána minimálne o 0,5 m širšia, pre vozidlá dlhé 5-10 m o 0,8 m širšia a pre vozidlá dlhšie ako 10 m o 1 m širšia, ako je najväčšia šírka vozidla v garáži.
Ovládanie brány môže byť ručné, elektrické s diaľkovým ovládaním alebo na fotobunku. Garážové brány predstavujú citlivý prvok ochrany vozidla a ich údržba je dôležitá. Hrdzavenie zárubní, najmä v spodnej časti, môže byť spôsobené vlhkosťou, agresívnym chemickým zložením spojovacej malty alebo nevhodným čistením obkladačiek či kameninových tehál kyselinou.

Vetranie a osvetlenie garáže
Norma síce nevyžaduje okná v garáži, ale využitie denného svetla je vítané. Niektoré projekty využívajú na osvetlenie garáže sklobetónové prvky. Napriek tomu je nevyhnutné zabezpečiť priečne prevetrávanie - prívod vzduchu v prednej stene pri podlahe a odvod vzduchu v zadnej stene pod stropom. Vykurované alebo temperované garáže si vyžadujú nútenú ventiláciu, zatiaľ čo v nevykurovaných garážach postačujú prieduchy.
Úradné formality a legislatívny proces
Každá stavba, vrátane garáže, je predmetom územného konania. Príslušný stavebný úrad vydáva rozhodnutie o umiestnení stavby. Účastníkmi konania sú navrhovateľ, majiteľ pozemku a vlastníci susediacich pozemkov a stavieb. Pri jednoduchých stavbách môže stavebný úrad zlúčiť územné konanie so stavebným konaním.
Po získaní kladného rozhodnutia o umiestnení stavby môže stavebník požiadať o stavebné povolenie. Stavebné povolenie stráca platnosť, ak sa stavba nezačne realizovať do dvoch rokov od jeho právoplatnosti.
Po získaní stavebného povolenia nasleduje samotná výstavba. Stavebník musí vyvesiť informačný štítok a realizovať stavbu podľa overenej projektovej dokumentácie. V prípade potreby zásadných zmien je možné požiadať o zmenu stavby pred dokončením. Pri svojpomocnej výstavbe musí stavebník viesť stavebný denník, ktorý môže byť pri garáži zjednodušený.
Posledným krokom je kolaudačné konanie. Žiadosť sa podáva pred dokončením stavby a jej účastníkmi sú stavebník a prípadne používateľ.
Je dôležité poznamenať, že pri garážach s rozlohou nad 25 m² je podmienkou výstavby stavebné povolenie. Pre drobné stavby postačuje ohlásenie na stavebnom úrade.
Garáž ako súčasť domu versus samostatná garáž
V súčasnosti sa opäť vracia trend voľne stojacich garáží, ktoré v minulosti tvorili samostatné budovy, neskôr sa stali súčasťou domov. Dnes sa opäť stretávame so samostatne stojacimi garážami, ktoré často plnia aj funkciu plota pozemku.
Garáž ako súčasť domu:
- Výhody: Pohodlie "suchou nohou" z auta do domu, najmä v nepriaznivom počasí. Integrácia do domu je najjednoduchšia pri novostavbách alebo pri stavbe domu na svahovitom pozemku. Umožňuje využitie priestoru na dielňu alebo skladovanie.
- Nevýhody: Vyššie náklady na výstavbu, nutnosť počítať s garážou už pri projektovaní domu. Potrebné je kvalitné technické riešenie (izolácia, vetranie, protipožiarne oddelenie), aby nedochádzalo k prenosu vlhkosti, zápachov alebo chladu do obytných priestorov. Nevhodné pre bungalovy kvôli veľkej zastavanej ploche.
Samostatná garáž:
- Výhody: Finančne menej náročná stavba, možnosť realizácie kedykoľvek nezávisle od domu. Jednoduchšia realizácia, napríklad formou montovaných garáží. Neznižuje úžitkovú plochu domu, hluk motora a výfukové plyny nerušia obyvateľov. Možnosť lepšieho využitia priestoru pre dielňu alebo sklad.
- Nevýhody: Potreba získať stavebné povolenie (pre stavby nad 35 m²). Vyššie dodatočné náklady na projekt, materiály a realizáciu. Nutnosť prekonať cestu z garáže do domu za každého počasia.

Plochy v súvislosti s garážou: Úžitková, obytná a zastavaná
Je dôležité rozumieť rozdielom medzi pojmami úžitková, obytná a zastavaná plocha, najmä pri plánovaní domu a garáže.
- Zastavaná plocha: Plocha stavby v kontakte s terénom, pôdorys prízemia.
- Úžitková plocha: Súčet všetkých vnútorných podlahových plôch, ktoré je možné reálne využívať, vrátane príslušenstva domu (kuchyňa, pivnica, chodby). Podľa novej normy STN 73 4301 (platnej od 1.2.2021) sa do podlahovej plochy garáže už nezapočítava.
- Obytná plocha: Vnútorné rozmery obytných miestností spĺňajúcich kritériá pre celoročné bývanie (minimálna plocha 8 m², priame osvetlenie a vetranie).
Záverečné úvahy
Výber vhodného riešenia garáže závisí od individuálnych potrieb, finančných možností a charakteru pozemku. Bez ohľadu na zvolený typ, garáž poskytuje nesporné výhody v oblasti bezpečnosti, pohodlia a šetrnejšieho prístupu k vozidlu. Pri jej plánovaní je dôležité myslieť na budúcnosť, vrátane možného nárastu rozmerov automobilov a potreby dodatočného priestoru.