Bratislavská mestská časť Ružinov, známa svojou bohatou históriou a dynamickým rozvojom, ponúka široké spektrum bývania. Medzi lukratívnymi lokalitami sa často spomína oblasť okolo Obchodného centra Retro, kde sa nachádza aj ulica Nevädzová. Táto ulica sa stala synonymom pre bývanie v retro štýle, ktoré však nezriedka spája pôvodný charakter s modernými prvkami. Ponuka dvojizbových bytov na Nevädzovej ulici je rôznorodá, od pôvodných stavov až po kompletne zrekonštruované nehnuteľnosti, ktoré uspokoja aj náročnejšieho klienta.

Priestor a dispozícia: Základný kameň komfortného bývania
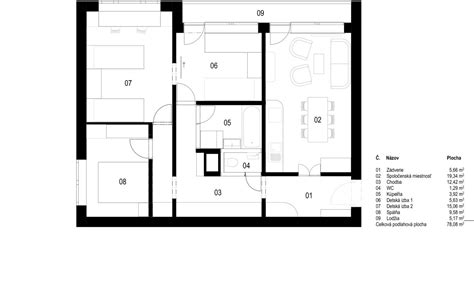
Pri výbere dvojizbového bytu na Nevädzovej ulici hrá kľúčovú úlohu jeho úžitková plocha a dispozícia. V ponuke sa objavujú byty s rôznymi výmerami, ktoré sa zvyčajne pohybujú od 60 m² vyššie. Napríklad, jeden z ponúkaných bytov disponuje výmerou 66 m² s pridaným balkónom o rozlohe 3 m², čo predstavuje dostatočný priestor pre komfortné bývanie dvoch osôb. Existujú však aj byty s mierne menšou výmerou, ako napríklad 60,30 m² s balkónom 1,35 m², či dokonca 62 m². Tieto rozmery zaručujú, že byt nie je len "skladom", ale plnohodnotným priestorom na život, oddych a prácu.
Dispozícia bytu je rovnako dôležitá. V mnohých príptoch sa jedná o nepriechodné izby, čo znamená vyššiu mieru súkromia a pokoja. V niektorých bytoch je obývačka spojená s kuchyňou, čím sa vytvára moderný otvorený priestor, ideálny na spoločné trávenie času. Kúpeľňa je často spojená s toaletou, čo je bežné riešenie v panelových domoch, avšak v niektorých prípadoch sa stretávame aj s oddelenou toaletou.

Rekonštrukcia a modernizácia: Od retro pôvabu k súčasnému štandardu
Mnohé nehnuteľnosti na Nevädzovej ulici prešli čiastočnou alebo kompletnou rekonštrukciou, ktorá im vdýchla nový život. V rámci rekonštrukcie sa často menia plastové okná, ktoré zabezpečujú lepšiu zvukovú a tepelnú izoláciu. Podlahy sú zvyčajne nahradené modernými laminátovými alebo plávajúcimi podlahami, ktoré dodávajú interiéru svieži vzhľad.
Kúpeľne sú často kompletne prerobené, vybavené novou dlažbou, obkladmi, modernými sprchovými kútmi alebo vaňami a kvalitnými batériami. V kuchyniach sa nachádzajú novšie kuchynské linky, ktoré sú funkčné a esteticky príjemné. Bezpečnostné vchodové dvere sú samozrejmosťou, zvyšujú pocit bezpečia a chránia majetok. V niektorých bytoch nájdeme aj vstavané skrine na chodbe, ktoré efektívne využívajú priestor a poskytujú dostatok úložných možností.
V posledných rokoch sa objavujú aj ponuky bytov po kompletnej, nadštandardnej rekonštrukcii. Tieto byty ponúkajú takmer úplne nový interiér, vrátane nových drevených podláh, kvalitných matracov, kompletne vybavenej kuchynskej linky na mieru so vstavanými spotrebičmi. V takýchto prípadoch sa stretávame aj s prvkami dizajnu a vyšším komfortom, ako napríklad s dizajnovými svietidlami.

Lokalita a občianska vybavenosť: Ružinov - srdce Ružinova s kompletnou infraštruktúrou
Ulica Nevädzová sa nachádza v obľúbenej časti Ružinova, v tesnej blízkosti Obchodného centra Retro. Táto lokalita ponúka výbornú občiansku vybavenosť a výbornú dostupnosť do centra mesta. V bezprostrednej blízkosti bytového komplexu sa nachádzajú potraviny, pekáreň, reštaurácie, kaviarne, bankomaty, kvetinárstvo, textilné a obuvnícke predajne, lekáreň a rôzne služby. Pre aktívnych obyvateľov je k dispozícii aj posilňovňa a tenisové či squashové kurty.
V okolí nájdeme aj základnú školu a materskú školu, čo robí túto lokalitu atraktívnou pre rodiny s deťmi. Blízkosť športovísk a parku zase poskytuje možnosti na relax a aktívny oddych v prírode.

Bytový dom a jeho benefity: Zateplenie, výťah a nové technológie
Bytové domy na ulici Nevädzová, v ktorých sa nachádzajú ponúkané dvojizbové byty, prešli modernizáciou. Panelové domy sú zateplené, čo prispieva k zníženiu nákladov na energie a zlepšuje celkovú kvalitu bývania. V mnohých budovách boli nainštalované nové výťahy, ktoré zabezpečujú bezproblémový prístup na vyššie poschodia.
Mesačné náklady na bývanie sú v tomto prípade relatívne nízke, čo je ďalším pozitívnym aspektom. Priemerné mesačné náklady sa pohybujú okolo 72,- EUR plus náklady na elektrinu, čo predstavuje výhodnú cenu vzhľadom na lokalitu a kvalitu bývania.
Architekt navrhol moderný byt s úchvatným výhľadom (Prehliadka bytu)
Finančné aspekty a hypotekárny servis: Investícia do budúcnosti
Ceny dvojizbových bytov na ulici Nevädzová sa pohybujú v závislosti od stavu bytu, jeho výmery a konkrétnej polohy. V ponuke sa objavujú byty s cenovkami pohybujúcimi sa okolo 270.000,- €, pričom cena je priamo úmerná veľkosti a úrovni rekonštrukcie.
Pre záujemcov o kúpu bytu je k dispozícii bezplatný kompletný hypotekárny servis. Realitné kancelárie ponúkajú bezplatné stretnutie a poradenstvo s hypotekárnym špecialistom, ktorý pomôže nájsť najvýhodnejšie riešenie financovania prostredníctvom hypotekárneho úveru. Táto služba je neoceniteľná pre tých, ktorí si chcú splniť svoj sen o bývaní v atraktívnej lokalite.

Retro bývanie: Nostalgia s moderným komfortom
Pojem "retro bývanie" na Nevädzovej ulici evokuje nostalgiu za minulými časmi, no zároveň predstavuje moderný trend v bývaní. Ide o spojenie pôvodného charakteru budov s modernými prvkami a technológiami, ktoré zabezpečujú komfort a funkčnosť. Dvojizbový byt v tomto štýle nie je len priestorom na bývanie, ale aj svedectvom o premenách mesta a jeho architektúry. Je to možnosť žiť v lokalite s bohatou históriou, ktorá si však zachováva svoj dynamický charakter a ponúka všetky výhody moderného života.

Širšia ponuka v Ružinove: Rôznorodosť možností bývania
Okrem dvojizbových bytov na Nevädzovej ulici ponúka Ružinov širokú škálu ďalších možností bývania. V ponuke sa objavujú aj jednoizbové byty, trojizbové byty, či dokonca priestrannejšie byty s viacerými izbami. Lokalita Ružinov je celkovo veľmi vyhľadávaná, čo sa odráža aj na rozmanitosti ponúkaných nehnuteľností. Od bytov v novostavbách, ako napríklad v projekte Zwirn 3 na Košickej ulici, cez byty v tehlových domoch až po byty v ikonických mrakodrapoch ako Eurovea Tower, Ružinov ponúka riešenie pre každý životný štýl a rozpočet.
Napríklad, trojizbový byt na Nezábudkovej ulici, ktorý sa nachádza v srdci Ružinova - Trávniky, je prakticky riešený a ponúka slnečný interiér. V iných častiach Ružinova, ako napríklad na Narcisovej ulici, sa ponúkajú byty po novej rekonštrukcii, ktoré sú pripravené podľa predstáv budúceho majiteľa.
Architekt navrhol moderný byt s úchvatným výhľadom (Prehliadka bytu)
Zhrnutie ponuky na Nevädzovej ulici
Dvojizbový byt na Nevädzovej ulici v Ružinove predstavuje atraktívnu možnosť bývania pre tých, ktorí hľadajú kombináciu retro šarmu, moderného komfortu a vynikajúcej lokality. S výmerou okolo 66 m², balkónom, čiastočnou alebo kompletnou rekonštrukciou, zatepleným bytovým domom s novým výťahom a kompletnou občianskou vybavenosťou v okolí, tieto byty spĺňajú vysoké nároky na bývanie. Možnosť bezplatného hypotekárneho servisu navyše uľahčuje celý proces kúpy nehnuteľnosti.
tags: #dvojizbovy #byt #retro #nevadzova