Výber vhodného projektu rodinného domu môže byť často výzvou, najmä ak disponujete pozemkom s netradičnými rozmermi. Úzky pozemok, ktorý by sa na prvý pohľad mohol zdať ako obmedzenie, však pri správnom projekte ponúka prekvapivo veľa možností. Dôkazom toho sú projekty bungalovov, ktoré sa stávajú čoraz populárnejšími pre svoju praktickosť, pohodlie a efektívne využitie priestoru. Tieto jednopodlažné domy sú ideálnou voľbou pre tých, ktorí hľadajú pohodlné a praktické bývanie, a takýchto ľudí neustále pribúda.

Bungalov 215: Funkčnosť a priestor na úzkom pozemku
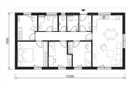
Projekt bungalovu Bungalow 215 je vynikajúcim príkladom toho, ako aj úzky pozemok ponúka veľa možností pri výbere projektu domu. Tento bezbariérový bungalov je navrhnutý tak, aby uspokojil požiadavky na bývanie pre 4 osoby a zároveň maximálne využil zastavanú plochu a poskytol dostatok obytného priestoru. Vstup do domu vás privedie do chodby, kde je možné umiestniť vstavaný šatník alebo predsieňový nábytok s vešiakmi, čo je praktické riešenie pre udržanie poriadku.
Chodbou sa prechádza priamo do nočnej časti domu, ktorú tvoria tri izby. Z týchto izieb je najväčšia spálňa, ktorá okrem manželskej postele umožňuje aj umiestnenie veľkorysého vstavaného šatníka a iného doplnkového nábytku. Podlahová plocha detských izieb je dostatočná na umiestnenie postelí, písacích stolíkov a úložného priestoru, čím sa vytvára komfortné prostredie pre deti.
Projekt kúpeľne počíta s inštaláciou vane a dvoch umývadiel s umývadlovými skrinkami, čo je praktické najmä pre rodiny s viacerými členmi. Obyvateľom domu sú k dispozícii menšie WC pri vstupe do domu a priestrannejšie WC, ktoré je prakticky kombinované s technickou miestnosťou. Táto kombinácia šetrí priestor a zároveň zabezpečuje funkčnosť.

Rovnako ako aj iné projekty domov od firmy PRODOM, aj projekt Bungalow 215 myslí na veľkorysú spoločenskú časť domu. Prepojenie obývačky a kuchyne je riešené s dôrazom na ich optické oddelenie, pričom sú zachované všetky prvky spojeného priestoru. Kuchynská časť je navrhnutá pre linku v tvare L a poskytuje dostatok miesta na inštaláciu všetkých moderných spotrebičov. Logická následnosť jednotlivých prvkov vytvára dostatočne veľký pracovný priestor na prípravu jedál.
Do obývačky sa zmestí sedacia súprava v tvare L pre 3 - 4 osoby, ku ktorej je možné pridať kreslo, puf alebo taburet. Môže sa tu nachádzať tiež skrinka pod TV alebo obývacia stena. Z obývačky je priamy prechod na terasu cez posuvné dvere, čo umožňuje príjemné posedenie v exteriéri a prepojenie interiéru s prírodou.
Tento projekt bungalovu na úzky pozemok je vhodný na stavbu na rovinatom alebo mierne svahovitom pozemku a uspokojí nároky na bývanie 4-člennej rodiny. Je to projekt domu bez garáže, čo môže byť výhodné pre úsporu miesta a nákladov.
Charakteristiky jednoduchého bungalovu
Jednoduchý bungalov je ideálny pre tých, ktorí hľadajú pohodlné a praktické bývanie. Je to jednopodlažný dom s kompaktným a efektívnym pôdorysom, kde je dôraz kladený na praktickosť a pohodlie. Stavba takýchto domov často zaberá menšiu zastavanú plochu, čo umožňuje ich umiestnenie aj na menšie či užšie pozemky, kde by klasický bungalov bol ťažko realizovateľný.
Jednou z kľúčových výhod jednoduchého bungalovu je jeho efektívna práca s využitím priestoru. Nenájdeme tu žiadne „hluché“ miesta, ako je napríklad schodisko, ktoré je typické pre poschodové domy. Menšia zastavaná plocha umožňuje aj nižšie náklady na výstavbu, pretože si vyžaduje menej stavebného materiálu a menej hodín práce. S nižšími nákladmi treba počítať aj pri samotnej prevádzke rodinného domu, či už ide o vykurovanie alebo údržbu.
Postavili sme jednoduchý bungalov vlastnými silami! 🏡 Rok práce a splnený sen
Samozrejme, aj jednoduchý bungalov má svoje nevýhody, ktoré sú však skôr subjektívne. Niekomu môže prekážať prílišná jednoduchosť tohto druhu domov. Menšia zastavaná plocha znamená aj menej úložných priestorov alebo miesta na život v dome ako takom. Preto je dôležité vybrať si správny projekt, ktorý bude reflektovať potreby konkrétnej domácnosti.
Projekty malých rodinných domov, kam patria aj jednoduché bungalovy, často patria do kategórie lacnejších domov. Sú nenáročné na veľkosť pozemku a môžu byť prízemné. Vyhovujú najmä mladým rodinám pri riešení svojho bývania, ale aj starším ľuďom, pre ktorých sú bezbariérové prízemné domy ideálnou voľbou.
Rôzne projekty a ich využitie
Existuje široká škála projektov jednoduchých bungalovov, ktoré sa líšia veľkosťou, dispozíciou a určením. Napríklad projekt Bungalow 41 s úžitkovou plochou 68.4 m2 je kompaktným riešením, ktoré ponúka všetko potrebné pre pohodlné bývanie. Vstup cez zádverie vás privíta chodbou, ktorá spája dennú a nočnú časť. Po pravej strane sa nachádza obývacia izba spojená s kuchyňou, v strede domu WC a technická miestnosť.
Ďalším príkladom je bungalov so zastavanou plochou 61,75 m2, ktorý je o niečo priestrannejší. Vstup cez zádverie, po pravej strane technická miestnosť a kúpeľňa s WC. Na pravej strane je priestranná izba, pričom srdcom domácnosti je kuchyňa s jedálňou a obývačkou.
Pre väčšie rodiny je vhodný napríklad bungalov so zastavanou plochou 121 m2. Do domácnosti sa vstupuje cez zádverie, ktoré slúži ako chodba. V pravej časti domu sú dve izby oddelené kúpeľňou. Cena za holodom tohto projektu je 108 470€.

Vhodným riešením pre štvorčlennú rodinu je bungalov 45, ktorého cena za holodom je 80 370€. Tento projekt dokazuje, že aj menší dom môže poňať celú rodinu, ak je správne navrhnutý.
Projekty rodinných domov typu Bungalov patria medzi najpredávanejšie, čo svedčí o ich obľúbenosti a praktickosti. Ak máte úzky pozemok, na ktorom plánujete výstavbu rodinného domu, tak je tento typ projektu pre vás vhodným riešením. Tieto projekty sú navrhnuté tak, aby maximalizovali obmedzený priestor pri zachovaní funkčnosti domu.
Bungalow 228: Priestor a komfort pre väčšiu rodinu
BUNGALOW 228 je krásny jednoduchý prízemný rodinný dom navrhnutý pre 4-6 člennú rodinu. S celkovou úžitkovou plochou 68.4 m2 ponúka priestrannú dennú časť určenú na spoločné trávenie času, zatiaľ čo izby oddelené chodbou zabezpečujú dostatok súkromia. Vstup do domu cez predsieň s možnosťou umiestnenia šatníka a vešiakov je praktickým začiatkom.
Denná časť je navrhnutá pre maximálny komfort. Veľkorysý priestor je ideálny na posedenia s rodinou a hosťami, či už pri jedle, hrách alebo rozhovoroch. V teplejších mesiacoch oceníte možnosť prechodu na terasu cez posuvné dvere z obývačky. Obývacej izbe dominuje vstavaný krb, ktorý dotvára atmosféru. Miestnosť je dostatočne veľká na umiestnenie sedacej súpravy pre 4-5 osôb s kreslami alebo taburetkami, ako aj obývacej steny.
Kuchynská časť v tomto projekte umožňuje inštaláciu kuchynskej linky v tvare U, čo poskytuje dostatok priestoru na prípravu aj zložitejších jedál a zároveň vytvára veľkorysý úložný priestor. Praktickosť dopĺňa komora v kuchyni a možnosť umiestniť jedálenský stôl pre 4-6 osôb priamo vedľa kuchyne, čo uľahčuje servírovanie.

Nočná časť domu v projekte BUNGALOW 228 zahŕňa tri izby. Spálňa s podlahovou plochou 12,7 m2 umožňuje umiestnenie manželskej postele s nočnými stolíkmi, veľkého vstavaného šatníka, komody a knižnice. Pre tých, ktorí pracujú z domu, je tu možnosť vytvoriť pracovný kútik. Detské izby s podlahovými plochami 16,8 a 16,1 m2 sú dostatočne priestranné na zariadenie pre jedno alebo aj dve deti, s možnosťou umiestnenia postelí, písacích stolov, stoličiek a úložných skríň.
Kúpeľňa je situovaná na chodbe v blízkosti izieb a počíta s montážou vane a dvoch umývadiel s kúpeľňovými skrinkami. Je tu pripravené miesto aj na inštaláciu kotla a práčky. BUNGALOW 228 sa radí medzi domy strednej veľkostnej kategórie a je vhodný na rovinatú alebo mierne svahovitú stavebnú parcelu.
Dvojdomy a ich konštrukcia
Možnosťou, ako efektívne využiť pozemok a zároveň získať bývanie pre viacero rodín, je výstavba dvojdomu. Dvojdom si môžete vytvoriť spojením dvoch vhodných projektov rodinných domov, pričom jeden z nich bude v zrkadlovom pohľade. Domy môžu byť prízemné alebo poschodové. Napojiť sa dajú len stenami bez okien. Ak by tam okná boli, môžu sa zrušiť, prípadne preložiť na inú stranu. Táto možnosť umožňuje flexibilitu pri návrhu a prispôsobenie projektu konkrétnym podmienkam.
Poschodové domy ako alternatíva
Aj keď sú bungalovy veľmi populárne, je dôležité spomenúť aj poschodové domy. Projekt poschodového domu je ideálnou voľbou v prípade, ak sme obmedzení veľkosťou pozemku a zároveň chceme získať čo najväčšiu úžitkovú plochu. Poschodové domy umožňujú pohodlne a prakticky oddeliť dennú časť od nočnej, čo prináša výhody v oblasti súkromia a organizácie priestoru.

Existujú projekty poschodových domov, ktoré sú vhodné do okolitej zástavby, či už dvojpodlažnej alebo inej. Taktiež sú vhodné do rovinatého alebo mierne svahovitého terénu. Tieto domy môžu byť navrhnuté s rôznym počtom izieb, od troch až po šesť, čím vyhovujú potrebám rodín rôznej veľkosti. Napríklad moderný murovaný dom so štyrmi izbami spĺňa požiadavky väčšej rodiny.
Výhody a nevýhody bungalovov
Projekty bungalovov patria medzi najpredávanejšie a ich popularita rastie. Ich hlavnou výhodou je bezbariérovosť a pohodlné bývanie na jednej úrovni, čo je ideálne pre starších ľudí, rodiny s malými deťmi, alebo pre kohokoľvek, kto preferuje jednoduchosť a praktickosť. Jednopodlažná konštrukcia zjednodušuje údržbu a umožňuje ľahší prístup do všetkých častí domu.
Ďalšou výhodou je možnosť jednoduchého prepojenia interiéru s exteriérom, napríklad cez terasové dvere, čo podporuje trávenie času vonku a spojenie s prírodou. Efektívne využitie priestoru a kompaktný pôdorys sú taktiež významnými plusmi, najmä pri obmedzených rozmeroch pozemku. Nižšie náklady na výstavbu a prevádzku v porovnaní s poschodovými domami sú ďalším lákadlom.
Postavili sme jednoduchý bungalov vlastnými silami! 🏡 Rok práce a splnený sen
Na druhej strane, bungalovy si vyžadujú väčšiu zastavanú plochu na pozemku v porovnaní s poschodovými domami s rovnakou úžitkovou plochou. To môže byť obmedzenie na menších parcelách. Tiež môžu ponúkať menej súkromia medzi jednotlivými miestnosťami, ak nie sú dispozície starostlivo premyslené. V prípade potreby rozšírenia domu môže byť realizácia dodatočných úprav zložitejšia ako pri poschodových domoch.
Napriek tomu, že jednoduchý bungalov má svoje nevýhody, jeho výhody často prevážia, najmä pre cielenú skupinu obyvateľov. Dôležité je vybrať si projekt, ktorý presne zodpovedá individuálnym potrebám a preferenciám, a ktorý efektívne využije potenciál daného pozemku. Katalógy projektov ponúkajú široký výber, od malých až po priestrannejšie bungalovy, pričom niektoré firmy ponúkajú aj možnosť výstavby na kľúč v krátkom čase, čo zjednodušuje celý proces realizácie sna o vlastnom bývaní.
Nízkoenergetické montované drevodomy, ktoré sa stavajú na Slovensku a v Čechách, predstavujú modernú a ekologickú alternatívu, ktorá spĺňa vysoké štandardy kvality a udržateľnosti. S desiatkami rokov skúseností a stovkami spokojných zákazníkov je dôvera v takéto bývanie oprávnená.
tags: #dom #jednoduchy #bungalov