Bungalov s predným vstupom predstavuje moderné a funkčné riešenie bývania, ktoré spĺňa požiadavky širokého spektra rodín. Tieto jednopodlažné domy sú čoraz populárnejšie pre svoju praktickosť, bezbariérovosť a možnosť vytvorenia harmonického spojenia s exteriérom. Tento článok sa zameriava na špecifický projekt bungalovu s dôrazom na jeho dispozíciu, technické a architektonické riešenie, ako aj na širší kontext výhod bungalovov ako takých.

Koncept Bungalovu: Flexibilita pre Moderné Rodiny
Krásny projekt bungalovu, vhodný na rovinatý alebo mierne svahovitý terén, je navrhnutý ako priestranný rodinný dom. Tento typ domu je ideálny pre väčšiu rodinu, či už ide o štvorčlennú alebo dokonca päťčlennú domácnosť, pričom často zahŕňa aj priestor pre hosťovskú izbu. Projekt bungalovu predstavuje ideálne bývanie pre tých, ktorí uprednostňujú jednopodlažné rodinné domy, eliminujúc tak potrebu schodísk a uľahčujúc pohyb po celom dome. Nízkoenergetické bungalovy sú v súčasnosti najžiadanejším typom projektov rodinných domov, čo odráža snahu o udržateľnosť a efektívne využívanie energií.
Tento moderný murovaný dom so štyrmi izbami spĺňa požiadavky väčšej rodiny a je ideálnou voľbou pre tých, ktorí hľadajú ten "ideálny" bungalov. My máme riešenie v podobe tohto nádherného jednopodlažného domu. Ideálne riešenie pre väčšie rodiny, nakoľko tento nádherný murovaný rodinný dom disponuje 4 izbami. Krásne 3 spálne tohto rodinného domu zaručujú pokojné bývanie pre stredne veľkú až veľkú rodinu.
Dispozícia: Premyslené Rozdelenie Priestoru pre Pohodlie
Jedná sa o menší rodinný dom, ktorý je alternatívou k bývaniu v 4-izbovom byte. Vďaka úsporne riešenej dispozícii a optimalizovaným stavebným konštrukciám nezaberie veľa času jeho upratovanie ani údržba. Dom je rozdelený na dennú a nočnú časť, čo podporuje rodinný život a spoločné trávenie času v dennej časti domu, zatiaľ čo v nočnej časti nájdete súkromie na odpočinok.
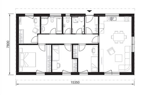
V dennej časti sa nachádza kuchyňa orientovaná ku vstupu a obývačka prepojená s priestrannou terasou, ktorá je orientovaná smerom do záhrady. Na priestrannej terase si užije oddych celá rodina. Vstup je tvorený predsieňou a priľahlou technickou miestnosťou s WC a práčkou. V technickej miestnosti je priestor pre práčku, sušičku, žehlenie či skladovanie sezónnych vecí.
Nočnú časť tvoria tri spálne a kúpeľňa. Dennú a nočnú časť je možné poľahky oddeliť dverami v prípade záujmu, čím sa ešte viac zvýši komfort a súkromie. V každej z obytných miestností sa nachádza odkladací priestor vo forme vstavaných skríň. Ďalší odkladací priestor je umiestnený v podkroví, ktoré je prístupné sťahovacími schodami z predsiene domu.
Bungalov má vchod riešený spredu. Po pravej strane sa nachádza prvá obytná miestnosť, zamýšľaná ako detská izba. Po ľavej strane je vstup do kuchyne spojenej s jedálňou a s obývačkou. Pri kuchynskej linke sa nachádza vstup do špajze. Objekt má samostatne riešené WC s umývadlom a kúpeľňu s ďalším WC. Zadná časť domu je rozdelená na ďalšie tri miestnosti - spálne, pričom najväčšia je rodičovská. Parkovanie je zamýšľané pred domom, ideálne na spevnenej ploche.

Technické a Architektonické Riešenie: Kvalita a Estetika
Steny sú navrhnuté z pórobetónových tvárnic, ktoré je v prípade záujmu možné počas výstavby bez problémov zameniť za tehlové murivo. Krov je väzníkový a nachádza sa v ňom odkladací priestor na sezónne veci. Vykurovanie je podlahové, čo zabezpečuje rovnomerné rozloženie tepla a vysoký komfort bývania.
Architektonické riešenie domu je navrhnuté s dôrazom na moderný vzhľad a príjemnú atmosféru. Dom je riešený kombináciou lepeného obkladu prírodnej hnedej farby s omietkou bielej farby na osteniach a podbití. Vďaka presvetleniu zo všetkých svetových strán máte v obývačke počas celého dňa svetelnú pohodu.
Dom má drevenú stropnú konštrukciu, pričom trámy môžu byť priznané (voľne viditeľné), alebo obložené sadrokartónom. Jednoduchá konštrukcia domu bez komplikovaných výčnelkov šetrí náklady na výstavbu, údržbu, ako aj prevádzku. Strecha je vyriešená ako valbová, čo dodáva domu elegantný a tradičný vzhľad.
Priestranná obývačka s kuchyňou a "otvoreným" stropom poskytuje príjemný vzdušný pocit. Tento dom v tvare L vytvára terasu, chránenú pred zlým počasím, ako aj pohľadom zvedavých susedov.
Všestrannosť Bungalovov: Od Malých Po Veľké Rodiny
Rodinné domy Bungalov sú prízemné rodinné domy rozmanitých tvarov pôdorysov. Môžu mať všetky druhy prestrešenia, od najjednoduchšej sedlovej strechy, valbovej až po plochú. Môžu mať tiež rozličný tvar a sú vhodné do všetkých druhov zástavby. Projekty bungalovov sme pre vás navrhli v rôznych prevedeniach. Môžete si vybrať menšie 2 a 3 izbové bungalovy, k dispozícii sú tiež priestranné 6 izbové bungalovy. Ak máte malé nároky na priestor, budú vám vyhovovať 2 izbové bungalovy.
Medzi väčšie rodinné domy radíme obľúbený bungalov s valbovou strechou. Tento dom má šírku 15 m a je to 4 - izbový exkluzívny rodinný dom s dvojgarážou. V zadnej časti je sociálne vybavenie pre prípadný vonkajší bazén. Medzi top projekty patrí aj dispozične úsporný 5 - izbový bungalov. Je to rodinný dom s valbovou strechou, obytnú časť tvorí veľkopriestorová obývacia izba s krbom a jedáleň s kuchynským kútom je jej súčasťou.
Bývanie v prízemnom rodinnom dome vám umožní bývať bližšie k prírode. Mnohé projekty bungalovov sú navrhnuté tak, aby sa dalo vychádzať na terasu nielen z obývačky alebo kuchyne. Vybrať si môžete aj rodinné domy s východom do záhrady aj zo spálne alebo tiež detských izieb. Chceli by ste minimalizovať bariéru medzi interiérom a exteriérom?

Prispôsobenie Projektu: Od Katalógu po Dom na Mieru
Drobné úpravy, ako napríklad vnútorné nenosné priečky, rozloženie sanity a podobne si môžete uskutočniť už priamo počas výstavby na základe nášho BEZPLATNÉHO autorského súhlasu. Rozsiahlejšie úpravy projektu, ako napríklad úprava vonkajších rozmerov domu, nosných častí vnútornej architektúry odporúčame poňať ako projekt domu na mieru. V takom prípade nie ste nijako limitovaný pôvodným projektom a každé želanie Vám bude splnené.
Náš rozsiahly katalóg projektov Vám umožňuje vybrať si vhodný typ domu, ktorý ale nemusí ostať v takom znení ako je vyhotovený v katalógu. Zo skúseností vieme, že mnohí zákazníci si projekt väčšinou upravia podľa vlastných predstáv: úprava rozmerov okien, posun priečok ale i zväčšenie či zmenšenie vonkajších rozmerov. Aby zákazník vedel, koľko ho bude stáť realizácia domu po úpravách, dom naceníme po tzv. Keď budete spokojní s realizačnou cenou po nacenení, tak projekt kompletujeme pre stavebné povolenie. Nie vždy sa podarí vybrať vhodný projekt z katalógu na Váš pozemok, keďže rozmery pozemkov bývajú rôzne a niekedy i dosť špecifické. Najideálnejšie je v tomto prípade, keď už zákazník vie, čo a ako asi chce mať.
Výstavba a Financovanie: Kľúčové Aspekty Úspešného Projektu
Projekty bungalovov sú bezbariérové. Môžete ich preto vybrať aj v prípade, že bude v dome bývať osoba so zníženou pohybovou schopnosťou. V porovnaní s poschodovými domami sú rodinné domy Bungalov jednoduchšie na výstavbu. Neznamená to vždy tiež úsporu nákladov, tá sa bude odvíjať od zvolených materiálov. S vyššími nákladmi, vzhľadom na väčšie rozmery, je nutné počítať na základy a strechu.
Rozpočtovanie v stavebnom odvetví je kritickým procesom, ktorý zahŕňa odhadovanie a plánovanie nákladov spojených s realizáciou stavebného projektu. Správne vypracovaný rozpočet umožňuje efektívne riadenie finančných zdrojov a minimalizuje riziká prekročenia nákladov. Identifikácia nákladov zahŕňa materiály, prácu, stroje, podnájmy, inžinierske a architektonické služby, povolenia, poistenie, financovanie a ďalšie výdavky. Realistické odhady cien sú kľúčové pre presné rozpočtovanie. Rozdelenie rozpočtu na jednotlivé položky práce a materiálov pomáha pri sledovaní a kontrole nákladov. Rezervy a kontingencie sú dôležité na pokrytie nečakaných udalostí. Harmonogram a časové faktory musia byť prepojené s rozpočtom. Správa zmien v rozpočte a aktívne sledovanie výdavkov sú nevyhnutné pre úspešné riadenie projektu.
Financovanie v stavebnom obore zahŕňa získavanie a správu finančných prostriedkov potrebných na realizáciu stavebných projektov. Tento proces môže zahŕňať financovanie nielen samotnej výstavby, ale aj prípravných prác, nákupu pozemkov, projektovania a iných súvisiacich činností. Financovanie je kľúčovým aspektom v stavebnom odvetví, kde sú obvykle veľké náklady a dlhodobé záväzky. Stavebné projekty si vyžadujú značné finančné zdroje z rôznych zdrojov. Stavebné spoločnosti a developeri musia vytvoriť detailný finančný plán a rozpočet pre každý projekt. Stavebné projekty sú často ovplyvnené rôznymi rizikami, ktoré musia byť zohľadnené vo finančnom plánovaní. Stavebné spoločnosti môžu vyhľadávať úvery od finančných inštitúcií, alebo môžu využiť investori a akcionári. V niektorých prípadoch môže vláda poskytovať finančnú podporu. Správne riadenie finančných aspektov je kľúčovým faktorom pre úspešné dokončenie stavebných projektov.
Pri výbere projektu na rodinný dom Bungalov nezabudnite vziať do úvahy veľkosť a tvar vášho pozemku. Bungalovy zaberajú, spravidla, väčšiu plochu ako poschodové domy. S ohľadom na veľkosť a tvar pozemku sme pre vás navrhli rôzne projekty bungalovov. Myslieť je potrebné aj na orientáciu domu voči svetovým stranám. Správna orientácia domu vám umožní využívať maximum denného svetla a zároveň priniesť úsporu na nákladoch na vykurovanie.
Tento projekt bungalovu s predným vstupom ponúka komplexné riešenie pre moderné rodiny, ktoré hľadajú pohodlné, funkčné a esteticky príťažlivé bývanie. Jeho flexibilná dispozícia, kvalitné technické a architektonické riešenie a možnosť prispôsobenia robia z neho ideálnu voľbu pre široké spektrum klientov.