Rodinné domy typu bungalov sa v posledných rokoch tešia mimoriadnej popularite, a to najmä u mladých rodín, ktoré hľadajú cenovo dostupné a praktické bývanie. Ich výhody, ako napríklad bezbariérový prístup, efektívne využitie priestoru a jednoduchá prevádzka, ich radia medzi najpredávanejšie katalógové projekty. Dnes sa zameriame na typický bungalov s terasou vpredu a vstupom zboku, ktorý predstavuje ideálne riešenie pre úzke pozemky a ponúka harmonické spojenie vnútorného a vonkajšieho života.

Efektivita a bezbariérovosť: Základné kamene moderného bývania
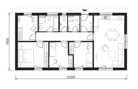
Rodinný dom na úzky pozemok Bungalow 121 prináša efektívne využitie zastavanej plochy s dôrazom na maximum obytného priestoru. Tento katalógový projekt rodinného domu je bezbariérový, preto bude vyhovovať aj osobám so zníženou pohybovou schopnosťou. Radí sa medzi domy v energetickej triede A0, čo znamená minimálne prevádzkové náklady a vysoký komfort bývania. Bungalow 121 má štyri izby a uspokojí nároky na bývanie pre 4 až 5 osôb.
Dvojdom si môžete vytvoriť spojením vhodných dvoch projektov rodinných domov. Jeden z nich bude v zrkadlovom pohľade. Domy môžu byť prízemné, alebo poschodové, napojiť sa dajú len stenami bez okien. Ak by tam okná boli, môžu sa zrušiť, prípadne preložiť na inú stranu.
Dispozičné riešenie: Inteligentné rozdelenie na dennú a nočnú zónu
Dispozičné riešenie bungalovu rozdeľuje úžitkovú plochu domu na dennú a nočnú časť. Vstup do domu je navrhnutý z bočnej strany bungalovu, čo je praktické riešenie najmä na užších parcelách. Vstupnými dverami sa dostanete do predsiene, ktorá slúži ako nárazníková zóna pred prienikom chladu z exteriéru. Je tu dostatok priestoru na umiestnenie nábytku na odkladanie oblečenia a obuvi.

Nasleduje prechod do vzdušného spoločenského priestoru. Obývačka prepojená s kuchyňou sú navrhnuté tak, aby ich opticky oddeľoval jedálenský stôl. Kuchynská linka v tvare L poskytuje dostatočnú pracovnú plochu pre prípravu jedál a je navrhnutá tak, aby maximalizovala priestor. Jedáleň je ideálne situovaná k oknu, ktoré ponúka výhľad do záhrady a umožňuje príjemné stolovanie pre 4 až 6 osôb.
Dominantou obývačky je vstavaný krb, ktorý dotvára útulnú atmosféru a poskytuje príjemné teplo počas chladnejších večerov. Z obývačky je priamy východ na terasu, ktorá je čiastočne prekrytá presahom strechy, čím vytvára ideálne miesto na relaxáciu a posedenie s rodinou či priateľmi.
Nočná časť: Súkromie a komfort pre celú rodinu
Nočná časť domu je oddelená od dennej zóny, čím je zabezpečené maximálne súkromie. Bungalow 121 ponúka tri izby v tejto časti domu. Spálňa je priestranná a situovaná vedľa obývačky. Dizajn umožňuje umiestnenie manželskej postele, nočných stolíkov a ďalšieho nábytku. Nechýba ani priestranná šatníková skriňa na odkladanie oblečenia a bytového textilu.
Detské izby sú navrhnuté tak, aby vyhovovali potrebám detí rôzneho veku. Menšia izba je ideálna pre jedno dieťa, zatiaľ čo väčšiu je možné zariadiť pre dve deti. Podlahová plocha izieb umožňuje umiestnenie postelí, písacích stolíkov a dostatočného úložného priestoru na školské pomôcky a hračky.
Kúpeľňa je navrhnutá s priestorom na montáž vane a dvojumývadla, čo ocenia najmä rodiny s viacerými členmi. Samostatné WC je umiestnené za polpriečkou pre zvýšenie komfortu.

Terasa: Rozšírenie obytného priestoru do exteriéru
Terasa hrá v modernom rodinnom dome kľúčovú rolu a jej prepojenie s interiérom je často žiadaným prvkom. V tomto prípade terasa nielenže rozšíruje obytný priestor, ale je aj čiastočne prekrytá presahom strechy, čo poskytuje ochranu pred slnkom aj miernym dažďom. Možnosť predĺženia strešného presahu alebo vytvorenia samostatnej strešnej konštrukcie pre terasu je flexibilná a závisí od individuálnych požiadaviek investora. Je však dôležité si uvedomiť, že táto vonkajšia konštrukcia nie je vždy zahrnutá v základnej cene domu.
„Těším se, až dostavíme dům a dáme si víno na terase.“ Táto veta dokonale vystihuje túžbu po vytvorení príjemného miesta na oddych a trávenie voľného času v exteriéri, ktoré je neoddeliteľnou súčasťou moderného bývania.
Materiály a konštrukcia: Drevostavba a energetická efektivita
Tento moderný bungalov je postavený sloupkovým systémom two by four (2by4), ktorý je typický pre drevostavby. Drevostavby sa zvyčajne delia podľa konštrukčného systému na masívne (CLT, sruby a roubenky), sloupkové a sendvičové. Sloupkové drevostavby sú v našich končinách pomerne časté a ich výstavba hrubej stavby trvá v rádovo týždňoch.
Energetická trieda domu A0 zaručuje nízke prevádzkové náklady. Pri výbere materiálov a technológií je dôležité myslieť na dlhodobú udržateľnosť a ekologický dopad. Možnosti úpravy fasády či interiéru dávajú majiteľovi priestor na personalizáciu domu podľa moderných trendov.
Vykurovanie a technológie: Komfort a úspory
Pri výbere vykurovacieho systému je dôležité zvážiť osobné preferencie a možnosti. Pre menší bungalov sa ponúka viacero alternatív:
- Podlahové teplovodné vykurovanie: Napojené napríklad na plynový kotol, ktorý zároveň ohrieva aj teplú úžitkovú vodu (TUV).
- Tepelné čerpadlo vzduch-voda: V kombinácii s podlahovým teplovodným vykurovaním.
- Iné systémy: Možností je takmer nekonečné množstvo, v závislosti od konkrétnych potrieb a rozpočtu.
Kombinovaný systém je potrebné dôkladne premyslieť. V porovnaní cien tepelného čerpadla vzduch-voda a plynového kotla si môžete urobiť lepší obraz o finančných nákladoch.
Systémy vykurovania kotlom: Sprievodca kupujúceho pre majiteľov domov
Cenová dostupnosť a investícia
Cena bungalovu 4+kk s úžitkovou plochou okolo 88 m² sa pohybuje od približne 2 762 500 Kč do 3 536 000 Kč (vrátane DPH). Je dôležité spomenúť, že cena základovej dosky nie je zvyčajne zahrnutá v cene domu. Cena základovej dosky sa pohybuje okolo 4 300 Kč/m² (vrátane 12% DPH pri výške 0,2 m od upraveného terénu), pričom jej realizácia svojpomocne môže priniesť značné úspory.
Projekty malých rodinných domov patria do kategórie lacnejších domov, ktoré nie sú náročné na veľkosť pozemku. Sú ideálnou voľbou pre mladé rodiny, ktoré riešia svoje prvé bývanie. Starším ľuďom vyhovujú hlavne prízemné bezbariérové rodinné domy.
Existujú aj cenovo dostupné alternatívy, kde je možné postaviť dom do fázy "na kľúč" za necelé 4 milióny korún. Nové typové domy s plochou okolo 135 m² môžu rodiny pořídit do 4,5 milióna vrátane DPH. Moderné bungalovy s menšou zastavanou plochou sú realizovateľné aj na menších stavebných parcelách a ich cena sa môže pohybovať okolo 2,9 milióna korún.
Bungalovy versus poschodové domy: Kľúčové rozdiely
Voľba medzi bungalovom a poschodovým domom závisí od viacerých faktorov, vrátane charakteru stavebnej parcely, individuálnych potrieb a preferencií.
- Pozemok: Na svahovitom pozemku je výstavba bungalovu náročnejšia a nákladnejšia kvôli potrebe úpravy terénu a odvodnenia. Poschodový dom zaberie menšiu plochu, čo je výhodné na menších parcelách.
- Náklady: Bungalov vyžaduje väčší rozpočet na výkopy a základy, zatiaľ čo poschodový dom si ukrojí viac peňazí na stropnú dosku.
- Vykurovanie: Vykurovanie bungalovu je náročnejšie kvôli väčšej ploche obvodových stien. Kompaktnejší tvar domu môže pomôcť zlepšiť tepelný odpor.
- Bezpečnosť: Niektorí ľudia preferujú poschodové domy z dôvodu pocitu väčšieho bezpečia, keďže spálňová časť je na hornom podlaží. Iní, naopak, oceňujú bezbariérový pohyb detí po bungalove.
- Súkromie: Poschodový dom umožňuje lepšie oddelenie spoločenskej a spálňovej časti, prípadne detskej zóny.
- Spojenie s exteriérom: Bungalovy často umožňujú lepšie prepojenie interiéru so záhradou cez veľkoryso riešené posuvné dverné systémy.
Pokiaľ uprednostňujete bungalov, ale chcete mať priestor "v rezerve", môžete si nechať časť podkrovia zobytniť a doplniť strešnými oknami.
Dôležité aspekty pri projektovaní a výstavbe
Pri projektovaní rodinného domu je potrebné myslieť na konkrétne podmienky stavebného zákona, ako napríklad stavba domu na hranici pozemku alebo v určitej vzdialenosti od susedových okien. Je dôležité zvážiť, či dom nezaberie príliš veľkú časť záhrady.
V prípade, že sa rozhodnete pre stavbu svojpomocne, je dôležité mať dostatočné skúsenosti alebo sa poradiť s odborníkmi. Príkladom je úspora 500 000 Kč pri stavbe základovej dosky bez predchádzajúcich skúseností.
Pri výbere typového domu, akým je napríklad Bungalow 121, máte istotu preverenej dispozície a efektívneho využitia priestoru. Možnosť úprav podľa individuálnych potrieb však zostáva.
Rodinný dom v tvare L, ako napríklad Bungalow 4, patrí medzi domy strednej veľkostnej kategórie a uspokojí nároky na bývanie pre 4 osoby. Projekt bungalovu Bungalow 4 vytvára príjemné prostredie na bývanie pre štvorčlennú rodinu.
Medzi ďalšie populárne projekty patria:
- BUNGALOW 127: Dom strednej veľkostnej kategórie.
- STELA: 4-izbový bungalov s garážou a sedlovou strechou v tvare L s úžitkovou plochou 148,83 m².
- BUNGALOW 6: 4-izbový katalógový murovaný rodinný dom.
- BUNGALOW 10: 3-izbový dom na úzky pozemok malej veľkostnej kategórie.
Každý z týchto projektov ponúka špecifické výhody a je navrhnutý s ohľadom na rôzne potreby a typy pozemkov. Výber správneho projektu je prvým krokom k vytvoreniu vášho vysnívaného domova.