V súčasnosti rastie záujem o moderné a zároveň úsporné bývanie, ktoré by spĺňalo nároky na komfort, funkčnosť a estetiku. Bungalovy sa vďaka svojej jednopodlažnej konštrukcii a bezbariérovému prístupu tešia čoraz väčšej obľube. Jedným z atraktívnych riešení v oblasti moderných rodinných domov sú bungalovy so zníženým hrebeňom strechy, ktoré kombinujú praktickosť s moderným dizajnom a energetickou efektivitou. Tieto domy ponúkajú široké spektrum možností od kompaktných riešení pre jednotlivcov či páry až po priestrannejšie varianty pre menšie rodiny.

Úsporné a funkčné dispozície pre rôzne potreby
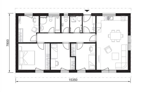
Online katalógy montovaných domov ponúkajú širokú škálu projektov bungalovov, ktoré sú navrhnuté s dôrazom na minimalizáciu zastavanej plochy a prevádzkových nákladov. Medzi obľúbené patria úsporné trojspálňové bungalovy so zastavanou plochou okolo 105 m². Tieto projekty sa často vyznačujú dokonale oddelenou nočnou a dennou časťou domu, čo prispieva k vyššiemu komfortu bývania. Menšie trojspálňové úsporné bungalovy v tvare L, dostupné aj skladom, sú ideálne na pozemky so šírkou minimálne 14 metrov. Minimálna zastavaná plocha zaručuje nielen najnižšiu obstarávaciu cenu, ale aj dlhodobú úsporu na prevádzkových nákladoch, čím sa zdravé bývanie stáva dostupným pre širšiu skupinu záujemcov.
Bungalov môže byť vhodný pre jednotlivca, pár, alebo menšiu rodinu, ktorá väčšinu času trávi v záhrade a v dome im postačujú dve izby. V takom prípade je ideálnou voľbou bungalov s podlahovou plochou okolo 76,30 m². V takomto dome sa bežne nachádza šatník, technická miestnosť, veľká chodba a jedna spálňa. Pre rodiny s vyššími nárokmi na priestor existujú aj veľkoryso riešené projekty trojspálňových domov s garážou. Tieto sú vhodné aj na užšie pozemky napriek svojej väčšej zastavanej ploche. Charakteristickou črtou mnohých moderných bungalovov je presvetlená obývacia izba prepojená s kuchyňou, ktorá je často spojená so zavetrenou terasou, čím sa vytvára príjemný priestor pre relaxáciu a spoločenské aktivity.
Pre pozemky s obmedzenou šírkou sú k dispozícii projekty ultra úzkych trojizbových bungalovov v tvare obdĺžnika. Tieto domy zvyčajne obsahujú dve spálne, kúpeľňu, technickú miestnosť a komoru, pričom ich konštrukcia je optimalizovaná pre maximálne využitie úzkeho priestoru. Niektoré projekty sú dokonca navrhnuté ako štvorizbové montované rodinné domy vhodné aj ako chata do horského prostredia, či jedno-podlažné montované keramické domy so štvorcovým pôdorysom.
Medzi obľúbené a ekonomicky výhodné riešenia patrí trojizbový nízkoenergetický rodinný dom v tvare „L“, ktorý sa vyznačuje vynikajúcim dispozičným riešením. Rovnako atraktívny je aj projekt trojizbového montovaného rodinného domu s garážou, vhodný pre menšie rodiny. Garáž je často možné prepojiť s domom, čo poskytuje viac možností pre odkladací priestor. Jednopodlažné domy sú ideálne pre úzke pozemky a často ponúkajú výbornú dispozíciu s dvoma spálňami, pričom sú ekonomicky výhodné. Bungalov s priestrannou predizbou, dvoma spálňami na jednej strane a obývacou izbou s kuchyňou na strane druhej, zase poskytuje jasné rozdelenie súkromnej a spoločenskej zóny.
Projekt domu - interiér bungalovu VESPERUM 3
Konštrukčné a materiálové aspekty
Pri výbere montovaného domu je dôležité porozumieť rôznym stupňom realizácie. Stavba obvodovej konštrukcie domu s priečkami a presterešením podľa špecifikácie stavebníka je základným stupňom. Obvodové keramické steny sú často dodávané už so základným zateplením a predprípravou pre rozvody elektriny a vody. Všetky ukončovacie práce si potom realizuje stavebník vo vlastnej réžii. Štandardný typ krovu je väzníkový drevený krov so sedlovou strechou, pričom je možné si doobjednať aj iné typy a konštrukcie striech.
Exteriér montovaného keramického domu je často dokončený na kľúč, čo znamená, že rodinný dom je zvonka komplet hotový vrátane vchodových dverí, okien, strešnej krytiny, zvodového systému a vonkajších omietok vo zvolenom farebnom odtieni. Štandardný typ zateplenia je minerálna vlna, ale v prípade požiadavky je možné typ a hrúbku zateplenia upraviť. Montovaný keramický dom, ktorý je dokončený zvnútra aj zvonka, je pripravený ku kolaudácii. Pred nasťahovaním si klient potrebuje dokúpiť už len konečné podlahové vrstvy v obytných miestnostiach (kúpeľne sú obvykle ukončené so sanitou, obkladom aj dlažbou), kuchynskú linku, svietidlá a interiérové dvere. Všetky ostatné remeselné práce sú v tomto prípade ukončené na 100%.
Špecifickou konštrukciou je bungalov s pultovou strechou, ktorý pôsobí veľmi vzdušne a elegantne. Veľké presklené plochy vnášajú do interiéru množstvo prirodzeného svetla a zároveň prepájajú vnútorné priestory s exteriérom. Dispozícia takýchto domov je často rozdelená s dôrazom na pohodlie a súkromie. Dominantou býva priestranná obývacia časť s kuchyňou a otvoreným konceptom. Nočná časť je od spoločenskej zóny prakticky oddelená chodbou, ktorá vedie k izbám a kúpeľni, čím je zabezpečený dostatok pokoja. Jedinečným prvkom pultovej strechy je možnosť využitia podhľadov na umiestnenie dodatočného úložného priestoru alebo na inštaláciu moderných technológií, ako je rekuperácia či klimatizácia. Interiér môže byť navrhnutý tak, aby sa priznala konštrukcia krovu, čo dodáva priestoru moderný industriálny nádych.

Rozpočtovanie a financovanie výstavby
Rozpočtovanie v stavebnom odvetví je kritickým procesom, ktorý zahŕňa odhadovanie a plánovanie nákladov spojených s realizáciou stavebného projektu. Správne vypracovaný rozpočet umožňuje efektívne riadenie finančných zdrojov a minimalizuje riziká prekročenia nákladov. Kľúčovými aspektmi rozpočtovania sú:
- Identifikácia nákladov: Prvým krokom je identifikácia všetkých možných nákladov, vrátane materiálov, práce, strojov, podnájmov, inžinierskych a architektonických služieb, povolení, poistenia a financovania.
- Dohadovanie cien: Realistické odhady cien sú kľúčové. Stavebné spoločnosti musia komunikovať s dodávateľmi a subdodávateľmi na získanie presných informácií o cenách.
- Rozpočet práce a materiálov: Rozdelenie rozpočtu na jednotlivé položky práce a materiálov pomáha pri sledovaní a kontrole nákladov.
- Náklady na pracovnú silu: Zahrnutie nákladov na mzdy, sociálne dávky, odmeny a rezervy na prípadné zmeny v personálnych nákladoch.
- Rezervy a kontingencie: Vytvorenie rezerv na pokrytie nečakaných udalostí a rizík, založené na realistických odhadoch.
- Harmonogram a časové faktory: Rozpočtovanie by malo byť prepojené s časovým harmonogramom projektu, pretože niektoré náklady môžu byť ovplyvnené časovými faktormi.
- Správa zmien v rozpočte: Sledovanie a dokumentovanie akýchkoľvek zmien v projekte, ktoré môžu ovplyvniť rozpočet, s mechanizmami na schvaľovanie zmien v rámci stanovených finančných rámcov.
- Sledovanie a kontrola: Aktívne sledovanie výdavkov a porovnávanie s plánovaným rozpočtom je nevyhnutné pre úspešné riadenie projektu.
Financovanie v stavebnom odbore zahŕňa získavanie a správu finančných prostriedkov potrebných na realizáciu stavebných projektov. Tento proces môže zahŕňať financovanie samotnej výstavby, prípravných prác, nákupu pozemkov a projektovania.
- Získavanie finančných prostriedkov: Prostriedky môžu pochádzať zo súkromných investícií, úverov, vládnych dotácií alebo kombinácie týchto zdrojov.
- Rozpočet a plánovanie: Detailný finančný plán a rozpočet pre každý projekt sú nevyhnutné.
- Finančné riziká: Stavebné projekty sú ovplyvnené rizikami ako zmena cien materiálov, zdržania v časovom pláne či zmeny v regulačných požiadavkách. Finančné plánovanie musí tieto riziká zohľadňovať.
- Úverové a finančné inštitúcie: Spoločnosti môžu vyhľadávať úvery od bánk a iných finančných inštitúcií.
- Investori a akcionári: V prípade komerčných projektov môžu investori prispievať k financovaniu výmenou za podiel na zisku alebo majetku.
- Vládne financovanie: V niektorých prípadoch môže vláda poskytovať finančnú podporu prostredníctvom dotácií alebo úverov so zvýhodnenými podmienkami.
Je dôležité získať čo najpresnejšiu cenovú ponuku, čo si vyžaduje zadanie lokality výstavby. Miestne podmienky, spôsob dopravy a technický spôsob výstavby ovplyvňujú celkovú cenu.
Charakteristiky konkrétnych projektov
Jedným z príkladov je Bungalov 1016, praktický a zaujímavý 3-izbový dom s celkovou úžitkovou plochou 95.3 m² a zastavanou plochou 110.8 m², bez garáže. Tento dom je útulný a ekonomicky úsporný, vhodný pre tri až štyri osoby. Jeho jednoduchá konštrukcia umožňuje finančne nenáročnú a rýchlu výstavbu. Kompaktná a účelná dispozícia vytvára priestor pre príjemné bývanie menšej rodiny. Pri vhodnom osadení je predpoklad efektívneho využívania svetových strán a úspory energií. Vhodný je do nižšej okolitej zástavby na rovinatý, prípadne mierne svahovitý pozemok. Terasa tvorí praktické prepojenie s jedálenským priestorom a obývacou časťou, čím opticky zväčšuje obytný otvorený priestor. Podklad terasy je súčasťou základovej dosky, čo výrazne znižuje náklady na jej realizáciu. Strechu tvorí ľahký väzníkový krov s plechovou krytinou. Charakteristickou črtou domu je jednoduchá sedlová strecha s krytou terasou. Jednoduchou úpravou rozšírenia celej šírky domu na 14.9 m vzniká v nočnej časti domu ďalšia dostatočne veľká obytná izba, využiteľná ako detská izba, prípadne ako pracovňa. Alternatívna verzia 4-izbového prevedenia pôdorysu tohto domu je tiež dostupná. Maximálna výška strechy je 4.6 m a šírka pozemku by mala byť minimálne 15.8 m.

Ďalším príkladom je BUNGALOV 83 R, jednopodlažný dom s rovnou strechou, dispozíciou 4 obytné izby + kuchyňa a s garážovým stáním. Súčasťou domu je pergola, drevený obklad a strieška nad vchodom. Tento rodinný dom je určený pre mladú rodinu alebo starší manželský pár. Výhodou domu je základová doska v cene a jeho vhodnosť takmer na každý pozemok. Možno ho orientovať na všetky svetové strany a napriek tomu bude energeticky efektívny.
V kontexte moderných trendov sa stretávame aj s projektmi domov s pultovou strechou, ako je RD 309. Tento moderný bungalov s pultovou strechou pôsobí vzdušne a elegantne. Veľké presklené plochy prepájajú interiér s exteriérom. Dispozícia je rozdelená s dôrazom na pohodlie a súkromie. Dominantou je priestranná obývacia časť s kuchyňou. Nočná časť je prakticky oddelená a zabezpečuje dostatok pokoja. Jedna izba slúži ako spálňa s vlastným šatníkom a druhá ako detská izba. V dome sa nachádza aj samostatné WC a technická miestnosť. Jedinečným prvkom je pultová strecha, ktorá umožňuje využiť podhľady na úložný priestor alebo inštaláciu moderných technológií. Celkovo ide o atraktívny dom kombinujúci moderný dizajn s praktickou dispozíciou. Tento projekt môže byť osadený z pravej strany čo najbližšie k hranici pozemku. V obývacej izbe je zvýšený strop.
Zastavaná plocha domu RD 309 je 148.5 m², obostavaný priestor 736 m³, výška hrebeňa 5.265 m a sklon strechy 15°. Úžitková plocha prízemia je 113.6 m², celková úžitková plocha je 113.6 m². Obytná plocha je 75.6 m², počet izieb je 4+KK a orientácia vstupu je V, Z, SV, SZ. Počet osôb je 4-5. Cena projektu je 1 490 €, orientačná cena výstavby 147 000 €.

Prednosti plochých striech v modernej architektúre
Ploché strechy, ktoré sa po rokoch ústupu opäť tešia veľkej obľube, dodávajú rodinným domom a iným stavbám zaujímavý a moderný vzhľad. Tento typ strechy sa hodí najmä k modernej architektúre. Domy s rovnou strechou majú sklon strechy maximálne 10°, s minimálnym sklonnom 2°. Rovná strecha prispieva k naplneniu prísnych požiadaviek na šetrenie energiami na vykurovanie pre nízkoenergetické aj pasívne domy, v závislosti od vhodnej voľby konštrukčného materiálu.
Výhodou plochej strechy je jej lepšia prístupnosť v prípade potreby opravy komína, čistenia odkvapov, alebo pri inštalácii a údržbe antén či fotovoltaických panelov. V prípade poschodových rodinných domov s rovnou strechou nedochádza k uberaniu z obytného priestoru na poschodí, miestnosti sa zdajú byť opticky väčšie v porovnaní s domami s obytným podkrovím. Pri výbere nábytku nie je potrebné myslieť na skosený strop. Najmä v hustom mestskom prostredí oceníte možnosť vytvoriť na streche terasu alebo záhradu. V štádiu prípravy stavby je však potrebné myslieť na odvodnenie strechy a nosnosť strešnej konštrukcie.
Rovná strecha je vhodným riešením aj pre projekty domov so zložitejším pôdorysom. Príkladom je átriový dom s plochou strechou, dvojgarážou a obojstranným krbom, ktorý je vhodný aj na užší pozemok, ako napríklad projekt Arkada 2. Pri jeho návrhu sa myslelo na dostatok pohodlia v každej miestnosti. Zaujímavo riešený je aj átriový murovaný rodinný dom s dvojgarážou a veľkou krytou terasou Arkada 1.
V minulosti sa na domy s rovnou strechou pri realizácii strechy využívali najmä gumoasfaltové pásy, ktoré vyžadovali pravidelné natieranie ochranným UV náterom. Moderné technológie priniesli rôzne hydroizolačné fólie vhodné na nízky sklon strechy, s malou hmotnosťou, dlhou životnosťou a vysokou spoľahlivosťou, ktoré nevyžadujú takmer žiadnu údržbu.
Projekty domov s rovnou strechou je možné si zvoliť podľa počtu obytných miestností a preferovaného tvaru domu. Domy s rovnou strechou ponúkajú možnosť výberu počtu podlaží. Prízemné rodinné domy s plochou strechou sa dajú vybrať v rôznej veľkosti, pokiaľ máte dostatočne priestranný pozemok. Napríklad rodinný dom v tvare L s garážou a plochou rovnou strechou Arkada 5 je vhodný projekt s tromi obytnými miestnosťami. V moderne riešenej stavbe oceníte presvetlenie interiéru cez veľké francúzske okná, čím sa eliminuje hranica medzi vnútrom domu a exteriérom. Medzi menšie domy s rovnou strechou patrí moderný malý projekt rodinného domu s plochou strechou Arkada 10. Komfort v dennej časti domu s obojstranným krbom na terase a v obývačke prináša moderný átriový rodinný dom v tvare U s garážou a plochou strechou Arkada 3, vhodný aj na úzky pozemok. Tých, ktorí hľadajú dom bez garáže, osloví moderný dom v tvare L s krytým státím pre auto Arkada 12.
Dvojpodlažné domy s rovnou strechou umožňujú získať viac obytného priestoru aj na menšej zastavanej ploche. Medzi obľúbené patria rodinné domy pre 4-5 člennú rodinu s izbou na prízemí, ako je Trend 297, s veľkopriestorovou dennou časťou presvetlenou francúzskymi oknami. Pohodlné parkovanie v prístrešku na autá ponúka moderný poschodový dom s plochou strechou Arkada 4, ktorý je možné realizovať aj bez prístrešku alebo ho upraviť na garáž. Potreby na priestor uspokojí murovaný dom s dvoma samostatnými vstupmi Arkada 13, navrhnutý pre viacgeneračné bývanie.

Všetky domy z ponuky sú nízkoenergetické montované drevodomy, s výhodou rýchleho dodania stavby (do 3 mesiacov od podpisu zmluvy) pri zachovaní maximálnej kvality. Rodinné domy z katalógu je možné postaviť kdekoľvek na Slovensku. Spoločnosti ponúkajú pomoc s výberom alebo prispôsobenie projektu podľa individuálnych požiadaviek klienta, pričom garantujú kvalitu svojej práce 30-ročnou zárukou.
Stručne povedané, bungalovy so zníženým hrebeňom strechy a rovnou strechou predstavujú moderné, úsporné a funkčné riešenia bývania, ktoré sú prispôsobiteľné rôznym potrebám a pozemkom. Kombinácia inovatívnych konštrukčných riešení, kvalitných materiálov a premyslených dispozičných návrhov robí z týchto domov atraktívnu voľbu pre široké spektrum záujemcov o bývanie.